Skip to main content
Havelock Hillside
Completed
Havelock Hillside HDB Sales Launch August 2022
Artist impression
Havelock Hillside Site Plan Overview
Site plan
Havelock Hillside Layout Ideas
Floor plan
Havelock Hillside @ Bukit Merah Location Map
Location map
Havelock Hillside HDB Sales Launch August 2022
Artist impression

Havelock Hillside

Havelock

Project Details

No of Blocks
7
Highest Floor
14
Tenure
99-year
Developer
Launch Date
Aug 2022
Expected TOP
To be announced
Total Units
540
BTO Type
standard

About This Project

BTO project in Havelock with hillside views.

Site Plan

Detailed layout and block arrangement

Havelock Hillside Site Plan
Click to zoom

Floor Plans

Browse floor plans by unit type and block

Havelock Hillside Layout Ideas

Havelock Hillside Layout Ideas

3-room 4-room
UNIT DISTRIBUTION - Havelock Hillside

UNIT DISTRIBUTION - Havelock Hillside

3-room 4-room

Blocks: 97A, 98A

BLOCK 97A | 2ND STOREY FLOOR PLAN

BLOCK 97A | 2ND STOREY FLOOR PLAN

3-room 4-room

Blocks: 97A

Block 97A Floor Plan (3rd-24th Storey) Havelock Hillside

Block 97A Floor Plan (3rd-24th Storey) Havelock Hillside

3-room 4-room

Blocks: 97A

Havelock Hillside Block 97A 4th Storey Floor Plan

Havelock Hillside Block 97A 4th Storey Floor Plan

3-room 4-room

Blocks: 97A

Block 97A 5th Storey Floor Plan - Havelock Hillside

Block 97A 5th Storey Floor Plan - Havelock Hillside

3-room 4-room

Blocks: 97A

Havelock Hillside Block 97A 6th-23rd Storey Floor Plan

Havelock Hillside Block 97A 6th-23rd Storey Floor Plan

3-room 4-room

Blocks: 97A

Havelock Hillside Block 97A - 26th Storey Floor Plan

Havelock Hillside Block 97A - 26th Storey Floor Plan

3-room 4-room

Blocks: 97A

Havelock Hillside Block 97A 27th-41st Storey Floor Plan

Havelock Hillside Block 97A 27th-41st Storey Floor Plan

3-room 4-room

Blocks: 97A

Havelock Hillside Block 97A Storey Floor Plan

Havelock Hillside Block 97A Storey Floor Plan

3-room 4-room

Blocks: 97A

Havelock Hillside Block 98A 3rd Storey Floor Plan

Havelock Hillside Block 98A 3rd Storey Floor Plan

3-room 4-room

Blocks: 98A

Block 98A Floor Plan - Havelock Hillside

Block 98A Floor Plan - Havelock Hillside

3-room 4-room

Blocks: 98A

Havelock Hillside Block 98A Floor Plan for Select Storeys

Havelock Hillside Block 98A Floor Plan for Select Storeys

3-room 4-room

Blocks: 98A

Havelock Hillside Block 98A 29th Storey Floor Plan

Havelock Hillside Block 98A 29th Storey Floor Plan

3-room 4-room

Blocks: 98A

Havelock Hillside Block 98A Floor Plan (30th-44th Storey)

Havelock Hillside Block 98A Floor Plan (30th-44th Storey)

3-room 4-room

Blocks: 98A

Havelock Hillside Block 98A Storey Floor Plan

Havelock Hillside Block 98A Storey Floor Plan

3-room 4-room

Blocks: 98A

Quick Info

Town
Bukit Merah
Tenure
99-year

Project Brochure

26 pages

Page 1 / 26
Brochure Page 1

Table of Contents

1

Havelock Hillside HDB Sales Launch August 2022

This promotional image showcases Havelock Hillside, an HDB development, featuring an artist's impression of its modern high-rise residential buildings amidst lush greenery and urban surroundings. A smiling couple in the foreground adds a human touch, while text at the top and bottom announces the project name and its HDB Sales Launch in August 2022.

2

Havelock Hillside Artist's Impression

Artist's impression of Havelock Hillside, a residential development featuring two high-rise blocks (42- and 45-storey tall) with 869 units of 3- and 4-room flats. The design integrates natural landscapes with green terraces and hillocks, connecting blocks to a rooftop garden via a unique linkbridge. Located near Havelock MRT station, it also offers sky terraces and roof gardens.

3

Havelock Hillside: Multi-level Landscaping and Amenities

This artist's impression presents a vibrant, multi-tiered green landscape within the Havelock Hillside development. It showcases pathways winding through lush planting, communal seating areas, and various recreational zones. The design integrates nature with urban living, featuring amenities such as childcare centres, children's playgrounds, and adult and elderly fitness stations, all set against a backdrop of modern residential buildings. The accompanying text emphasizes that these facilities are designed to be publicly accessible, fostering a community-centric environment.

4

Important Notes for Havelock Hillside HDB Project

This page provides important notes and disclaimers for the Havelock Hillside HDB project. It details how HDB precincts are planned to include various amenities such as childcare, commercial facilities, and communal spaces to meet evolving community needs. Additionally, it warns potential residents about possible higher noise levels due to proximity to roads, railways, or airbases, and states that all information provided is indicative and subject to change by relevant authorities.

5

Havelock Hillside @ Bukit Merah Location Map

This location map details the Havelock Hillside development in Bukit Merah. It showcases the proximity to MRT stations like Tiong Bahru, Redhill, and upcoming Havelock/Great World, along with key roads. The map highlights surrounding amenities including schools, parks, community centers, and medical facilities, offering a comprehensive view of the site's connectivity and local infrastructure. A legend clarifies MRT lines and construction status.

6

Havelock Hillside Features, Finishes & Optional Scheme

This brochure page for Havelock Hillside highlights eco-friendly features like recyclable waste chutes, bicycle stands, and water design. It details smart solutions including smart-enabled homes and lighting in common areas. The page also lists standard finishes and fittings for 3- and 4-room flats, specifying floor and wall tiles for various rooms. Additionally, it introduces an Optional Component Scheme (OCS) for buyers, allowing for customized additions to their flats.

7

Havelock Hillside Layout Ideas

This brochure page displays layout ideas for two different unit types at Havelock Hillside. It includes detailed floor plans for a 3-room unit with an approximate area of 66sqm and a 4-room unit with an approximate area of 89sqm, both showing suggested furniture arrangements and indicating internal floor areas and air-con ledges.

8

Havelock Hillside Site Plan Overview

This image presents the site plan for Havelock Hillside, illustrating the layout of residential blocks 97A and 98A, along with various facilities such as children's playgrounds, adult and elderly fitness stations, and a multi-storey car park. It details the distribution of 3-room and 4-room flats across the blocks and highlights surrounding infrastructure like existing public housing, Emerald Park, and community centres. Key communal areas and social amenities are also indicated.

9

UNIT DISTRIBUTION - Havelock Hillside

This page illustrates the unit distribution for Blocks 97A and 98A of Havelock Hillside. It uses color-coding to differentiate between 3-room (green) and 4-room (yellow) units, showing their placement across various stacks and floor levels. The diagram also indicates the locations of accessible sky terraces, roof gardens, and a childcare centre within the blocks.

10

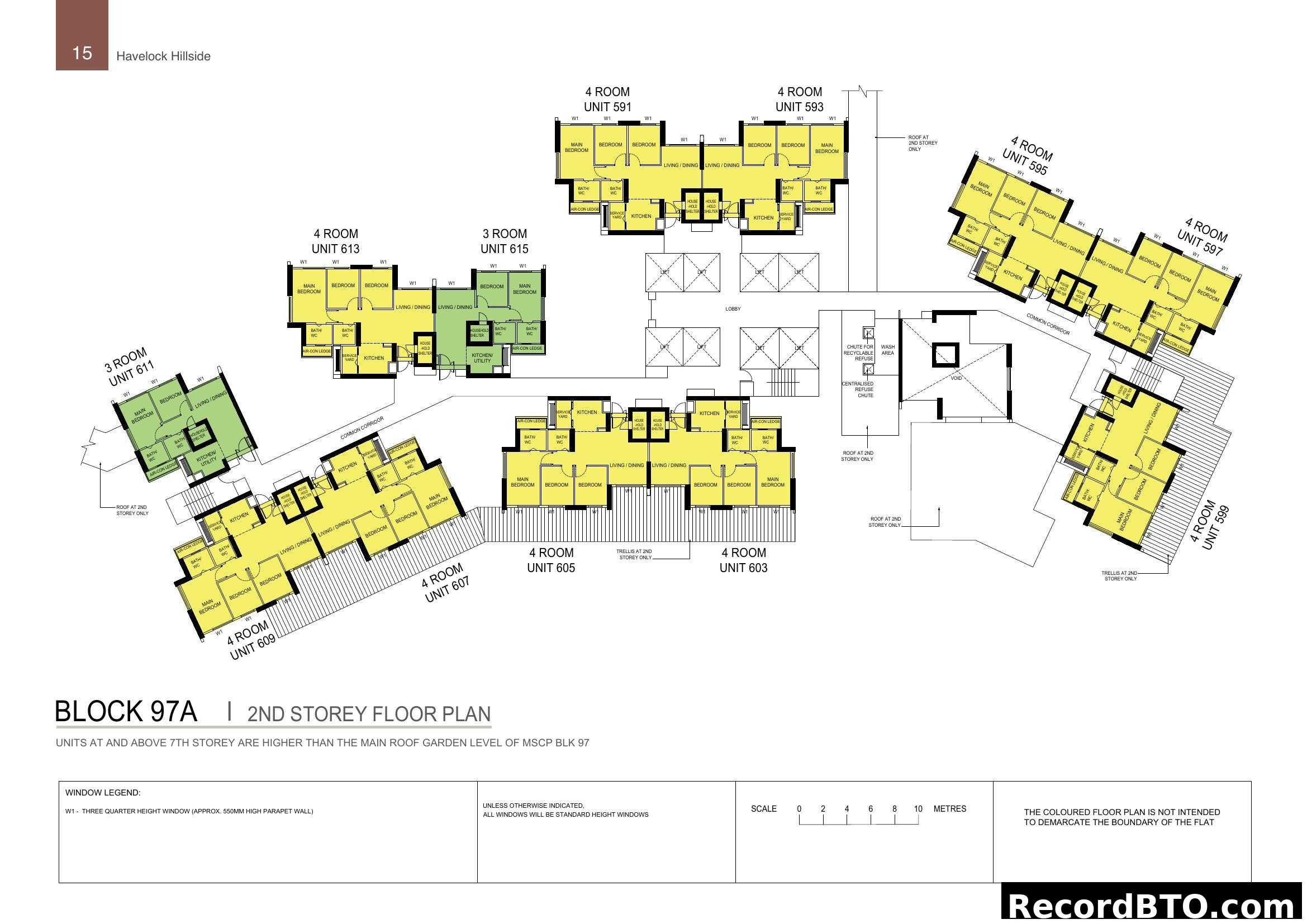
BLOCK 97A | 2ND STOREY FLOOR PLAN

This image displays the 2nd storey floor plan for Block 97A of Havelock Hillside. It details the layout of multiple residential units, including 3-room and 4-room flats, along with common areas such as corridors, lifts, and refuse chutes. The units are highlighted in yellow and green, indicating different configurations or room types. It provides a visual representation of how various units are arranged on a single floor within the building.

11

Block 97A Floor Plan (3rd-24th Storey) Havelock Hillside

This floor plan details the layout for Block 97A at Havelock Hillside, specifically for the 3rd, 7th, 9th, 12th, 14th, 16th, 18th, 20th, 22nd, and 24th storeys. It shows various 3-room and 4-room units, common corridors, lift lobbies, and shared facilities like refuse chutes.

12

Havelock Hillside Block 97A 4th Storey Floor Plan

This page displays the 4th storey floor plan for Block 97A at Havelock Hillside. It illustrates the layout of multiple 3-room and 4-room units, alongside common facilities like the lobby and corridors. Each unit's internal spaces such as bedrooms, living/dining areas, kitchens, and bathrooms are clearly marked.

13

Block 97A 5th Storey Floor Plan - Havelock Hillside

This image displays the 5th storey floor plan for Block 97A at Havelock Hillside, showcasing the layout of multiple residential units. It details various 3-room and 4-room flats, including their living/dining areas, bedrooms, kitchens, bathrooms, and utility spaces. The plan also indicates common corridors, lifts, a central lobby, and refuse areas, along with a window legend and metric scale for reference.

14

Havelock Hillside Block 97A 6th-23rd Storey Floor Plan

This image displays the floor plan for Block 97A of Havelock Hillside, specifically for the 6th, 8th, 10th, 13th, 15th, 17th, 19th, 21st, and 23rd storeys. It illustrates the layout of various 3-room and 4-room units, including common areas like corridors, lobby, and refuse chutes. Unit numbers range from 591 to 615. A window legend and scale bar are provided.

15

Havelock Hillside Block 97A - 26th Storey Floor Plan

This image displays the 26th storey floor plan for Block 97A at Havelock Hillside. It details the layouts of various residential units, including 3-room and 4-room types, along with common facilities such as the lobby, corridors, and refuse chutes. The plan also indicates the location of roof gardens accessible from the 25th storey, providing an overview of the block's layout on this specific level.

16

Havelock Hillside Block 97A 27th-41st Storey Floor Plan

This image displays the floor plan for Block 97A at Havelock Hillside, specifically for the 27th, 29th, 31st, 33rd, 35th, 37th, 39th, and 41st storeys. It illustrates the layout of multiple 3-room and 4-room units, including units 591, 593, 595, 597, 599, 601, 603, and 605. The plan also shows common areas such as the lobby, lifts, common corridor, refuse chute, and service yards. A window legend and scale are provided.

17

Havelock Hillside Block 97A Storey Floor Plan

This image displays the floor plan for Block 97A at Havelock Hillside, specifically for the 28th, 30th, 32nd, 34th, 36th, 38th, 40th, and 42nd storey levels. It illustrates the layout for various 3-room and 4-room units, including common areas like the lobby, common corridor, and refuse chutes, along with a scale bar.

18

Havelock Hillside Block 98A 3rd Storey Floor Plan

This image displays the 3rd storey floor plan for Block 98A of Havelock Hillside, featuring various residential units. The plan details the internal layout of 3-room and 4-room units, including bedrooms, living/dining areas, kitchens, and bathrooms. It also shows common corridors, the lobby, refuse chutes, and air-con ledges, providing an overview of the unit arrangements and shared spaces within the block.

19

Block 98A Floor Plan - Havelock Hillside

This image displays a detailed floor plan for Block 98A at Havelock Hillside, specifically for the 4th, 6th, 8th, 10th, 12th, 15th, 17th, 19th, 21st, 23rd, 25th, and 27th storeys. It illustrates the layout of various 3-room and 4-room residential units, including their bedrooms, living/dining areas, kitchens, bathrooms, and utility spaces, arranged around a common corridor and central lobby.

20

Havelock Hillside Block 98A Floor Plan for Select Storeys

This image displays the floor plan for Block 98A of Havelock Hillside, specifically for the 5th, 7th, 9th, 11th, 13th, 16th, 18th, 20th, 22nd, 24th, and 26th storeys. It illustrates the layout of various 3-room and 4-room units, along with common corridors, lobby, refuse chutes, and other facilities within the block.

21

Havelock Hillside Block 98A 29th Storey Floor Plan

This image displays the 29th storey floor plan for Block 98A of Havelock Hillside. It details the layouts of multiple 3-room and 4-room units (ranging from 627 to 641), showcasing their internal configurations, common areas like the lobby, lifts, and refuse chutes, and indicates the presence of a roof garden on the 28th storey.

22

Havelock Hillside Block 98A Floor Plan (30th-44th Storey)

This image displays the floor plan for Block 98A at Havelock Hillside, covering the 30th, 32nd, 34th, 36th, 38th, 40th, 42nd, and 44th storeys. It illustrates the layout of multiple residential units, including 3-room and 4-room apartments (Units 627, 629, 631, 633, 635, 637, 639, 641), arranged around a central lobby and common corridor with lifts, refuse chutes, and other facilities.

23

Havelock Hillside Block 98A Storey Floor Plan

This image displays a detailed floor plan for Block 98A of Havelock Hillside, covering the 31st, 33rd, 35th, 37th, 39th, 41st, 43rd, and 45th storeys. It showcases the layouts of various 3-room and 4-room units (627, 629, 631, 633, 635, 637, 639, 641), including bedrooms, living/dining areas, kitchens, and bathrooms. Common areas such as the lobby, corridors, and refuse chutes are also illustrated, along with a window legend and scale.

24

General Specifications for Havelock Hillside

This document outlines the general specifications for HDB 3-room and 4-room flats at Havelock Hillside. It details construction components such as foundation, structure, roof, walls, windows, doors, and various interior finishes like flooring, wall treatments, and ceiling types. The page also lists standard fittings, provided services (gas, water, electrical, data points), and important notes concerning household shelters, door frames, and available spaces.

25

HDB Brochure Disclaimer Page

This page from the HDB BTO brochure presents a comprehensive disclaimer. It clarifies that HDB owns the copyright, content is for general information only, and visual representations are artistic impressions. It also states that project details are subject to change, layout alterations are not entertained for individual needs, and HDB reserves the right to use or allow the use of various facilities. The document advises consulting relevant authorities for complete information.

26

Optional Component Scheme for 3-Room and Bigger Flats

This HDB BTO brochure page details the Optional Component Scheme (OCS) available for 3-room and bigger flats. It outlines standard inclusions such as floor and wall finishes, and water closet suites. It also presents a list of optional items that buyers can choose to have installed, including floor finishes for living/dining/bedrooms, internal doors, and sanitary fittings like wash basins and shower sets, with accompanying product images. The scheme is offered on an opt-in basis, and costs are added to the flat's selling price.

Tip: Click on any page to jump directly to that brochure page

Photo Gallery

26 photos

Havelock Hillside HDB Sales Launch August 2022

Havelock Hillside HDB Sales Launch August 2022

Havelock Hillside Artist's Impression

Havelock Hillside Artist's Impression

Havelock Hillside: Multi-level Landscaping and Amenities

Havelock Hillside: Multi-level Landscaping and Amenities

Important Notes for Havelock Hillside HDB Project

Important Notes for Havelock Hillside HDB Project

Havelock Hillside @ Bukit Merah Location Map

Havelock Hillside @ Bukit Merah Location Map