Skip to main content
Nanyang Opal
Completed
NANYANG OPAL
Artist impression
Nanyang Opal Site Plan
Site plan
HDB Floor Plan Layout Ideas
Floor plan
Jurong West Location Map (Nanyang Opal)
Location map
Nanyang Opal HDB Sales Launch November 2021
Brochure

Nanyang Opal

Jurong West

Project Details

No of Blocks
7
Highest Floor
14
Tenure
99-year
Developer
Launch Date
Nov 2021
Expected TOP
To be announced
Total Units
520
BTO Type
standard

About This Project

BTO project in Jurong West near Nanyang Technological University.

Site Plan

Detailed layout and block arrangement

Nanyang Opal Site Plan
Click to zoom

Floor Plans

Browse floor plans by unit type and block

HDB Floor Plan Layout Ideas

HDB Floor Plan Layout Ideas

3-room 4-room
Nanyang Opal Unit Distribution: Blocks 957A & 958A

Nanyang Opal Unit Distribution: Blocks 957A & 958A

3-room 4-room

Blocks: 957A, 958A

Nanyang Opal Block 957A 2nd Storey Floor Plan

Nanyang Opal Block 957A 2nd Storey Floor Plan

3-room 4-room

Blocks: 957A

Block 957A 3rd to 14th Floor Plan - Nanyang Opal

Block 957A 3rd to 14th Floor Plan - Nanyang Opal

3-room 4-room

Blocks: 957A

Nanyang Opal Block 958A 2nd Storey Floor Plan

Nanyang Opal Block 958A 2nd Storey Floor Plan

3-room 4-room

Blocks: 958A

Nanyang Opal Block 958A Floor Plan (3rd-14th Storey)

Nanyang Opal Block 958A Floor Plan (3rd-14th Storey)

3-room 4-room

Blocks: 958A

Nanyang Opal - Block 958A 9th Storey Floor Plan

Nanyang Opal - Block 958A 9th Storey Floor Plan

3-room 4-room

Blocks: 958A

Quick Info

Town
Jurong West
Tenure
99-year

Project Brochure

18 pages

Page 1 / 18
Brochure Page 1

Table of Contents

1

Nanyang Opal HDB Sales Launch November 2021

This brochure page introduces Nanyang Opal, an HDB development, announcing its sales launch in November 2021. It features an artist's impression of the residential buildings, set against a clear blue sky with lush greenery, and a smiling young couple in the foreground, conveying a modern and welcoming home environment.

2

NANYANG OPAL

This page introduces Nanyang Opal, a residential development comprising two 14-storey blocks and an 8-storey Multi-Storey Car Park, offering 3- and 4-room flats. It details the project's location, the historical significance of its name referencing Nanyang University, and its design as a green oasis with a central courtyard, children's playground, and various green features promoting resident interaction and well-being. The right side features an artist's impression of the development.

3

Nanyang Opal Development Facilities

This page features an artist's impression of the Nanyang Opal development, showcasing a vibrant children's playground area with slides, climbing structures, and green spaces. Residential buildings with integrated greenery are visible in the background. The accompanying text highlights that the facilities provided in this development will be accessible to the public.

4

Important Notes on HDB Precinct Planning and Amenities

This page provides important notes regarding HDB precinct planning, detailing the inclusion of various amenities and facilities such as childcare, elderly-related services, and commercial spaces. It also highlights potential noise levels due to proximity to roads and non-residential areas, and clarifies that provided information is indicative and subject to change by the authorities. A photograph of two young adults is on the right side.

5

Jurong West Location Map (Nanyang Opal)

This map details the Jurong West area, highlighting key amenities and infrastructure around Nanyang Opal. It shows existing and under construction MRT lines and stations (Pioneer, Boon Lay, JRL), major roads, schools like Xingnan Primary and Juying Primary, parks, community facilities, shopping centres like Gek Poh Shopping Centre, and proposed developments.

6

Nanyang Opal Eco-Friendly Features, Finishes & Smart Solutions

This brochure page for Nanyang Opal details its eco-friendly features like recyclable waste chutes and bicycle stands, along with smart solutions for energy efficiency. It also lists the standard finishes and fittings for 3- and 4-room flats, including floor and wall tiles. Additionally, it introduces the Optional Component Scheme (OCS) for buyers.

7

Nanyang Opal 3-Room Floor Plan and Flexible Kitchen Layouts

This page from the Nanyang Opal brochure showcases layout ideas for a 3-room flat. It features a detailed floor plan with suggested furniture and highlights an open kitchen concept with a dry kitchen and a combined kitchen/utility space. The page explains how homeowners can add partitions to separate the utility from the kitchen, dry from wet kitchens, or the entire kitchen from the living/dining area, with artist's impressions illustrating these flexible configurations.

8

HDB Floor Plan Layout Ideas

This page presents layout ideas for 3-room and 4-room HDB flats. It includes detailed floor plans with suggested furniture arrangements, approximate floor areas, and internal floor areas. The text highlights the flexibility in kitchen design, featuring an open kitchen concept and the option for homeowners to add partitions to suit their preferences, such as separating the utility from the kitchen.

9

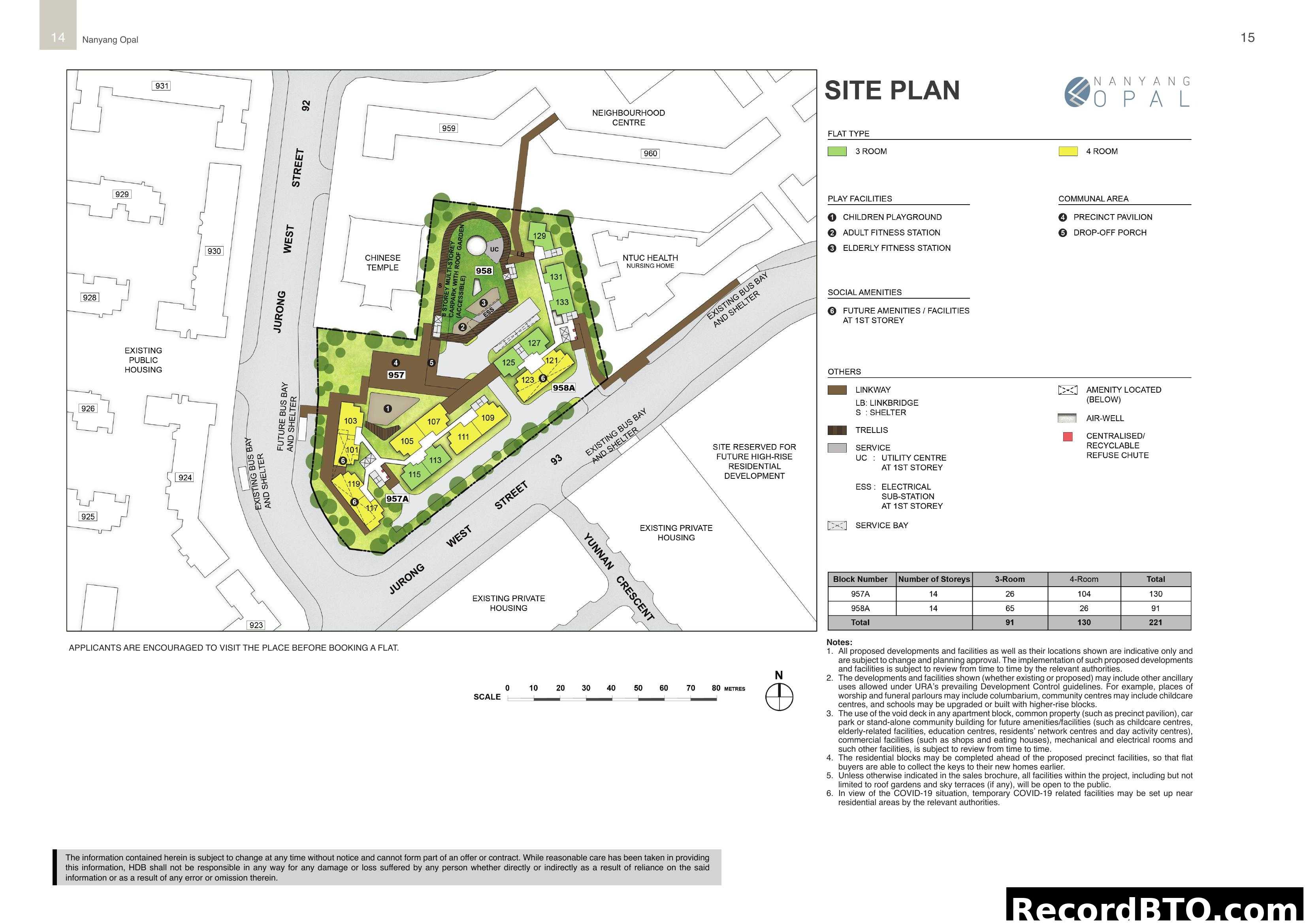
Nanyang Opal Site Plan

This image displays the site plan for Nanyang Opal, illustrating the layout of residential blocks 957A and 958A, various communal facilities, play areas, and social amenities. It includes a detailed legend identifying different flat types (3-Room, 4-Room) and key features like a multi-storey carpark, children's playground, fitness stations, and future amenities. A table summarizes block numbers, number of storeys, and unit counts for each flat type.

10

Nanyang Opal Unit Distribution: Blocks 957A & 958A

This brochure page illustrates the unit distribution for Nanyang Opal, specifically for blocks 957A and 958A. It features a color-coded stacking chart, indicating the allocation of 3-room (green) and 4-room (yellow) units across various stacks and floor levels, from the 2nd to the 14th storey. The ground floor of these blocks is designated for future amenities and facilities.

11

Nanyang Opal Block 957A 2nd Storey Floor Plan

This image displays the 2nd storey floor plan for Block 957A of Nanyang Opal, featuring various unit layouts. It illustrates the arrangement of 3-room and 4-room flats, common corridors, a lobby, and utility areas such as wash areas and refuse chutes. The plan also highlights non-accessible flat roofs and a green roof on the second storey. Unit numbers like 101, 103, 105, 107, 109, 111, 113, 115, 117, and 119 are indicated, along with a window legend and scale.

12

Block 957A 3rd to 14th Floor Plan - Nanyang Opal

This HDB BTO brochure page displays the typical floor plan for Block 957A, illustrating the arrangement of apartment units from the 3rd to 14th floors at Nanyang Opal. It shows the layouts for various 3-room and 4-room units, including common areas like the lobby, corridors, and refuse chutes. Each unit's internal configuration, such as bedrooms, living/dining areas, kitchens, and bathrooms, is detailed, along with window types and a scale bar for reference.

13

Nanyang Opal Block 958A 2nd Storey Floor Plan

This floor plan displays the layout of the 2nd storey for Block 958A at Nanyang Opal. It showcases various 3-room and 4-room units, including units 121, 123, 125, 127, 129, 131, and 133. The plan details the internal room configurations for each unit, common corridors, the lobby area, and other facilities like the wash area. It provides a comprehensive view of the residential arrangements on this specific floor.

14

Nanyang Opal Block 958A Floor Plan (3rd-14th Storey)

This floor plan for Nanyang Opal's Block 958A details the layouts for 3-room and 4-room units (specifically units 121, 123, 125, 127, 129, 131, 133) for the 3rd to 8th and 10th to 14th storeys. It shows the arrangement of bedrooms, living/dining areas, kitchens, bathrooms, and utility spaces, along with common corridors, lifts, and a wash area.

15

Nanyang Opal - Block 958A 9th Storey Floor Plan

This image displays the 9th storey floor plan for Block 958A at Nanyang Opal. It shows the layout of various residential units, including 3-room and 4-room units (Units 121, 123, 125, 127, 129, 133), arranged along common corridors. The plan also indicates the location of lifts, wash area, and refuse chutes, as well as a linkbridge to a roof garden. Window legends are provided.

16

General Specifications for Nanyang Opal

This page details the general specifications for Nanyang Opal flats, covering construction materials for foundation, structure, roof, walls, windows, and doors. It also outlines finishes for various rooms, fittings, and services provided. Important notes regarding Household Shelter rules and renovation guidelines are included.

17

Disclaimer for Nanyang Opal Brochure

This page presents the official disclaimer for the Nanyang Opal brochure from the Housing & Development Board (HDB). It details that the information provided, including visual representations and project specifications, is for general information only and subject to change. HDB reserves rights regarding alterations and use of facilities, while also clarifying that the brochure does not constitute a legal offer or contract.

18

OPTIONAL COMPONENT SCHEME (3-, 4-, AND 5-ROOM FLATS)

This HDB brochure page details the Optional Component Scheme (OCS) for 3-, 4-, and 5-room flats. It outlines standard provisions like floor finishes and wall tiles in certain areas, and lists optional items that buyers can choose to have installed, such as living/dining/bedroom floor finishes, internal doors, and sanitary fittings (wash basins and shower sets). Images of a wash basin and a handheld shower set are included.

Tip: Click on any page to jump directly to that brochure page

Photo Gallery

18 photos

Nanyang Opal HDB Sales Launch November 2021

Nanyang Opal HDB Sales Launch November 2021

NANYANG OPAL

NANYANG OPAL

Nanyang Opal Development Facilities

Nanyang Opal Development Facilities

Important Notes on HDB Precinct Planning and Amenities

Important Notes on HDB Precinct Planning and Amenities

Jurong West Location Map (Nanyang Opal)

Jurong West Location Map (Nanyang Opal)