Skip to main content
Tampines GreenEmerald
Launched
HDB BTO Sales Launch Cover Page
Brochure

Tampines GreenEmerald

Bounded by Bedok Reservoir Road and Tampines Street 96

Project Details

No of Blocks
7
Highest Floor
14
Tenure
99-year
Developer
HDB
Launch Date
Nov 2020
Expected TOP
Jun 2025
Total Units
750
BTO Type
standard

About This Project

Tampines GreenEmerald features 750 units across 5 blocks (10-17 storeys) with a quarry-inspired design reflecting the area's history. Located adjacent to Bedok Reservoir Park, it offers scenic views and tranquil living. The development includes panoramic roof gardens, rock-climbing play elements, and sustainable features like smart waste systems.

Units & Pricing

4 unit types available

Unit Type Floor Area Units Price Range
2-room Flexi (Type 1)
40 sqm*
Internal: 38 sqm^
39 units
$130,000 - $155,000
~$34,983-$41,711/psf
2-room Flexi (Type 2)
49 sqm*
Internal: 47 sqm^
107 units
$161,000 - $192,000
~$35,367-$42,177/psf
4-room
94 sqm*
Internal: 91 sqm^
360 units
$334,000 - $410,000
~$38,247-$46,949/psf
5-room
113 sqm*
Internal: 110 sqm^
244 units
$460,000 - $538,000
~$43,818-$51,248/psf
Total
750 units
$130,000 - $538,000
* Refers to the estimated area of the whole apartment, comprising the internal floor area and the air-conditioner ledge.
^ Refers to the estimated area of the apartment computed based on the centre line of the apartment wall.
# Actual prices may vary based on the actual attributes of the flats at the time of selection. Prices include the costs of floor finishes, internal doors and sanitary fittings. Price range is excluding grants.
+ Singles who apply for a 2-room Flexi flat under the Single Singapore Citizen Scheme will pay $15,000 more than married couples.
^^ 2-room Flexi flats at Bishan Ridges are offered only to seniors (aged 55 and above) on short leases of between 15 and 45 years, in five-year increments.

Quick Info

Town
Tampines
Nearest MRT
Bedok Reservoir
0.4km away
Tenure
99-year

Nearby Amenities

shopping
  • Tampines 1
  • Tampines Mall
  • Century Square
  • IKEA Tampines
  • Giant Hypermarket
  • Courts Megastore
schools
  • Temasek Polytechnic (walking distance)
  • Junyuan Primary
  • East View Primary
  • Tampines Primary/Secondary
  • St Hilda's Primary/Secondary
  • Springfield Secondary
recreation
  • Bedok Reservoir Park (5 mins walk)
  • SAFRA Tampines
  • HomeTeamNS Tampines
  • Tampines West CC
  • Rock-climbing playground
  • Panoramic roof gardens
transport
  • Bedok Reservoir MRT (DTL)
  • Tampines West MRT (DTL)
  • Tampines MRT Interchange (2 stops)
  • TPE and PIE access
healthcare
  • On-site childcare centre
  • Island Family Clinic (Bedok)

Project Brochure

33 pages

Page 1 / 33
Brochure Page 1

Table of Contents

1

HDB BTO Sales Launch Cover Page

Cover page for the HDB BTO project 'TAMPINES Green Emerald', launched in November 2020. The upper half of the page features a computer-generated rendering of the residential development. It depicts multiple modern HDB blocks with varying architectural facades, surrounded by extensive green landscaping, trees, and pedestrian pathways, suggesting a well-integrated community environment. A body of water, possibly a canal or river, is visible in the foreground of the rendering. The lower half displays a lifestyle photograph of a smiling young couple. They are holding a light blue baby romper, symbolizing new beginnings and family life. A baby crib is visible behind them, reinforcing the family-oriented theme of the development. The background of the photo is a light teal, matching the overall brochure design.

2

HDB BTO Project: Artist's Impression & Overview

Artist's impression and project overview for Tampines GreenEmerald. The project is bounded by Bedok Reservoir Road and Tampines Street 96. It comprises 5 residential blocks, ranging from 10 to 17 storeys in height. A total of 750 units are available, including 2-room Flexi, 4-room, and 5-room flats. The design is inspired by the area's history as a former sand quarry, featuring panoramic roof gardens that terrace downwards and rock-climbing play elements in one of the children's playgrounds.

3

Artist's Impression and Development Facilities Overview

The page presents an artist's impression of a residential development, showcasing multi-storey apartment blocks and communal outdoor spaces. The development will include a childcare centre, playgrounds, and adult and elderly fitness stations. Three residential blocks are planned to feature roof gardens. The remaining two blocks will have skybridges connecting to the roof garden of the Multi-storey Car Park. All facilities within this development are stated to be accessible to the public. A photograph of a family is also included on the page.

4

Tampines Locality Map and Development Information

Locality map of the Tampines area, illustrating existing and proposed amenities, transport links, and key landmarks. The map covers Tampines Avenue, Pan Island Expressway, and features Tampines MRT Station, Tampines West MRT Station, Simei MRT Station, and Bedok Reservoir MRT Station. Notable landmarks include Our Tampines Hub, Tampines Mall, Bedok Reservoir Park, and various schools and community facilities. Important Notes state that HDB precincts are planned with spaces for future amenities like childcare centres, elderly facilities, education centres, commercial facilities, and community buildings. All information provided is indicative and subject to review. The map legend defines symbols for MRT Lines & Stations, Under Construction/Future Roads, Under Construction (u/c) sites, and MOE Kindergartens (MK). A holding site for Temasek Junior College is also indicated. Additional notes clarify that all proposed developments are subject to change and planning approval. Definitions are provided for 'Proposed Place of Worship', 'Proposed Civic & Community Institution', and 'Proposed Health & Medical Care'. Facilities may include ancillary uses, and temporary COVID-19 related facilities may be set up. A disclaimer at the bottom states that the information is subject to change and does not constitute an offer or contract.

5

Property Features, Unit Types, and Finishes

This brochure page outlines general property features, flat types, and finishes for Tampines GreenEmerald. **Flat Types & Construction:** 2-room Flexi, 4-room, and 5-room flats are offered, built using Prefabricated Prefinished Volumetric Construction (PPVC). Flats include full floor finishes, internal doors, and sanitary fittings. **Eco-Friendly Features:** Includes separate chutes for recyclable waste, regenerative lifts, bicycle stands, parking for car-sharing, sustainable products, and Active, Beautiful, Clean Waters (ABC Waters) design features. **Smart Features:** Incorporates Smart Lighting in common areas and a Smart Pneumatic Waste Conveyance System for waste disposal. **2-Room Flexi Flat Details:** - Available on 99-year or short-lease. - Finishes: Vinyl strip flooring in living/dining and bedroom; floor tiles in kitchen, household shelter, bathroom; wall tiles in kitchen and bathroom. - Includes a sliding partition/door for the bedroom and a folding bathroom door. - Sanitary fittings: wash basin with tap mixer, shower set with bath/shower mixer, and water closet suite. - Grab bars are provided for short-lease 2-room Flexi flats. - Size: 47 sqm, offering flexible space for dining, study, or an extra bed. **4- and 5-Room Flat Details:** - Finishes: Vinyl strip flooring in bedrooms; floor tiles in living/dining, household shelter, bathrooms, kitchen, service yard; wall tiles in kitchen and bathrooms. - Includes internal doors for bedrooms and a folding door for bathrooms. - Sanitary fittings: wash basin with tap mixer, shower set with bath/shower mixer, and water closet suite. **Optional Component Scheme (OCS):** Elderly buyers of short-lease 2-room Flexi flats can opt for elderly-friendly fittings under OCS, with the cost added to the flat price.

6

2-Room Flexi Flat Types: Floor Plans & Layouts

Floor plans for 2-Room Flexi flat types are displayed, including suggested furniture layouts. 2-Room Flexi (Type 1) features: - Approximate floor area: 40 sqm (inclusive of 38 sqm internal floor area and air-con ledge). - Layout includes: 1 Bedroom, Living/Dining area, Kitchen, Bath/WC, Household Shelter, and Air-Con Ledge. 2-Room Flexi (Type 2) features: - Approximate floor area: 49 sqm (inclusive of 47 sqm internal floor area and air-con ledge). - Layout includes: 1 Bedroom, Living/Dining area, Kitchen, Bath/WC, Household Shelter, and Air-Con Ledge. - One variant shows an 'Optional Folding Door for Short Lease'. - These 47 sqm 2-room Flexi flats offer a flexible space that can be adapted for dining, a study, or an extra bed, catering to diverse lifestyle needs.

7

4-Room and 5-Room Flat Floor Plans

Floor plans for two flat types are displayed: 4-Room Flat: - Approximate total floor area: 94 sqm. - Internal floor area: 91 sqm, plus an air-con ledge. - Layout includes: Main Bedroom, two additional Bedrooms, Living/Dining area, Kitchen, two Bath/WC, Household Shelter, and Service Yard. - Suggested furniture layout is provided. 5-Room Flat: - Approximate total floor area: 113 sqm. - Internal floor area: 110 sqm, plus an air-con ledge. - Layout includes: Main Bedroom, two additional Bedrooms, Living/Dining area, Kitchen, two Bath/WC, Household Shelter, Service Yard, and a 'Suggested Study' area. - Suggested furniture layout is provided.

8

HDB BTO Site Plan: Block Layouts, Unit Mix, and Amenities

Master plan for a HDB BTO project featuring five residential blocks: 960A, 961A, 961B, 961C, and 962A. Block details and unit counts: - Block 960A: 13 storeys, 46 4-Room, 36 5-Room (82 total units). - Block 961A: 10/14 storeys, 39 2-Room Flexi (Type 1), 13 2-Room Flexi (Type 2), 44 4-Room, 48 5-Room (144 total units). - Block 961B: 12/17 storeys, 113 4-Room, 59 5-Room (172 total units). - Block 961C: 12/17 storeys, 96 4-Room, 69 5-Room (165 total units). - Block 962A: 17 storeys, 94 2-Room Flexi (Type 2), 61 4-Room, 32 5-Room (187 total units). All blocks have lifts opening at every storey, and the project offers a total of 750 units. Amenities include a 7-storey multi-storey car park (Block 960) with a roof garden, a Childcare Centre (Block 961C), Precinct Pavilions, Drop-Off Porches, Shelters, Children Playgrounds, Adult Fitness Stations, and Elderly Fitness Stations. The site is bordered by Bedok Reservoir and Bedok Canal, with future reserved sites for residential and health/medical care. All proposed developments are subject to change and planning approval.

9

Residential Block Unit Distribution and Amenities Overview

This overview details unit distribution and amenities for Blocks 960A, 961B, 961A, and 961C. **Block 960A:** Floors: 1 to 13. Unit types: 4-Room (yellow) and 5-Room (light green). Stacks: 400 (5-Room), 402 (4-Room), 404 (5-Room), 406 (5-Room), 408 (4-Room), 410 (4-Room), 412 (5-Room). **Block 961B:** Floors: 1 to 17. Unit types: 4-Room (yellow) and 5-Room (light green). Stacks: 438 (5-Room), 440 (4-Room), 442 (5-Room), 444 (4-Room), 446 (4-Room), 448 (4-Room), 450 (4-Room), 452 (4-Room), 454 (4-Room), 456 (5-Room), 458 (5-Room), 460 (4-Room). Amenities: Accessible Roof Garden on level 12 above stacks 440 and 442. Future Amenities/Facilities on ground level (level 1) below stacks 448 to 454. **Block 961A:** Floors: 1 to 14. Unit types: 2-Room Flexi (Type 1 - pink), 2-Room Flexi (Type 2 - red), 4-Room (yellow), and 5-Room (light green). Stacks: 414 (5-Room), 416 (5-Room), 418 (4-Room), 420 (4-Room), 422 (5-Room), 424 (5-Room), 426 (4-Room), 428 (2-Room Flexi Type 1), 430 (2-Room Flexi Type 1), 432 (2-Room Flexi Type 2), 434 (2-Room Flexi Type 2), 436 (4-Room). Amenities: Accessible Roof Garden on level 11 above stacks 416 and 420. Future Amenities/Facilities on ground level (level 1) below stacks 422 to 426. **Block 961C:** Floors: 1 to 17. Unit types: 4-Room (yellow) and 5-Room (light green). Stacks: 462 (4-Room), 464 (5-Room), 466 (5-Room), 468 (4-Room), 470 (4-Room), 472 (4-Room), 474 (4-Room), 476 (5-Room), 478 (5-Room), 480 (5-Room), 482 (4-Room), 484 (5-Room). Amenities: Childcare Centre on ground level (level 1) below stacks 468 to 472. Accessible Roof Garden on level 12 above stacks 476, 478, and 480.

10

Block 962A: Unit Availability Chart, Storeys 1-17

Unit availability chart for Block 962A, detailing flat types across 17 storeys (1st to 17th) and 12 unit stacks (486, 488, 490, 492, 494, 496, 498, 500, 502, 504, 506, 508). Flat types and their corresponding unit stacks: - 2-Room Flexi (Type 2): Units 498, 500, 502, 504, 506, 508. - 4-Room: Units 486, 488, 494, 496. - 5-Room: Units 490, 492. Most units are available from the 1st to 17th storey. Specific unavailable units (marked as empty cells) include: - Unit 486: 9th storey. - Unit 488: 1st storey. - Unit 494: 1st storey. - Unit 502: 1st storey. - Unit 504: 1st storey. - Unit 508: 1st and 2nd storeys.

11

Block 960A: 2nd Storey Floor Plans and Common Areas

2nd storey floor plan for Block 960A, detailing residential units and common facilities. Units at and above the 10th storey are situated higher and above the main roof garden of Block 960. Unit types and numbers on this floor: - 5-Room flats: Units 404, 406, 412. These units include a main bedroom, two additional bedrooms, living/dining area, kitchen, household shelter, two bathrooms, service yard, air-con ledge, and a suggested study area. - 4-Room flats: Units 400, 402. These units feature a main bedroom, two additional bedrooms, living/dining area, kitchen, household shelter, two bathrooms, service yard, and air-con ledge. Common facilities include a common corridor, lift lobby with two lifts, a wash area, a centralised refuse chute, and a chute for recyclable refuse. The plan also indicates roof areas and a trellis specific to the 2nd storey. Windows marked 'W1' are three-quarter height (approx. 550mm high parapet wall).

12

Block 960A: 3rd-13th Storey Floor Plans

Floor plans for Block 960A, covering levels 3 to 13. Units at and above the 10th storey are higher and located above the main roof garden of Block 960. Unit types and configurations: - 5-Room flats (Units 404, 406, 412): Each includes a Living/Dining area, Kitchen, Household Shelter, Service Yard, Air-con Ledge, two Bath/WCs, three Bedrooms (Main Bedroom + two others), and a suggested study area. - 4-Room flats (Units 400, 402, 408, 410): Each includes a Living/Dining area, Kitchen, Household Shelter, Service Yard, Air-con Ledge, two Bath/WCs, and three Bedrooms (Main Bedroom + two others). Common facilities include a central lift lobby with two lifts, a staircase, a wash area, a centralised refuse chute, and a separate chute for recyclable refuse. A linkbridge is present at the 9th storey only, and a roof at the 10th storey only. Windows marked 'W1' are three-quarter height (approx. 550mm high parapet wall); otherwise, windows are standard height.

13

Block 961A: 2nd to 10th Storey Floor Plan

Floor plan for Block 961A covering levels 2 through 10. Unit types available: - 4-Room flats: Units 418, 420, 426, 436. Each features 3 bedrooms, living/dining, kitchen, household shelter, 2 bathrooms, service yard, and air-con ledge. - 5-Room flats: Units 414, 416, 422, 424. Each features 3 bedrooms, living/dining, kitchen, household shelter, 2 bathrooms, service yard, and air-con ledge. Units 414, 416, 422, 424 include a suggested study area. - 2-Room Flexi (Type 1): Units 428, 430, 432. Each features 1 bedroom, living/dining, kitchen, household shelter, 1 bathroom, service yard, and air-con ledge. - 2-Room Flexi (Type 2): Unit 434. Features 1 bedroom, living/dining, kitchen, household shelter, 1 bathroom, service yard, and air-con ledge. The block includes a common corridor, lift lobby with two lifts, and stairs. Centralised refuse chute and chute for recyclable refuse are indicated. Specific features for the 2nd storey include a wash area, roof access for units 426 and 436, and trellises for units 414 and 436. Window type W1 indicates a three-quarter height window with an approximate 550mm high parapet wall.

14

Block 961A: 11th Storey Floor Plan

Floor plan for Block 961A, specifically for the 11th storey. Unit types available on this floor include: - 5-Room flats: Units 414, 422, 424. These feature three bedrooms (including a main bedroom), two bathrooms, living/dining area, kitchen, household shelter, service yard, and air-con ledge. Units 414, 422, and 424 also include a 'Suggested Study' area. - 4-Room flats: Units 426, 436. These comprise three bedrooms (including a main bedroom), two bathrooms, living/dining area, kitchen, household shelter, service yard, and air-con ledge. - 2-Room Flexi (Type 1): Units 428, 430, 432. Each has one bedroom, one bathroom, living/dining area, kitchen, household shelter, and air-con ledge. - 2-Room Flexi (Type 2): Unit 434. This unit includes one bedroom, one bathroom, living/dining area, kitchen, household shelter, service yard, and air-con ledge. Common facilities shown are a lobby with lifts, common corridors, a centralised refuse chute, and a chute for recyclable refuse. A wash area is also indicated. Two roof gardens are located on the 11th storey, accessible from the 12th storey. Windows marked 'W1' are three-quarter height (approx. 550mm high parapet wall), while others are standard height.

15

Block 961A: 12th Storey Floor Plan

12th storey floor plan for Block 961A. Unit types available on this floor: - 5-Room flats: Units 414, 422, 424. These units feature three bedrooms (including a main bedroom) and a suggested study area in some layouts. - 4-Room flats: Units 426, 436. These units include three bedrooms (including a main bedroom). - 2-Room Flexi (Type 1) flats: Units 428, 430, 432. These units have one bedroom. - 2-Room Flexi (Type 2) flat: Unit 434. This unit has one bedroom. All units include a kitchen, living/dining area, household shelter, service yard, bath/WC, and air-con ledge. The floor features a common corridor, a lift lobby with two lifts, and centralized refuse and recyclable refuse chutes. Two roof gardens are located on the 11th storey, accessible from the 12th storey. Windows marked 'W1' are three-quarter height (approx. 550mm high parapet wall); all others are standard height.

16

Block 961A: 13th-14th Storey Floor Plans with Multiple Unit Types

Floor plan for Block 961A covering levels 13 and 14. Unit types available: - 5-Room flats (Units 414, 422, 424): Feature a main bedroom, two additional bedrooms, living/dining area, kitchen, household shelter, service yard, and two bathrooms. Units 414 and 422 include a suggested study area. - 4-Room flats (Units 426, 436): Feature a main bedroom, one additional bedroom, living/dining area, kitchen, household shelter, service yard, and two bathrooms. - 2-Room Flexi (Type 1) flats (Units 428, 430, 432): Feature one bedroom, living/dining area, kitchen, household shelter, and one bathroom. - 2-Room Flexi (Type 2) flat (Unit 434): Features one bedroom, living/dining area, kitchen, household shelter, and one bathroom. The floor layout includes a central lobby with lifts, common corridors, a wash area, and centralised refuse chutes. All units are equipped with an air-con ledge. Windows marked 'W1' are three-quarter height (approx. 550mm high parapet wall), while others are standard height.

17

Block 961B: 2nd-12th Storey Floor Plan with 4- and 5-Room Units

Floor plan for Block 961B, covering levels 2 through 12. The layout features a central lift lobby with three lifts, surrounded by common corridors, a wash area, and centralised/recyclable refuse chutes. Unit types available on these floors include: - 4-Room flats: Units 440, 444, 446, 448, 450, 452, 454, 460. These units typically comprise a living/dining area, kitchen, household shelter, service yard, two bathrooms, and three bedrooms (one main, two common). - 5-Room flats: Units 438, 442, 456, 458. These units include a living/dining area, kitchen, household shelter, service yard, two bathrooms, three bedrooms (one main, two common), and a suggested study area. Windows marked 'W1' are three-quarter height (approx. 550mm high parapet wall); all other windows are standard height. The coloured areas indicate the flat layout but not the exact boundary.

18

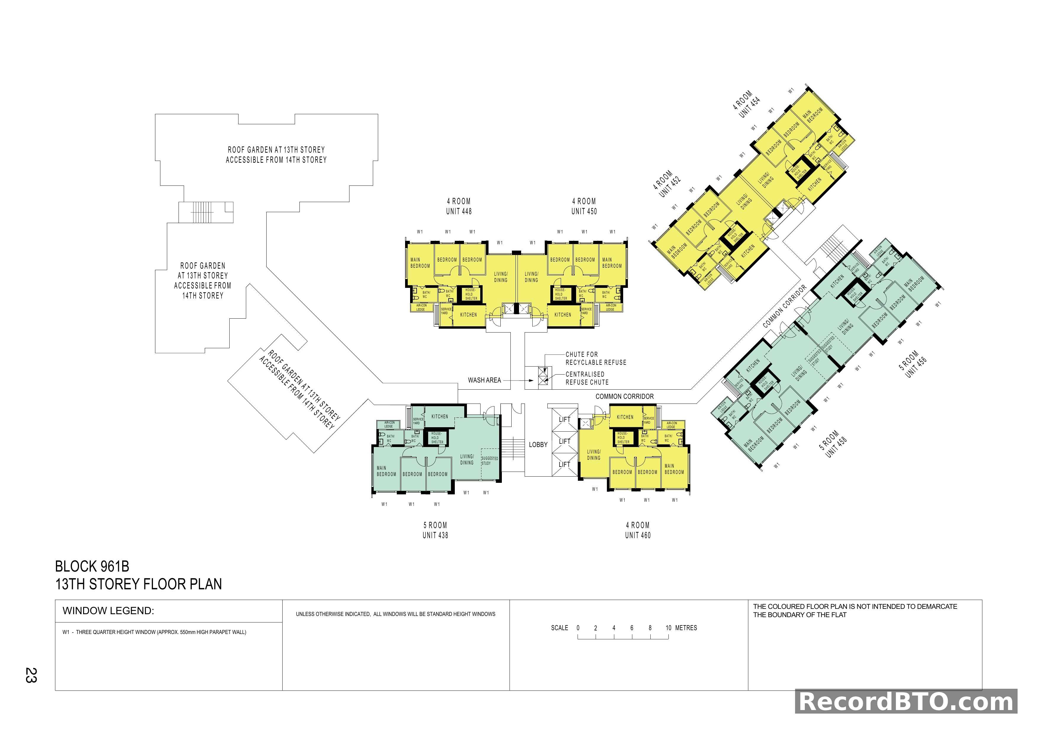
Block 961B: 13th Storey Floor Plan with Roof Gardens

13th storey floor plan for Block 961B, featuring residential units and roof gardens. Unit types available on this floor: - 4-Room flats: Units 448, 450, 452, 454, 460. Each includes a main bedroom, two common bedrooms, living/dining area, kitchen, household shelter, two bathrooms, service yard, and air-con ledge. - 5-Room flats: Units 438, 456, 458. Each includes a main bedroom, two common bedrooms, living/dining area, kitchen, household shelter, two bathrooms, service yard, air-con ledge, and a suggested study area (for units 438, 456, 458). Common facilities include a central lobby with lifts, common corridors, a wash area, and a centralised refuse chute for recyclable refuse. Three roof gardens are located on the 13th storey, accessible from the 14th storey. Windows marked 'W1' are three-quarter height (approx. 550mm high parapet wall); otherwise, windows are standard height. A scale bar indicates 0 to 10 metres.

19

Block 961B: 14th Storey Floor Plan with Unit Layouts

14th storey floor plan for Block 961B. Unit types available: - 4-Room flats: Units 448, 450, 452, 454, 460. Each includes a main bedroom, two additional bedrooms, living/dining area, kitchen, household shelter, service yard, two bathrooms, and an air-con ledge. - 5-Room flats: Units 438, 456, 458. Each includes a main bedroom, two additional bedrooms, living/dining area, kitchen, household shelter, service yard, two bathrooms, an air-con ledge, and a suggested study area. The floor features a central lobby with two lifts, a common corridor, a wash area, and a centralised refuse chute. Three roof gardens, located on the 13th storey, are accessible from this 14th storey level. Windows marked 'W1' are three-quarter height (approx. 550mm high parapet wall), with all other windows being standard height unless specified.

20

Block 961B: 15th-17th Storey Floor Plan

Floor plan for Block 961B covering the 15th to 17th storeys. Unit types available: - 4-Room flats: Units 448, 450, 452, 454, 460. Each includes a main bedroom, two additional bedrooms, living/dining area, kitchen, household shelter, two bathrooms (one with WC, one with bath/WC), service yard, and air-con ledge. - 5-Room flats: Units 438, 456, 458. Each includes a main bedroom, two additional bedrooms, living/dining area, kitchen, household shelter, two bathrooms (one with WC, one with bath/WC), service yard, air-con ledge, and a suggested study area. Common facilities on this floor include a central lobby with lifts, a common corridor, a wash area, and a centralised refuse chute for recyclable and general refuse. Window legend indicates 'W1' as a three-quarter height window (approximately 550mm high parapet wall). All other windows are standard height unless otherwise indicated. The scale bar ranges from 0 to 10 metres.

21

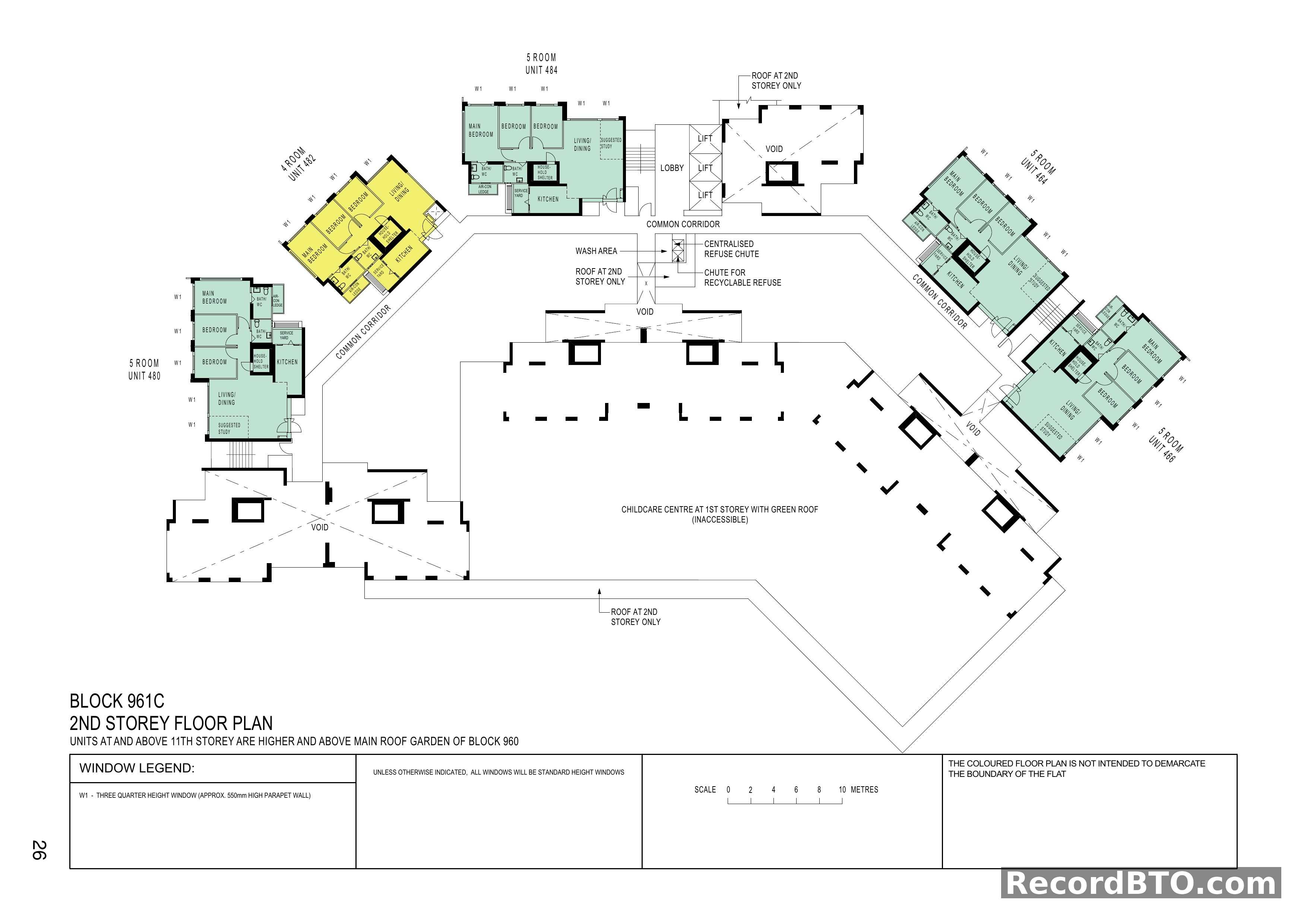
Block 961C: 2nd Storey Floor Plan

2nd storey floor plan for Block 961C. Unit types and configurations: - 4-Room flat: Unit 482 (3 bedrooms, living/dining, kitchen, household shelter, 2 bathrooms, service yard). - 5-Room flats: Units 480, 484, 464, 466 (3 bedrooms, living/dining, kitchen, household shelter, 2 bathrooms, service yard, suggested study area). Common facilities include a central lobby with multiple lifts, common corridors, a wash area, a centralised refuse chute, and a chute for recyclable refuse. The plan indicates roof areas at the 2nd storey and an inaccessible green roof for a childcare centre located on the 1st storey. Units at and above the 11th storey are higher and above the main roof garden of Block 960. Windows marked 'W1' are three-quarter height (approx. 550mm high parapet wall), while others are standard height. A scale bar indicates measurements up to 10 metres.

22

Block 961C: 3rd-12th Storey Floor Plans for 4- and 5-Room Units

Floor plan for Block 961C, covering the 3rd to 12th storeys. The floor features 11 units: five 5-Room units (480, 478, 484, 464, 466) and six 4-Room units (482, 476, 474, 472, 470, 468). All units include a main bedroom, additional bedrooms, living/dining area, kitchen, household shelter, service yard, air-con ledge, and bathrooms. The 5-Room units also feature a suggested study area. Common facilities include a lobby with three lifts, a wash area, and centralized refuse chutes. A window legend indicates W1 as a three-quarter height window (approx. 550mm high parapet wall), with all other windows being standard height. Units on the 11th storey and above are situated higher than the main roof garden of Block 960. A metric scale bar is provided.

23

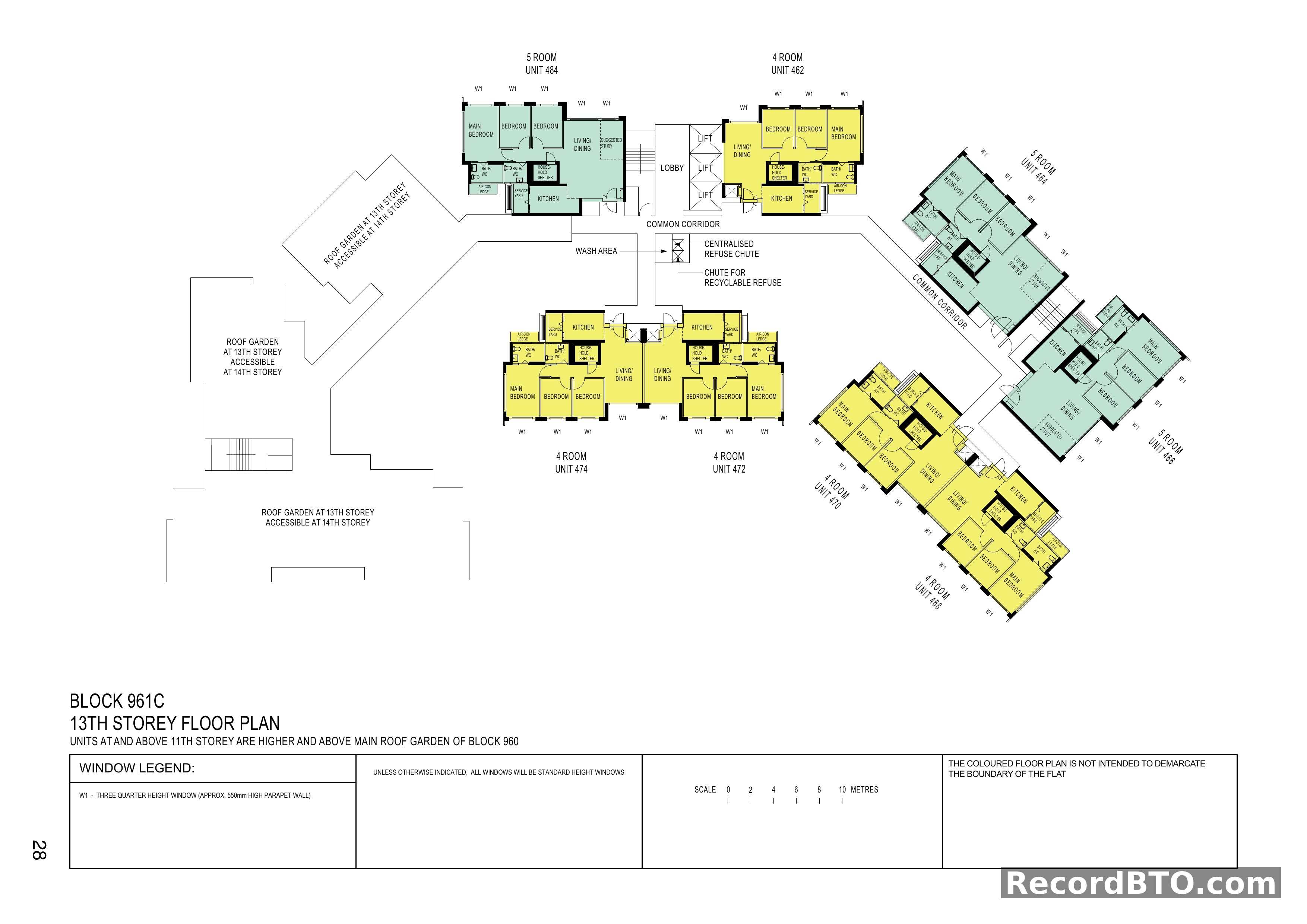
Block 961C: 13th Storey Floor Plan with Unit Layouts

13th storey floor plan for Block 961C, featuring units higher than and above the main roof garden of Block 960. Unit types available on this floor: - 5-Room flats: Units 484, 464, 466. Each includes a main bedroom, two additional bedrooms, living/dining area, suggested study area, kitchen, household shelter, service yard, air-con ledge, and two bathrooms. - 4-Room flats: Units 462, 474, 472, 470, 468. Each includes a main bedroom, two additional bedrooms, living/dining area, kitchen, household shelter, service yard, air-con ledge, and two bathrooms. The floor features a central lobby with three lifts, a common corridor, a wash area, and centralized refuse and recyclable refuse chutes. Three distinct roof gardens are located on the 13th storey, accessible from the 14th storey. Windows marked 'W1' are three-quarter height (approx. 550mm high parapet wall); otherwise, windows are standard height.

24

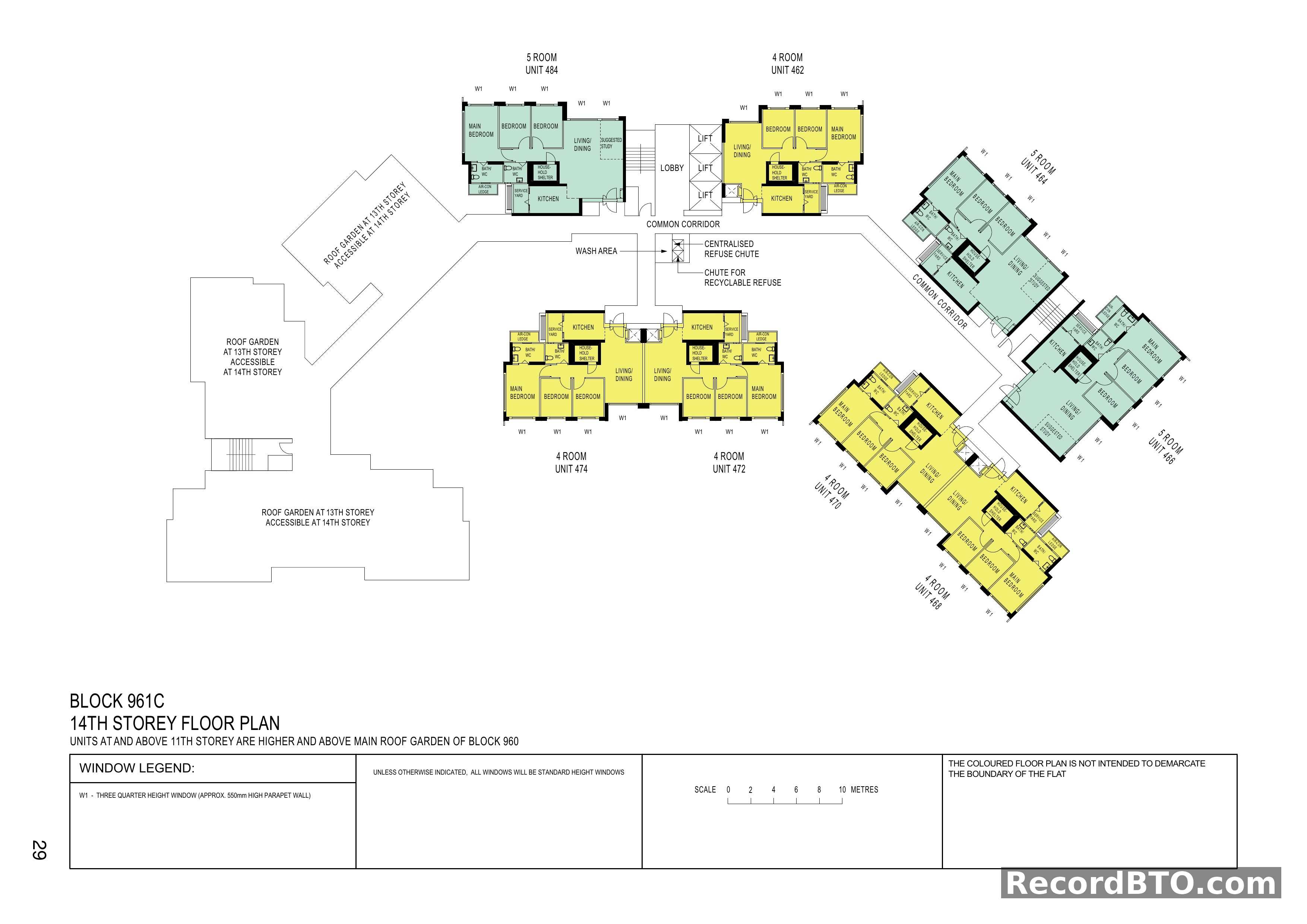
Block 961C: 14th Storey Floor Plan

14th storey floor plan for Block 961C, featuring eight residential units. Unit types and distribution: - 5-Room units: Units 484, 464, 466 (3 units). These include a main bedroom, two additional bedrooms, and a suggested study area. - 4-Room units: Units 462, 474, 472, 470, 468 (5 units). These include a main bedroom and two additional bedrooms. All units feature a living/dining area, kitchen, household shelter, service yard, air-con ledge, and two bathrooms (Bath/WC). Common facilities on this floor include a central lift lobby, common corridors, a wash area, and centralized refuse chutes. The plan also indicates roof gardens located on the 13th storey, accessible from the 14th storey. Units on this level and above the 11th storey are noted to be higher than the main roof garden of Block 960. Window type W1 denotes three-quarter height windows (approx. 550mm high parapet wall).

25

Block 961C: 15th-17th Storey Floor Plans

Floor plan for Block 961C, covering the 15th to 17th storeys. Units on these floors are noted to be higher than the main roof garden of Block 960. The floor features eight units: - Three 5-Room units (Units 484, 464, 466), each with a main bedroom, two additional bedrooms, living/dining area, kitchen, household shelter, service yard, two bathrooms, air-con ledge, and a suggested study area. - Five 4-Room units (Units 462, 474, 472, 470, 468), each with a main bedroom, two additional bedrooms, living/dining area, kitchen, household shelter, service yard, two bathrooms, and an air-con ledge. Common facilities include a lobby with three lifts, a common corridor, a wash area, a centralised refuse chute, and a chute for recyclable refuse. Window type W1 indicates a three-quarter height window (approx. 550mm high parapet wall); otherwise, windows are standard height. The scale indicates measurements in metres.

26

Block 962A: 2nd Storey Floor Plan

Floor plan for Block 962A, specifically for the 2nd storey. Unit types and numbers shown: - 5-Room: Unit 490, Unit 492 - 4-Room: Unit 494, Unit 496 - 2-Room Flexi (Type 2): Unit 498, Unit 500, Unit 506, Unit 508 Each 5-Room unit includes a main bedroom, two additional bedrooms, living/dining area, kitchen, household shelter, bath/WC, service yard, and air-con ledge. Unit 492 also features suggested study areas. Each 4-Room unit includes a main bedroom, two additional bedrooms, living/dining area, kitchen, household shelter, bath/WC, service yard, and air-con ledge. Each 2-Room Flexi (Type 2) unit includes a bedroom, living/dining area, kitchen, household shelter, and bath/WC. Common facilities on this floor include lifts, a lobby, a wash area, and centralized refuse chutes for general and recyclable waste. Common corridors connect all units. Several areas are designated as "Roof at 2nd Storey Only" and "Void." Windows marked "W1" are three-quarter height (approx. 550mm high parapet wall); all other windows are standard height.

27

Block 962A: 3rd-8th & 10th-17th Storey Floor Plan

Floor plan for Block 962A, covering the 3rd to 8th and 10th to 17th storeys. The floor features 12 units comprising: - Two 5-Room units (490, 492), each with three bedrooms, two bathrooms, and a household shelter. Unit 490 includes a suggested study area. - Four 4-Room units (494, 496, 488, 486), each with three bedrooms, two bathrooms, and a household shelter. - Six 2-Room Flexi (Type 2) units (498, 500, 508, 506, 504, 502), each with one bedroom, one bathroom, and a household shelter. All units include a kitchen, living/dining area, service yard, and air-con ledge. Common facilities include a central lift lobby with three lifts, a centralized refuse chute, a recyclable refuse chute, and a wash area. Windows marked 'W1' are three-quarter height (approx. 550mm high parapet wall); others are standard height.

28

Block 962A: 9th Storey Floor Plan with Multiple Unit Types

9th storey floor plan for Block 962A, featuring a mix of residential unit types. Unit types and their features: - 5-Room (Units 490, 492): Includes a main bedroom, two additional bedrooms, living/dining area, kitchen, household shelter, two bathrooms, service yard, and air-con ledge. Both units show suggested study areas. - 4-Room (Units 486, 494, 496): Comprises a main bedroom, two additional bedrooms, living/dining area, kitchen, household shelter, two bathrooms, service yard, and air-con ledge. - 2-Room Flexi (Type 2) (Units 498, 500, 502, 504, 506, 508): Features one bedroom, living/dining area, kitchen, household shelter, one bathroom, service yard, and air-con ledge. Common facilities on this floor include a central lift lobby with multiple lifts, common corridors, a centralized refuse chute, a separate chute for recyclable refuse, and a wash area. A linkbridge is present only on this 9th storey. Windows marked 'W1' are three-quarter height (approx. 550mm high parapet wall).

29

General Specifications for 2-Room Flexi (Short Lease) Units

General specifications for 2-room Flexi (short lease) units in Tampines GreenEmerald. Foundation: Piled foundations. Structure: Reinforced concrete structural framework with reinforced concrete slabs. Roof: Reinforced concrete roof slab with precast concrete secondary roofing. Walls: Constructed with reinforced concrete, precast panels, drywall partition system, or precast lightweight concrete partitions. Windows: Aluminium framed with tinted glass. Doors: Laminated timber door and metal gate for entrance; laminated UPVC sliding partition/door for bedroom; laminated UPVC folding door (optional) for living/dining; laminated UPVC folding door for bathroom/WC; metal door for household shelter. Finishes: - Living/Dining/Bedroom Floor: Vinyl strip flooring with laminated UPVC skirting. - Kitchen/Bathroom/WC/Household Shelter Floor: Glazed porcelain tiles. - Kitchen/Bathroom/WC Walls: Glazed porcelain tiles. - Ceilings/Other Walls: Skim coated or plastered and painted. Fittings: Quality locksets, water closet suite, clothes drying rack, grab bars, wash basin with tap mixer, bath/shower mixer with shower set. Optional fittings include built-in kitchen cabinets (with induction hob, cooker hood, sink, dish drying rack), built-in wardrobe, window grilles, water heater, and lighting. Services: Gas services, concealed water supply pipes, exposed sanitary stacks at air-con ledge, concealed electrical wiring for lighting, power points (including water heater and air-conditioning points), television points, and data points. Important Notes: 1. Household Shelter is designed as a civil defence shelter and cannot be hacked, drilled, altered, or removed. 2. Laminated UPVC door frames are provided for all bedroom and bathroom/WC door openings. 3. Unused or unoccupied open spaces adjacent to units are not available for purchase or enclosure. 4. Details of services (gas, water, sanitary, electrical, TV, data) are not indicated on the plans.

30

General Specifications for 2-Room Flexi, 4-Room, and 5-Room Flats

General specifications for 2-room Flexi, 4-room, and 5-room HDB BTO flats. Construction details include: - Piled foundations, reinforced concrete structural framework, and reinforced concrete roof slab. - External and internal walls are constructed with reinforced concrete, precast panels, drywall partition systems, or precast lightweight concrete partitions. - Windows are aluminium framed with tinted glass. Door types vary by area: - Entrance: laminated timber door and metal gate. - Bedroom: laminated UPVC door. - 2-room Flexi (where applicable): laminated UPVC sliding partition/door. - Bathroom/WC: laminated UPVC folding door. - Household Shelter: metal door. - Service Yard: aluminium framed door with glass. Finishes include: - Living/Dining floors: polished porcelain tiles with laminated UPVC skirting. - Bedroom floors: vinyl strip flooring with laminated UPVC skirting. - Kitchen/Bathroom/WC, Household Shelter, and Service Yard floors: glazed porcelain tiles. - Kitchen/Bathroom/WC walls: glazed porcelain tiles. - Ceilings/Other walls: skim coated or plastered and painted. Standard fittings and services provided: - Quality locksets, water closet suite, clothes drying rack, wash basin with tap mixer, bath/shower mixer with shower set. - Gas services, concealed water supply pipes, exposed sanitary stacks, concealed electrical wiring (lighting, power, water heater, air-conditioning points), television points, and data points. Important notes: - Household Shelter is a civil defence shelter and cannot be hacked, drilled, altered, or removed. - Laminated UPVC door frames are provided for all Bedroom and Bathroom/WC door openings. - Unused/unoccupied open spaces in front of or nearby/adjacent to flat units are not available for purchase or enclosure. - Detailed service layouts (e.g., gas pipes, water pipes, sanitary stacks, electrical wiring, television points, data points) are not indicated on the plans. - For renovation rules, visit the HDB website at www.hdb.gov.sg.

31

HDB BTO Brochure: General Disclaimer and Usage Terms

This page presents the general disclaimer for an HDB BTO property brochure. Key points include: - HDB retains copyright for all information, maps, and plans. - Content is for general information only, not an offer or contract, and not factual representations. - Visual representations are artistic impressions, not factual representations. - Project information (dimensions, areas, plans, colors, descriptions, specifications) is subject to change or review without notice. - HDB may change project aspects (amenities, facilities, colors, design features, specifications) without notice. - No alterations to flat layout or specifications will be entertained for individual needs. - HDB does not warrant accuracy and is not responsible for damages from reliance on or errors in the information. - Floor areas are scaled strata areas, subject to final survey. - Surrounding land use and proposed facilities are indicative and subject to change, including ancillary uses under URA guidelines. - HDB reserves the right to use void decks, car parks, common property (e.g., precinct pavilions), and standalone community buildings for future amenities (child care, elderly facilities, education, residents' committee, day activity centers), commercial facilities (shops, eating houses), mechanical/electrical rooms, and other deemed fit facilities. - The brochure is not intended to provide full information; readers are advised to contact relevant authorities directly for complete details. The copyright notice indicates 'November 2020'.

32

Optional Component Scheme for 2-Room Flexi Flats

This page outlines the Optional Component Scheme (OCS) for 2-Room Flexi flats in Tampines Greenemerald. These flats are offered with either a 99-year lease or a short-lease. All 2-Room Flexi flats include: - Floor finishes in the living/dining room, bedroom, kitchen, household shelter, and bathroom. - Wall tiles in the kitchen and bathroom. - A sliding partition/door for the bedroom and a folding bathroom door. - Sanitary fittings, including a wash basin with tap mixer, a shower set with bath/shower mixer, and a water closet suite. For short-lease flats, grab bars will be installed to assist elderly buyers. Visuals show examples of a shower set, a wash basin, and grab bars. Further details on the OCS package for short-lease 2-room Flexi flats are on the next page.

33

Optional Component Scheme for 2-Room Flexi Flats

This brochure page details the Optional Component Scheme (OCS) for short-lease 2-Room Flexi flats in Tampines Greenemerald, designed for elderly buyers seeking move-in ready homes. Elderly Friendly Fittings include: - Built-in kitchen cabinets with induction hob, cooker hood, kitchen sink, tap, and dish drying rack. The induction hob is highlighted for safety and ease of cleaning. - An option for lower kitchen counter height: Default (Option A) has bottom cabinet at 850mm and top at 1500mm; Option B, for wheelchair users, has bottom cabinet at 800mm and top at 1200mm. - Kitchen cabinets with mobile units to provide knee space for wheelchair users. - Built-in bedroom wardrobe with a lower clothes hanging rod. - Folding door for the flexible space next to the bedroom. Other Fittings provided are: - Window grilles for safety and security. - Mirror, toilet roll holder, lighting, and a water heater. The cost of this OCS package will be added to the selling price of the selected flat. All displays are conceptual and subject to change. Dated November 2020.

Tip: Click on any page to jump directly to that brochure page

Photo Gallery

33 photos

HDB BTO Sales Launch Cover Page

HDB BTO Sales Launch Cover Page

HDB BTO Project: Artist's Impression & Overview

HDB BTO Project: Artist's Impression & Overview

Artist's Impression and Development Facilities Overview

Artist's Impression and Development Facilities Overview

Tampines Locality Map and Development Information

Tampines Locality Map and Development Information

Property Features, Unit Types, and Finishes

Property Features, Unit Types, and Finishes

Similar Projects in Tampines