Skip to main content
Telok Blangah Beacon
Completed
Telok Blangah Beacon HDB Sales Launch
Artist impression
Telok Blangah Beacon Site Plan with Amenities Overview
Site plan
Telok Blangah Beacon - 4 Room Floor Plan
Floor plan
Telok Blangah Beacon - Bukit Merah Location Map
Location map
Telok Blangah Beacon HDB Sales Launch
Artist impression

Telok Blangah Beacon

Telok Blangah

Project Details

No of Blocks
7
Highest Floor
14
Tenure
99-year
Developer
Launch Date
May 2021
Expected TOP
To be announced
Total Units
610
BTO Type
standard

Site Plan

Detailed layout and block arrangement

Telok Blangah Beacon Site Plan
Click to zoom

Floor Plans

Browse floor plans by unit type and block

Telok Blangah Beacon - 4 Room Floor Plan

Telok Blangah Beacon - 4 Room Floor Plan

4-room
Telok Blangah Beacon Block 78C Unit Distribution

Telok Blangah Beacon Block 78C Unit Distribution

3-room 4-room

Blocks: 78C

Block 78C Floor Plan (4th to 38th Storey)

Block 78C Floor Plan (4th to 38th Storey)

3-room 4-room

Blocks: 78C

Quick Info

Town
Telok Blangah
Tenure
99-year

Project Brochure

14 pages

Page 1 / 14
Brochure Page 1

Table of Contents

1

Telok Blangah Beacon HDB Sales Launch

This image serves as a promotional page for HDB's Telok Blangah Beacon sales launch in May 2021. It features a prominent artist's impression of the modern high-rise residential development, complete with surrounding roads, vehicles, and lush greenery. In the foreground, a smiling couple, presumably future homeowners, adds a personal touch. The project's stylized logo, 'TELOK BLANGAH BEACON', is displayed at the top.

2

Telok Blangah Beacon - Artist's Impression

An artist's impression of Telok Blangah Beacon, a 38-storey residential development featuring 3- and 4-room flats. The tall building integrates commercial facilities like a community plaza, supermarket, market, and hawker centre on its lower floors, aiming to add vibrancy to the existing neighborhood centre.

3

Telok Blangah Beacon - Artist Impressions

This page features artist's impressions of the Telok Blangah Beacon development. The left image showcases common recreational areas, including a roof garden, children's playground, adult/elderly fitness stations, and trellised seating. The right image depicts the multi-storey car park at Block 78A and the residential towers, highlighting the public accessibility of the facilities.

4

IMPORTANT NOTES

This page from an HDB BTO brochure contains important notes regarding the planning of HDB precincts, including provisions for future amenities and facilities such as childcare centres, elderly-related services, and commercial spaces. It also states that information provided in the brochure about land use and facilities is indicative and subject to review. A smiling couple is featured on the right side of the page, likely representing prospective homeowners.

5

Telok Blangah Beacon - Bukit Merah Location Map

This image is a detailed location map for the Telok Blangah Beacon development in Bukit Merah. It highlights key amenities and infrastructure in the vicinity, including MRT stations like Labrador Park, Telok Blangah, and Harbourfront. Major roads, parks such as Telok Blangah Hill Park and Mount Faber Park, schools, community centers, and places of worship are clearly marked. The map also indicates proposed developments and MRT lines under construction, providing a comprehensive overview of the area's connectivity and future growth. A legend explains map symbols, and notes offer disclaimers regarding information accuracy.

6

Telok Blangah Beacon Features, Finishes and Specifications

This brochure page outlines the eco-friendly features of Telok Blangah Beacon, including separate recycling chutes, regenerative lifts, bicycle stands, sustainable products, and ABC Waters design. It details the standard finishes and fittings for 3- and 4-room flats, introduces smart lighting solutions for common areas, and explains the Optional Component Scheme (OCS) for buyers to customize their flats.

7

3-Room Floor Plan & Flexible Kitchen Layout Ideas

This page presents a 3-room floor plan for Telok Blangah Beacon, detailing its approximate floor area and innovative layout ideas. It highlights the flexibility of the open kitchen concept, allowing homeowners to customize by adding partitions. Examples include separating utility from kitchen, defining dry and wet kitchen areas, or partitioning the kitchen from the living/dining space, illustrated with artist's impressions.

8

Telok Blangah Beacon - 4 Room Floor Plan

This image displays the floor plan for a 4-room unit at Telok Blangah Beacon. It features a suggested furniture layout for the living/dining area, kitchen, service yard, household shelter, two common bedrooms, a main bedroom, and two bathrooms. The approximate total floor area is 93 square meters, including an internal floor area of 90 sqm and an air-con ledge.

9

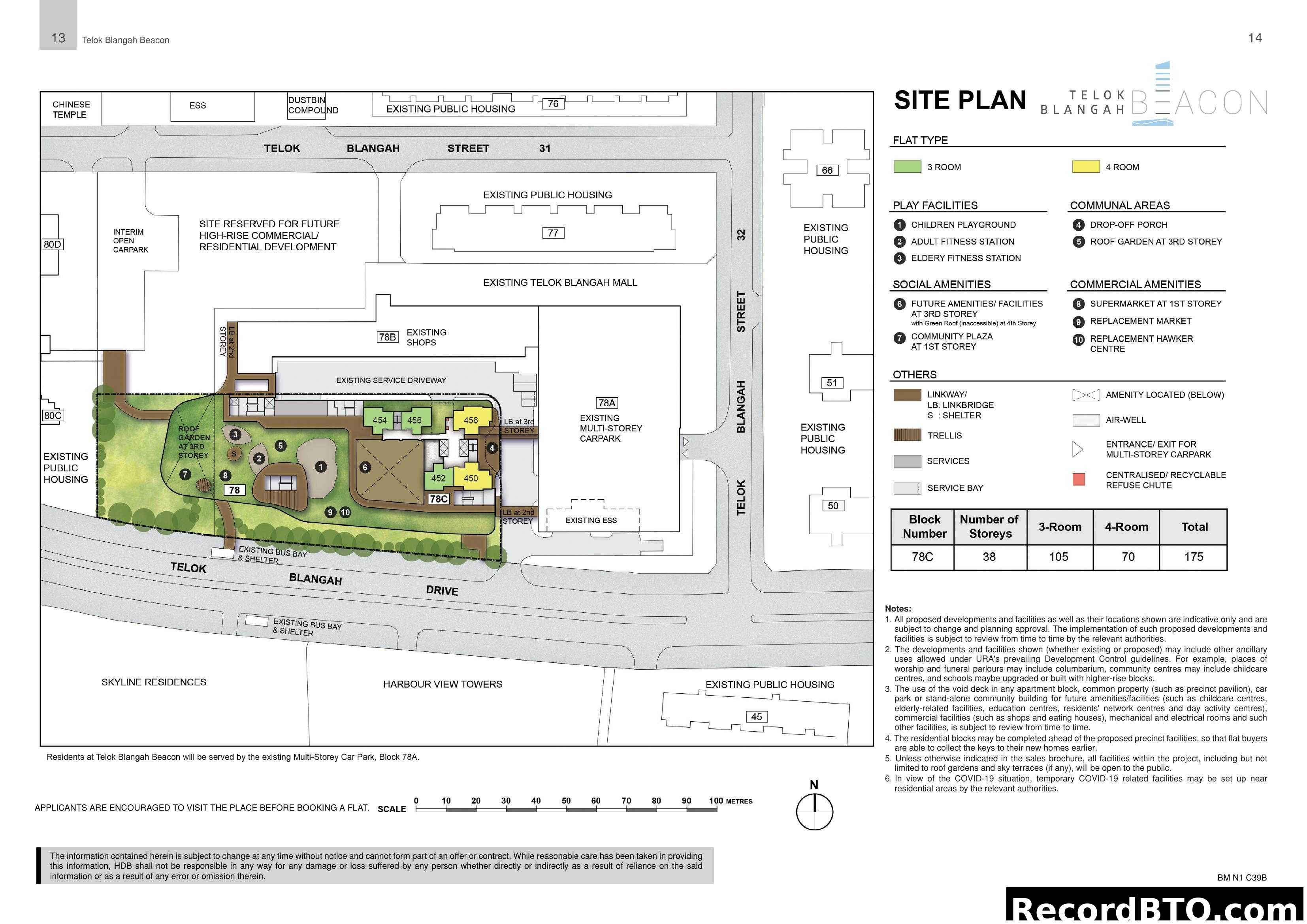
Telok Blangah Beacon Site Plan with Amenities Overview

This detailed site plan for Telok Blangah Beacon showcases the layout of Block 78C, including its various facilities and surrounding infrastructure. It highlights play facilities like playgrounds and fitness stations, social amenities such as future amenities and a community plaza, and commercial amenities like a supermarket and hawker centre. The plan also provides a unit breakdown for 3-room and 4-room flats within Block 78C, alongside an overview of existing public housing, roads, and amenities like Telok Blangah Mall.

10

Telok Blangah Beacon Block 78C Unit Distribution

This chart illustrates the unit distribution for Block 78C at Telok Blangah Beacon. It details the types of units available on each floor and in each stack. The legend indicates that green-colored units are 3-room apartments, while yellow-colored units are 4-room apartments. Floors are listed from #01 to #38, and stacks include 450, 452, 454, 456, and 458, providing a clear overview of the block's unit mix.

11

Block 78C Floor Plan (4th to 38th Storey)

This image displays a typical floor plan for Block 78C, showing the layout for floors 4 to 38. It includes detailed layouts for various unit types like 3-room and 4-room flats, common corridors, lift lobbies, and other shared facilities. The plan highlights room designations, window types, and special features like air-con ledges and refuse chutes, with a legend for window specifications.

12

General Specifications for Telok Blangah Beacon

This brochure page outlines the general specifications for 3-room and 4-room flats at Telok Blangah Beacon. It details the building's foundation, structure, roof, walls, and windows. The document also specifies the types of doors, floor finishes, wall finishes, and various fittings like locksets and water closet suites. Furthermore, it lists the services provided, such as gas, water supply, electrical wiring, television, and data points. Important notes regarding household shelter, door frames, open spaces, and service details are also included, advising visitors to check the HDB website for renovation rules.

13

Disclaimer

This page from the Telok Blangah Beacon brochure contains the disclaimer, outlining 11 points including HDB's copyright, that content is for general information only and not factual representations, artistic impressions, information being subject to change, no warranty on accuracy, and HDB's reserved rights over common facilities and future amenities within the development.

14

Optional Component Scheme (3-, 4-, and 5-Room Flats)

This HDB brochure page details the Optional Component Scheme (OCS) for 3-, 4-, and 5-room flats. It outlines standard provisions in flats such as floor finishes and wall tiles, then lists optional items like additional floor finishes, internal doors, and sanitary fittings (wash basin, shower set) that buyers can choose to have installed, with visual examples provided.

Tip: Click on any page to jump directly to that brochure page

Photo Gallery

14 photos

Telok Blangah Beacon HDB Sales Launch

Telok Blangah Beacon HDB Sales Launch

Telok Blangah Beacon - Artist's Impression

Telok Blangah Beacon - Artist's Impression

Telok Blangah Beacon - Artist Impressions

Telok Blangah Beacon - Artist Impressions

IMPORTANT NOTES

IMPORTANT NOTES

Telok Blangah Beacon - Bukit Merah Location Map

Telok Blangah Beacon - Bukit Merah Location Map