Skip to main content
Bishan Towers
Completed
Bishan Towers HDB Sales Launch August 2020 Artist Impression
Artist impression
Bishan Towers Site Plan & Unit Distribution
Site plan
2-Room Flexi (Type 1 & 2) Floor Plans
Floor plan
Bishan Area Map with Important Notes and Disclaimers
Location map
Bishan Towers HDB Sales Launch August 2020 Artist Impression
Artist impression

Bishan Towers

Bishan

Project Details

No of Blocks
7
Highest Floor
14
Tenure
99-year
Developer
Launch Date
Aug 2020
Expected TOP
To be announced
Total Units
690
BTO Type
standard

Site Plan

Detailed layout and block arrangement

Bishan Towers Site Plan
Click to zoom

Floor Plans

Browse floor plans by unit type and block

2-Room Flexi (Type 1 & 2) Floor Plans

2-Room Flexi (Type 1 & 2) Floor Plans

2-room Flexi
3-Room Floor Plan and Flexible Kitchen Design Options

3-Room Floor Plan and Flexible Kitchen Design Options

3-room
4-Room Floor Plans (Two Layouts)

4-Room Floor Plans (Two Layouts)

4-room
Block 156A and 156B Stacking Chart

Block 156A and 156B Stacking Chart

2-room Flexi 3-room 4-room

Blocks: 156A, 156B

Block 156A 2nd Storey Floor Plan with 4-Room Units

Block 156A 2nd Storey Floor Plan with 4-Room Units

4-room

Blocks: 156A

Block 156A Floor Plan for 4-Room Units (3rd Storey)

Block 156A Floor Plan for 4-Room Units (3rd Storey)

4-room

Blocks: 156A

Block 156A 4th Storey Floor Plan (4-Room Units)

Block 156A 4th Storey Floor Plan (4-Room Units)

4-room

Blocks: 156A

Block 156A (5th-26th, 29th-33rd Storey Floor Plan)

Block 156A (5th-26th, 29th-33rd Storey Floor Plan)

4-room

Blocks: 156A

Block 156A (27th Storey Floor Plan)

Block 156A (27th Storey Floor Plan)

4-room

Blocks: 156A

Block 156A 28th Storey Floor Plan for 4-Room Units

Block 156A 28th Storey Floor Plan for 4-Room Units

4-room

Blocks: 156A

Block 156B 2nd Storey Floor Plan

Block 156B 2nd Storey Floor Plan

2-room Flexi (type 1) 2-room Flexi (type 2) 3-room 4-room

Blocks: 156B

Block 156B (5th Storey) Floor Plan Layouts

Block 156B (5th Storey) Floor Plan Layouts

2-room Flexi 3-room 4-room

Blocks: 156B

Block 156B Floor Plans (3rd to 25th Storey)

Block 156B Floor Plans (3rd to 25th Storey)

2-room 3-room 4-room

Blocks: 156B

Block 156B 26th Storey Floor Plan with Unit Layouts

Block 156B 26th Storey Floor Plan with Unit Layouts

3-room 4-room

Blocks: 156B

Block 156B 27th Storey Floor Plan

Block 156B 27th Storey Floor Plan

3-room 4-room

Blocks: 156B

Block 156B 28th Storey Floor Plan

Block 156B 28th Storey Floor Plan

3-room 4-room

Blocks: 156B

Block 156B Floor Plan (29th-33rd Storey)

Block 156B Floor Plan (29th-33rd Storey)

3-room 4-room

Blocks: 156B

Quick Info

Town
Bishan
Tenure
99-year

Project Brochure

29 pages

Page 1 / 29
Brochure Page 1

Table of Contents

1

Bishan Towers HDB Sales Launch August 2020 Artist Impression

This is a promotional page for Bishan Towers, an HDB development, announcing its sales launch in August 2020. The dominant feature is a large artist's impression showcasing two modern, high-rise residential towers with teal accents. Below the architectural render, a smiling couple is depicted holding a gift, symbolizing new home ownership or celebration. The image combines architectural visuals with a human element to market the property.

2

Bishan Towers - Riverfront Gardens Artist's Impression

This page showcases an artist's impression of Bishan Towers, featuring two high-rise residential blocks with modern white and teal facades. The development, located along the Kallang River, integrates nature and community, offering residents amenities like sky terraces, roof gardens, a fitness station, and a green lawn. The image highlights the architectural design and the serene riverside setting, aiming to enhance the skyline along the Kallang River.

3

Artist's Impression of New Development & Unit Info

This page showcases an artist's impression of a new residential development, featuring high-rise buildings, a children's playground, and landscaped green areas. The text provides details on the available unit types: 472 units of 2-room Flexi, 3-room, and 4-room flats. It also mentions referring to the site plan for facilities and confirms public accessibility to some development facilities. A lifestyle photograph of a family is included at the bottom.

4

Bishan Area Map with Important Notes and Disclaimers

This page from an HDB BTO brochure features a detailed location map of the Bishan area, highlighting MRT lines (existing and under construction), roads, parks, schools, and other amenities. Accompanying the map are important notes and disclaimers regarding HDB precinct planning, proposed facilities, their indicative nature, and potential changes subject to planning approval. The text also includes conditions related to ancillary uses and temporary COVID-19 facilities, serving as crucial contextual information for flat selection.

5

Bishan Towers: Eco-Friendly Features & Flat Details

This brochure page for Bishan Towers details eco-friendly initiatives like separate recycling chutes, regenerative lifts, and bicycle stands. It outlines the types of flats (2-room Flexi, 3-room, 4-room), their standard finishes and fittings, and smart lighting features. The page also describes flexible space options for 2-room Flexi flats and open kitchen concepts for 3-room units, concluding with an explanation of the Optional Component Scheme.

6

2-Room Flexi (Type 1 & 2) Floor Plans

This page showcases the floor plans for 2-Room Flexi units, detailing both Type 1 (approx. 38 sqm) and Type 2 (approx. 48 sqm) layouts. It presents configurations with and without living/dining/bedroom floor finishes. The 48 sqm Type 2 unit features a flexible space adaptable for dining, study, or an extra bed, catering to diverse lifestyle needs, including an optional folding door for short lease. Layouts include kitchen, living/dining, bedroom, household shelter, and bath/WC.

7

3-Room Floor Plan and Flexible Kitchen Design Options

This brochure page showcases a 3-room HDB floor plan with an approximate area of 69 sqm. It highlights the flat's open kitchen concept, offering flexibility for homeowners to add partitions. The page provides artist's impressions demonstrating three partition options: separating utility from the kitchen (A), dry from wet kitchens (B), and the kitchen from the living/dining area (C).

8

4-Room Floor Plans (Two Layouts)

This image presents two different 4-room apartment floor plans, each featuring a suggested furniture layout. The upper plan details a unit with an approximate floor area of 93 sqm, comprising a living/dining area, kitchen, service yard, household shelter, two common bedrooms, a main bedroom, and two bathrooms. The lower plan, with an approximate floor area of 96 sqm, offers a similar configuration but includes an additional balcony, providing variations in the design for potential homeowners.

9

Bishan Towers Site Plan & Unit Distribution

This image displays the site plan for Bishan Towers, illustrating the layout of residential blocks (156A, 156B), surrounding amenities like playgrounds, fitness stations, a multi-storey carpark (157B), and an electrical sub-station (157C). It also includes a legend for various facilities and a table detailing the number of storeys and distribution of 2-Room Flexi (Type 1 & 2), 3-Room, and 4-Room units across blocks 156A and 156B. Notes provide important disclaimers and project details.

10

Block 156A and 156B Stacking Chart

This image displays the unit stacking charts for HDB Blocks 156A and 156B. It shows the distribution of various unit types across different floor levels, from #01 to #33. Block 156A consists entirely of 4-room units, while Block 156B features a mix of 2-room Flexi (Type 1 & 2), 3-room, and 4-room units, differentiated by color. Accessible sky terraces and roof gardens are also marked on specific floors.

11

Block 156A 2nd Storey Floor Plan with 4-Room Units

This image displays the 2nd storey floor plan for Block 156A, featuring four 4-room units (104, 106, 108, 110). It details the internal layout of each unit including bedrooms, living/dining areas, kitchens, and bathrooms, along with common corridors, lift lobby, and refuse chutes. The plan also includes a window legend and notes about units on higher storeys.

12

Block 156A Floor Plan for 4-Room Units (3rd Storey)

This image displays the 3rd storey floor plan for Block 156A, featuring the layout of four 4-room units (104, 106, 108, 110). It shows the arrangement of bedrooms, living/dining areas, kitchens, bathrooms, and common spaces like the lift lobby and corridor. A window legend and scale bar are also included.

13

Block 156A 4th Storey Floor Plan (4-Room Units)

This floor plan displays the layout of the 4th storey for Block 156A, featuring multiple 4-room residential units (104, 106, 108, 110). It shows the arrangement of living spaces, bedrooms, kitchen, bathrooms, and common areas such as corridors, lift lobby, and refuse chutes. A legend for specific window types and a scale bar are also included.

14

Block 156A (5th-26th, 29th-33rd Storey Floor Plan)

This image displays a detailed floor plan for Block 156A, specifically for the 5th to 26th and 29th to 33rd storey. It shows the layout of multiple 4-room units (Units 100, 102, 104, 106, 108, 110) arranged around a common corridor and lift lobby. Each unit includes areas like main bedroom, bedrooms, living/dining, kitchen, and bathrooms. The plan also indicates service yards, air-con ledges, and a centralised refuse chute.

15

Block 156A (27th Storey Floor Plan)

This image displays the 27th-storey floor plan for Block 156A, featuring four 4-room units (100, 102, 104, 106) arranged around a common corridor and lift lobby. The layout includes residential units, common areas, a centralised refuse chute, wash area, and accessible sky terraces. A window legend and scale bar are also provided.

16

Block 156A 28th Storey Floor Plan for 4-Room Units

This image displays the 28th storey floor plan for Block 156A, detailing the layout of four 4-room units (100, 102, 104, 106). It illustrates the internal room arrangements including bedrooms, living/dining areas, kitchens, bathrooms, and service yards. The plan also shows common areas such as the lift lobby, common corridors, wash area, and refuse chutes. A window legend and scale bar are provided.

17

Block 156B 2nd Storey Floor Plan

This image displays the 2nd storey floor plan for Block 156B, illustrating the layouts of various residential units including 2-room Flexi (Type 1 and 2), 3-room, and 4-room apartments. It also shows common corridors, lift lobby, wash area, refuse chutes, and other building amenities.

18

Block 156B (5th Storey) Floor Plan Layouts

This image displays the 5th storey floor plan for Block 156B, featuring various unit types including 2-room Flexi, 3-room, and 4-room flats. It illustrates the individual unit layouts, common corridors, lift lobby, and utility areas, along with a legend for window types and a scale.

19

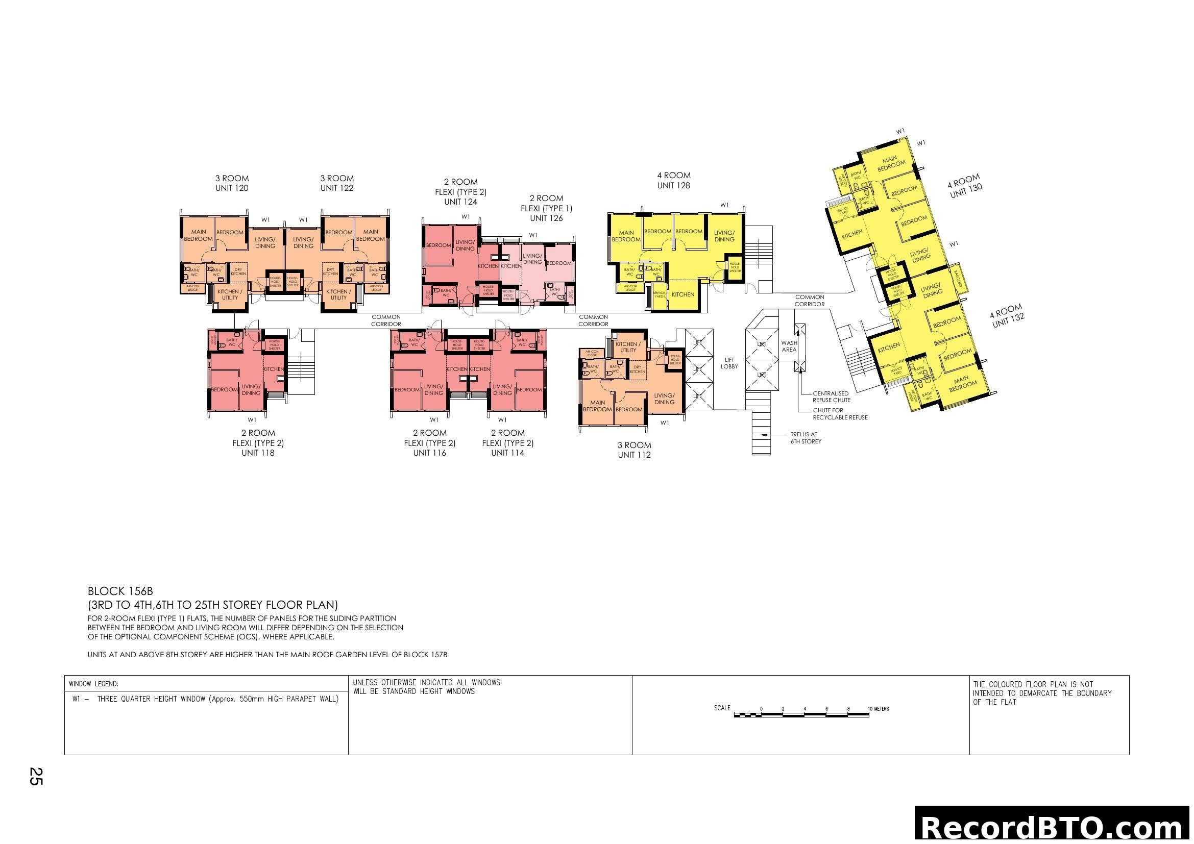
Block 156B Floor Plans (3rd to 25th Storey)

This image displays the floor plans for Block 156B, detailing units from the 3rd to 4th and 6th to 25th storeys. It features a variety of unit types including 2-room Flexi (Type 1 and 2), 3-room, and 4-room apartments. The layout also illustrates common areas such as corridors, a lift lobby, wash area, and refuse chutes, complete with a window legend and a scale bar.

20

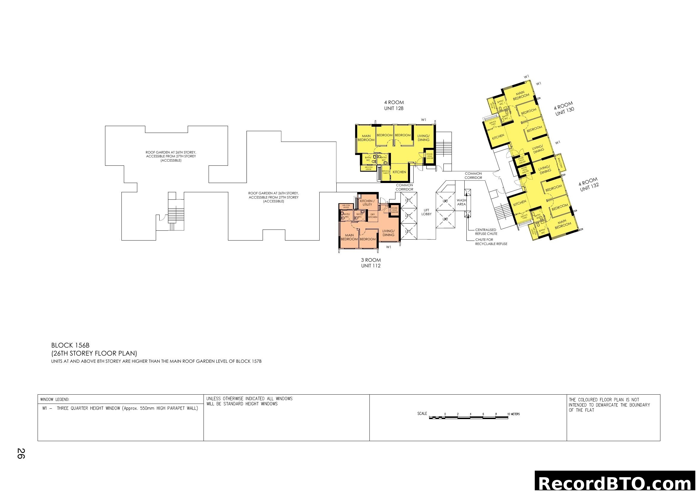
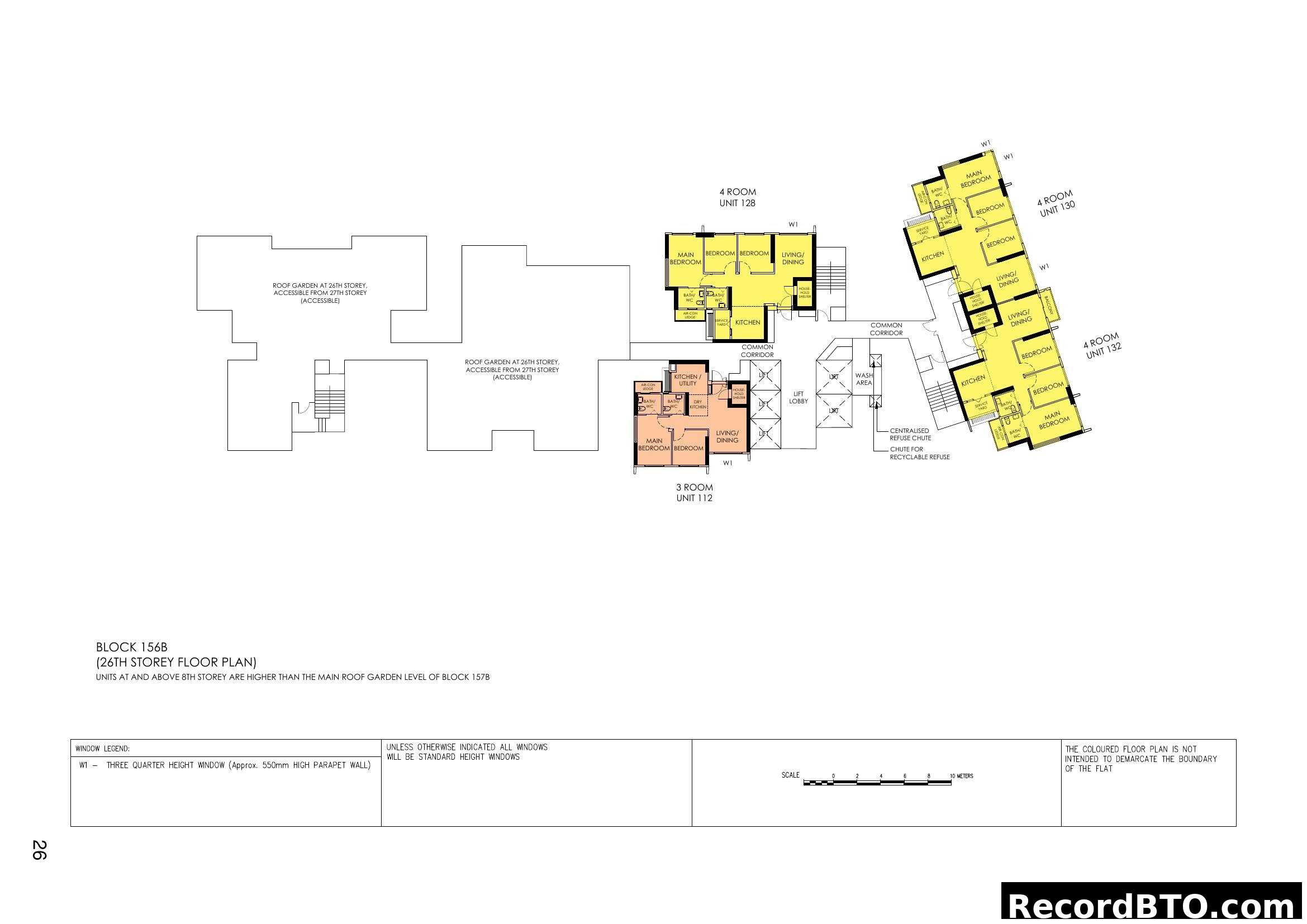
Block 156B 26th Storey Floor Plan with Unit Layouts

This page displays the floor plan for the 26th storey of Block 156B, detailing the layouts of various residential units. It includes 3-room (Unit 112) and 4-room (Units 128, 130, 132) configurations, common corridors, lift lobby, and centralised refuse chutes. Notes about roof garden accessibility and window types are also present, along with a scale bar.

21

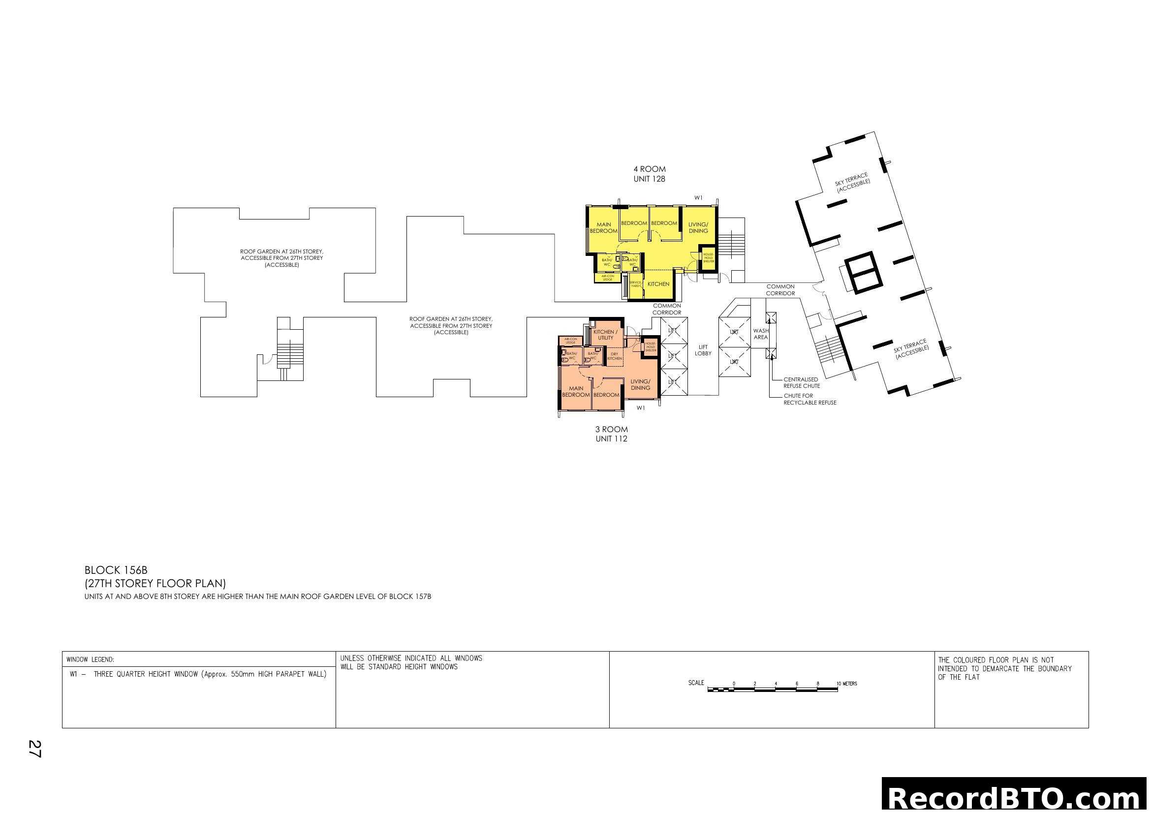
Block 156B 27th Storey Floor Plan

This image displays the 27th-storey floor plan for Block 156B, featuring layouts for a 4-room unit (Unit 128) and a 3-room unit (Unit 112). It includes common areas such as corridors, lift lobby, wash area, and refuse chutes, along with connections to roof gardens and sky terraces. A window legend and scale bar are also provided.

22

Block 156B 28th Storey Floor Plan

This floor plan illustrates the layout of the 28th storey in Block 156B, featuring a 4-room unit (Unit 128) and a 3-room unit (Unit 112). It details the internal room arrangements for each unit, including bedrooms, living/dining areas, kitchen, and bathrooms. The plan also shows the common corridor, lift lobby, and refuse chutes. A legend for windows and a scale are provided.

23

Block 156B Floor Plan (29th-33rd Storey)

This image displays the floor plan for Block 156B, specifically for levels 29 to 33. It illustrates the layout of various 3-room and 4-room units (Units 112, 128, 130, 132) arranged around a common corridor and lift lobby. Key features like bedrooms, living/dining areas, kitchens, and bathrooms are indicated within each unit, along with common facilities such as the wash area and refuse chutes. A window legend and scale are also provided.

24

General Specifications for Bishan Towers

This page details the general specifications for 2-room Flexi (short lease) units at Bishan Towers. It covers construction elements like foundation, structure, roof, walls, windows, doors, and interior finishes. Key fittings and available services are listed, along with important notes regarding the household shelter, door frames, open spaces, and service details. It also advises visiting HDB's website for renovation rules.

25

General Specifications For Bishan Towers

This page from the HDB BTO brochure details the general specifications for Bishan Towers, covering structural elements like foundation, roof, walls, and windows, as well as internal features such as doors, finishes for various rooms, fittings, and services. It also includes important notes regarding household shelters and HDB policies, applicable to 2-Room Flexi, 3-Room, and 4-Room units.

26

Disclaimer

This page from the HDB brochure contains various disclaimers, including copyright information, limitations on the accuracy and representational nature of the content, the right to make changes, and the reservation of rights for facility usage. It advises readers that the brochure does not provide complete information.

27

OPTIONAL COMPONENT SCHEME (2-ROOM FLEXI FLATS – BISHAN TOWERS)

This brochure page details the Optional Component Scheme (OCS) for 2-room Flexi flats in Bishan Towers. It outlines standard provisions, two optional packages for flooring, partitions, and sanitary fittings, along with flat sizes (36sqm, 46sqm) and lease options. It also mentions grab bars for short-lease flats and partition variations.

28

Optional Component Scheme (2-Room Flexi Flats – Bishan Towers)

This brochure page details Package 3 of the Optional Component Scheme for 2-room Flexi Flats at Bishan Towers, aimed at elderly buyers. It highlights elderly-friendly fittings such as built-in kitchen cabinets with an induction hob, options for lower counter heights, mobile kitchen cabinets for wheelchair users, lower wardrobe hanging rods, and a folding door. Other standard fittings like window grilles, mirror, toilet roll holder, lighting, and a water heater are also listed.

29

Optional Component Scheme (3-, 4-Room Flats)

This brochure page details the Optional Component Scheme (OCS) available for 3- and 4-room flats at Bishan Towers. It outlines standard inclusions like floor finishes, wall tiles, and water closet suites. It also lists optional items that buyers can choose to have installed, such as floor finishes for living/dining rooms and bedrooms, internal doors, and sanitary fittings (wash basin with tap mixer, shower set with bath/shower mixer). The page includes images of the optional wash basin and shower set. The OCS items' cost is added to the flat's selling price.

Tip: Click on any page to jump directly to that brochure page

Photo Gallery

29 photos

Bishan Towers HDB Sales Launch August 2020 Artist Impression

Bishan Towers HDB Sales Launch August 2020 Artist Impression

Bishan Towers - Riverfront Gardens Artist's Impression

Bishan Towers - Riverfront Gardens Artist's Impression

Artist's Impression of New Development & Unit Info

Artist's Impression of New Development & Unit Info

Bishan Area Map with Important Notes and Disclaimers

Bishan Area Map with Important Notes and Disclaimers

Bishan Towers: Eco-Friendly Features & Flat Details

Bishan Towers: Eco-Friendly Features & Flat Details