Skip to main content
Costa Grove
Completed
Costa Grove HDB Sales Launch August 2020 Announcement
Artist impression
Costa Grove Site Plan with Legend and Flat Distribution
Site plan
2-Room Flexi Floor Plans (Type 1 & Type 2)
Floor plan
Pasir Ris Location Map with Important Notes
Location map
Costa Grove HDB Sales Launch August 2020 Announcement
Artist impression

Costa Grove

Tampines Street 12 / 86

Project Details

No of Blocks
7
Highest Floor
14
Tenure
99-year
Developer
Launch Date
Aug 2020
Expected TOP
To be announced
Total Units
655
BTO Type
standard

Site Plan

Detailed layout and block arrangement

Costa Grove Site Plan
Click to zoom

Floor Plans

Browse floor plans by unit type and block

2-Room Flexi Floor Plans (Type 1 & Type 2)

2-Room Flexi Floor Plans (Type 1 & Type 2)

2-room Flexi
3-Room Floor Plans with Flexible Kitchen Options

3-Room Floor Plans with Flexible Kitchen Options

3-room
4-Room and 5-Room HDB Floor Plan Variations

4-Room and 5-Room HDB Floor Plan Variations

4-room 5-room
5-Room Floor Plan with Suggested Furniture Layout

5-Room Floor Plan with Suggested Furniture Layout

5-room
HDB Block Stacking Chart: Unit Types & Floors

HDB Block Stacking Chart: Unit Types & Floors

3-room 4-room 5-room

Blocks: 587A, 588B, 588A, 588C

HDB BTO Block Stacking Chart with Unit Types

HDB BTO Block Stacking Chart with Unit Types

4-room 5-room 2-room Flexi (type 1) 2-room Flexi (type 2) 3-room Rental Flats

Blocks: 589A, 589B, 589C, 590A

HDB Block 590B and 590C Unit Stacking Plan

HDB Block 590B and 590C Unit Stacking Plan

2-room Flexi (type 1) 2-room Flexi (type 2) 3-room Rental Flats 4-room

Blocks: 590B, 590C

Block 587A (2nd Storey Floor Plan)

Block 587A (2nd Storey Floor Plan)

5-room

Blocks: 587A

Block 587A (3rd Storey Floor Plan)

Block 587A (3rd Storey Floor Plan)

4-room 5-room

Blocks: 587A

Block 587A (4th, 6th, 7th & 9th Storey Floor Plan)

Block 587A (4th, 6th, 7th & 9th Storey Floor Plan)

4-room 5-room

Blocks: 587A

Block 587A 5th & 8th Storey Floor Plan

Block 587A 5th & 8th Storey Floor Plan

4-room 5-room

Blocks: 587A

Block 587A 10th Storey Floor Plan with 4- and 5-Room Units

Block 587A 10th Storey Floor Plan with 4- and 5-Room Units

4-room 5-room

Blocks: 587A

Block 587A 11th Storey Floor Plan

Block 587A 11th Storey Floor Plan

4-room 5-room

Blocks: 587A

Block 587A Floor Plan (12th, 13th, 15th, 16th & 18th Storey)

Block 587A Floor Plan (12th, 13th, 15th, 16th & 18th Storey)

4-room 5-room

Blocks: 587A

Block 587A 14th & 17th Storey Floor Plan

Block 587A 14th & 17th Storey Floor Plan

4-room 5-room

Blocks: 587A

Block 588A Storey Floor Plan

Block 588A Storey Floor Plan

4-room 5-room

Blocks: 588A

Block 588A Floor Plan (5th, 8th, 11th & 14th Storey)

Block 588A Floor Plan (5th, 8th, 11th & 14th Storey)

4-room 5-room

Blocks: 588A

Block 588A 17th Storey Floor Plan

Block 588A 17th Storey Floor Plan

4-room 5-room

Blocks: 588A

Block 588A 18th Storey Floor Plan

Block 588A 18th Storey Floor Plan

4-room 5-room

Blocks: 588A

Block 588B Floor Plan (Selected Storeys)

Block 588B Floor Plan (Selected Storeys)

3-room 4-room 5-room

Blocks: 588B

Block 588B Floor Plan (5th, 8th, 11th, 14th, 17th Storeys)

Block 588B Floor Plan (5th, 8th, 11th, 14th, 17th Storeys)

3-room 4-room 5-room

Blocks: 588B

Block 588C 2nd Storey Floor Plan

Block 588C 2nd Storey Floor Plan

4-room 5-room

Blocks: 588C

Block 588C Multi-Unit Floor Plan (Selected Storeys)

Block 588C Multi-Unit Floor Plan (Selected Storeys)

3-room 4-room 5-room

Blocks: 588C

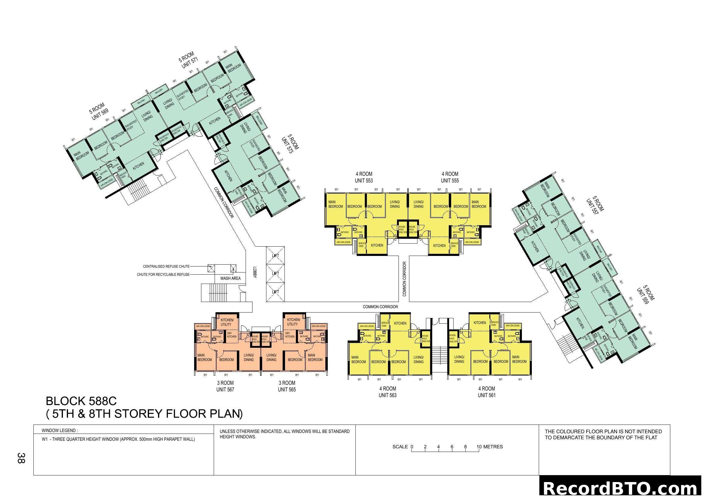
Block 588C Floor Plan (5th & 8th Storey)

Block 588C Floor Plan (5th & 8th Storey)

3-room 4-room 5-room

Blocks: 588C

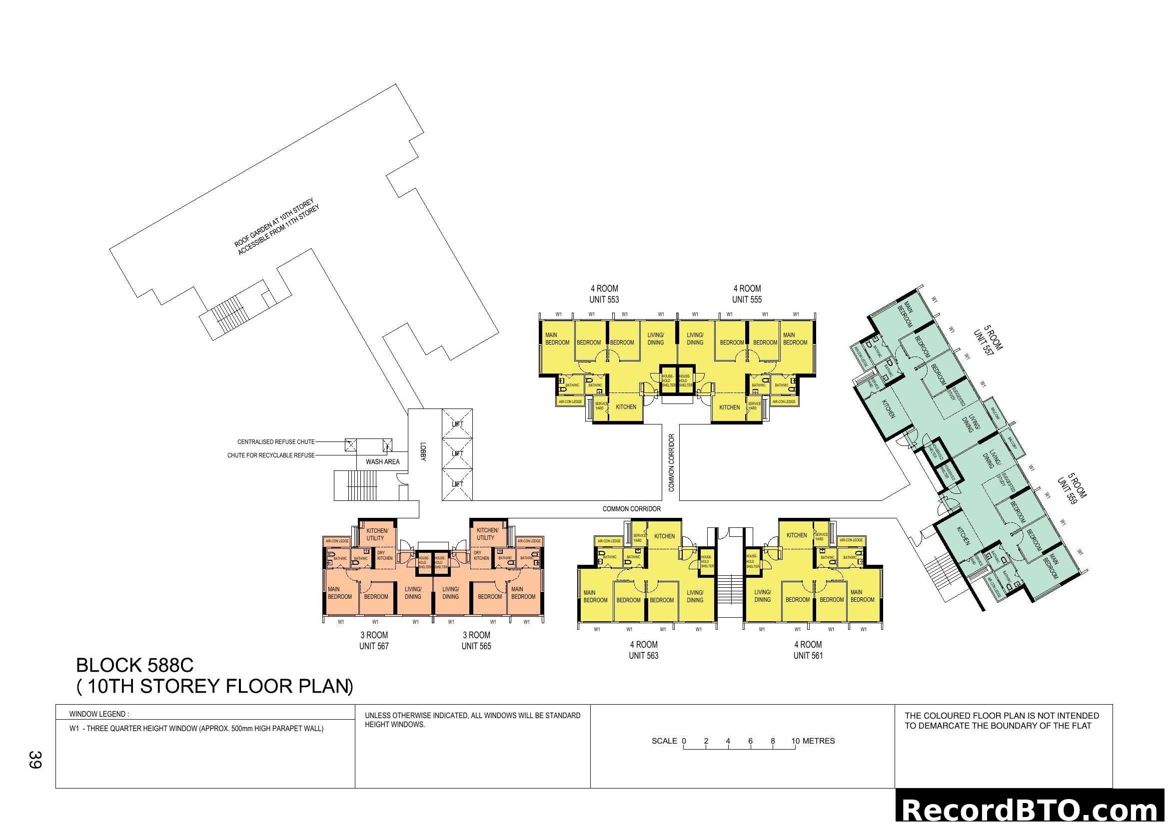
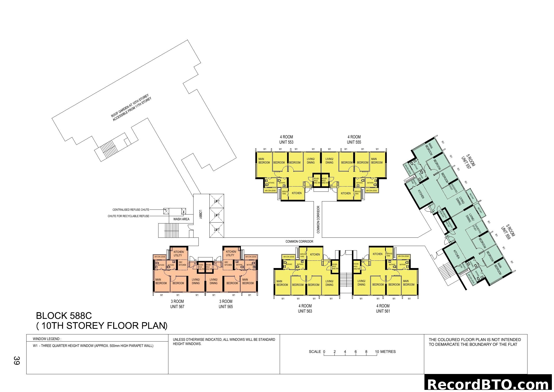
Block 588C (10th Storey Floor Plan)

Block 588C (10th Storey Floor Plan)

3-room 4-room 5-room

Blocks: 588C

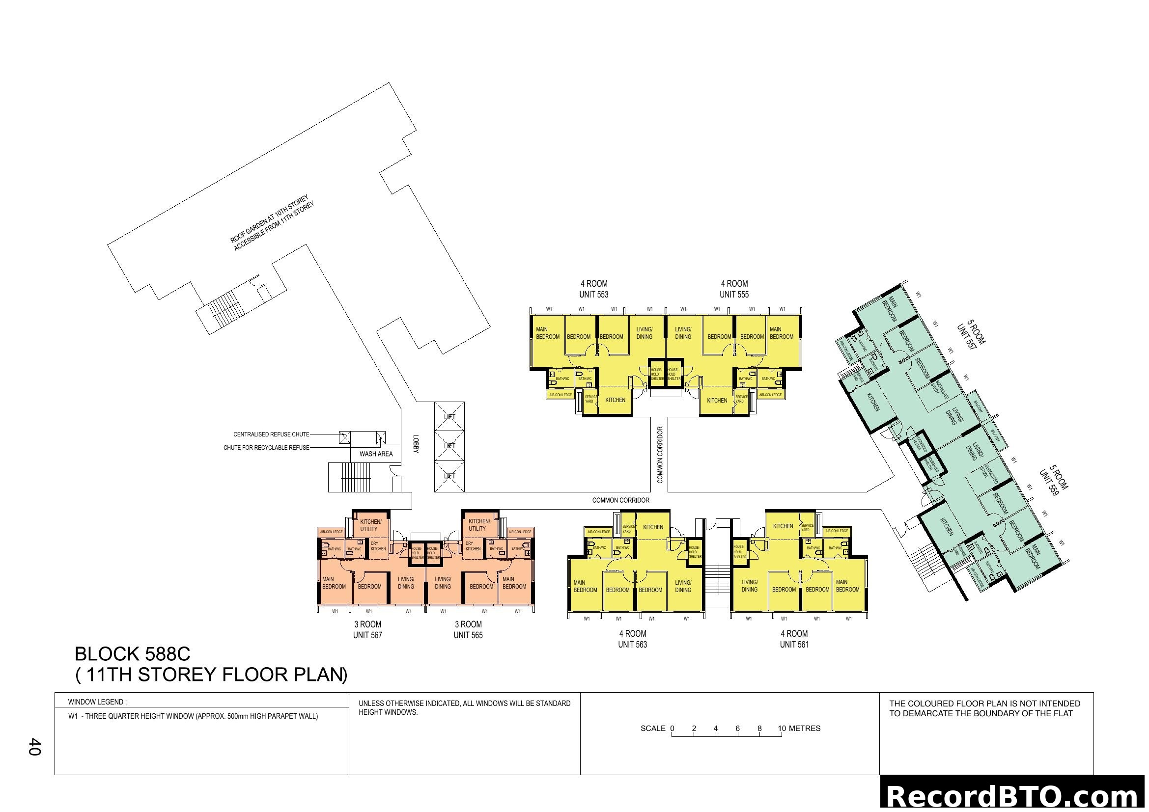
Block 588C 11th Storey Floor Plan

Block 588C 11th Storey Floor Plan

3-room 4-room 5-room

Blocks: 588C

Block 588C (12th & 13th Storey Floor Plan)

Block 588C (12th & 13th Storey Floor Plan)

3-room 4-room 5-room

Blocks: 588C

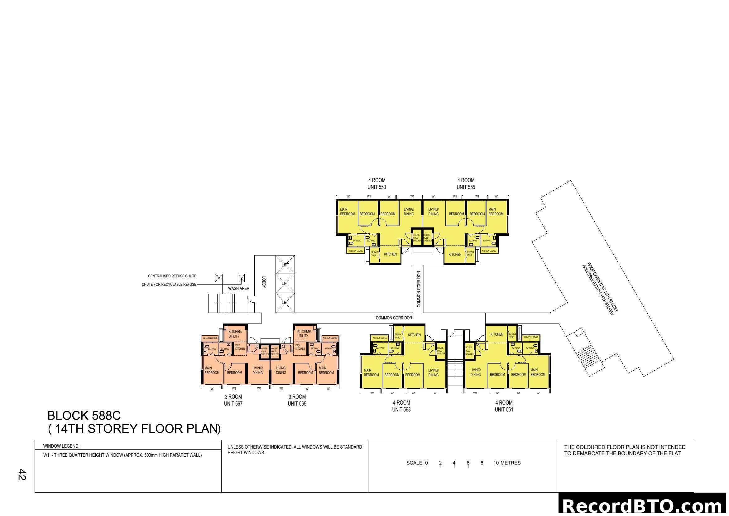
Block 588C 14th Storey Floor Plan

Block 588C 14th Storey Floor Plan

3-room 4-room

Blocks: 588C

Block 588C 15th Storey Floor Plan

Block 588C 15th Storey Floor Plan

3-room 4-room

Blocks: 588C

Block 588C Floor Plan (16th & 18th Storey)

Block 588C Floor Plan (16th & 18th Storey)

3-room 4-room

Blocks: 588C

Block 588C 17th Storey Floor Plan

Block 588C 17th Storey Floor Plan

3-room 4-room

Blocks: 588C

Block 589A Floor Plan (Selected Storeys)

Block 589A Floor Plan (Selected Storeys)

4-room 5-room

Blocks: 589A

Block 589A (5th, 8th, 11th & 14th Storey) Floor Plan

Block 589A (5th, 8th, 11th & 14th Storey) Floor Plan

4-room 5-room

Blocks: 589A

Block 589A (17th Storey Floor Plan)

Block 589A (17th Storey Floor Plan)

4-room

Blocks: 589A

Block 589A (18th Storey Floor Plan)

Block 589A (18th Storey Floor Plan)

4-room

Blocks: 589A

Block 589B Selected Storey Floor Plan

Block 589B Selected Storey Floor Plan

2-room Flexi (type 1) 2-room Flexi (type 2) 3-room

Blocks: 589B

Block 589B (5th, 8th, 11th & 14th Storey Floor Plan)

Block 589B (5th, 8th, 11th & 14th Storey Floor Plan)

2-room Flexi 3-room

Blocks: 589B

Block 589B (15th Storey Floor Plan)

Block 589B (15th Storey Floor Plan)

2-room Flexi (type 1) 2-room Flexi (type 2) 3-room

Blocks: 589B

Block 589B - 16th Storey Floor Plan (2- and 3-Room Units)

Block 589B - 16th Storey Floor Plan (2- and 3-Room Units)

2-room Flexi (type 1) 2-room Flexi (type 2) 3-room

Blocks: 589B

Block 589B 17th Storey Floor Plan

Block 589B 17th Storey Floor Plan

3-room 2-room Flexi (type 2) 2-room Flexi (type 1)

Blocks: 589B

Block 589C (Selected Storeys) Floor Plan

Block 589C (Selected Storeys) Floor Plan

4-room 5-room

Blocks: 589C

Block 589C Floor Plan (5th, 8th & 11th Storey)

Block 589C Floor Plan (5th, 8th & 11th Storey)

4-room 5-room

Blocks: 589C

Block 589C 14th Storey Floor Plan

Block 589C 14th Storey Floor Plan

4-room 5-room

Blocks: 589C

Block 589C 15th Storey Floor Plan

Block 589C 15th Storey Floor Plan

4-room 5-room

Blocks: 589C

Block 589C (16th Storey Floor Plan)

Block 589C (16th Storey Floor Plan)

4-room 5-room

Blocks: 589C

Block 589C 17th Storey Floor Plan

Block 589C 17th Storey Floor Plan

4-room 5-room

Blocks: 589C

Block 590B (3rd, 4th, 6th, 7th, 9th, 10th & 12th Storey Floor Plan)

Block 590B (3rd, 4th, 6th, 7th, 9th, 10th & 12th Storey Floor Plan)

2-room Flexi 3-room

Blocks: 590B

Block 590B (5th, 8th & 11th Storey Floor Plan)

Block 590B (5th, 8th & 11th Storey Floor Plan)

2-room Flexi 3-room

Blocks: 590B

Block 590B (13th Storey Floor Plan)

Block 590B (13th Storey Floor Plan)

2-room Flexi 3-room

Blocks: 590B

Block 590B 14th Storey Floor Plan

Block 590B 14th Storey Floor Plan

2-room 3-room

Blocks: 590B

Block 590B (15th Storey Floor Plan)

Block 590B (15th Storey Floor Plan)

2-room Flexi 3-room

Blocks: 590B

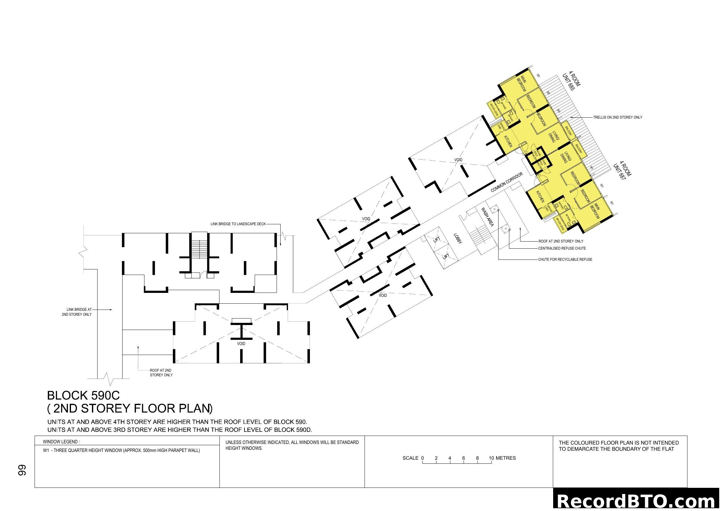
Block 590C 2nd Storey Floor Plan

Block 590C 2nd Storey Floor Plan

4-room

Blocks: 590C

Block 590C Floor Plan (3rd-10th Storeys)

Block 590C Floor Plan (3rd-10th Storeys)

2-room Flexi 3-room 4-room

Blocks: 590C

Block 590C 5th & 8th Storey Floor Plan

Block 590C 5th & 8th Storey Floor Plan

2-room Flexi 3-room 4-room

Blocks: 590C

Block 590C 11th Storey Floor Plan

Block 590C 11th Storey Floor Plan

3-room 2-room Flexi (type 2) 4-room

Blocks: 590C

Block 590C 12th Storey Floor Plan

Block 590C 12th Storey Floor Plan

2-room Flexi 3-room

Blocks: 590C

Quick Info

Town
Tampines
Tenure
99-year

Project Brochure

68 pages

Page 1 / 68
Brochure Page 1

Table of Contents

1

Costa Grove HDB Sales Launch August 2020 Announcement

This brochure page announces the HDB 'Costa Grove' project, which was launched in August 2020. It features an artist's impression of the residential development, showcasing multiple tall buildings situated alongside a river or waterway with abundant surrounding greenery. A happy couple, seemingly prospective homeowners, is depicted looking upwards, with social media 'like' icons floating around them.

2

Delightful Living at Costa Grove

This artist's impression provides a scenic view of Costa Grove, a residential development in Pasir Ris. It will feature 1,070 units of 2-room Flexi, 3-, 4-, and 5-room flats, housed in 10 residential blocks with varying heights from 9 to 18 storeys, including rental flats. The project is situated between Pasir Ris Drive 3 and Pasir Ris Green, reflecting its coastal location and proximity to the famous mangroves of Sungei Api Api.

3

Artist's Impression of HDB Development & Lifestyle

This brochure page features an artist's impression of a residential development, highlighting its communal green spaces, playground, and outdoor amenities like fitness stations and a landscaped deck. The text describes various facilities, including roof gardens, an eating house, shops, a minimart, and a childcare centre, designed to promote an active and community-centric lifestyle. It also references nearby parks. A separate lifestyle photo of a family is included to evoke a sense of home.

4

Pasir Ris Location Map with Important Notes

This image displays a location map of the Pasir Ris area, highlighting various amenities and infrastructure. It shows existing and future MRT lines and stations (e.g., Pasir Ris MRT, Tampines North MRT), major roads, and various facilities such as schools, parks, community clubs, and commercial centers like White Sands and Downtown East. Accompanying the map are important notes and disclaimers regarding the indicative nature of the information, which aids in flat selection by providing context on surrounding land use and proposed facilities.

5

Eco-Friendly Living & Lovely Homes Specifications

This HDB brochure page details the eco-friendly features of Costa Grove, including recycling chutes, regenerative lifts, and sustainable designs. It also outlines the finishes and fittings for 2-room Flexi, 3-, 4-, and 5-room flats, covering floor/wall tiles and flexible kitchen configurations. Smart lighting in common areas and the Optional Component Scheme for flat customisation are also mentioned.

6

2-Room Flexi Floor Plans (Type 1 & Type 2)

This page showcases three detailed floor plans for 2-Room Flexi units, including suggested furniture layouts. Two plans are for Type 1, highlighting both default and finished options, with an approximate floor area of 38 sqm (36 sqm internal + Air-Con Ledge). The third plan is for Type 2, featuring an approximate floor area of 47 sqm (45 sqm internal + Air-Con Ledge). Each plan delineates key areas such as Living/Dining, Bedroom, Household Shelter, Bath/WC, Kitchen, and Air-Con Ledge.

7

3-Room Floor Plans with Flexible Kitchen Options

This page showcases two variations of 3-room floor plans, detailing their approximate floor areas and suggested furniture layouts. It highlights HDB's innovative open kitchen concept, offering homeowners flexibility through optional partitions. The accompanying text explains the three partition options (A, B, C) to separate different kitchen/utility areas, with artist's impressions visually demonstrating each configuration.

8

4-Room and 5-Room HDB Floor Plan Variations

This image displays four distinct floor plan layouts, illustrating different configurations for 4-room and 5-room HDB units. The 4-room plans include one with a balcony and another without, while the 5-room plans feature one with a suggested study. Each layout details the arrangement of living/dining areas, bedrooms, kitchen, bathrooms, and utility spaces, complete with suggested furniture placement and approximate floor areas.

9

5-Room Floor Plan with Suggested Furniture Layout

This image displays a detailed floor plan for a 5-room apartment, including a suggested furniture layout. The plan highlights common areas like the living/dining space, kitchen, and balcony, along with private rooms such as the main bedroom, two additional bedrooms, and a 'suggested study' area. It also shows two bathrooms (Bath/WC), a household shelter, a service yard, and an air-con ledge. The approximate total floor area is 116 sqm.

10

Costa Grove Site Plan with Legend and Flat Distribution

This page presents the site plan for Costa Grove, illustrating the arrangement of residential blocks, amenities, and surrounding areas like Pasir Ris Park. It includes a detailed legend explaining various facilities such as playgrounds, shops, and car parks. A table provides a breakdown of home ownership flat types (2-Room Flexi, 3, 4, 5-Room) and rental flats across different blocks, along with their storeys and total units.

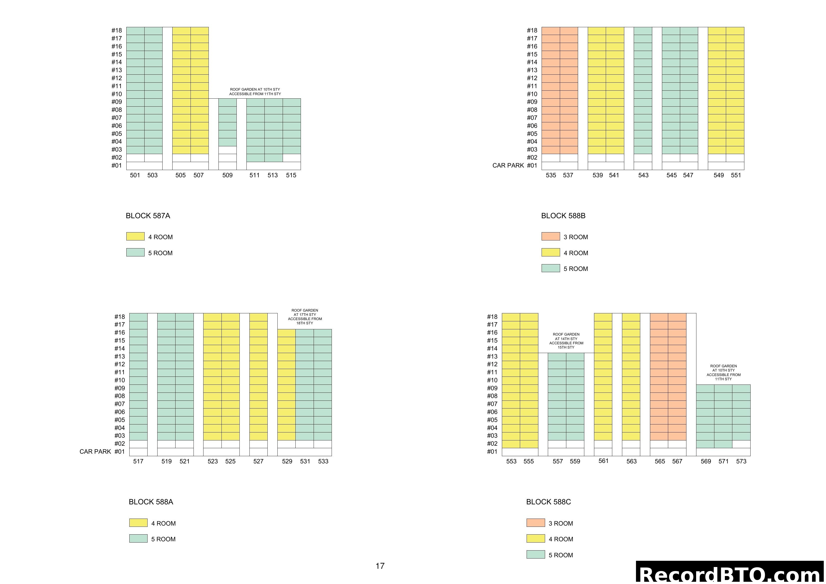
11

HDB Block Stacking Chart: Unit Types & Floors

This image presents stacking charts for HDB blocks 587A, 588A, 588B, and 588C. It visually details the distribution of 3-room, 4-room, and 5-room units across different floor levels and stacks within each block. The charts also indicate the locations of various roof gardens accessible from specific floors.

12

HDB BTO Block Stacking Chart with Unit Types

This image displays stacking charts for HDB BTO blocks 589A, 589B, 589C, and 590A. It illustrates the distribution of various unit types, including 2-room Flexi (Type 1 and 2), 3-room, 4-room, 5-room, and Rental Flats, across different floors and stacks within each block. The charts also indicate the car park level and roof garden locations.

13

HDB Block 590B and 590C Unit Stacking Plan

This image displays stacking charts for HDB Blocks 590B and 590C. It shows the distribution of different unit types across various floors and stacks within each block. Legends are provided to indicate unit types such as 2-room Flexi (Type 1 & 2), 3-room, 4-room, and Rental Flats, distinguished by color coding. The charts detail floor levels from #01 (Car Park) up to #15 for Block 590B and #12 for Block 590C, along with stack numbers.

14

Block 587A (2nd Storey Floor Plan)

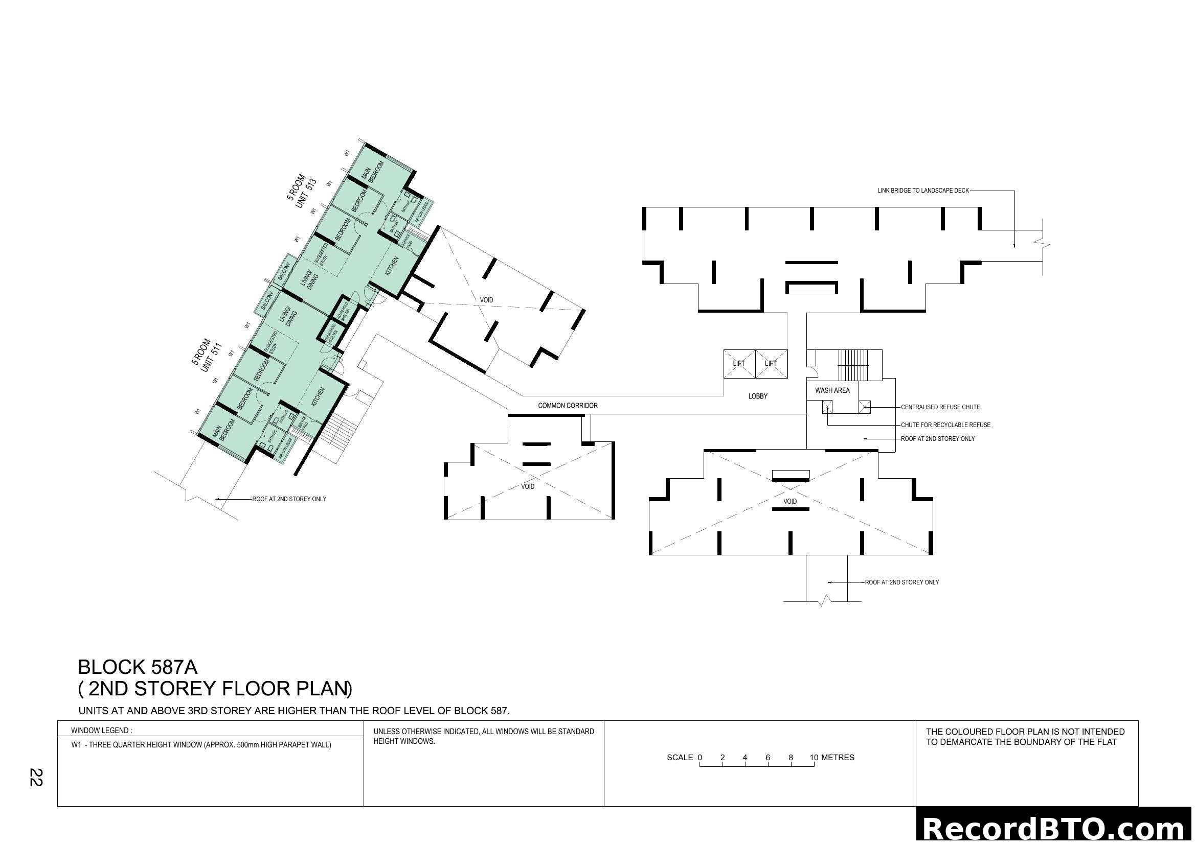
This detailed floor plan illustrates the layout of the 2nd storey for Block 587A. It features two 5-room residential units (Unit 511 and Unit 513), complete with room labels, balconies, and service yards. The plan also shows common facilities like the lobby, lifts, wash area, common corridor, and refuse chutes, providing a comprehensive overview of the block's floor arrangement.

15

Block 587A (3rd Storey Floor Plan)

This image displays the 3rd storey floor plan for Block 587A, illustrating the layout of several 4-room and 5-room residential units. It details the arrangement of living spaces, bedrooms, kitchens, and bathrooms, along with common areas such as corridors, lifts, and a wash area. A window legend and scale bar are also included.

16

Block 587A (4th, 6th, 7th & 9th Storey Floor Plan)

This image displays a detailed floor plan for Block 587A across specific storeys (4th, 6th, 7th & 9th). It illustrates the layout of multiple 4-room and 5-room units, including common corridors, lifts, and a wash area. The plan provides room labels such as 'Main Bedroom', 'Living/Dining', 'Kitchen', and 'Suggested Study', along with utility areas like 'Balcony' and 'Household Shelter'.

17

Block 587A 5th & 8th Storey Floor Plan

This image displays the floor plan for the 5th and 8th storeys of Block 587A. It illustrates the layout of multiple 4-room and 5-room residential units, along with common areas like corridors, lifts, and refuse chutes. The plan includes detailed internal layouts for each unit, highlighting rooms such as bedrooms, living/dining areas, kitchens, bathrooms, and balconies, and specifies window types.

18

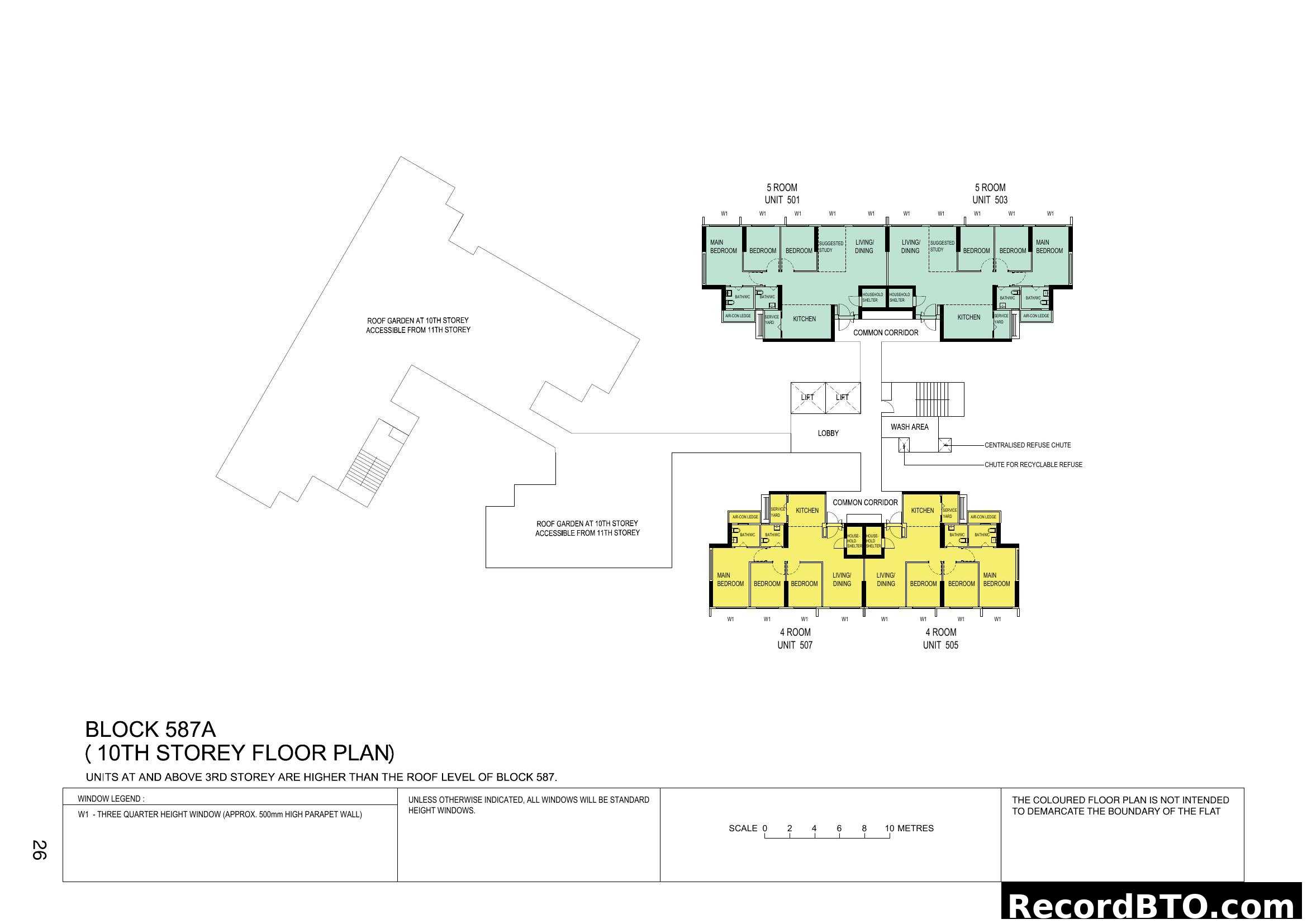
Block 587A 10th Storey Floor Plan with 4- and 5-Room Units

This image displays the 10th-storey floor plan for Block 587A, detailing the layout of 4-room (Units 505, 507) and 5-room (Units 501, 503) residential units. It includes room labels such as bedrooms, living/dining areas, kitchens, and common facilities like lifts, corridors, and refuse chutes. The plan also highlights roof gardens accessible from the 11th storey and includes a window legend.

19

Block 587A 11th Storey Floor Plan

This image displays the 11th storey floor plan for Block 587A, detailing the layout of four residential units: two 5-room units (501, 503) and two 4-room units (507, 505). It also shows common areas such as the corridor, lifts, wash area, and refuse chutes. The plan includes notes on window types and roof gardens accessible from this storey.

20

Block 587A Floor Plan (12th, 13th, 15th, 16th & 18th Storey)

This image displays the floor plan for Block 587A on specific stories (12th, 13th, 15th, 16th & 18th). It shows two 5-room units (501, 503) and two 4-room units (505, 507) arranged around a common corridor, lobby, lifts, wash area, and refuse chutes. Room labels and window legends are included.

21

Block 587A 14th & 17th Storey Floor Plan

This image displays the block layout floor plan for Block 587A, specifically for the 14th and 17th storeys. It details the arrangement of 4-room and 5-room residential units (501, 503, 505, 507) around a common corridor, lobby, lift area, and wash area. A window legend and scale are also included.

22

Block 588A Storey Floor Plan

This image displays a detailed floor plan for Block 588A, showing the layout of 4-room and 5-room units on the 3rd, 4th, 6th, 7th, 9th, 10th, 12th, 13th, 15th & 16th storeys. It illustrates individual unit layouts with rooms like bedrooms, living/dining, kitchen, and bathrooms, along with common areas such as corridors, lobby, wash area, lifts, and refuse chutes. A scale bar and window legend are also provided.

23

Block 588A Floor Plan (5th, 8th, 11th & 14th Storey)

This image displays a detailed floor plan for Block 588A, specifically for the 5th, 8th, 11th, and 14th storeys. It illustrates the layout of various 4-room and 5-room units (Units 517, 519, 521, 527, 529, 531, 533) along a common corridor, including the lobby, lifts, wash area, and refuse chutes. Each unit plan highlights rooms such as main bedrooms, bedrooms, living/dining areas, kitchens, bathrooms, and household shelters.

24

Block 588A 17th Storey Floor Plan

This image displays the 17th storey floor plan for Block 588A, detailing the layout of several 4-room and 5-room units (Units 517, 519, 521, 523, 525, 527). It shows the arrangement of bedrooms, living/dining areas, kitchens, bathrooms, household shelters, and air-con ledges within each unit. The plan also illustrates the common corridor, wash area, lobby, and refuse chutes, providing a comprehensive overview of the floor's shared spaces and individual apartment layouts. A legend for window types and a scale are included.

25

Block 588A 18th Storey Floor Plan

This image displays the 18th-storey floor plan for Block 588A, detailing the layout of multiple residential units (4-room and 5-room flats). It shows the common corridor, lobby, lift access, and amenities like a wash area and centralised refuse chute. The plan also indicates accessibility to a roof garden located on the 17th storey.

26

Block 588B Floor Plan (Selected Storeys)

This image presents a detailed floor plan for Block 588B, specifically for the 3rd, 4th, 6th, 7th, 9th, 10th, 12th, 13th, 15th, 16th, and 18th storeys. It illustrates the layout of 3-room, 4-room, and 5-room units, alongside common areas such as the lobby, common corridor, wash area, and centralized refuse chute. The plan provides room labels and indicates window types, with a legend for W1 windows.

27

Block 588B Floor Plan (5th, 8th, 11th, 14th, 17th Storeys)

This detailed floor plan illustrates the layout of Block 588B for the 5th, 8th, 11th, 14th, and 17th storeys. It showcases various unit types including 3-room, 4-room, and 5-room flats, complete with their room configurations. The plan also highlights common areas such as the lobby, lifts, common corridor, wash area, and refuse chute for the block.

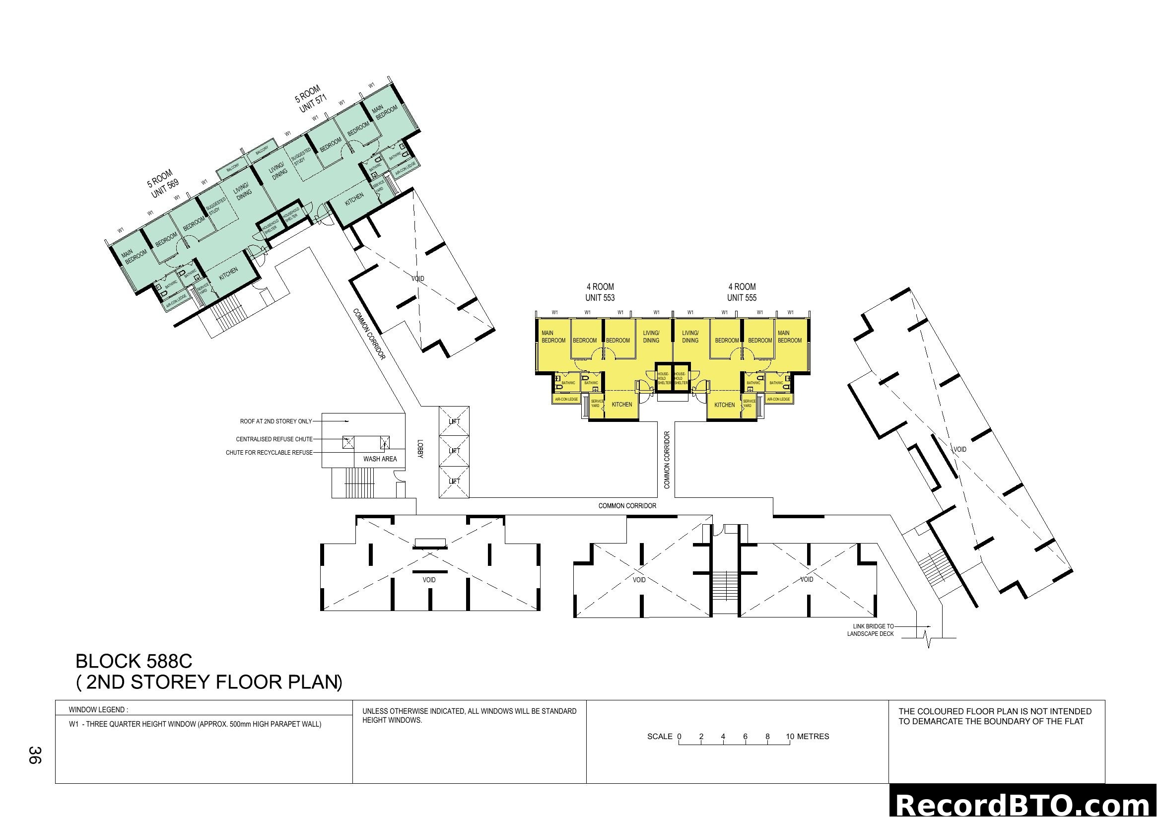
28

Block 588C 2nd Storey Floor Plan

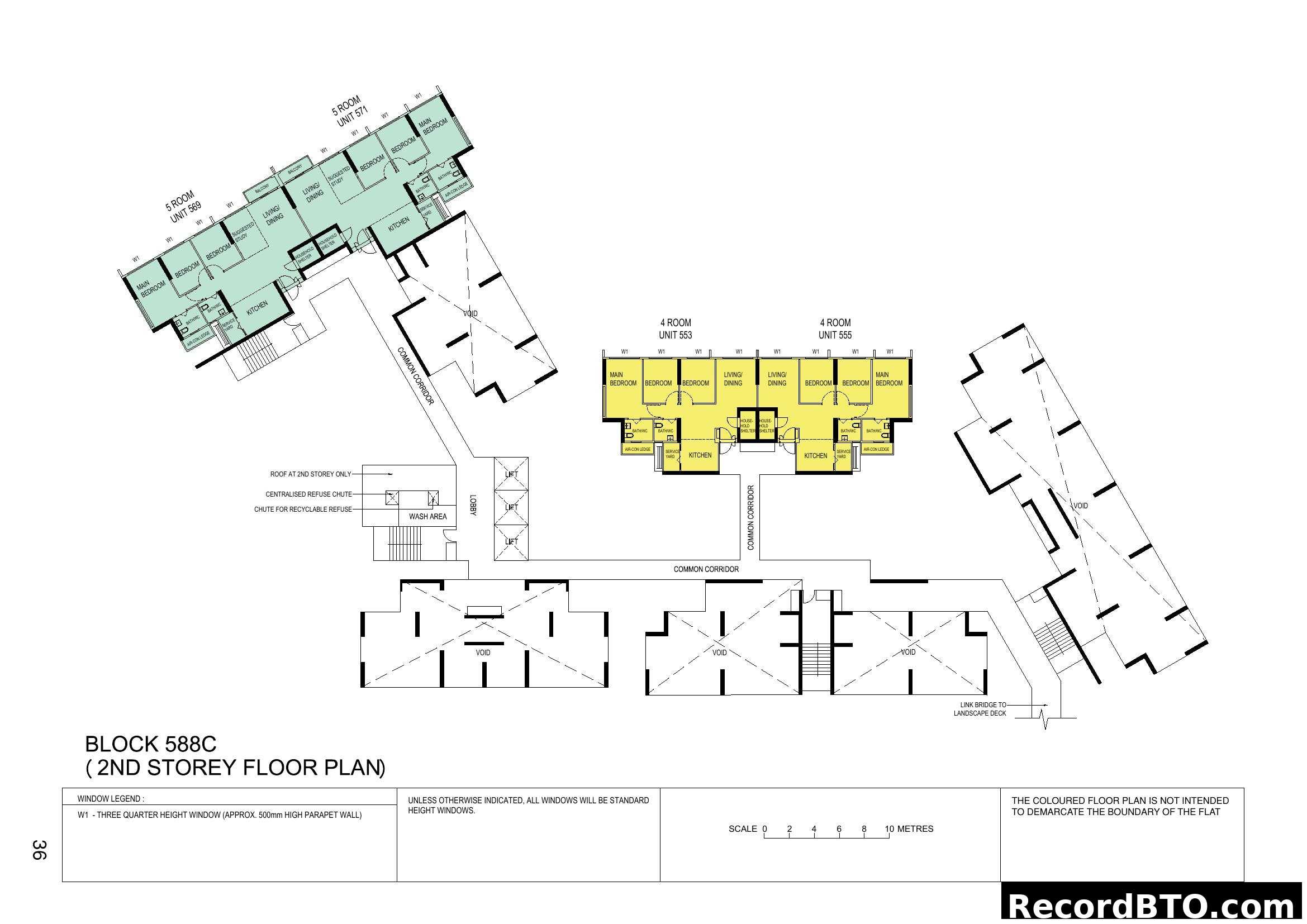
This detailed floor plan illustrates the second storey of Block 588C, showcasing the layout of four residential units: two 5-room units (569 and 571) and two 4-room units (553 and 555). It includes internal room divisions like bedrooms, living/dining areas, kitchens, bathrooms, and household shelters, along with common facilities such as corridors, lift lobby, and refuse chutes. A scale bar and window legend are also provided.

29

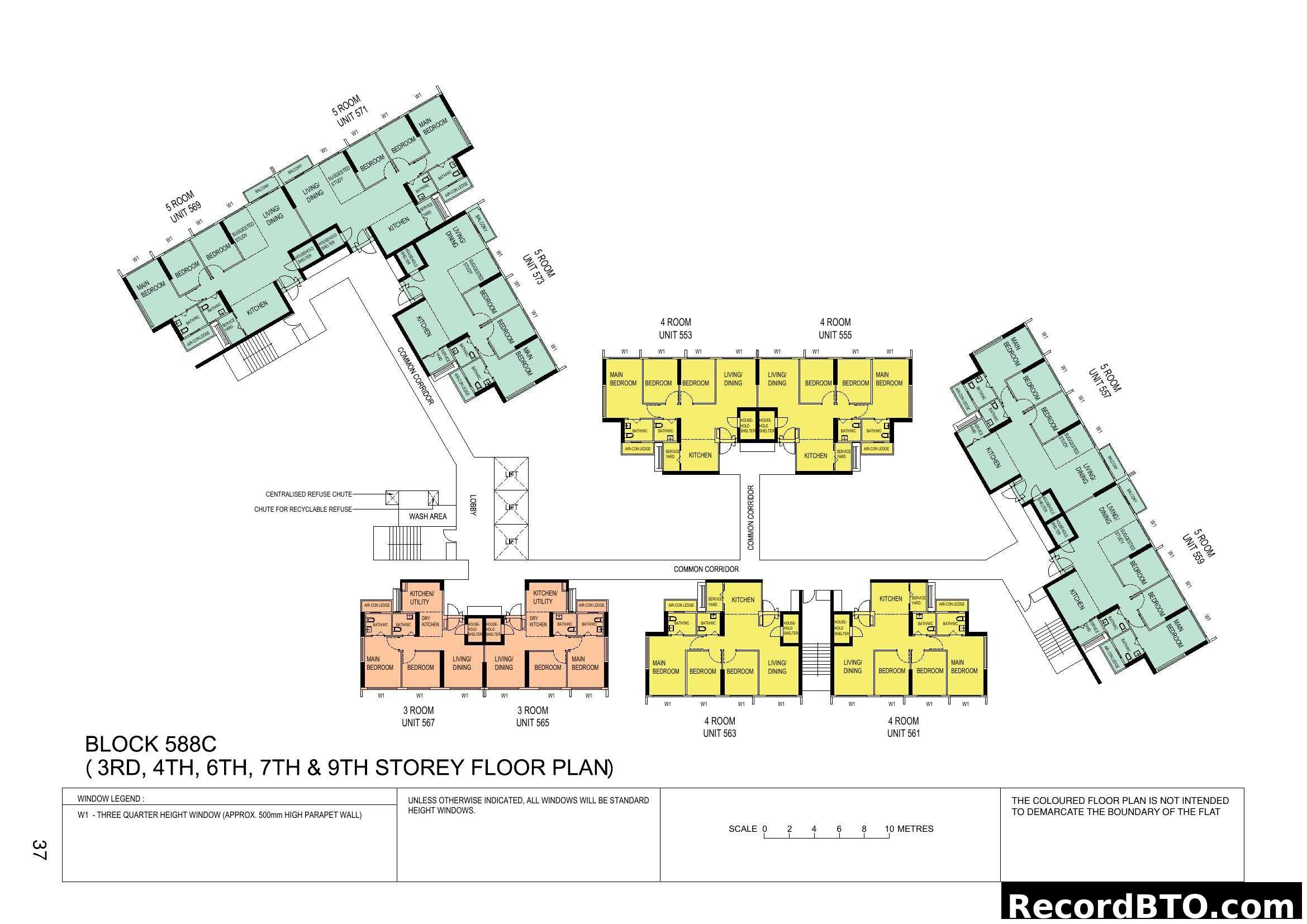
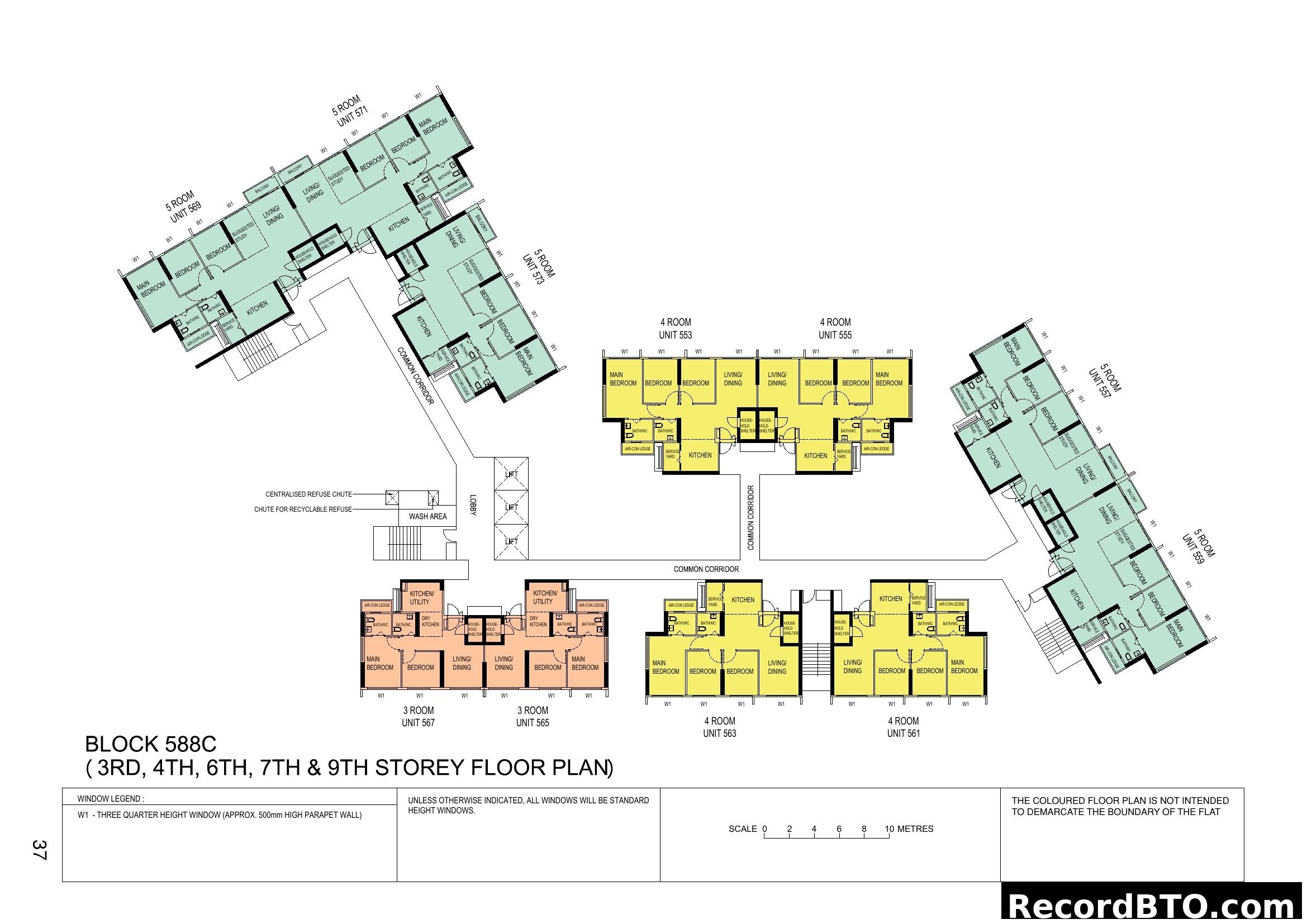
Block 588C Multi-Unit Floor Plan (Selected Storeys)

This image displays the floor plan for Block 588C, specifically for the 3rd, 4th, 6th, 7th, and 9th storeys. It showcases the layouts for 3-room, 4-room, and 5-room units, including common areas such as the common corridor, lifts, lobby, and centralized refuse chute. Individual rooms like bedrooms, living/dining areas, and kitchens are clearly labeled within each unit.

30

Block 588C Floor Plan (5th & 8th Storey)

This floor plan illustrates the layout of Block 588C for the 5th and 8th storeys. It features a variety of unit types, including 3-room, 4-room, and 5-room flats, arranged around common corridors and a central lobby with lifts and refuse chutes. The plan details individual unit layouts and their positions within the block, along with a scale and window legend.

31

Block 588C (10th Storey Floor Plan)

This image displays the 10th storey floor plan for Block 588C, illustrating the layout of various residential units including 3-room, 4-room, and 5-room flats. It details common areas such as the lobby, corridors, wash area, and refuse chutes, along with the location of a roof garden. A scale bar and window legend are also provided.

32

Block 588C 11th Storey Floor Plan

This image displays the 11th storey floor plan for Block 588C, illustrating the layout of various residential units including 3-room, 4-room, and 5-room flats. It also shows common facilities like the lobby, lifts, common corridors, centralized refuse chute, and access to a roof garden. The plan provides a detailed overview of the floor's configuration, window types, and room arrangements within each unit.

33

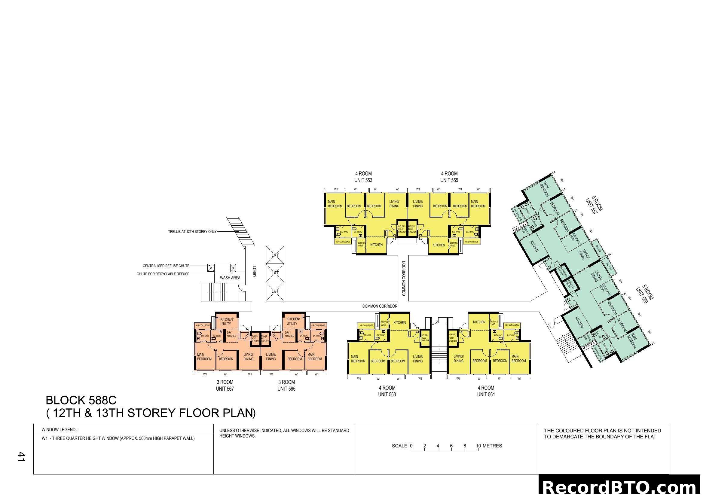
Block 588C (12th & 13th Storey Floor Plan)

This image displays the floor plan for Block 588C, specifically for the 12th and 13th storeys. It illustrates the layout of various unit types, including 3-room, 4-room, and 5-room flats, along with common areas such as the common corridor, lobby, lifts, wash area, and refuse chutes. A window legend and scale are also provided.

34

Block 588C 14th Storey Floor Plan

This image displays the 14th-storey floor plan for Block 588C, illustrating the arrangement of several 3-room and 4-room units. It details the individual unit layouts, common corridor, and central service areas like the lobby, wash area, and refuse chute. A roof garden outline and a scale bar are also visible, along with window legends and disclaimers.

35

Block 588C 15th Storey Floor Plan

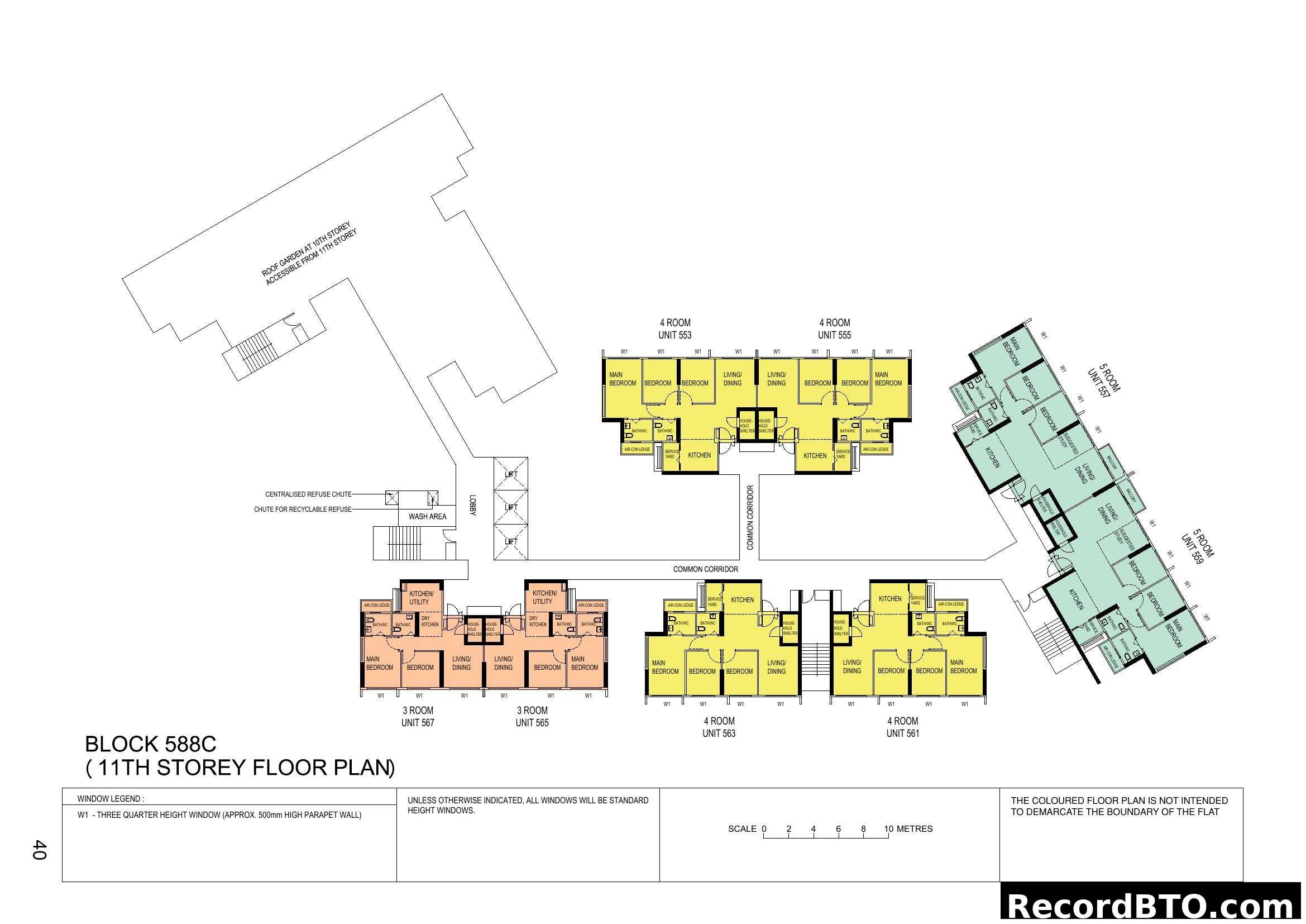
This floor plan illustrates the layout of Block 588C on the 15th storey. It features a mix of 3-room and 4-room unit types (e.g., Units 553, 555, 561, 563, 565, 567), detailing their internal configurations including bedrooms, living/dining areas, kitchens, and bathrooms. The plan also shows common facilities such as lifts, lobby, common corridor, and refuse chutes, alongside an outline for a roof garden accessible from this level.

36

Block 588C Floor Plan (16th & 18th Storey)

This floor plan illustrates the layout of Block 588C for the 16th and 18th storeys. It features multiple 3-room and 4-room units, detailed with room labels, kitchen/utility areas, bathrooms, and service yards. The plan also shows common areas such as the lobby, lifts, common corridor, wash area, and centralised refuse chute.

37

Block 588C 17th Storey Floor Plan

This floor plan illustrates the layout of the 17th storey for Block 588C. It features six residential units: two 3-room units (565, 567) and four 4-room units (553, 555, 561, 563). The plan details the arrangement of rooms within each unit, as well as common areas like the lobby, lifts, common corridors, and refuse chutes. It also includes a window legend and scale.

38

Block 589A Floor Plan (Selected Storeys)

This image displays the floor plan for Block 589A, covering the 3rd, 4th, 6th, 7th, 9th, 10th, 12th, 13th, 15th, and 16th storeys. It illustrates the layout of various 4-room and 5-room residential units, along with common areas like the lobby, lifts, wash area, and refuse chutes. The plan details individual room arrangements, including bedrooms, living/dining areas, kitchens, and household shelters.

39

Block 589A (5th, 8th, 11th & 14th Storey) Floor Plan

This floor plan illustrates the layout for Block 589A across the 5th, 8th, 11th, and 14th storeys. It details multiple 4-room and 5-room units, showcasing their individual room arrangements including living/dining areas, bedrooms, kitchens, and bathrooms. The plan also highlights common areas such as the lobby, lifts, common corridor, and refuse chutes, providing a comprehensive view of the residential floor.

40

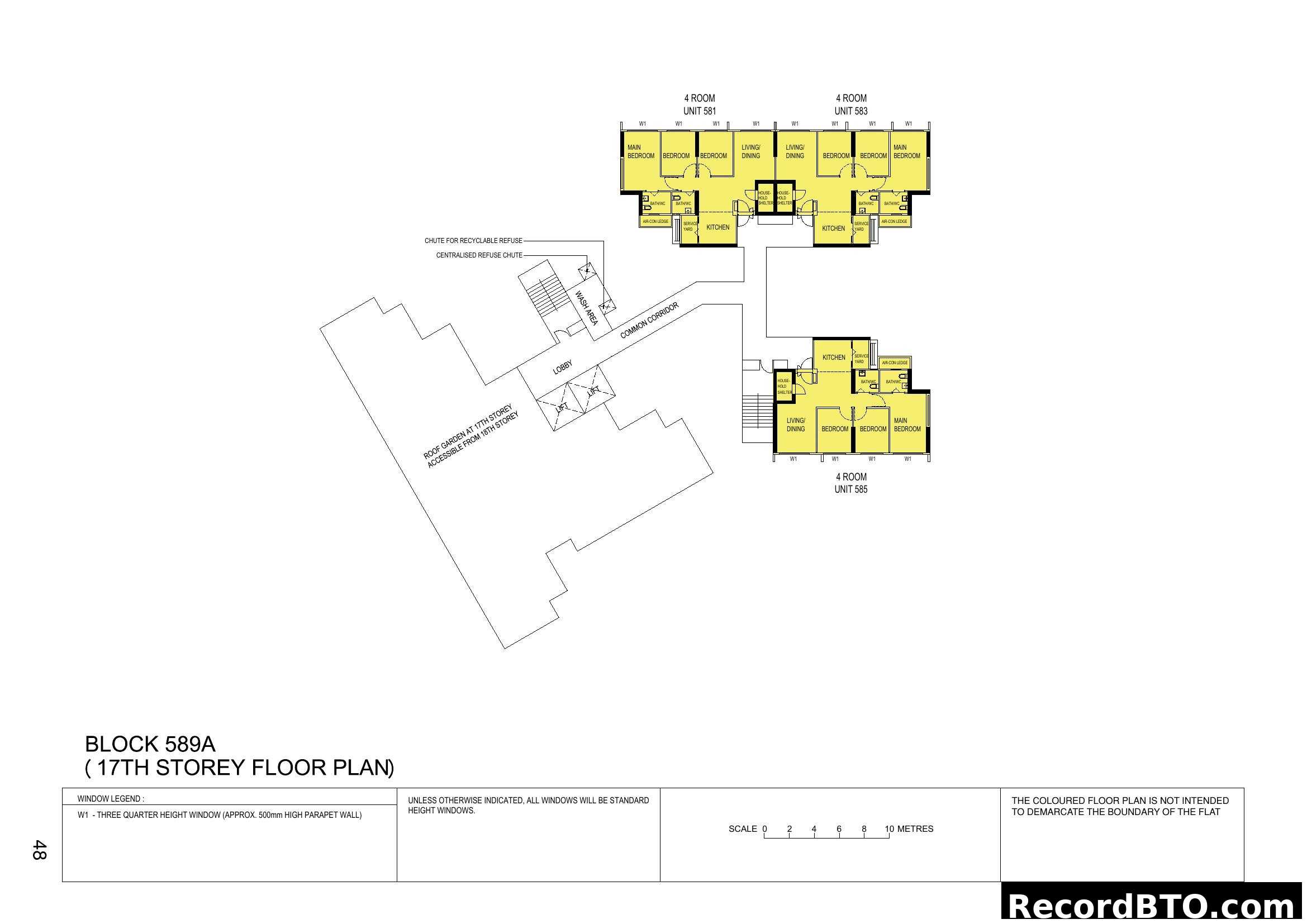
Block 589A (17th Storey Floor Plan)

This is a floor plan for the 17th storey of Block 589A, showcasing the layout of three 4-room units (Units 581, 583, 585) along with common facilities. The plan details the lobby, lifts, wash area, and common corridor. It also indicates a roof garden on the 17th storey, accessible from the 18th storey, and provides a window legend and scale bar for measurements.

41

Block 589A (18th Storey Floor Plan)

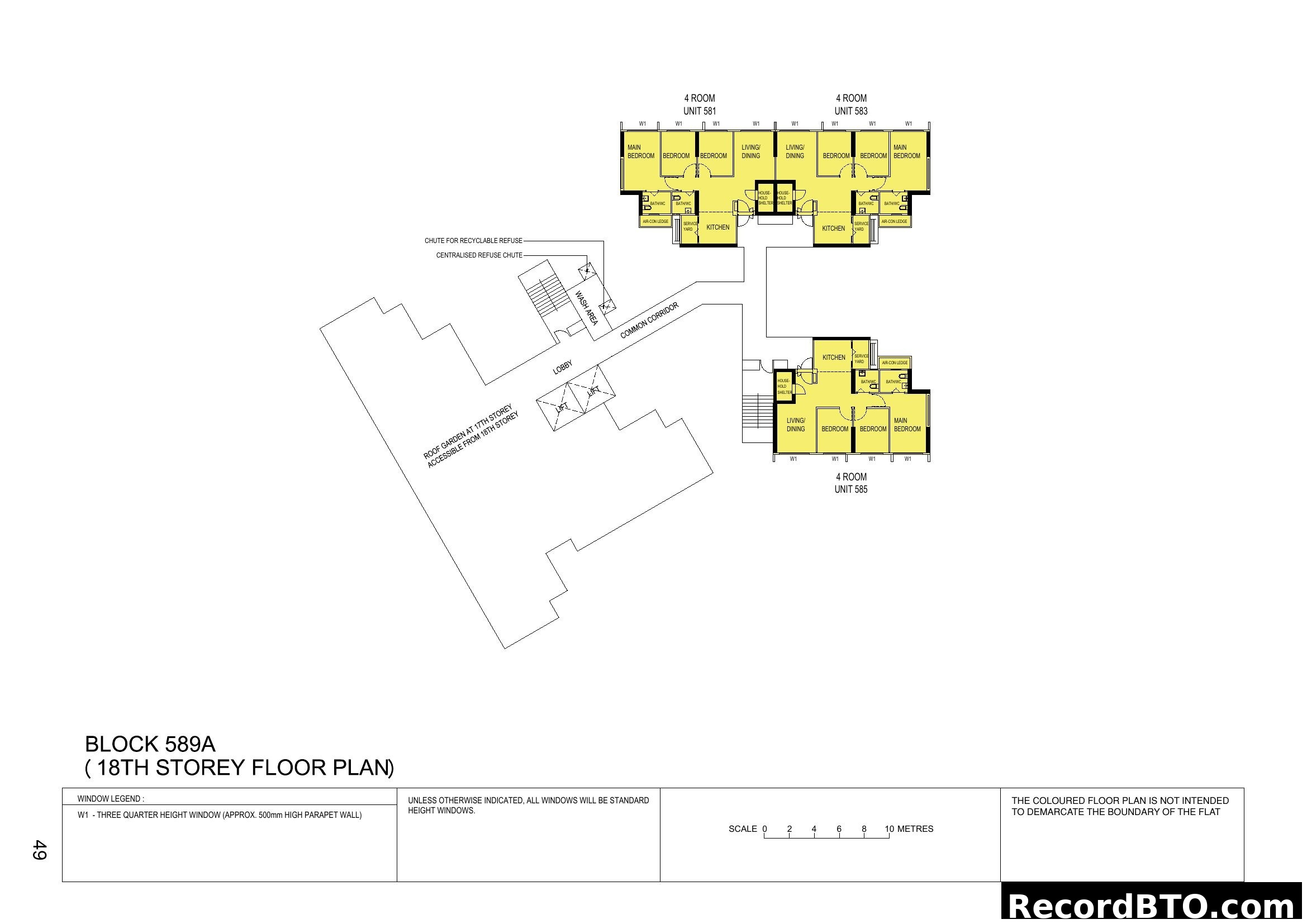
This is a floor plan for the 18th storey of Block 589A, showcasing the layout of three 4-room units (Units 581, 583, and 585). It details the common corridor, lobby, lifts, wash area, and refuse chutes. The plan also indicates access to a roof garden at the 17th storey. A window legend and scale are provided at the bottom.

42

Block 589B Selected Storey Floor Plan

This image presents the floor plan for specific storeys (3rd, 4th, 6th, 7th, 9th, 10th, 12th & 13th) of Block 589B. It details the layouts of 2-room Flexi (Type 1 and Type 2) and 3-room units, along with rental flats, common corridors, lift lobbies, refuse chutes, and a wash area. A window legend and scale bar are included.

43

Block 589B (5th, 8th, 11th & 14th Storey Floor Plan)

This floor plan illustrates the layout for Block 589B on the 5th, 8th, 11th, and 14th storeys. It displays various unit types including 2-room Flexi (Type 1 and Type 2) and 3-room flats, along with common corridors, lifts, wash areas, and rental flats.

44

Block 589B (15th Storey Floor Plan)

This image displays the 15th-storey floor plan for Block 589B, illustrating the layout of various residential units including 2-room Flexi (Type 1), 2-room Flexi (Type 2), and 3-room flats. The plan details the arrangement of living spaces, bedrooms, kitchens, and bathrooms within each unit, along with common corridors, lifts, a wash area, and a lobby. It also indicates the location of a centralised refuse chute and an inaccessible roof area. A window legend and scale are provided.

45

Block 589B - 16th Storey Floor Plan (2- and 3-Room Units)

This HDB BTO floor plan illustrates the 16th storey of Block 589B. It features a mix of 2-room Flexi (Type 1 and Type 2) and 3-room units, detailed with room layouts including bedrooms, living/dining areas, kitchens, and bathrooms. The plan also shows common corridors, lift lobby, and access to refuse chutes, providing an overview of the block's level layout.

46

Block 589B 17th Storey Floor Plan

This image displays the 17th storey floor plan for Block 589B, featuring various unit types including 3-room, 2-room Flexi (Type 1), and 2-room Flexi (Type 2) units. It shows the layout of multiple residential units, common corridors, lift lobby, wash area, and refuse chutes, along with a scale bar and a legend for window types.

47

Block 589C (Selected Storeys) Floor Plan

This image displays the floor plan for specific storeys (3rd, 4th, 6th, 7th, 9th, 10th, 12th & 13th) of Block 589C. It shows the layout of multiple 4-room and 5-room units, including common areas like the lobby, lifts, wash area, and common corridor. Each unit details room arrangements, bathrooms, kitchen, service yard, and air-con ledges. The plan also includes a window legend and a scale.

48

Block 589C Floor Plan (5th, 8th & 11th Storey)

This floor plan illustrates the layout of Block 589C for the 5th, 8th, and 11th storeys. It details multiple 4-room and 5-room units, showcasing their internal arrangements including bedrooms, living/dining areas, kitchens, and bathrooms. The plan also highlights common amenities like the corridor, lobby, lift access, and refuse chutes, providing a comprehensive overview of the block's level layout.

49

Block 589C 14th Storey Floor Plan

This HDB brochure page displays the layout of the 14th storey for Block 589C. It details the arrangement of 4-room and 5-room units, including their internal room configurations, as well as common areas like the lobby, common corridor, wash area, and refuse chutes. The plan highlights specific unit numbers and window types.

50

Block 589C 15th Storey Floor Plan

This floor plan displays the layout of the 15th storey of Block 589C. It details the arrangement of 4-room and 5-room units, including their internal rooms, kitchens, bathrooms, and service yards. Common areas such as the lobby, common corridor, wash area, and refuse chutes are also shown. The plan indicates the location of a roof garden on the 14th storey, accessible from the 15th storey.

51

Block 589C (16th Storey Floor Plan)

This image displays the 16th storey floor plan for Block 589C, showcasing the layout of multiple 4-room and 5-room units. It includes common areas such as the lobby, common corridor, wash area, and chute for recyclable/centralised refuse. The plan details the internal room arrangements for each unit, including bedrooms, living/dining areas, kitchens, bathrooms, and utility spaces.

52

Block 589C 17th Storey Floor Plan

This image presents the floor plan for the 17th storey of Block 589C, illustrating the layout of several residential units including 4-room and 5-room flats. It details the arrangement of living spaces, bedrooms, kitchens, and bathrooms within each unit, as well as common areas like the corridor, lobby, and wash area. A window legend and scale bar are provided for reference.

53

Block 590B (3rd, 4th, 6th, 7th, 9th, 10th & 12th Storey Floor Plan)

This image displays the block layout floor plan for Block 590B on specific storeys, including the 3rd, 4th, 6th, 7th, 9th, 10th, and 12th. It details the arrangement of 2-room Flexi (Type 1 and Type 2) and 3-room residential units (Units 655, 657, 659, 661, 663, 665), rental flats, and common facilities such as the common corridor, lobby, lifts, wash area, and refuse chutes.

54

Block 590B (5th, 8th & 11th Storey Floor Plan)

This image displays a detailed floor plan for Block 590B at the 5th, 8th, and 11th storeys. It illustrates the layout of various residential units, including 2-room Flexi (Type 1 & 2) and 3-room flats, along with common facilities such as the common corridor, lobby, lifts, and wash area. Legends for windows and disclaimers are also included.

55

Block 590B (13th Storey Floor Plan)

This image displays the 13th-storey floor plan for Block 590B, illustrating the layout of various residential units including 2-Room Flexi (Type 1 and Type 2) and 3-Room units. It also shows common facilities like the lobby, lifts, wash area, and refuse chutes, along with specific unit numbers and window legends.

56

Block 590B 14th Storey Floor Plan

This image displays the 14th storey floor plan for Block 590B, illustrating the layouts of various 2-room Flexi (Type 1 & 2) and 3-room units. It includes common areas like the lobby, wash area, and refuse chutes, alongside detailed room designations, unit numbers, and a window legend.

57

Block 590B (15th Storey Floor Plan)

This image displays the 15th-storey floor plan for Block 590B, illustrating the layouts of various residential units including 2-room Flexi (Type 1 and Type 2) and 3-room flats. It also shows common areas such as the lobby, lifts, wash area, and centralised refuse chutes. Legends for window types and disclaimers regarding the coloured floor plan are provided.

58

Block 590C 2nd Storey Floor Plan

This floor plan illustrates the layout of Block 590C at the 2nd storey level. It displays the configuration of 4-room units (specifically 685 and 687) along with common areas like the corridor, lobby, lifts, and wash area. The plan also indicates a link bridge and roof areas at this level, and provides window legends and general notes regarding window heights and roof levels for different storeys.

59

Block 590C Floor Plan (3rd-10th Storeys)

This image displays the floor plan for Block 590C, specifically for the 3rd, 4th, 6th, 7th, 9th, and 10th storeys. It shows the arrangement of 2-room Flexi, 3-room, and 4-room units, along with common facilities such as lifts, lobby, wash area, and refuse chutes. A scale bar and window legend are also included.

60

Block 590C 5th & 8th Storey Floor Plan

This image displays the floor plan for Block 590C, specifically for the 5th and 8th storeys. It details the layout of various unit types, including 2-room Flexi (Type 2), 3-room, and 4-room flats, along with common areas such as the lifts, lobby, common corridor, and wash area. A legend for windows and a scale are also provided. It indicates that units on these floors are higher than the roof levels of adjacent blocks.

61

Block 590C 11th Storey Floor Plan

This image displays the 11th storey floor plan for Block 590C, featuring a layout of various residential units including 3-room, 2-room Flexi (Type 2), and 4-room units. The plan also illustrates common areas such as the corridor, lifts, wash area, and a roof garden accessible from the 12th storey. Details on window types and height specifications are provided in the legend.

62

Block 590C 12th Storey Floor Plan

This is a floor plan for Block 590C, specifically detailing the layout of the 12th storey. It illustrates the arrangement of multiple 3-room units (671, 673, 675, 677) and 2-room Flexi (Type 2) units (667, 669, 679, 681). The plan also shows common areas such as the common corridor, lifts, lobby, wash area, and refuse chutes. It indicates an inaccessible roof and a roof garden accessible from this storey, along with window legends and notes on unit height regulations.

63

General Specifications For Costa Grove (2-room Flexi)

This HDB BTO brochure page outlines the general specifications for 2-room Flexi (short lease) flats at Costa Grove. It details the construction components such as foundation, structure, roof, walls, windows, and doors. Finishes for floors, walls, and ceilings are specified, along with fittings like locksets, water closet suite, and optional items. Services like gas, water, and electrical wiring are also mentioned. The page concludes with important notes on household shelters, UPVC door frames, open spaces, and service details.

64

General Specifications for Costa Grove

This page details the general specifications for HDB flats at Costa Grove, covering 2-room Flexi, 3-room, 4-room, and 5-room types. It lists construction details for foundation, structure, roof, walls, windows, and doors, along with information on finishes, fittings, and services provided. Important notes regarding household shelters and renovation rules are also included.

65

HDB Brochure Disclaimer and Copyright Information

This page from an HDB brochure presents a detailed disclaimer. It outlines copyright ownership, the informational nature of the content, and disclaims accuracy warranties. Key points include HDB's right to change project aspects, non-alteration of flats, and the indicative nature of plans. It also lists common and community facilities that HDB reserves the right to use. The page concludes with advice to consult relevant authorities for complete information and includes a page number and copyright notice for the Housing & Development Board.

66

Optional Component Scheme (OCS) for 2-Room Flexi Flats

This page details the Optional Component Scheme (OCS) for 2-room Flexi flats at Costa Grove. It outlines standard inclusions for all flats, such as floor finishes, wall tiles, and bathroom fixtures. It then presents two optional packages: Package 1 for flooring and a sliding partition, and Package 2 for sanitary fittings. The page also mentions flat sizes (36sqm and 45sqm) and lease types, along with grab bar installation for short-lease flats.

67

Optional Component Scheme - Package 3 for Flexi Flats

This brochure page details Package 3 of the Optional Component Scheme for short-lease 2-room Flexi Flats, aimed at elderly buyers for move-in condition. It outlines elderly-friendly fittings such as built-in kitchen cabinets with induction hob, an option for a lower counter top height for wheelchair users, mobile kitchen cabinets providing knee space, and a built-in bedroom wardrobe with a lower hanging rod. Additional fittings like window grilles, mirror, toilet roll holder, lighting, and water heater are also listed.

68

Optional Component Scheme - Costa Grove

This HDB BTO brochure page outlines the Optional Component Scheme (OCS) for 3-, 4-, and 5-room flats at Costa Grove. It details standard inclusions like floor finishes and wall tiles, and optional items such as floor finishes for living/dining/bedrooms, internal doors, and sanitary fittings (wash basin and shower set), which can be added to the flat's selling price.

Tip: Click on any page to jump directly to that brochure page

Photo Gallery

68 photos

Costa Grove HDB Sales Launch August 2020 Announcement

Costa Grove HDB Sales Launch August 2020 Announcement

Delightful Living at Costa Grove

Delightful Living at Costa Grove

Artist's Impression of HDB Development & Lifestyle

Artist's Impression of HDB Development & Lifestyle

Pasir Ris Location Map with Important Notes

Pasir Ris Location Map with Important Notes

Eco-Friendly Living & Lovely Homes Specifications

Eco-Friendly Living & Lovely Homes Specifications