Skip to main content
Tampines GreenCrest
Completed
Tampines GreenCrest HDB Sales Launch August 2020
Artist impression
Tampines GreenCrest Site Plan and Unit Distribution
Site plan
3-Room Floor Plan with Flexible Kitchen Layout
Floor plan
Tampines Location Map and Important Notes
Location map
Tampines GreenCrest HDB Sales Launch August 2020
Artist impression

Tampines GreenCrest

Tampines Street 21 / Tampines Street 24

Project Details

No of Blocks
7
Highest Floor
14
Tenure
99-year
Developer
Launch Date
Aug 2020
Expected TOP
To be announced
Total Units
720
BTO Type
standard

Site Plan

Detailed layout and block arrangement

Tampines GreenCrest Site Plan
Click to zoom

Floor Plans

Browse floor plans by unit type and block

3-Room Floor Plan with Flexible Kitchen Layout

3-Room Floor Plan with Flexible Kitchen Layout

3-room
4-Room Floor Plan and Kitchen Flexibility Options

4-Room Floor Plan and Kitchen Flexibility Options

4-room
Block 665A & 665B Stacking Chart and Unit Types

Block 665A & 665B Stacking Chart and Unit Types

3-room 4-room 5-room

Blocks: 665A, 665B

Stacking Plan for BLK 665C

Stacking Plan for BLK 665C

3-room 4-room 5-room

Blocks: 665C

Block 665A (2nd Storey Floor Plan)

Block 665A (2nd Storey Floor Plan)

3-room 4-room 5-room

Blocks: 665A

Block 665A 3rd Storey Floor Plan

Block 665A 3rd Storey Floor Plan

3-room 4-room 5-room

Blocks: 665A

Block 665A 4th & 5th Storey Floor Plan

Block 665A 4th & 5th Storey Floor Plan

3-room 4-room 5-room

Blocks: 665A

Block 665A 6th Storey Floor Plan

Block 665A 6th Storey Floor Plan

3-room 4-room 5-room

Blocks: 665A

Block 665A Floor Plan (7th, 14th & 15th Storey)

Block 665A Floor Plan (7th, 14th & 15th Storey)

3-room 4-room 5-room

Blocks: 665A

Block 665A (8th and 9th Storey Floor Plan)

Block 665A (8th and 9th Storey Floor Plan)

3-room 4-room 5-room

Blocks: 665A

Block 665A Floor Plan (10th & 11th Storey)

Block 665A Floor Plan (10th & 11th Storey)

3-room 4-room 5-room

Blocks: 665A

Block 665A Floor Plan (12th and 13th Storeys)

Block 665A Floor Plan (12th and 13th Storeys)

3-room 4-room 5-room

Blocks: 665A

Block 665A Floor Plan (16th Storey)

Block 665A Floor Plan (16th Storey)

3-room 4-room 5-room

Blocks: 665A

Block 665B 2nd Storey Floor Plan

Block 665B 2nd Storey Floor Plan

3-room 4-room 5-room

Blocks: 665B

Block 665B 3rd Storey Floor Plan

Block 665B 3rd Storey Floor Plan

3-room 4-room 5-room

Blocks: 665B

Block 665B (4th Storey) Floor Plan with Unit Layouts

Block 665B (4th Storey) Floor Plan with Unit Layouts

3-room 4-room 5-room

Blocks: 665B

Block 665B 5th & 6th Storey Floor Plan

Block 665B 5th & 6th Storey Floor Plan

3-room 4-room 5-room

Blocks: 665B

Block 665B, 7th Storey Floor Plan

Block 665B, 7th Storey Floor Plan

3-room 4-room 5-room

Blocks: 665B

Block 665B 8th Storey Floor Plan

Block 665B 8th Storey Floor Plan

3-room 4-room 5-room

Blocks: 665B

Block 665B (9th Storey Floor Plan)

Block 665B (9th Storey Floor Plan)

3-room 4-room 5-room

Blocks: 665B

Block 665B (10th Storey Floor Plan)

Block 665B (10th Storey Floor Plan)

3-room 4-room 5-room

Blocks: 665B

Block 665B (11th Storey Floor Plan)

Block 665B (11th Storey Floor Plan)

3-room 4-room 5-room

Blocks: 665B

Block 665B 12th Storey Floor Plan

Block 665B 12th Storey Floor Plan

3-room 4-room 5-room

Blocks: 665B

Block 665B: 13th & 14th Storey Floor Plan

Block 665B: 13th & 14th Storey Floor Plan

3-room 4-room 5-room

Blocks: 665B

Block 665B, 15th Storey Floor Plan with Multiple Unit Types

Block 665B, 15th Storey Floor Plan with Multiple Unit Types

3-room 4-room 5-room

Blocks: 665B

Block 665C (2nd Storey Floor Plan)

Block 665C (2nd Storey Floor Plan)

3-room 4-room 5-room

Blocks: 665C

Block 665C - 3rd Storey Floor Plan

Block 665C - 3rd Storey Floor Plan

3-room 4-room 5-room

Blocks: 665C

Block 665C (4th Storey Floor Plan)

Block 665C (4th Storey Floor Plan)

3-room 4-room 5-room

Blocks: 665C

Block 665C 5th Storey Floor Plan

Block 665C 5th Storey Floor Plan

3-room 4-room 5-room

Blocks: 665C

Block 665C, 6th Storey Floor Plan

Block 665C, 6th Storey Floor Plan

3-room 4-room 5-room

Blocks: 665C

Block 665C 7th Storey Floor Plan

Block 665C 7th Storey Floor Plan

3-room 4-room 5-room

Blocks: 665C

Block 665C (8th and 9th Storey Floor Plan)

Block 665C (8th and 9th Storey Floor Plan)

3-room 4-room 5-room

Blocks: 665C

Block 665C 10th Storey Floor Plan

Block 665C 10th Storey Floor Plan

3-room 4-room 5-room

Blocks: 665C

Block 665C - 11th Storey Floor Plan

Block 665C - 11th Storey Floor Plan

3-room 4-room 5-room

Blocks: 665C

Block 665C (12th and 13th Storey Floor Plan)

Block 665C (12th and 13th Storey Floor Plan)

3-room 4-room 5-room

Blocks: 665C

Block 665C 14th Storey Floor Plan

Block 665C 14th Storey Floor Plan

3-room 4-room 5-room

Blocks: 665C

Block 665C, 15th Storey Floor Plan

Block 665C, 15th Storey Floor Plan

3-room 4-room 5-room

Blocks: 665C

Block 665C (16th Storey Floor Plan)

Block 665C (16th Storey Floor Plan)

3-room 4-room 5-room

Blocks: 665C

Quick Info

Town
Tampines
Tenure
99-year

Project Brochure

47 pages

Page 1 / 47
Brochure Page 1

Table of Contents

1

Tampines GreenCrest HDB Sales Launch August 2020

This HDB BTO brochure page introduces Tampines GreenCrest, featuring its project logo and the launch date of August 2020. A vibrant artist's impression showcases the modern residential blocks amidst lush greenery and community spaces. A smiling couple, likely representing prospective homeowners, looks optimistically at the development, enhanced by 'like' icons, suggesting desirability.

2

Modern Homes Amid Tranquil Surroundings - Tampines GreenCrest

This page features an artist's impression of Tampines GreenCrest, a modern residential development in Tampines North. It highlights the tranquil surroundings with landscaped terraces and shows the exterior of the 3 residential blocks, which vary from 8 to 16 storeys. The development offers 346 units of 3-, 4-, and 5-room flats.

3

Tampines GreenCrest Artist Impression and Facilities

This page features an artist's impression of Tampines GreenCrest, showcasing multi-storey residential blocks integrated with extensive green spaces, recreational facilities like playgrounds, fitness stations, and walking paths. The development offers convenient access to an eating house, minimart, shops, and a childcare centre. It is situated near upcoming parks, Sungei Api Api, roof gardens, and the future Tampines North MRT station, with facilities accessible to the public. A photograph of seniors jogging illustrates a healthy lifestyle.

4

Tampines Location Map and Important Notes

This page features a detailed location map of Tampines, highlighting existing and future MRT lines, roads, and various facilities such as schools, parks, and community centers. It also includes "Important Notes" about HDB precinct planning and the indicative nature of the provided information. A legend clarifies map symbols, while additional notes elaborate on proposed developments and a disclaimer about data accuracy and changes.

5

Tampines GreenCrest: Eco-Friendly & Smart Features

This brochure page details the eco-friendly, smart, and modern home features of Tampines GreenCrest. It highlights sustainable practices like recyclable waste chutes and regenerative lifts, smart lighting, and waste conveyance. The page also outlines specifications for 3-, 4-, and 5-room flats, including flooring, internal doors, and sanitary fittings, built with the PPVC method, and offers flexible kitchen/utility layouts.

6

3-Room Floor Plan with Flexible Kitchen Layout

This page showcases a 3-room HDB floor plan with an open kitchen concept, emphasizing flexibility in layout. It includes a detailed floor plan for a 3-room unit with an approximate floor area of 70 sqm, alongside artist's impressions demonstrating partition options for separating the kitchen from the living/dining area and the utility from the kitchen.

7

4-Room Floor Plan and Kitchen Flexibility Options

This HDB BTO brochure page showcases a 4-room flat floor plan, emphasizing its flexible open kitchen concept. It illustrates two potential partition options (A and B) with corresponding artist impressions. Partition A separates the kitchen/utility from the living/dining area, while Partition B separates the utility from the kitchen, allowing homeowners to customize their space according to their preferences.

8

5-Room Floor Plan with Flexible Kitchen Options

This page presents a 5-room HDB floor plan, highlighting an open kitchen concept designed for flexibility. It illustrates how homeowners can add partitions to separate the kitchen/utility from the living/dining area (Partition A) or the utility from the kitchen (Partition B), with artist's impressions showing these configurations.

9

Tampines GreenCrest Site Plan and Unit Distribution

This image displays the site plan for Tampines GreenCrest, detailing the layout of residential blocks (665A, 665B, 665C), amenities, roads, and surrounding land uses. A comprehensive legend explains various features such as room types, facilities, and open spaces. Additionally, a table summarizes the number of 3, 4, and 5-room units available in each block, along with lift information. Important notes regarding development plans, facility approvals, and COVID-19 related provisions are also included.

10

Block 665A & 665B Stacking Chart and Unit Types

This image displays stacking charts for HDB Blocks 665A and 665B, illustrating the distribution of flat types (3-room, 4-room, 5-room) across different floor levels and stacks. The charts use color coding to represent each unit type, with a clear legend provided. Key features such as a roof garden on the 9th storey (accessible from 10th) and areas for future amenities/facilities are also indicated.

11

Stacking Plan for BLK 665C

This image presents the stacking plan for Block 665C, detailing the distribution of different flat types across various floors and stacks. The legend indicates 3-room units in orange, 4-room units in yellow, and 5-room units in green. It displays units from floor #01 to #16 across stacks 229 through 247, highlighting special features like a roof garden on the 10th storey and a child care centre on the lower floors of stack 247.

12

Block 665A (2nd Storey Floor Plan)

This image displays the 2nd storey floor plan for Block 665A, showcasing the layout of multiple residential units including 3-room, 4-room, and 5-room flats. It details the arrangement of rooms within each unit, common corridors, lift lobby, and centralised refuse chutes. A window legend is also provided, defining W1 and W2 window types.

13

Block 665A 3rd Storey Floor Plan

This image displays the floor plan for the 3rd storey of Block 665A, showcasing the layouts for 3-room, 4-room, and 5-room units (Units 197, 199, 201, 203, 205, 207). It includes common corridors, lifts, a wash area, and a refuse chute. A window legend detailing W1 (full height) and W2 (three-quarter height) windows, and a scale bar are also provided.

14

Block 665A 4th & 5th Storey Floor Plan

This image displays the floor plan for Block 665A, specifically for the 4th and 5th storeys. It showcases the layout of six residential units: 3-room (Unit 199, Unit 207), 4-room (Unit 197, Unit 205), and 5-room (Unit 201, Unit 203) flats. The plan also includes common areas such as corridors, lobby, lifts, a wash area, and refuse chutes, along with a window legend and scale.

15

Block 665A 6th Storey Floor Plan

This image displays the 6th storey floor plan for Block 665A, detailing the layouts for 3, 4, and 5-room units. It includes common areas like corridors, a lobby, and lifts, along with a window legend and scale. Notes regarding higher storeys and the purpose of the coloured plan are also present.

16

Block 665A Floor Plan (7th, 14th & 15th Storey)

This HDB BTO brochure page displays the block layout floor plan for Block 665A, specifically for the 7th, 14th, and 15th storeys. It details the arrangement of 3-room, 4-room, and 5-room units around common corridors, a lobby, lifts, and refuse chutes. A window legend specifying W1 and W2 window types, and a scale bar are also provided.

17

Block 665A (8th and 9th Storey Floor Plan)

This image displays the floor plan for Block 665A, specifically for the 8th and 9th storeys. It illustrates the layout of 3-room, 4-room, and 5-room units, showing their arrangement around a common corridor and lobby. A window legend and scale bar are also included.

18

Block 665A Floor Plan (10th & 11th Storey)

This image displays the floor plan for Block 665A, specifically for the 10th and 11th storeys. It illustrates the layouts of multiple residential units including 3-room, 4-room, and 5-room flats, along with common areas such as corridors, lift lobby, and wash area. A window legend is also included.

19

Block 665A Floor Plan (12th and 13th Storeys)

This image displays the floor plan for Block 665A, specifically for the 12th and 13th storeys. It illustrates the layout of various residential units, including 3-room, 4-room, and 5-room flats, along a common corridor and shared lobby area. The plan also includes a legend for different window types (W1 and W2) and a disclaimer regarding the boundaries of the flats.

20

Block 665A Floor Plan (16th Storey)

This image is a detailed floor plan for Block 665A on the 16th storey, displaying the layout of various unit types including 3-room, 4-room, and 5-room flats. It illustrates the common corridors, lobby, lifts, and individual unit configurations, along with a window legend and scale. It notes that units on and above the 7th storey are higher than the main roof garden level.

21

Block 665B 2nd Storey Floor Plan

This image displays the detailed floor plan for the 2nd storey of Block 665B, showcasing the layout of various apartment units including 3-room, 4-room, and 5-room flats. It illustrates the common corridors, household shelters, kitchens, bathrooms, bedrooms, and living/dining areas for each unit, along with a window legend (W1, W2) and a scale bar. The plan provides a clear overview of the residential arrangement on this specific floor.

22

Block 665B 3rd Storey Floor Plan

This image presents the detailed floor plans for the 3rd storey of Block 665B, featuring various unit types including 3-room, 4-room, and 5-room units. It outlines the internal layouts of each unit, common corridors, lobby areas, and a wash area. A window legend is provided to differentiate between full-height and three-quarter-height windows. The plan also notes that units on and above the 3rd storey are elevated above the roof garden level of the childcare centre (Block 665C).

23

Block 665B (4th Storey) Floor Plan with Unit Layouts

This image displays the 4th-storey floor plan for Block 665B, showcasing the layouts of 3-room, 4-room, and 5-room units. It details the arrangement of living spaces, bedrooms, kitchens, and utilities, along with common corridors and a central lobby. A window legend defines different window types used in the flats.

24

Block 665B 5th & 6th Storey Floor Plan

This floor plan illustrates the layout of 3-room, 4-room, and 5-room units in Block 665B for the 5th and 6th storeys. It details the internal arrangement of living spaces, bedrooms, kitchens, and bathrooms, along with window types (W1, W2) and common corridors. A legend for window types and a scale bar in meters are also provided.

25

Block 665B, 7th Storey Floor Plan

This detailed floor plan illustrates the layout of residential units on the 7th storey of Block 665B. It features 3-room, 4-room, and 5-room flats, arranged along common corridors with a central lobby, lifts, and wash area. A window legend and scale are also provided.

26

Block 665B 8th Storey Floor Plan

This image displays the 8th storey floor plan for Block 665B, detailing the layout of various residential units, including 3-room, 4-room, and 5-room flats. It illustrates the arrangement of living spaces, bedrooms, bathrooms, kitchens, and common areas such as corridors, lift lobbies, and refuse chutes. A window legend and scale bar are also provided.

27

Block 665B (9th Storey Floor Plan)

This image displays the 9th-storey floor plan for Block 665B, detailing the layout of various residential units including 3-room, 4-room, and 5-room flats. It shows the arrangement of living/dining areas, bedrooms, kitchens, and bathrooms, along with common corridors, a lobby, and utility spaces. The plan also includes a window legend and notes regarding roof gardens and building levels.

28

Block 665B (10th Storey Floor Plan)

This is a floor plan depicting the layout of the 10th storey of Block 665B. It showcases various 3-room, 4-room, and 5-room residential units (Units 213, 211, 219, 221, 223, 209, 225, 227) along with common corridors, a lobby, and other shared facilities. A window legend is also provided, detailing different window types.

29

Block 665B (11th Storey Floor Plan)

This image presents the 11th storey floor plan for Block 665B, detailing the layouts of 3-room, 4-room, and 5-room units. It illustrates the arrangement of units along a common corridor, showing living/dining areas, bedrooms, kitchens, and bathrooms. The plan also includes common amenities like lifts, household shelters, and a window legend clarifying 'W1' (full-height) and 'W2' (three-quarter height) windows.

30

Block 665B 12th Storey Floor Plan

This is the 12th storey floor plan for Block 665B, showcasing the layouts of various 3-room, 4-room, and 5-room residential units. It includes unit numbers, common corridors, a lobby, and a window legend, providing detailed room configurations and dimensions for different apartment types within the block.

31

Block 665B: 13th & 14th Storey Floor Plan

This image displays the floor plan for Block 665B on its 13th and 14th storeys, detailing the layout of multiple residential units. It includes various unit types such as 3-room, 4-room, and 5-room flats, along with common areas like corridors, lift lobbies, and refuse chutes. A window legend specifies different window types, and a scale bar is provided.

32

Block 665B, 15th Storey Floor Plan with Multiple Unit Types

This image displays the 15th storey floor plan for Block 665B, showcasing the layouts of various 3-room, 4-room, and 5-room units. It includes common areas, corridors, lift lobbies, and a window legend for W1 (full height) and W2 (three-quarter height) window types. A scale bar and disclaimer are also present.

33

Block 665C (2nd Storey Floor Plan)

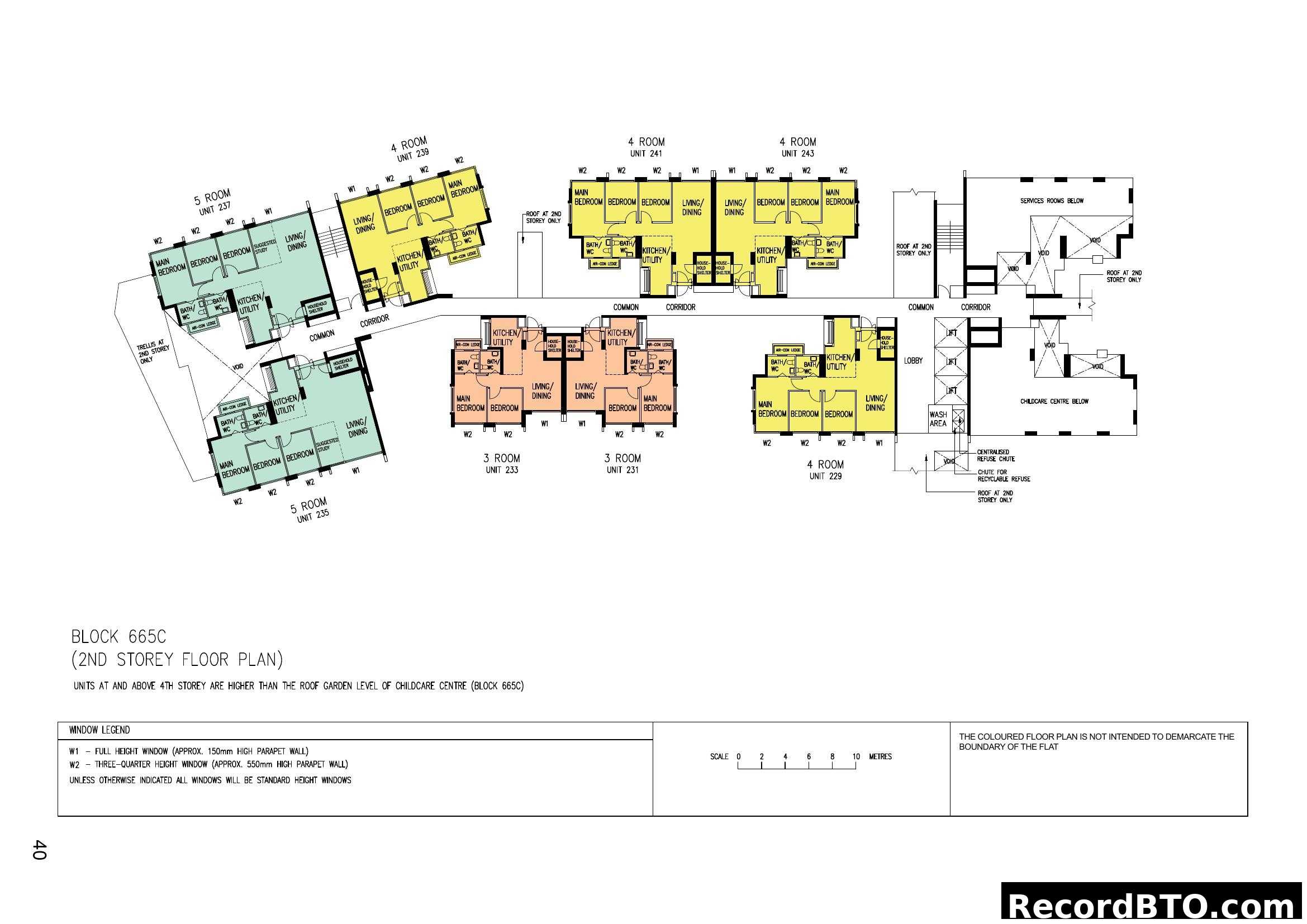
This is a 2nd storey floor plan for Block 665C, illustrating the layout of various residential units including 3-room, 4-room, and 5-room flats. The plan details the arrangement of living spaces, bedrooms, kitchens, and utilities, connected by common corridors and a central lobby. It also indicates service areas, refuse chutes, and a window legend with different window types. Some areas are marked as 'Roof at 2nd Storey Only' and 'Childcare Centre Below'.

34

Block 665C - 3rd Storey Floor Plan

This image displays the 3rd storey floor plan for Block 665C, featuring multiple unit layouts including 3-room, 4-room, and 5-room flats. It details the internal arrangement of rooms, utilities, and common areas, alongside window specifications and unit numbers. The plan shows the units accessed via common corridors, leading to a central lobby with lifts and a refuse area.

35

Block 665C (4th Storey Floor Plan)

This image displays the 4th storey floor plan for Block 665C, detailing the layout of various residential units including 3-room, 4-room, and 5-room flats. It illustrates the arrangement of rooms within each unit, common corridors, a lobby, and utility areas. The plan also includes a window legend, a scale, and a disclaimer regarding the colored floor plan.

36

Block 665C 5th Storey Floor Plan

This image displays the 5th storey floor plan for Block 665C, featuring various residential unit layouts. It includes 3-room, 4-room, and 5-room units, detailed with rooms like bedrooms, living/dining areas, kitchens, bathrooms, and household shelters. The plan indicates window types (W1, W2) and provides a scale bar, along with a note about units on and above the 4th storey.

37

Block 665C, 6th Storey Floor Plan

This image displays the 6th storey floor plan for Block 665C, showcasing the layouts of various residential units. It includes 3-room, 4-room, and 5-room flats, detailing rooms like living/dining, bedrooms, kitchen/utility, and bathrooms. A window legend, scale bar, and notes regarding window types are also provided.

38

Block 665C 7th Storey Floor Plan

This image displays the 7th storey floor plan for Block 665C, featuring 3-room, 4-room, and 5-room units. It details the layout of individual apartments, common corridors, a lobby, and utility areas. A window legend and scale are also included, providing essential architectural information for the floor.

39

Block 665C (8th and 9th Storey Floor Plan)

This floor plan illustrates the layout of various residential units (3-room, 4-room, and 5-room) located on the 8th and 9th storeys of Block 665C. It details individual unit room arrangements, common corridors, a central lobby with lifts, and includes a legend for window types (W1 and W2).

40

Block 665C 10th Storey Floor Plan

This HDB BTO brochure page displays the 10th storey floor plan for Block 665C. It illustrates the layouts for various unit types including 3-room, 4-room, and 5-room flats, along with common corridors, lobby, and a wash area. The plan also indicates roof garden areas accessible from the 11th storey and includes a window legend defining W1 (full height) and W2 (three-quarter height) windows.

41

Block 665C - 11th Storey Floor Plan

This image displays the floor plan for the 11th storey of Block 665C, featuring layouts for various residential units including 3-room, 4-room, and 5-room flats. It includes a legend for different window types (W1, W2) and notes regarding roof gardens accessible from this storey. A scale bar in metres is also present.

42

Block 665C (12th and 13th Storey Floor Plan)

This image displays the floor plan for the 12th and 13th storeys of Block 665C. It features various unit types including 3-room, 4-room, and 5-room flats, showing their internal layouts, common corridors, and lift lobby. A window legend detailing W1 (full height window) and W2 (three-quarter height window) is also provided, along with a scale in meters. The floor plan highlights the arrangement of units on these specific levels.

43

Block 665C 14th Storey Floor Plan

This image displays the 14th storey floor plan for Block 665C, featuring the layouts of various units including 3-room, 4-room, and 5-room flats. The plan details the internal room arrangements, common corridors, and lift lobby. A window legend specifying different window heights (W1 and W2) and a scale bar in metres are also provided.

44

Block 665C, 15th Storey Floor Plan

This floor plan displays the layout of residential units on the 15th storey of Block 665C. It features various unit types including 3-room, 4-room, and 5-room flats, showing their internal configurations, common corridors, and a lobby area. A window legend specifies full-height (W1) and three-quarter height (W2) windows, along with a scale bar and a disclaimer about the coloured floor plan.

45

Block 665C (16th Storey Floor Plan)

This image displays the 16th-storey floor plan for Block 665C, featuring multiple unit layouts. It includes floor plans for 3-room, 4-room, and 5-room units, specifically units 239, 241, 243, 245, 233, 231, 229, and 247. The layout shows common corridors, lift lobbies, and details such as kitchens, bathrooms, bedrooms, and living/dining areas. A window legend defines W1 (full height) and W2 (three-quarter height) windows, along with a scale in metres.

46

General Specifications For Tampines GreenCrest

This HDB brochure page outlines the general specifications for 3-room, 4-room, and 5-room flats at Tampines GreenCrest. It details the construction materials and features for various components including foundation, structure, roof, walls, windows, and doors. Interior specifications cover finishes for floors, walls, and ceilings, as well as fittings and services like electrical wiring and data points. Important notes provide guidance on household shelters and the availability of open spaces.

47

Disclaimer

This page from an HDB BTO brochure contains 11 numbered disclaimers and legal notices regarding the information provided. It covers copyright ownership, the nature of content as general information (not fact or contract), potential changes to project aspects, accuracy warnings, and details on floor area, land use, and reserved rights for facility usage. Readers are advised to consult relevant authorities for full information.

Tip: Click on any page to jump directly to that brochure page

Photo Gallery

47 photos

Tampines GreenCrest HDB Sales Launch August 2020

Tampines GreenCrest HDB Sales Launch August 2020

Modern Homes Amid Tranquil Surroundings - Tampines GreenCrest

Modern Homes Amid Tranquil Surroundings - Tampines GreenCrest

Tampines GreenCrest Artist Impression and Facilities

Tampines GreenCrest Artist Impression and Facilities

Tampines Location Map and Important Notes

Tampines Location Map and Important Notes

Tampines GreenCrest: Eco-Friendly & Smart Features

Tampines GreenCrest: Eco-Friendly & Smart Features