Skip to main content
Toa Payoh Ascent
Launched
Toa Payoh Ascent HDB BTO Sales Launch Advertisement
Artist impression
Toa Payoh Ascent Site Plan and Flat Details
Site plan
2 Room Flexi Layout Ideas
Floor plan
Toa Payoh Ascent Location Map
Location map
Toa Payoh Ascent HDB BTO Sales Launch Advertisement
Artist impression

Toa Payoh Ascent

Toa Payoh

Project Details

No of Blocks
7
Highest Floor
14
Tenure
99-year
Developer
Launch Date
Jul 2025
Expected TOP
To be announced
Total Units
741
BTO Type
prime

About This Project

Toa Payoh Ascent is a Prime BTO project located in Toa Payoh. It features 741 units as part of the July 2025 BTO launch.

Site Plan

Detailed layout and block arrangement

Toa Payoh Ascent Site Plan
Click to zoom

Floor Plans

Browse floor plans by unit type and block

2 Room Flexi Layout Ideas

2 Room Flexi Layout Ideas

2-room Flexi
Layout Ideas for 3 and 4 Room Flats (Toa Payoh Ascent)

Layout Ideas for 3 and 4 Room Flats (Toa Payoh Ascent)

3-room 4-room
Unit Distribution Chart for Blocks 405A and 406A

Unit Distribution Chart for Blocks 405A and 406A

2-room Flexi (type 1) 2-room Flexi (type 2) 3-room 4-room

Blocks: 405A, 406A

Toa Payoh Ascent Block 405A 2nd Storey Floor Plan

Toa Payoh Ascent Block 405A 2nd Storey Floor Plan

2-room Flexi 3-room 4-room

Blocks: 405A

Toa Payoh Ascent Block 405A Floor Plan (3-40 Storey)

Toa Payoh Ascent Block 405A Floor Plan (3-40 Storey)

2-room Flexi 3-room 4-room

Blocks: 405A

Block 406A 2nd Storey Floor Plan - Toa Payoh Ascent

Block 406A 2nd Storey Floor Plan - Toa Payoh Ascent

2-room Flexi (type 1) 2-room Flexi (type 2) 3-room 4-room

Blocks: 406A

Block 406A 3rd-40th Storey Floor Plan - Toa Payoh Ascent

Block 406A 3rd-40th Storey Floor Plan - Toa Payoh Ascent

2-room Flexi 3-room 4-room

Blocks: 406A

Quick Info

Town
Toa Payoh
Tenure
99-year

Project Brochure

20 pages

Page 1 / 20
Brochure Page 1

Table of Contents

1

Toa Payoh Ascent HDB BTO Sales Launch Advertisement

This brochure page promotes HDB's Toa Payoh Ascent project, featuring an artist's impression of the modern residential blocks amidst greenery and roads. A smiling couple stands in the foreground, symbolizing prospective homeowners. The page announces the HDB's sales launch scheduled for July 2025 and includes the tagline 'BTOGether,' emphasizing community and shared futures.

2

Important Notes & Disclaimers

This brochure page provides critical information regarding HDB precinct planning, including the potential for future amenities and disamenities from surrounding land use. It clarifies that all development details are subject to change and planning approval. The page also contains disclaimers about forward-looking statements, stressing that they are not guarantees and cautioning prospective buyers against solely relying on them.

3

Toa Payoh Ascent - Artist's Impression

An artist's impression provides a bird's-eye view of Toa Payoh Ascent, showcasing its two 40-storey residential blocks amidst lush greenery and surrounding road networks. The image highlights the modern architectural design of the high-rise development, including a multi-storey car park. This project is located at the junction of Toa Payoh Rise and Braddell Rise, offering 741 units across various flat types.

4

Toa Payoh Ascent Artist's Impression

This artist's impression of Toa Payoh Ascent showcases the vibrant communal spaces within the development. It features a children's playground and fitness stations nestled amidst lush landscaped grounds, with residential buildings visible in the background. The accompanying text highlights facilities designed for community living, including a preschool, eating house, shops, and a roof garden, all accessible to the public.

5

Toa Payoh Ascent Location Map

This location map illustrates the Toa Payoh area, showcasing its connectivity with existing and future MRT stations, major road networks, and key amenities. It highlights the proximity of schools, hospitals, community facilities, and parks, providing an overview of the neighbourhood surrounding the Toa Payoh Ascent development.

6

Toa Payoh Ascent: Features, Finishes & Schemes

This HDB BTO brochure page outlines the eco-friendly and smart features of Toa Payoh Ascent, promoting sustainable living and active lifestyles. It details amenities like recyclable chutes, bicycle stands, smart home provisions, and walk/cycle-friendly infrastructure. The page also provides specifications for finishes and fittings across 2-room Flexi, 3-room, and 4-room flats, along with information on the Optional Component Scheme.

7

2 Room Flexi Layout Ideas

This page showcases different layout ideas for 2-room Flexi flats. It includes a Type 1 floor plan (38sqm) and two variations of a Type 2 floor plan (48sqm): one without floor finishes and one with floor finishes, highlighting a flexible space that can be used for dining, a study, or an extra bed, and an optional folding door.

8

Layout Ideas for 3 and 4 Room Flats (Toa Payoh Ascent)

This page showcases layout ideas for 3-room and 4-room flats at Toa Payoh Ascent, featuring suggested furniture arrangements. It details approximate floor areas and highlights the flexibility of the combined kitchen/utility space, allowing for partitioning as per homeowner preference.

9

Toa Payoh Ascent Site Plan and Flat Details

This page displays the site plan for Toa Payoh Ascent, outlining residential blocks 405A and 406A, along with various facilities like playgrounds, a preschool, eating houses, and a multi-storey carpark. It includes legends for flat types, amenities, and a summary table showing the number of 2-room, 3-room, and 4-room units.

10

Unit Distribution Chart for Blocks 405A and 406A

This chart illustrates the unit distribution for Blocks 405A and 406A. It details the allocation of 2-room Flexi (Type 1), 2-room Flexi (Type 2), 3-room, and 4-room units across different floor levels (01 to 40) and unit stacks within these two blocks, using a color-coded legend.

11

Toa Payoh Ascent Block 405A 2nd Storey Floor Plan

This image displays the 2nd storey floor plan for Block 405A of the Toa Payoh Ascent development. It illustrates the layout of multiple residential units on this floor, specifically showing 2-room Flexi (Type 2), 3-room, and 4-room flats. Common areas like the lift lobby, corridors, wash area, and refuse chutes are also detailed. The plan includes a window legend and a scale bar, providing essential information for understanding the floor's configuration.

12

Toa Payoh Ascent Block 405A Floor Plan (3-40 Storey)

This image displays the typical floor plan for Block 405A from the 3rd to 40th storey of Toa Payoh Ascent. It illustrates the arrangement of various residential units, including 2-room Flexi, 3-room, and 4-room flats, along common corridors and the lift lobby. Key features like kitchens, bedrooms, bathrooms, and utility areas are highlighted, along with a window legend and general notes regarding the floor plan.

13

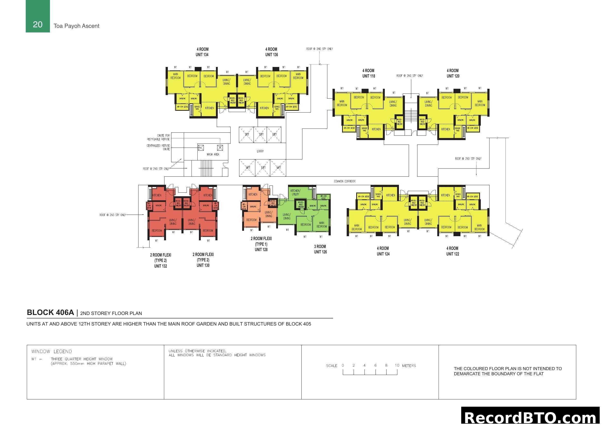
Block 406A 2nd Storey Floor Plan - Toa Payoh Ascent

This image displays the 2nd storey floor plan for Block 406A at Toa Payoh Ascent. It illustrates the layout of various unit types, including 2-room Flexi (Type 1 & Type 2), 3-room, and 4-room flats, arranged along a common corridor. The plan details internal room configurations, common facilities like lifts and refuse chutes, and provides a window legend and scale bar.

14

Block 406A 3rd-40th Storey Floor Plan - Toa Payoh Ascent

This image displays a floor plan for Block 406A of Toa Payoh Ascent, covering the 3rd to 40th storeys. It illustrates the layout of multiple residential units on a single floor, including 2-room Flexi (Type 1 and Type 2), 3-room, and 4-room units. The plan also shows common areas such as the common corridor, lift lobby, wash area, and centralized refuse chute. A window legend and a disclaimer regarding the coloured floor plan are also included.

15

General Specifications for Toa Payoh Ascent (2-room Flexi)

This brochure page outlines the general specifications for the 2-room Flexi (short lease) units at Toa Payoh Ascent. It details construction aspects like foundation, structure, roof, walls, and windows, along with interior elements such as doors, finishes, and fittings. The document also covers provided services like electrical wiring and gas, and includes important notes about the household shelter and renovation rules.

16

General Specifications for Toa Payoh Ascent

This brochure page outlines the general specifications for 2-room Flexi, 3-room, and 4-room units at Toa Payoh Ascent. It details the building's foundation, structure, roof, and wall construction, as well as specifications for windows, doors, various floor and wall finishes, and fittings. The page also lists included services and provides important notes regarding household shelters, door frames, unused spaces, and the non-inclusion of service details on plans.

17

Disclaimer for Toa Payoh Ascent Brochure

This page presents the disclaimer for the Toa Payoh Ascent brochure. It details copyright, advises on relying on information, states that visual representations are artistic impressions, and outlines potential changes to project specifications and facilities. It also mentions land use, environmental factors, and specific facilities that HDB reserves the right to use.

18

Optional Component Scheme for 2-Room Flexi Flats

This brochure page details the Optional Component Scheme (OCS) for HDB 2-room Flexi flats. It explains that the OCS provides convenience for flat buyers on an opt-in basis, with costs added to the selling price. It lists standard inclusions for 2-room Flexi flats and presents two optional packages for flooring, partitions, and sanitary fittings. It also notes the installation of grab bars for short-lease flats to assist seniors.

19

Optional Component Scheme (2-Room Flexi Flats)

This brochure page details Package 3 of the Optional Component Scheme for short-lease 2-room Flexi Flats, designed for seniors. It highlights senior-friendly fittings such as built-in kitchen cabinets with induction hob and adjustable counter heights for wheelchair users, mobile cabinets with knee space, and a lower wardrobe rod. Other standard fittings like window grilles, mirror, lighting, and a water heater are also included. Buyers opting for Package 3 must also select Package 1.

20

Optional Component Scheme (OCS) Details

This HDB brochure page details the Optional Component Scheme (OCS) for 3-room and larger flats. It outlines standard provisions like floor finishes and wall tiles in certain areas, and lists optional items available for installation, such as additional floor finishes, internal doors, wash basins, and shower sets. The cost of chosen OCS items is added to the flat's selling price. The page includes illustrative images of sanitary fittings.

Tip: Click on any page to jump directly to that brochure page

Photo Gallery

20 photos

Toa Payoh Ascent HDB BTO Sales Launch Advertisement

Toa Payoh Ascent HDB BTO Sales Launch Advertisement

Important Notes & Disclaimers

Important Notes & Disclaimers

Toa Payoh Ascent - Artist's Impression

Toa Payoh Ascent - Artist's Impression

Toa Payoh Ascent Artist's Impression

Toa Payoh Ascent Artist's Impression

Toa Payoh Ascent Location Map

Toa Payoh Ascent Location Map