Skip to main content
Farrer Park Arena
Completed
Farrer Park Arena HDB Sales Launch May 2023
Artist impression
Farrer Park Arena Site Plan
Site plan
Farrer Park Arena - Layout Ideas for 3-Room and 4-Room Flats
Floor plan
Kallang/ Whampoa Area Location Map
Location map
Farrer Park Arena HDB Sales Launch May 2023
Artist impression

Farrer Park Arena

Farrer Park

Project Details

No of Blocks
7
Highest Floor
14
Tenure
99-year
Developer
Launch Date
May 2023
Expected TOP
To be announced
Total Units
640
BTO Type
standard

About This Project

BTO project in Farrer Park with sports facilities.

Site Plan

Detailed layout and block arrangement

Farrer Park Arena Site Plan
Click to zoom

Floor Plans

Browse floor plans by unit type and block

Farrer Park Arena - Layout Ideas for 3-Room and 4-Room Flats

Farrer Park Arena - Layout Ideas for 3-Room and 4-Room Flats

3-room 4-room
Unit Distribution for Blocks 19A, 19B, 19C

Unit Distribution for Blocks 19A, 19B, 19C

3-room 4-room

Blocks: 19A, 19B, 19C

Farrer Park Arena Block 19A 2nd Storey Floor Plan

Farrer Park Arena Block 19A 2nd Storey Floor Plan

3-room 4-room

Blocks: 19A

Farrer Park Arena Block 19A 3rd-8th Storey Floor Plan

Farrer Park Arena Block 19A 3rd-8th Storey Floor Plan

3-room 4-room

Blocks: 19A

Block 19A 9th-14th Storey Floor Plan

Block 19A 9th-14th Storey Floor Plan

3-room 4-room

Blocks: 19A

Block 19A Floor Plan - Farrer Park Arena

Block 19A Floor Plan - Farrer Park Arena

3-room 4-room

Blocks: 19A

Farrer Park Arena Block 19B 2nd Storey Floor Plan

Farrer Park Arena Block 19B 2nd Storey Floor Plan

3-room 4-room

Blocks: 19B

Farrer Park Arena Block 19B 3rd to 8th Storey Floor Plan

Farrer Park Arena Block 19B 3rd to 8th Storey Floor Plan

3-room 4-room

Blocks: 19B

Farrer Park Arena Block 19B Floor Plan (9-14 Storey)

Farrer Park Arena Block 19B Floor Plan (9-14 Storey)

3-room 4-room

Blocks: 19B

Farrer Park Arena Block 19B (15-24 Storey) Floor Plan

Farrer Park Arena Block 19B (15-24 Storey) Floor Plan

3-room 4-room

Blocks: 19B

Farrer Park Arena - Block 19C 2nd Storey Floor Plan

Farrer Park Arena - Block 19C 2nd Storey Floor Plan

4-room

Blocks: 19C

Farrer Park Arena Blk 19C 3rd-8th Storey Floor Plan

Farrer Park Arena Blk 19C 3rd-8th Storey Floor Plan

4-room

Blocks: 19C

Farrer Park Arena - Block 19C Floor Plan (9th-14th Storey)

Farrer Park Arena - Block 19C Floor Plan (9th-14th Storey)

4-room

Blocks: 19C

Farrer Park Arena Block 19C 15th-24th Storey Floor Plan

Farrer Park Arena Block 19C 15th-24th Storey Floor Plan

4-room

Blocks: 19C

Quick Info

Town
Kallang/Whampoa
Tenure
99-year

Project Brochure

24 pages

Page 1 / 24
Brochure Page 1

Table of Contents

1

Farrer Park Arena HDB Sales Launch May 2023

This brochure page features an artist's impression of the Farrer Park Arena HDB development. It shows multiple high-rise residential blocks with integrated green spaces, recreational facilities, and an adjacent road. In the foreground, a smiling couple looks towards the development, symbolizing prospective homeowners. The page also prominently displays the development's logo, "FARRER PARK ARENA," and announces "HDB'S SALES LAUNCH MAY 2023" with the tagline "BTogether."

2

Farrer Park Arena HDB BTO Project

This page displays an artist's impression of the Farrer Park Arena HDB BTO project. The image shows several residential blocks with varied facade designs, surrounded by green spaces, recreational facilities, and roads. The accompanying text provides details about the project's location, its status under the Prime Location Public Housing (PLH) model, the number of residential blocks (3 blocks, 24 storeys each), and the available flat types (3- and 4-room flats).

3

Farrer Park Arena: Community Facilities and Green Spaces

This page showcases an artist's impression of Farrer Park Arena, highlighting its integrated community facilities and lush green environment. The development repurposes a former boxing gym into a multi-purpose sporting space, offering jogging paths, fitness stations, children's playgrounds, a childcare centre, and a residents' network centre. Future plans include a new sports centre with swimming pools, all accessible to the public.

4

Important Notes

This brochure page provides essential information regarding HDB precincts, highlighting their design to accommodate evolving community needs through various amenities such as childcare, eldercare, and commercial facilities. It also cautions residents about potential noise levels from nearby roads, railways, and other non-residential areas, clarifying that all provided information is indicative and subject to change by planning authorities.

5

Kallang/ Whampoa Area Location Map

This image is a detailed location map of the Kallang/Whampoa area, featuring Farrer Park Arena. It displays major roads, expressways, MRT lines, and stations (including those under construction), rivers, canals, and various points of interest like schools, hospitals, and community centers. A legend for symbols and important disclaimers are also included.

6

Eco-Friendly Features, Smart Solutions & Flat Details

This brochure page highlights Farrer Park Arena's eco-friendly features such as recycling chutes, bicycle stands, and water design. It also details smart solutions for energy and waste management, amenities for walking and cycling, and specific finishes for 3- and 4-room flats, along with an Optional Component Scheme for buyers.

7

Farrer Park Arena - Layout Ideas for 3-Room and 4-Room Flats

This page from the Farrer Park Arena brochure presents layout ideas for 3-room and 4-room HDB flats. It includes detailed floor plans with suggested furniture arrangements and specifies approximate floor areas. Accompanying text highlights the flexible open kitchen concept, allowing homeowners to configure the space according to their preferences, including the option to add partitions to separate kitchen areas.

8

Farrer Park Arena Site Plan

This page displays the detailed site plan for Farrer Park Arena, illustrating the layout of residential blocks (19A, 19B, 19C) and their flat types (3-room, 4-room). It highlights the location of various facilities such as playgrounds, fitness stations, a child care centre, sports facilities, precinct pavilions, and a multi-storey carpark. Surrounding roads and amenities are also shown. A table provides a summary of unit types and numbers per block, alongside general project notes.

9

Unit Distribution for Blocks 19A, 19B, 19C

This page from the Farrer Park Arena brochure displays the unit distribution across three blocks: 19A, 19B, and 19C. It uses a color-coded legend where green indicates 3-room units and yellow indicates 4-room units. The charts show the unit type for each stack number across various floor levels, including special facilities like 'CHILDCARE CENTRE' and 'RESIDENTS' NETWORK CENTRE' on the lower floors.

10

Farrer Park Arena Block 19A 2nd Storey Floor Plan

This image displays the 2nd storey floor plan for Block 19A at Farrer Park Arena. It illustrates the layout of various 3-room and 4-room units, including units 200, 202, 204, 206, 208, 210, 212, 214, and 216. The plan details the arrangement of living spaces, bedrooms, kitchens, and bathrooms along a common corridor, featuring amenities like lifts and refuse chutes.

11

Farrer Park Arena Block 19A 3rd-8th Storey Floor Plan

This image displays the floor plan for Block 19A of Farrer Park Arena, specifically for the 3rd to 8th storey. It illustrates the layout of multiple apartment units (3-room and 4-room types) around common corridors, lifts, a lobby, and refuse chutes, providing a detailed view of room configurations within each unit.

12

Block 19A 9th-14th Storey Floor Plan

This image displays the floor plan for the 9th to 14th storeys of Block 19A at Farrer Park Arena. It illustrates the layout of various 3-room and 4-room units, including unit numbers (e.g., Unit 200, Unit 202, Unit 204, Unit 206, Unit 208, Unit 210, Unit 212, Unit 214, Unit 216), common corridors, lifts, and refuse chutes. A legend for windows is also provided.

13

Block 19A Floor Plan - Farrer Park Arena

This image displays the floor plan for Block 19A of Farrer Park Arena, specifically for the 15th to 24th storeys. It shows the layout of multiple units, including 3-room and 4-room flats, along with common areas like the lobby, lifts, and refuse chutes. Each unit's rooms, such as bedrooms, living/dining areas, kitchen, and bathrooms, are labeled.

14

Farrer Park Arena Block 19B 2nd Storey Floor Plan

This image displays the 2nd storey floor plan for Block 19B of Farrer Park Arena. It features layouts for 3-room and 4-room units, including common areas like corridors, lifts, and a lobby. The plan also details window types with a legend and provides a scale.

15

Farrer Park Arena Block 19B 3rd to 8th Storey Floor Plan

This image displays the floor plan for Block 19B of Farrer Park Arena, covering the 3rd to 8th storeys. It showcases the layouts for various units, including one 3-room unit (Unit 230) and several 4-room units (Units 218, 220, 232, 228, 226, 224, 222). The plan also illustrates the common corridor, lifts, lobby, wash area, and refuse chute, providing a comprehensive view of the residential floor layout.

16

Farrer Park Arena Block 19B Floor Plan (9-14 Storey)

This image displays the floor plan for Block 19B of Farrer Park Arena, specifically for units on the 9th to 14th storeys. It details the layouts of various 3-room and 4-room units (Units 230, 232, 218, 220, 228, 226, 224, 222), showing their internal configurations, common corridors, lift lobby, and refuse disposal areas. A window legend is also provided.

17

Farrer Park Arena Block 19B (15-24 Storey) Floor Plan

This image displays the floor plan for Block 19B at Farrer Park Arena, covering the 15th to 24th storeys. It illustrates the arrangement of multiple 3-room and 4-room residential units (e.g., Units 218-232) around a common corridor, along with shared facilities like lifts, lobby, and refuse chutes. The layout details the internal structure of each unit, including bedrooms, living/dining areas, kitchens, and bathrooms, providing a comprehensive view of the floor's residential configuration.

18

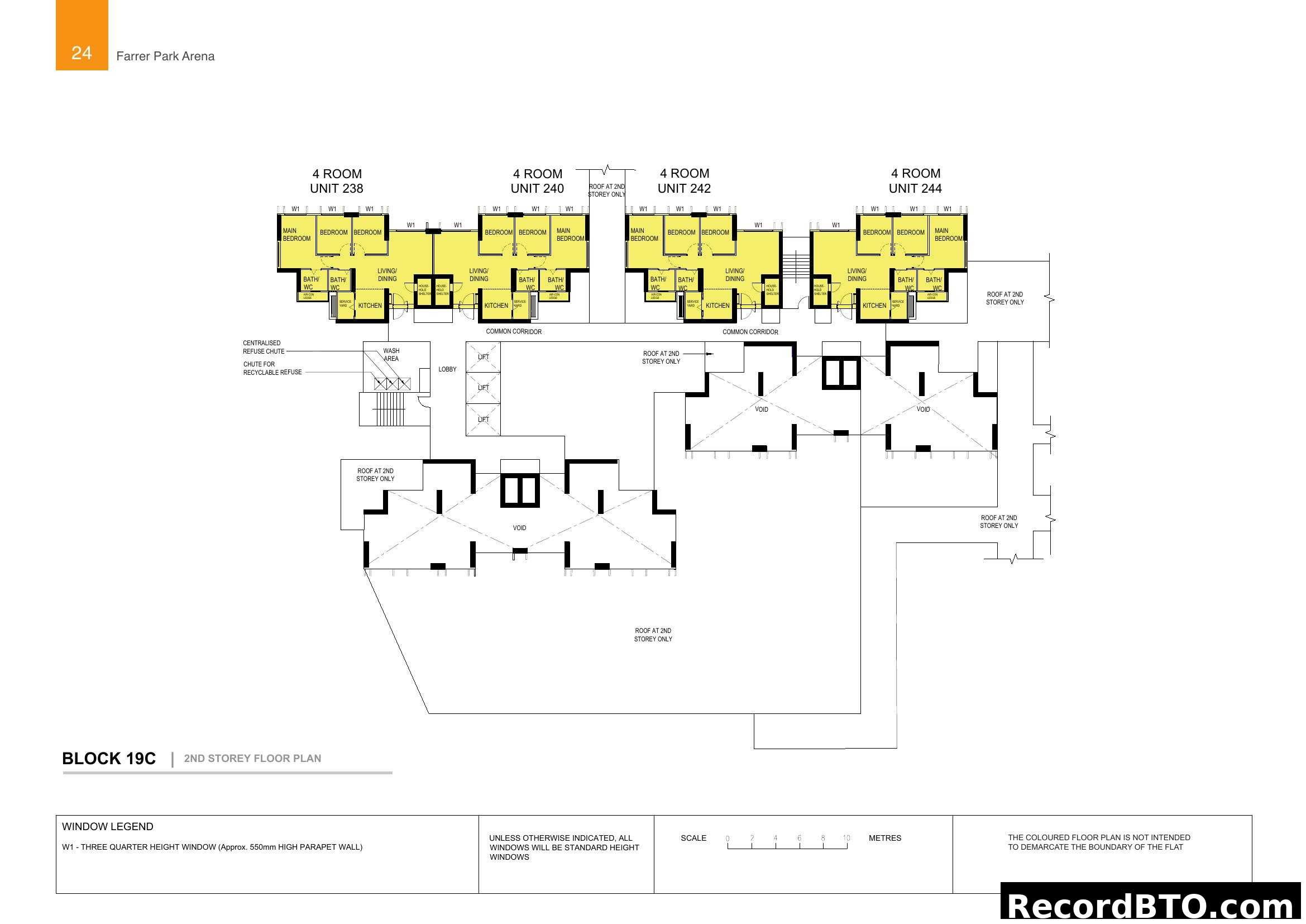
Farrer Park Arena - Block 19C 2nd Storey Floor Plan

This image displays the 2nd storey floor plan for Block 19C at Farrer Park Arena. It features four 4-room units (238, 240, 242, 244) arranged along a common corridor. The plan also details common facilities such as lifts, a lobby, a wash area, and centralized refuse chutes for both general and recyclable waste. Individual unit layouts include a main bedroom, two other bedrooms, living/dining area, kitchen, and bathrooms.

19

Farrer Park Arena Blk 19C 3rd-8th Storey Floor Plan

This page displays the typical floor plan for 4-room units in Block 19C of Farrer Park Arena, specifically for the 3rd to 8th storeys. It illustrates the layout of eight units (234, 236, 238, 240, 242, 244, 246, 248) arranged along a common corridor, featuring lift access, a wash area, and refuse chutes. Each 4-room unit includes a main bedroom, two common bedrooms, a living/dining area, kitchen, and two bathrooms.

20

Farrer Park Arena - Block 19C Floor Plan (9th-14th Storey)

This page displays the 9th to 14th storey floor plan for Block 19C of Farrer Park Arena. It features the layout of eight 4-room residential units (238, 240, 242, 244, 236, 234, 248, 246) arranged around a common corridor. The plan also shows the location of lifts, lobby, wash area, and centralised refuse chutes.

21

Farrer Park Arena Block 19C 15th-24th Storey Floor Plan

This image displays the 15th-24th storey floor plan for Block 19C at Farrer Park Arena, featuring eight 4-room units (Units 234, 236, 238, 240, 242, 244, 246, 248). The layout includes common corridors, lift lobby, and centralized refuse disposal, along with detailed individual unit plans showing bedrooms, living/dining areas, kitchens, and bathrooms. A window legend is also provided.

22

General Specifications for Farrer Park Arena (3- & 4-room)

This page from the Farrer Park Arena brochure outlines the general specifications for 3-room and 4-room flats. It details the construction components including foundation, structure, roof, walls, windows, and doors. The document also specifies finishes for various areas like floors and walls, fittings, and services provided, along with important notes regarding household shelters and open spaces.

23

HDB Brochure: Disclaimer and Terms

This page from an HDB brochure presents a comprehensive disclaimer, outlining the terms and conditions regarding the information provided. It clarifies that the content is for general information only, not contractual, and visual representations are artistic impressions. The disclaimer also addresses accuracy, changes to project aspects, floor area measurements, surrounding land use implications, and lists facilities (e.g., void deck, carpark, commercial facilities) for which HDB reserves usage rights.

24

Optional Component Scheme (OCS) for HDB Flats

This HDB brochure page details the Optional Component Scheme (OCS) available for 3-room and bigger flats. It explains that the OCS allows buyers to opt-in for additional fittings, the cost of which is added to the flat's price. The page lists standard inclusions like floor and wall finishes and water closets. It also highlights optional items such as floor finishes for living/dining rooms and bedrooms, internal doors, and sanitary fittings like wash basins with mixers and shower sets, with illustrative images.

Tip: Click on any page to jump directly to that brochure page

Photo Gallery

24 photos

Farrer Park Arena HDB Sales Launch May 2023

Farrer Park Arena HDB Sales Launch May 2023

Farrer Park Arena HDB BTO Project

Farrer Park Arena HDB BTO Project

Farrer Park Arena: Community Facilities and Green Spaces

Farrer Park Arena: Community Facilities and Green Spaces

Important Notes

Important Notes

Kallang/ Whampoa Area Location Map

Kallang/ Whampoa Area Location Map