Skip to main content
Kim Keat Heights
Completed
Kim Keat Heights HDB Sales Launch May 2022
Artist impression
Kim Keat Heights Site Plan
Site plan
Layout Ideas for 2-Room Flexi Flats
Floor plan
Toa Payoh Kim Keat Heights Location Map
Location map
Kim Keat Heights HDB Sales Launch May 2022
Artist impression

Kim Keat Heights

Toa Payoh

Project Details

No of Blocks
7
Highest Floor
14
Tenure
99-year
Developer
Launch Date
May 2022
Expected TOP
To be announced
Total Units
520
BTO Type
standard

About This Project

BTO project in Toa Payoh near Kim Keat area.

Site Plan

Detailed layout and block arrangement

Kim Keat Heights Site Plan
Click to zoom

Floor Plans

Browse floor plans by unit type and block

Layout Ideas for 2-Room Flexi Flats

Layout Ideas for 2-Room Flexi Flats

2-room Flexi Type 1 2-room Flexi Type 2
HDB Floor Plan Layout Ideas (3-room & 4-room)

HDB Floor Plan Layout Ideas (3-room & 4-room)

3-room 4-room
Kim Keat Heights Unit Distribution: Blocks 39A & 39B

Kim Keat Heights Unit Distribution: Blocks 39A & 39B

2-room Flexi (type 1) 2-room Flexi (type 2) 3-room 4-room Rental Flat

Blocks: 39A, 39B

Kim Keat Heights Block 39A 2nd Storey Floor Plan

Kim Keat Heights Block 39A 2nd Storey Floor Plan

2-room 4-room

Blocks: 39A

Kim Keat Heights Block 39A 3rd to 6th Storey Floor Plan

Kim Keat Heights Block 39A 3rd to 6th Storey Floor Plan

2-room 3-room 4-room

Blocks: 39A, 39B

BLK 39A 7th, 9th to 27th Storey Floor Plan

BLK 39A 7th, 9th to 27th Storey Floor Plan

2-room 3-room 4-room

Blocks: 39A

BLK 39A 8th Storey Floor Plan - Kim Keat Heights

BLK 39A 8th Storey Floor Plan - Kim Keat Heights

2-room Flexi (type 2) 3-room 4-room

Blocks: 39A

Kim Keat Heights BLK 39A 28th Storey Floor Plan

Kim Keat Heights BLK 39A 28th Storey Floor Plan

2-room Flexi (type 2) 4-room

Blocks: 39A

BLK 39A, 29th Storey Floor Plan with 2 & 4-Room Units

BLK 39A, 29th Storey Floor Plan with 2 & 4-Room Units

2-room Flexi 4-room

Blocks: 39A

Kim Keat Heights Blk 39A Floor Plan (30-36 Storey)

Kim Keat Heights Blk 39A Floor Plan (30-36 Storey)

2-room Flexi 4-room

Blocks: 39A

BLK 39B 2nd Storey Floor Plan - Kim Keat Heights

BLK 39B 2nd Storey Floor Plan - Kim Keat Heights

2-room 4-room

Blocks: 39B

Kim Keat Heights Block 39B Floor Plan

Kim Keat Heights Block 39B Floor Plan

2-room 3-room 4-room

Blocks: 39A, 39B

Kim Keat Heights - BLK 39B 8th Storey Floor Plan

Kim Keat Heights - BLK 39B 8th Storey Floor Plan

2-room 2-room Flexi (type 1) 3-room 4-room

Blocks: 39A, 39B

Kim Keat Heights Blk 39B Floor Plan (11-27 Storey)

Kim Keat Heights Blk 39B Floor Plan (11-27 Storey)

2-room Flexi (type 1) 2-room Flexi (type 2) 3-room 4-room

Blocks: 39B

Kim Keat Heights BLK 39B 28th Storey Floor Plan

Kim Keat Heights BLK 39B 28th Storey Floor Plan

2-room Flexi 4-room

Blocks: 39B, 39A

Kim Keat Heights - BLK 39B 29th Storey Floor Plan

Kim Keat Heights - BLK 39B 29th Storey Floor Plan

2-room Flexi (type 1) 2-room Flexi (type 2) 4-room

Blocks: 39B, 39A

BLK 39B Floor Plan (30th to 36th Storey)

BLK 39B Floor Plan (30th to 36th Storey)

2-room Flexi 4-room

Blocks: 39B

Quick Info

Town
Toa Payoh
Tenure
99-year

Project Brochure

30 pages

Page 1 / 30
Brochure Page 1

Table of Contents

1

Kim Keat Heights HDB Sales Launch May 2022

This image is an artist's impression featuring the Kim Keat Heights HDB development with multiple residential blocks under a clear sky. A smiling couple is shown in the foreground, suggesting aspirational homeownership. The page includes the development's logo and announces 'HDB's Sales Launch May 2022', indicating it serves as an introductory or promotional page for the housing project.

2

Kim Keat Heights Residential Blocks Artist Impression

This page features an artist's impression of Kim Keat Heights, a residential development comprising two blocks ranging from 27 to 36 storeys. Located at Lorong 7 and Lorong 6 Toa Payoh, it offers 385 units of 2-, 3-, and 4-room flats, including some rental units. The design incorporates motifs and colours inspired by Toa Payoh's iconic dragon playground.

3

Kim Keat Heights Community Facilities

This artist's impression showcases the community amenities at Kim Keat Heights, featuring lush greenery, a children's playground with unique structures, and outdoor adult and elderly fitness stations. A wooden boardwalk winds through landscaped gardens, connecting various recreational spaces. The rendering highlights the integration of green spaces and community facilities like a Community Club and sky gardens, aiming to create a vibrant and engaging environment for residents and the public, as described in the accompanying text.

4

Kim Keat Heights Important Notes

This page provides important notes regarding HDB precincts and housing projects. It explains that precincts are designed to serve evolving community needs with spaces for future amenities like childcare, elderly facilities, education centres, and commercial facilities. It also cautions that housing projects near roads, railways, or airbases may experience higher noise levels. The information presented is indicative and subject to change.

5

Toa Payoh Kim Keat Heights Location Map

This location map for Kim Keat Heights in Toa Payoh illustrates key amenities and transport links in the area. It highlights MRT stations, bus interchanges, schools, parks, community facilities, and places of worship, along with proposed developments and roads under construction, providing an overview of the neighbourhood.

6

Kim Keat Heights Features and Specifications

This brochure page highlights the eco-friendly features of Kim Keat Heights, including recyclable waste chutes, regenerative lifts, bicycle stands, and ABC Waters design. It details the finishes and fittings for 2-room Flexi, 3-room, and 4-room flats, specifying floor and wall tiles for various areas. Additionally, it introduces smart solutions like smart-enabled homes and lighting, and explains the Optional Component Scheme.

7

Layout Ideas for 2-Room Flexi Flats

This page showcases four different layout ideas for 2-room Flexi flats, including Type 1 (38sqm) and Type 2 (48sqm) options. Each type is presented with two variations: one without and one with living/dining/bedroom floor finishes. The Type 2 layout (48sqm) also features a flexible space that can be adapted for various uses.

8

HDB Floor Plan Layout Ideas (3-room & 4-room)

This page showcases various layout ideas for 3-room and 4-room HDB units, complete with suggested furniture arrangements. It highlights the flexibility in configuring kitchen spaces, including options for combined kitchen/utility or a dry kitchen concept. Approximate floor areas and internal floor areas are provided for each unit type.

9

Kim Keat Heights Site Plan

This image displays the detailed site plan for Kim Keat Heights, an HDB development. It illustrates the layout of residential blocks (39A, 39B) and their proximity to existing public housing, a park, and various roads like Lorong Toa Payoh. The plan highlights recreational facilities such as playgrounds and fitness stations, communal areas like a precinct pavilion and drop-off porch, social amenities including a community club with a roof garden, and a multi-storey carpark. A legend explains various symbols and flat types, while a table provides a breakdown of home ownership flats by block and type.

10

Kim Keat Heights Unit Distribution: Blocks 39A & 39B

This chart illustrates the unit distribution for Blocks 39A and 39B at Kim Keat Heights. It details the types of units available across all floors and stacks, from level 01 to 36. The legend categorizes units into 2-room Flexi (Type 1 and 2), 3-room, 4-room, and Rental Flats using a color-coded system. The diagram also highlights the locations of accessible roof gardens within the blocks, providing a clear overview of the development's residential offerings.

11

Kim Keat Heights Block 39A 2nd Storey Floor Plan

This HDB brochure page displays the 2nd storey floor plan for Block 39A at Kim Keat Heights. It features detailed layouts for 4-room (Units 105, 107) and 2-room (Units 101, 103) flats, including common corridors, lobby, and lifts. A window legend and notes are also provided, along with a scale bar.

12

Kim Keat Heights Block 39A 3rd to 6th Storey Floor Plan

This image displays the floor plan for Block 39A at Kim Keat Heights, specifically for the 3rd to 6th storey. It illustrates the layout of various unit types, including 2-room, 3-room, and 4-room flats, along with common areas such as lifts, lobby, and corridors. The plan also includes a legend for window types and a scale.

13

BLK 39A 7th, 9th to 27th Storey Floor Plan

This image displays the floor plan for Block 39A, covering the 7th, 9th to 27th storeys. It illustrates the layouts of various residential units including 2-room Flexi (Type 2), 3-room, and 4-room units, along with common areas like the corridor, lobby, and lifts. The plan also includes legends for window types and notes regarding window heights and the floor plan's purpose.

14

BLK 39A 8th Storey Floor Plan - Kim Keat Heights

This image displays the 8th storey floor plan for Block 39A at Kim Keat Heights. It illustrates the layout of various unit types, including 2-room Flexi (Type 2), 3-room, and 4-room apartments, along with common areas like the lobby and common corridor. The plan provides details on window types and notes about higher floor levels.

15

Kim Keat Heights BLK 39A 28th Storey Floor Plan

This image displays the 28th storey floor plan for Block 39A at Kim Keat Heights. It illustrates the layout of four residential units: two 4-room units (105 and 107) and two 2-room Flexi (Type 2) units (101 and 103), along with common areas like the lobby, lifts, and corridors. The plan also indicates features such as a roof garden on the 28th storey and notes about window types and the main roof garden level.

16

BLK 39A, 29th Storey Floor Plan with 2 & 4-Room Units

This image displays the 29th-storey floor plan for Block 39A of Kim Keat Heights. It illustrates the layout of two 4-room units (105, 107) and two 2-room Flexi (Type 2) units (101, 103), along with common areas such as the corridor, lobby, and lifts. The plan also indicates accessibility to a roof garden on the 28th storey and includes a window legend and general notes.

17

Kim Keat Heights Blk 39A Floor Plan (30-36 Storey)

This page displays the floor plan for Block 39A at Kim Keat Heights, specifically for units located on the 30th to 36th storeys. It details the layout of four residential units on one level, including two 4-Room units (Unit 105 and 107) and two 2-Room Flexi (Type 2) units (Unit 103 and 101). The plan also illustrates the common corridor, lobby, and lift areas, alongside a window legend and general notes.

18

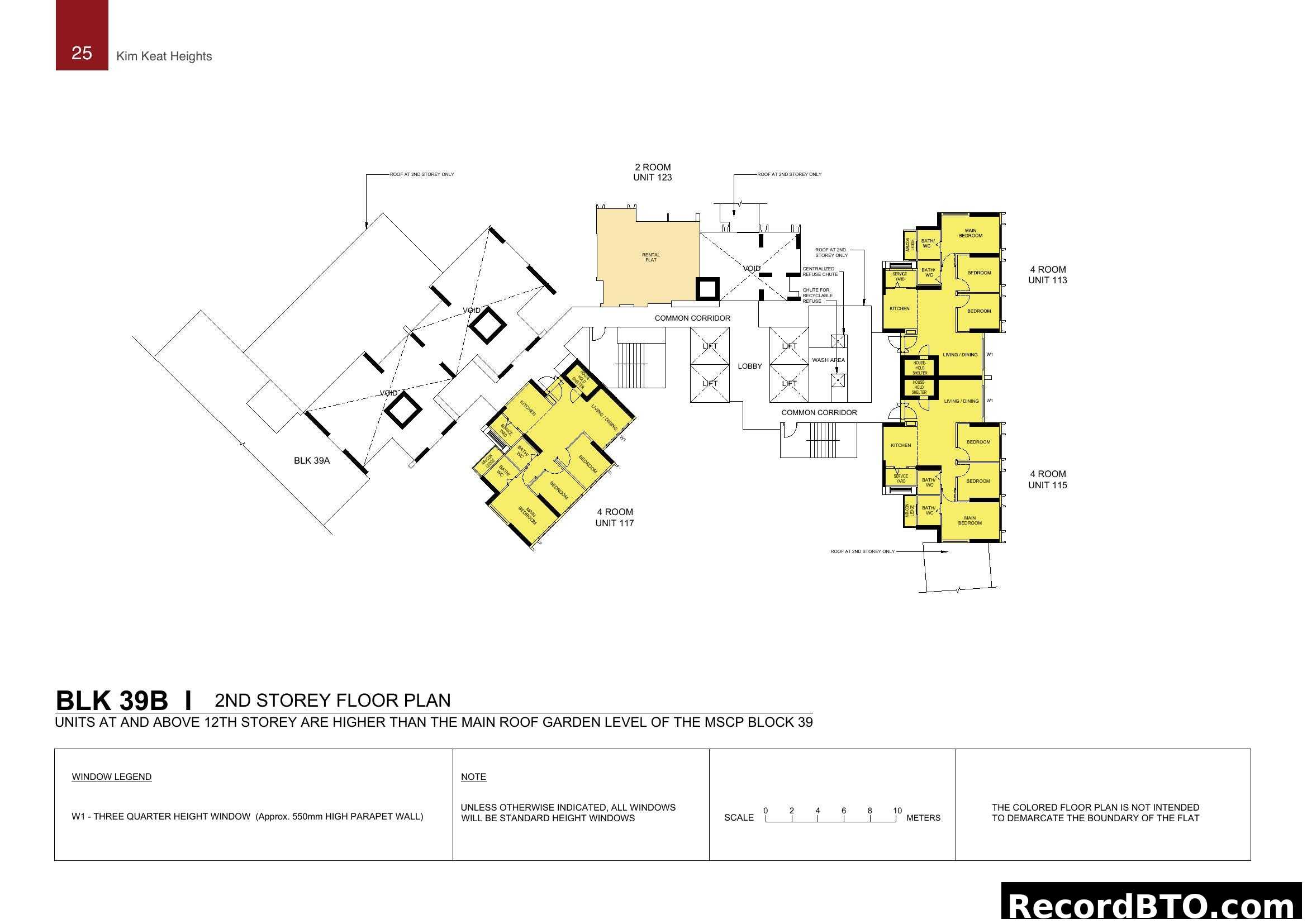
BLK 39B 2nd Storey Floor Plan - Kim Keat Heights

This image displays the 2nd storey floor plan for Block 39B at Kim Keat Heights. It illustrates the layouts of multiple residential units, including a 2-room unit (123) and 4-room units (113, 115, 117), as well as a rental flat. The plan details common areas such as corridors, lobby, lifts, wash area, and refuse chutes. A window legend and notes regarding window types and higher storey units are also provided.

19

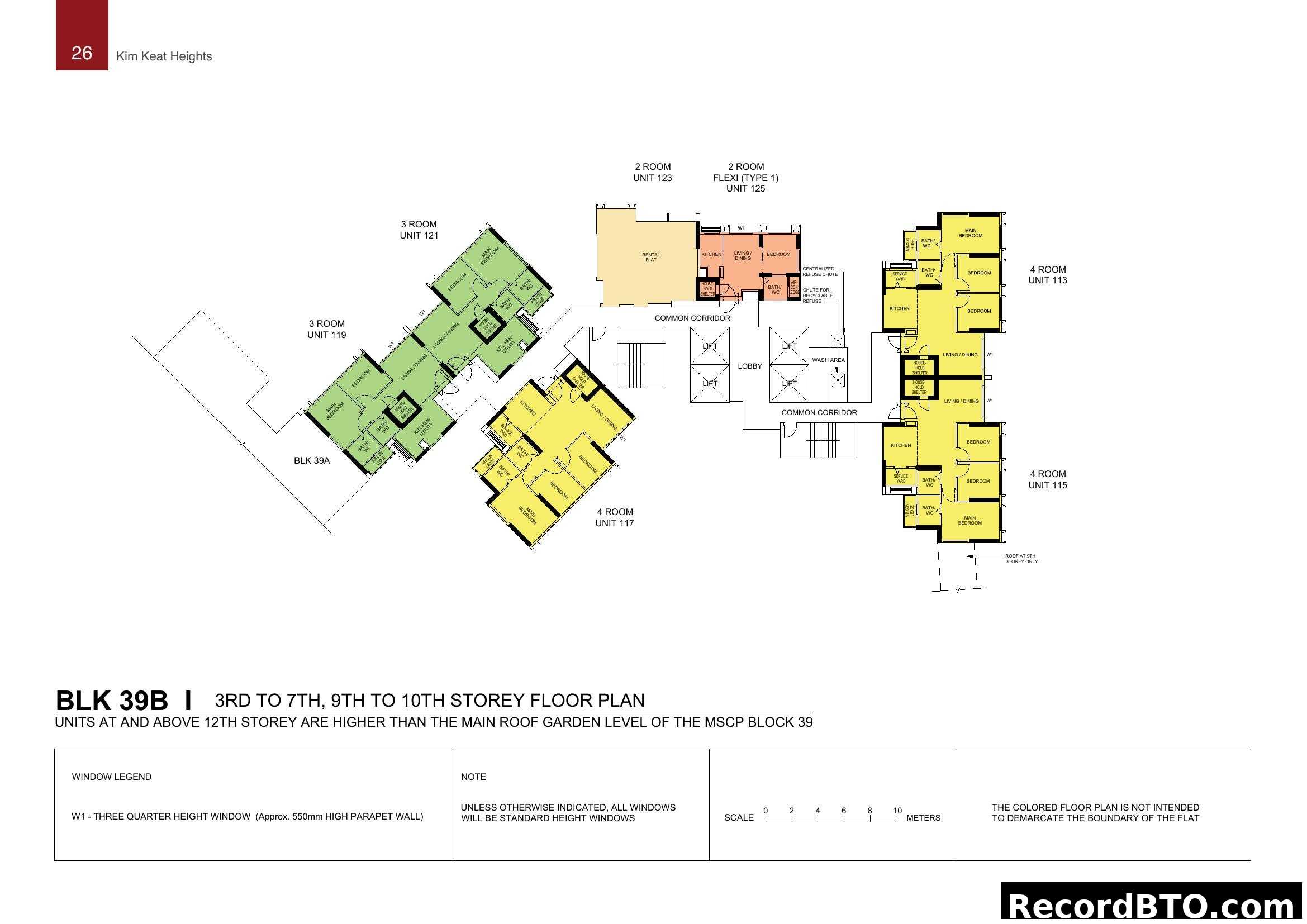
Kim Keat Heights Block 39B Floor Plan

This image displays a detailed floor plan for Block 39B at Kim Keat Heights, covering the 3rd to 7th and 9th to 10th storeys. It illustrates the layout of various unit types, including 2-room, 3-room, and 4-room flats, along with shared spaces like common corridors and the lobby. The plan also includes window legends and general notes about the building specifications.

20

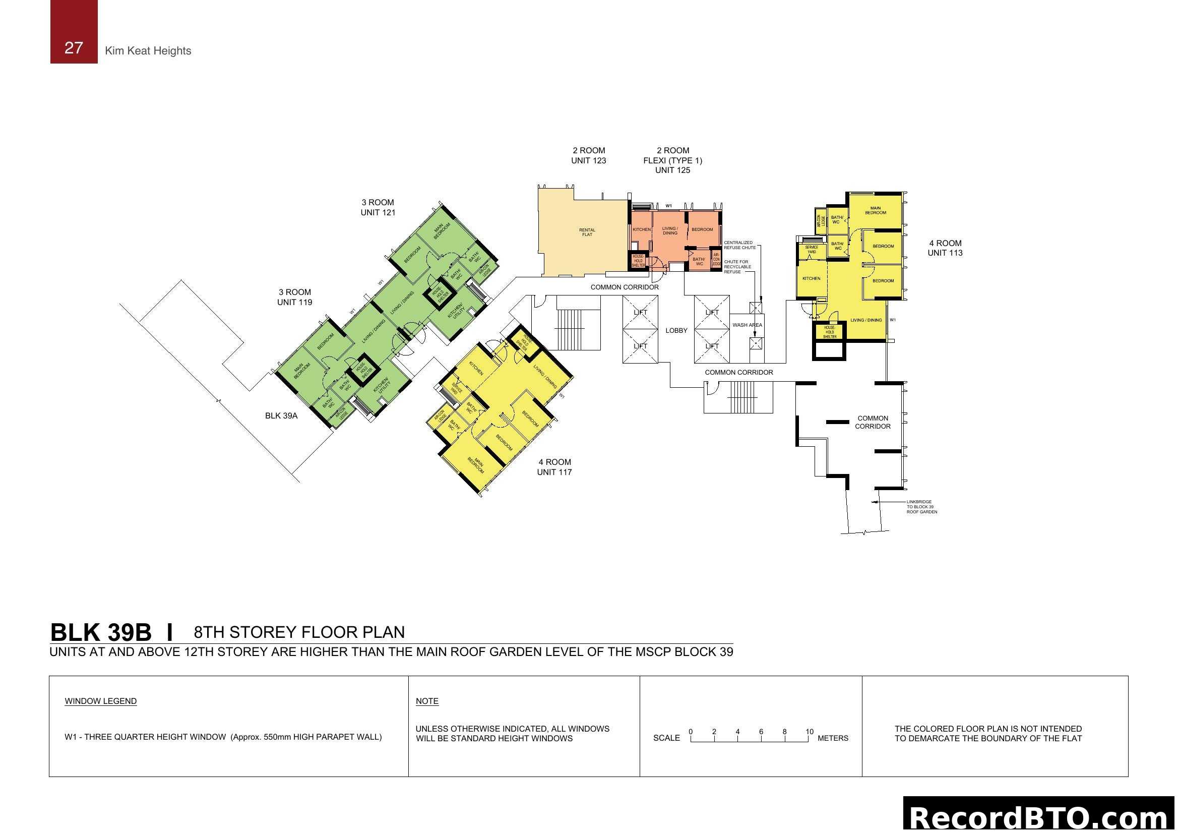
Kim Keat Heights - BLK 39B 8th Storey Floor Plan

This page displays the 8th storey floor plan for Block 39B at Kim Keat Heights. It illustrates the layout of various residential units, including 2-room (including Flexi Type 1), 3-room, and 4-room flats, along with common areas like the lobby, lifts, and corridors. The plan also includes legends for window types and a scale.

21

Kim Keat Heights Blk 39B Floor Plan (11-27 Storey)

This floor plan displays the layout of units on the 11th to 27th storeys of Block 39B at Kim Keat Heights. It features 2-room Flexi (Type 1 & 2), 3-room, and 4-room apartment layouts, showcasing the arrangement of rooms, common corridors, lift lobby, and other shared facilities. A window legend and general notes are also included.

22

Kim Keat Heights BLK 39B 28th Storey Floor Plan

This image displays the 28th storey floor plan for Block 39B at Kim Keat Heights. It features the layout for two 2-room Flexi units (Type 1 and Type 2) and two 4-room units (Units 113 and 115), along with common corridors, lobby, lifts, and a centralized refuse chute. The plan also indicates a roof garden accessible from this storey.

23

Kim Keat Heights - BLK 39B 29th Storey Floor Plan

This image displays the 29th-storey floor plan for Block 39B at Kim Keat Heights. It details the layouts of 2-room Flexi (Type 2) Unit 123, 2-room Flexi (Type 1) Unit 125, and 4-room Units 113 and 115, including common corridors, lobby, and lifts. The plan also indicates a roof garden accessible from this storey and includes a window legend and general notes regarding window types.

24

BLK 39B Floor Plan (30th to 36th Storey)

This image displays the floor plan for Block 39B at Kim Keat Heights, specifically for levels 30 to 36. It illustrates the layout of four units on these floors: two 2-room Flexi units (Type 1 and Type 2, Units 123 and 125) and two 4-room units (Units 113 and 115). The plan also shows the common corridor, lobby, lifts, and refuse chute. A window legend, scale bar, and general notes are included.

25

General Specifications for Kim Keat Heights

This page from the HDB brochure for Kim Keat Heights outlines the general specifications for 2-room Flexi (short lease) units. It covers details like foundation, structure, roof, walls, windows, doors, finishes, fittings, and services provided. Important notes regarding civil defence shelter, door frames, open spaces, and service details are also included, advising visitors to check the HDB website for renovation rules.

26

General Specifications for Kim Keat Heights HDB BTO

This page from the Kim Keat Heights HDB BTO brochure details the general specifications for 2-room Flexi, 3-room, and 4-room units. It covers aspects such as the building's foundation, structure, roof, and walls, along with specific materials for windows, doors, and interior finishes. Additionally, it lists fittings and services provided, concluding with important notes regarding household shelters and open spaces.

27

Disclaimer

This page from the HDB brochure contains various disclaimers regarding the information presented. It covers copyright, the nature of content (general information, not factual representations), artistic impressions, potential changes to project details, and the right to alter amenities. It also clarifies that the brochure does not warrant accuracy, that floor areas are scaled, and that surrounding land use is indicative. Furthermore, it reserves HDB's right to use certain common facilities and advises readers to consult authorities directly for complete information.

28

Optional Component Scheme (OCS) for 2-Room Flexi Flats

This brochure page outlines the Optional Component Scheme (OCS) for 2-room Flexi flats. It details standard inclusions for all 2-room Flexi flats, such as floor and wall finishes, and a water closet. It also presents two optional packages: Package 1 includes flooring and a sliding partition for the living/dining room and bedroom, while Package 2 offers sanitary fittings like a wash basin and shower set. Grab bars are mentioned as standard for short-lease flats for elderly buyers.

29

Optional Component Scheme for 2-Room Flexi Flats (Package 3)

This brochure page details Package 3 of the Optional Component Scheme for 2-room Flexi Flats, targeting elderly buyers. It showcases elderly-friendly fittings like built-in kitchen cabinets with induction hob, optional lower counter heights for wheelchair users, and wardrobes with lower hanging rods. Other standard fittings such as window grilles, mirror, lighting, and water heater are also listed.

30

HDB Optional Component Scheme for 3- to 5-Room Flats

This HDB brochure page explains the Optional Component Scheme (OCS) for 3-, 4-, and 5-room flats. It details standard inclusions like bathroom floor finishes and wall tiles. It then lists optional items available for installation, such as living room floor finishes, internal doors, wash basins, and shower sets, accompanied by product images. A disclaimer about the indicative nature of displays is also present.

Tip: Click on any page to jump directly to that brochure page

Photo Gallery

30 photos

Kim Keat Heights HDB Sales Launch May 2022

Kim Keat Heights HDB Sales Launch May 2022

Kim Keat Heights Residential Blocks Artist Impression

Kim Keat Heights Residential Blocks Artist Impression

Kim Keat Heights Community Facilities

Kim Keat Heights Community Facilities

Kim Keat Heights Important Notes

Kim Keat Heights Important Notes

Toa Payoh Kim Keat Heights Location Map

Toa Payoh Kim Keat Heights Location Map