Skip to main content
Garden Court @ Tengah
Launched
HDB BTO Sales Launch Cover Page
Brochure

Garden Court @ Tengah

Bounded by Tengah Garden Avenue, Tengah Garden Walk, and Plantation Crescent

Project Details

No of Blocks
7
Highest Floor
14
Tenure
99-year
Developer
HDB
Launch Date
Nov 2020
Expected TOP
Mar 2024
Total Units
790
BTO Type
standard

About This Project

Garden Court @ Tengah is a pioneering BTO development in Singapore's first 'Forest Town'. It features 790 units across 5 blocks (7-15 storeys) with extensive greenery including courtyard gardens and roof gardens. Located in the car-free Garden District of Tengah, it offers sustainable living with dedicated walking and cycling paths.

Units & Pricing

5 unit types available

Unit Type Floor Area Units Price Range
2-room Flexi (Type 1)
40 sqm*
Internal: 38 sqm^
128 units
$108,000 - $131,000
~$29,063-$35,252/psf
2-room Flexi (Type 2)
47 sqm*
Internal: 45 sqm^
336 units
$127,000 - $150,000
~$29,086-$34,353/psf
3-room
69 sqm*
Internal: 66 sqm^
218 units
$194,000 - $233,000
~$30,264-$36,348/psf
4-room
95 sqm*
Internal: 92 sqm^
570 units
$288,000 - $366,000
~$32,632-$41,470/psf
5-room
113 sqm*
Internal: 110 sqm^
327 units
$394,000 - $487,000
~$37,531-$46,390/psf
Total
1579 units
$108,000 - $487,000
* Refers to the estimated area of the whole apartment, comprising the internal floor area and the air-conditioner ledge.
^ Refers to the estimated area of the apartment computed based on the centre line of the apartment wall.
# Actual prices may vary based on the actual attributes of the flats at the time of selection. Prices include the costs of floor finishes, internal doors and sanitary fittings. Price range is excluding grants.
+ Singles who apply for a 2-room Flexi flat under the Single Singapore Citizen Scheme will pay $15,000 more than married couples.
^^ 2-room Flexi flats at Bishan Ridges are offered only to seniors (aged 55 and above) on short leases of between 15 and 45 years, in five-year increments.

Quick Info

Town
Tengah
Nearest MRT
Hong Kah
0.5km away
Tenure
99-year

Nearby Amenities

shopping
  • Upcoming Neighbourhood Centre
  • Jurong Point (via MRT)
schools
  • Proposed primary school site adjacent
  • Multiple upcoming primary schools within 1km
recreation
  • Courtyard gardens
  • Roof gardens
  • Children playgrounds
  • Fitness stations
  • Car-free town centre
  • Dedicated cycling paths
transport
  • Hong Kah MRT (JRL) - 4-6 mins walk
  • Tengah Plantation MRT (JRL) - 4-6 mins walk
  • Car-free environment
community
  • Upcoming Community Club

Project Brochure

54 pages

Page 1 / 54
Brochure Page 1

Table of Contents

1

HDB BTO Sales Launch Cover Page

Introductory page for the Garden Court @ Tengah HDB BTO sales launch, dated November 2020. The page features a computer-generated rendering of the proposed residential development, depicting multiple high-rise apartment blocks integrated with extensive green spaces. The landscape includes numerous trees, shrubs, and a children's play area with a distinctive red ladybug climbing structure. A lifestyle photograph occupies the lower portion, showing a smiling young couple holding a baby's blue romper, implying family-centric living. A baby crib is visible in the background of the photograph, set against a light teal wall.

2

HDB BTO Project Overview: Artist's Impression and Key Details

Artist's impression of the Garden Court @ Tengah HDB BTO development, located in Tengah town within the Garden District. The design incorporates garden elements, surrounding courtyards, and roof gardens at varying heights that step down towards a common green. The development is bounded by Tengah Garden Avenue, Tengah Garden Walk, and Plantation Crescent. It comprises 5 residential blocks, ranging from 7 to 15 storeys in height, offering a total of 790 units. Available flat types include 2-room Flexi, 3-room, 4-room, and 5-room flats. The project is situated near upcoming amenities such as a Neighbourhood Centre, a Community Club, and Jurong Region Line (JRL) MRT stations. It will be served by bus services and features an extensive network of walking and cycling paths. A key feature is the offer of flats with a shorter waiting time. This content is presented on page 1 of the brochure, with a page indicator '2' also present.

3

Community & Green Features: Tengah Garden District

Overview of community and green features within the Tengah Garden District. Key features include: - The Garden Farmway: Promotes community gardening, hobby farming, and farm-to-table dining, fostering a 'kampung spirit'. - Garden Court @ Tengah: Offers courtyard gardens, roof gardens on residential blocks, and green spaces above the Multi-Storey Car Park. - Amenities: Children's playgrounds, fitness stations, a childcare centre, and a Residents' Committee Centre are conveniently located. - Public Accessibility: Facilities within the development are accessible to the public. The Garden District is framed by Tengah Pond and Central Park, featuring a garden-themed farmway for healthy and active living. Thematic playgrounds are inspired by nature motifs, and green markers with botanical arbours and flowering creepers provide shade and visual appeal. An array of amenities such as eateries, schools, and retail shops will be available.

4

Tengah Town: Environmental Features and Master Plan Overview

This brochure page provides an overview of the environmental and master planning initiatives for Tengah town. Key features highlighted include: - **Biophilic Town Framework:** HDB's approach to integrating nature and greenery for enhanced well-being and quality of life. - **Active, Beautiful, and Clean Waters (ABC Waters) design strategy:** Aimed at bringing residents closer to nature through outdoor spaces and landscape features that manage stormwater runoff. - **Forest Corridor:** An approximately 100-meter wide and 5km long green corridor, connecting the Western Water Catchment Area and Central Catchment Nature Reserve, with various tree species to be planted. Visual impressions include: - **Garden District:** Depicts residential blocks seamlessly blended with extensive green spaces, featuring communal areas for recreation. - **Tengah Town Centre - The Market Place:** Illustrates a future town center with multi-story buildings, green roofs, a large open market/plaza area, and an integrated elevated train system. No specific unit types, floor plans, block numbers, or detailed measurements are present on this page.

5

Tengah Town Centre & Smart Town Features Overview

This page provides an overview of Tengah town's features and future plans. The central visual is an artist's impression of the 'Car-lite Town Centre'. Key features include: - **Green Spaces:** Forest Corridor and Forest Fringe (15-20m wide greenscape), Central Park, and Community Farmways. - **Car-lite Town Centre:** First HDB town with a car-free town centre, promoting green commuting with dedicated walking and cycling paths. - **Connectivity:** Served by the upcoming Jurong Region Line and bus services. - **Smart Town:** First HDB town planned with town-wide smart technologies under HDB's Smart Town Framework, including piloting autonomous vehicles for first-mile-last-mile connections. - **Commercial Facilities:** Vibrant commercial facilities planned for the town centre and districts, complementing existing shops in Bukit Batok. Note: The visual is an artist's impression only, and actual design may vary. This is page 5 of the brochure.

6

Important Notes: HDB Precinct Planning and Information Disclaimer

General information regarding HDB precinct planning and amenities. HDB precincts are designed to meet evolving community needs, with spaces reserved for future amenities including: - Childcare centres - Elderly-related facilities - Education centres - Residents' committee centres - Day activity centres - Commercial facilities (shops, eating houses) - Mechanical and electrical rooms These facilities may be located in void decks, common property, car parks, or stand-alone community buildings. Information provided in the brochure regarding surrounding land use and proposed facilities is indicative only, based on current planning intent, and subject to review by relevant government agencies. This page is number 6 in the brochure.

7

Tengah Locality Map: Transport and Proposed Amenities

Locality map for the Tengah planning area, showcasing existing and proposed developments and infrastructure. Key features include: - Transport networks: Pan Island Expressway, Choa Chu Kang Expressway, and various roads. Multiple MRT/LRT lines and stations are indicated, including Tengah MRT Station (JRL), Hong Kah MRT Station (JRL), Tengah Plantation MRT Station (JRL), and Choa Chu Kang West MRT Station (JRL), many of which are under construction or future. - Proposed amenities: Parks (including Forest Corridors and Fringe Parks), Civic & Community Institutions, Places of Worship (Churches, Mosques, Temples), Health & Medical Care facilities (Hospitals, Polyclinics, Clinics, Nursing Homes), and schools. - Surrounding areas: The map extends to parts of Jurong, Bukit Batok, and Choa Chu Kang, showing their connectivity to Tengah. All proposed developments are subject to change and planning approval, with locations and facilities being indicative only. The map includes a scale bar for distance measurement.

8

HDB BTO Project Features and Home Provisions

This brochure page outlines the eco-friendly, smart, and home provision features for Garden Court @ Tengah. Eco-Friendly Living features include separate chutes for recyclable waste, regenerative lifts, bicycle stands, car-sharing parking, sustainable products, and ABC Waters design. Dream Homes offer 2-room Flexi, 3-, 4-, and 5-room flats, built using Prefabricated Prefinished Volumetric Construction (PPVC). - 2-room Flexi flats include vinyl strip flooring in living/dining/bedroom, floor tiles in household shelter/bathroom/kitchen, wall tiles in bathroom/kitchen, a sliding bedroom partition/door, folding bathroom door, sanitary fittings, and grab bars (for short-leases). - 3-, 4-, and 5-room flats include vinyl strip flooring in bedrooms, floor tiles in living/dining/kitchen/service yard/household shelter/bathrooms, wall tiles in kitchen/bathrooms, internal doors for bedrooms/bathrooms, and sanitary fittings. Smart Solutions comprise smart-enabled homes, smart lighting in common areas, and a Smart Pneumatic Waste Conveyance System. An optional Centralised Cooling System provides energy-efficient air conditioning without outdoor condensing units. The Optional Component Scheme allows elderly buyers of short-lease 2-room Flexi flats to opt for elderly-friendly fittings, with costs added to the flat price.

9

HDB BTO Unit Floor Plans: 2-Room Flexi, 3-Room, 4-Room

This page presents four distinct HDB BTO flat floor plans, each with a suggested furniture layout. 2-Room Flexi (Type 1) has an approximate floor area of 40 sqm (38 sqm internal + Air-Con Ledge). It includes one bedroom, living/dining area, kitchen, one bath/WC, and a household shelter. 3-Room flat has an approximate floor area of 69 sqm (66 sqm internal + Air-Con Ledge). It features a main bedroom, one additional bedroom, living/dining area, kitchen, two bath/WCs, a household shelter, and a service yard. 2-Room Flexi (Type 2) has an approximate floor area of 47 sqm (45 sqm internal + Air-Con Ledge). It includes one bedroom, living/dining area, kitchen, one bath/WC, and a household shelter. 4-Room flat has an approximate floor area of 95 sqm (92 sqm internal + Air-Con Ledge). It features a main bedroom, two additional bedrooms, living/dining area, kitchen, two bath/WCs, a household shelter, and a service yard.

10

5-Room Floor Plan with Suggested Layout and Area Details

Floor plan for a 5-Room HDB flat, featuring a suggested furniture layout. The unit comprises a main bedroom, two common bedrooms, and two bathrooms/WCs. Key common areas include a combined living/dining space, a kitchen, and a separate service yard. Additional features are a household shelter, an air-con ledge, and a suggested study area integrated into the living space. The approximate total floor area is 113 sqm, which includes 110 sqm of internal floor area and the air-con ledge.

11

Site Plan: Residential Blocks and Flat Type Distribution

Site plan for a residential development featuring multiple blocks and common facilities. Residential blocks include 219A (10/15 storeys), 220A (9/15 storeys), 220B (7/10/15 storeys), 221A (9/15 storeys), and 221B (7/10/15 storeys). Unit types available across these blocks: - 2-Room Flexi (Type 1 & 2) - 3-Room - 4-Room - 5-Room Total unit count for the project is 790, comprising 56 Type 1 2-Room Flexi, 168 Type 2 2-Room Flexi, 108 3-Room, 286 4-Room, and 172 5-Room units. Lifts open at every storey for all listed blocks. Key amenities and facilities include a 7-storey multi-storey car park (Block 218) with a roof garden, a 1-storey childcare centre (Block 219), precinct pavilions, children's playgrounds, adult and elderly fitness stations, and common green spaces. The plan also indicates future reserved sites for high-rise residential development, a school, church, Chinese temple, and a future MRT line.

12

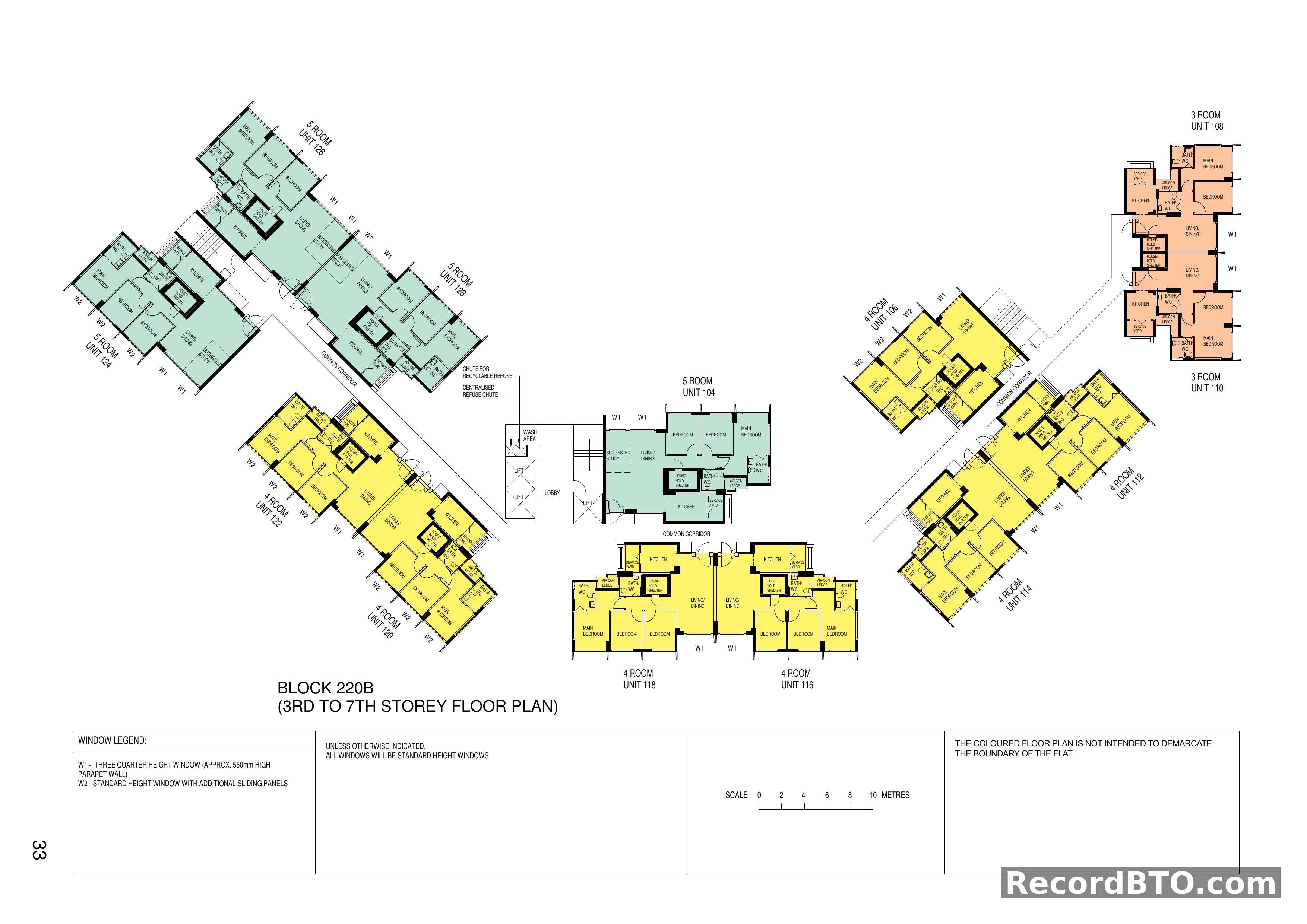
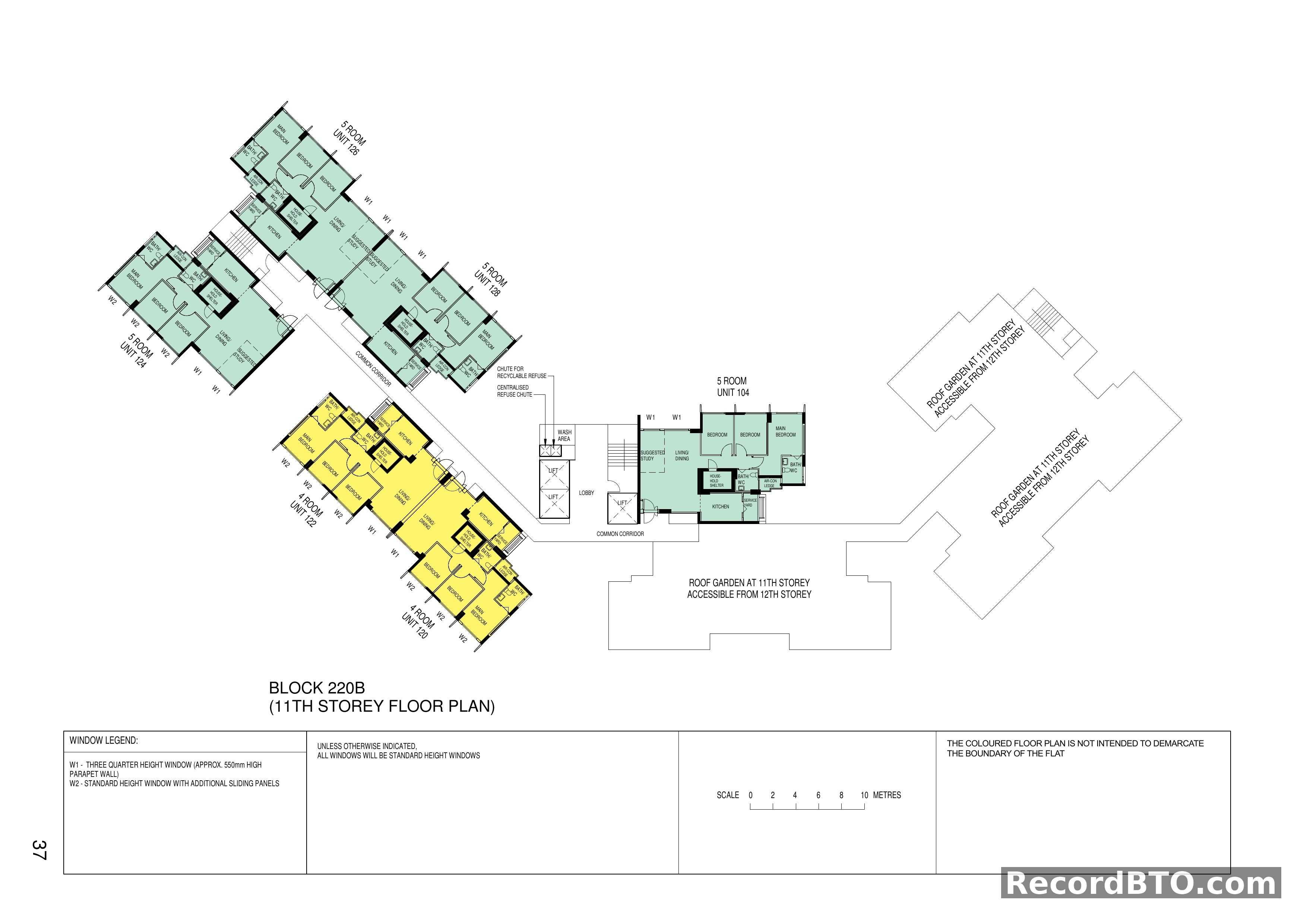
HDB Block Diagrams: Unit Mix and Floor Levels for Four Blocks

Block diagrams illustrating unit mix and floor levels for four HDB blocks: 219A, 220B, 220A, and 221A. All blocks span from the 1st storey (#01) to the 15th storey (#15). Block 219A offers 3-Room, 4-Room, and 5-Room flats. Unit 64 on the ground floor is designated as a Residents' Committee Centre. Accessible roof gardens are located above the 10th storey for units 66, 68, and 70. Block 220B features 3-Room, 4-Room, and 5-Room flats. Ground floor units 120, 122, 124, 126, and 128 are marked for future amenities/facilities. An inaccessible green roof is present above the 7th storey for units 108 and 110, while accessible roof gardens are above the 10th storey for units 106, 108, 110, 112, 114, 116, and 118. Blocks 220A and 221A offer 2-Room Flexi (Type 1 & 2), 3-Room, and 4-Room flats. Both blocks feature inaccessible green roofs above the 10th storey for their respective 4-Room units (92-102 in 220A, 150-160 in 221A).

13

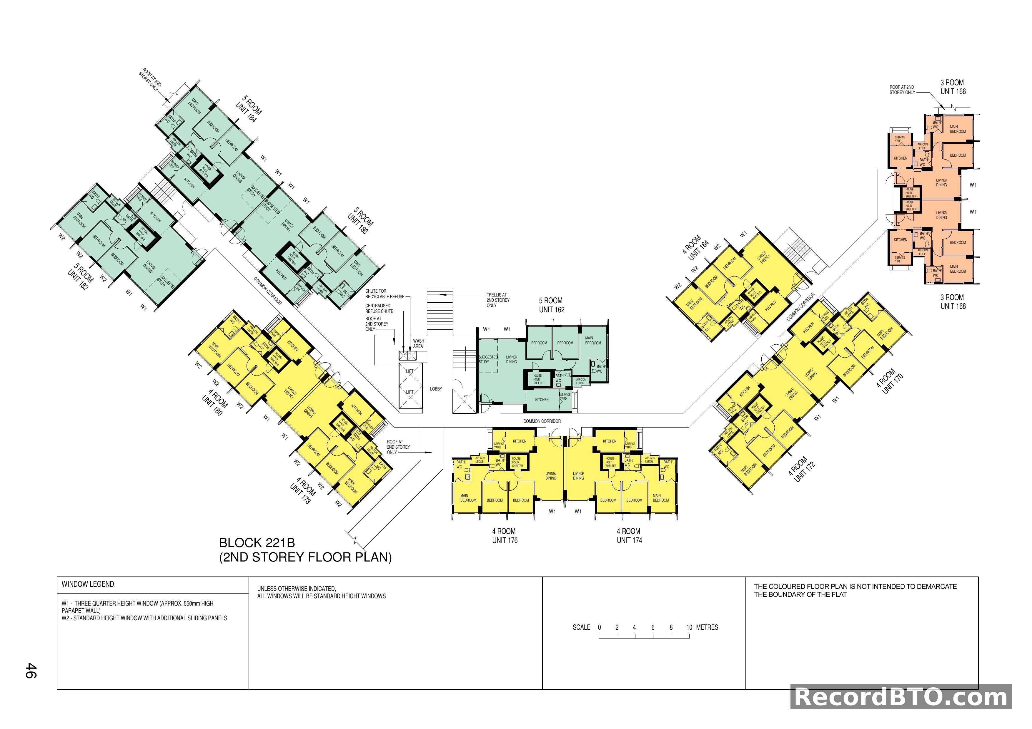
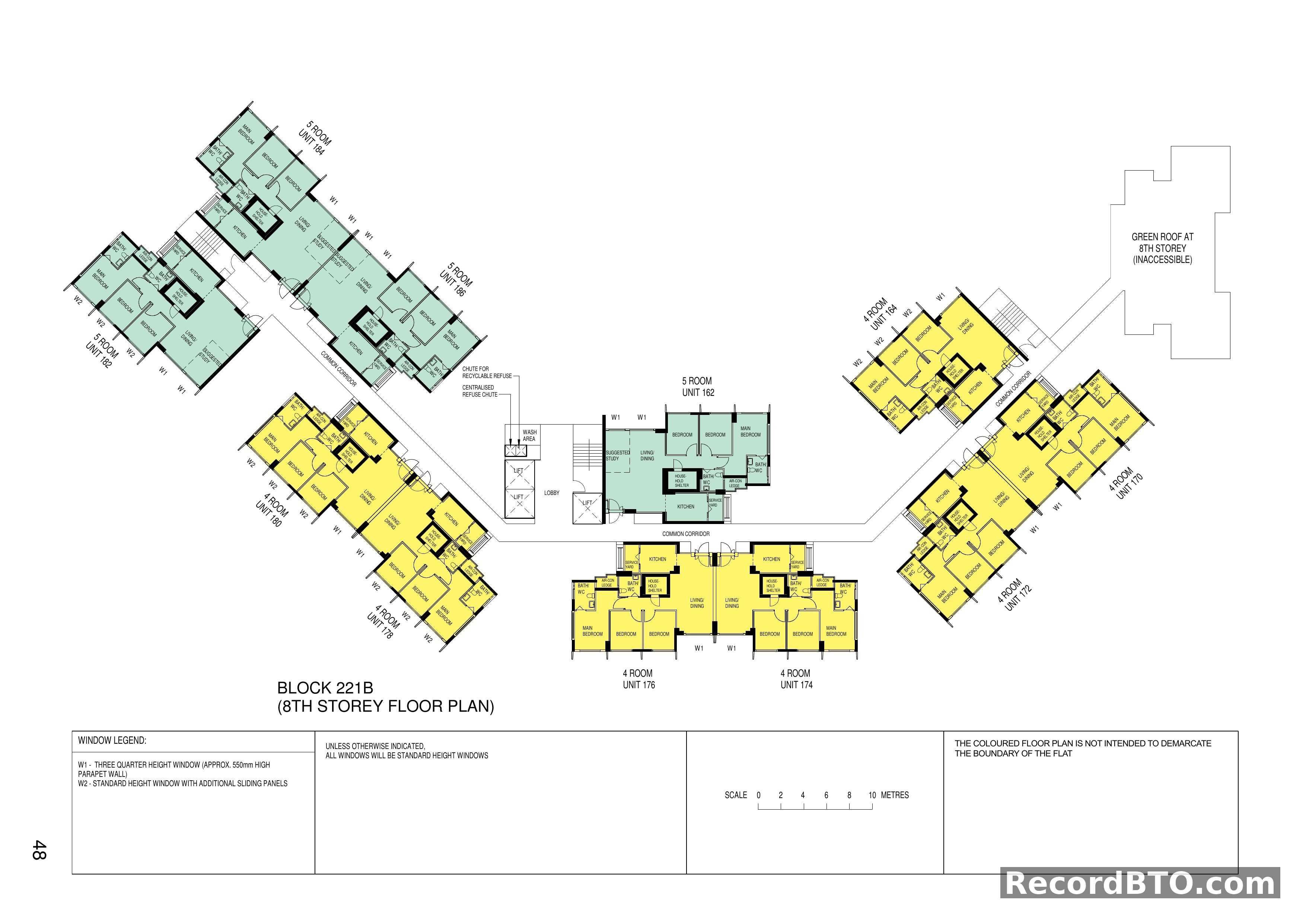
Block 221B: Flat Type Distribution Across Floors and Stacks

Block 221B's flat type distribution across unit stacks and floor levels 1 to 15. Flat types by stack: - Stacks 162, 164: 5-Room flats from levels 1 to 10, and levels 13 to 15. - Stacks 166, 168: 3-Room flats from levels 1 to 6. - Stacks 170, 172, 174, 176: 4-Room flats from levels 1 to 9, and levels 12 to 15. - Stacks 178, 180: 4-Room flats from levels 1 to 15. - Stacks 182, 184, 186: 5-Room flats from levels 1 to 15. Special features: - Accessible Roof Garden: Located at levels 11-12 above stacks 162, 164, and at levels 10-11 above stacks 170, 172, 174, 176. - Inaccessible Green Roof: Located at levels 7-8 above stacks 166, 168. The legend indicates: Orange for 3-Room, Yellow for 4-Room, and Light Green for 5-Room. This is page 18 of the brochure.

14

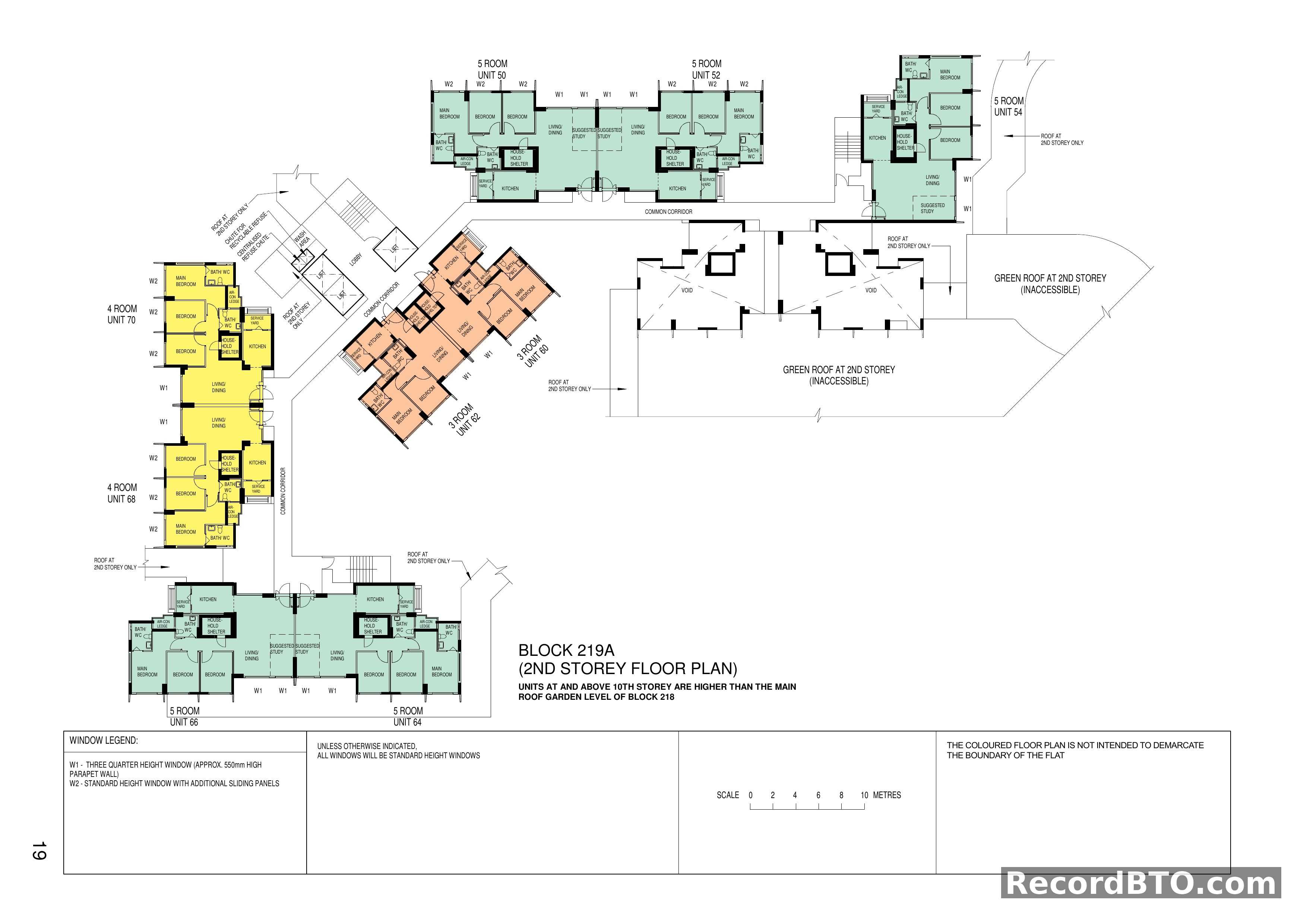
Block 219A: 2nd Storey Floor Plans

2nd storey floor plan for Block 219A, detailing various flat types and common areas. Unit types available on this floor: - 3-Room (Units 60, 62): Features 2 bedrooms (main and one common), 2 bathrooms, living/dining, kitchen, household shelter, and service yard. - 4-Room (Units 68, 70): Features 3 bedrooms (main and two common), 2 bathrooms, living/dining, kitchen, household shelter, and service yard. - 5-Room (Units 50, 52, 54, 64, 66): Features 3 bedrooms (main and two common), 2 bathrooms, living/dining, kitchen, household shelter, service yard, and suggested study areas. Common facilities on this level include a lobby, lifts, common corridor, centralised refuse chute, and a chute for recyclable refuse. The plan also shows an inaccessible green roof and voids. Units at and above the 10th storey are noted to be higher than the main roof garden level of Block 218. Window types are specified as W1 (three-quarter height) and W2 (standard height with sliding panels).

15

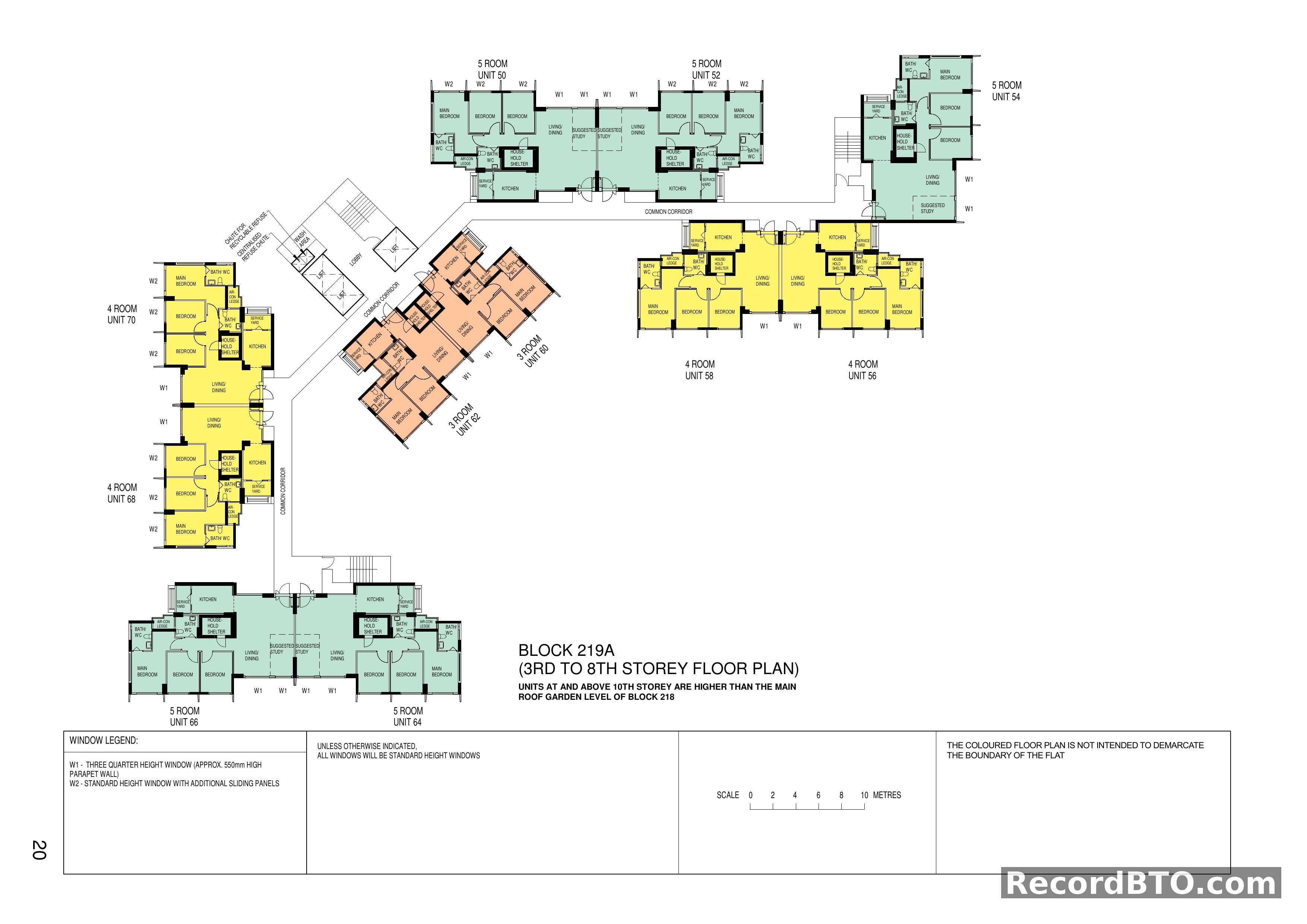
Block 219A: 3rd-8th Storey Floor Plans

Floor plan for Block 219A, covering the 3rd to 8th storeys. Unit types available: - 3-Room flats: Units 60, 62 (2 bedrooms, 1 bath/WC) - 4-Room flats: Units 56, 58, 68, 70 (3 bedrooms, 2 baths/WC) - 5-Room flats: Units 50, 52, 54, 64, 66 (3 bedrooms, 2 baths/WC, includes suggested study area) All units include a household shelter, kitchen, service yard, and living/dining area. Common facilities shown are lifts, stairs, lobby, and centralized refuse chutes. Window types are specified: W1 indicates a three-quarter height window (approx. 550mm high parapet wall), and W2 indicates a standard height window with additional sliding panels. Units at and above the 10th storey are noted to be higher than the main roof garden level of Block 218. The scale bar indicates measurements up to 10 metres.

16

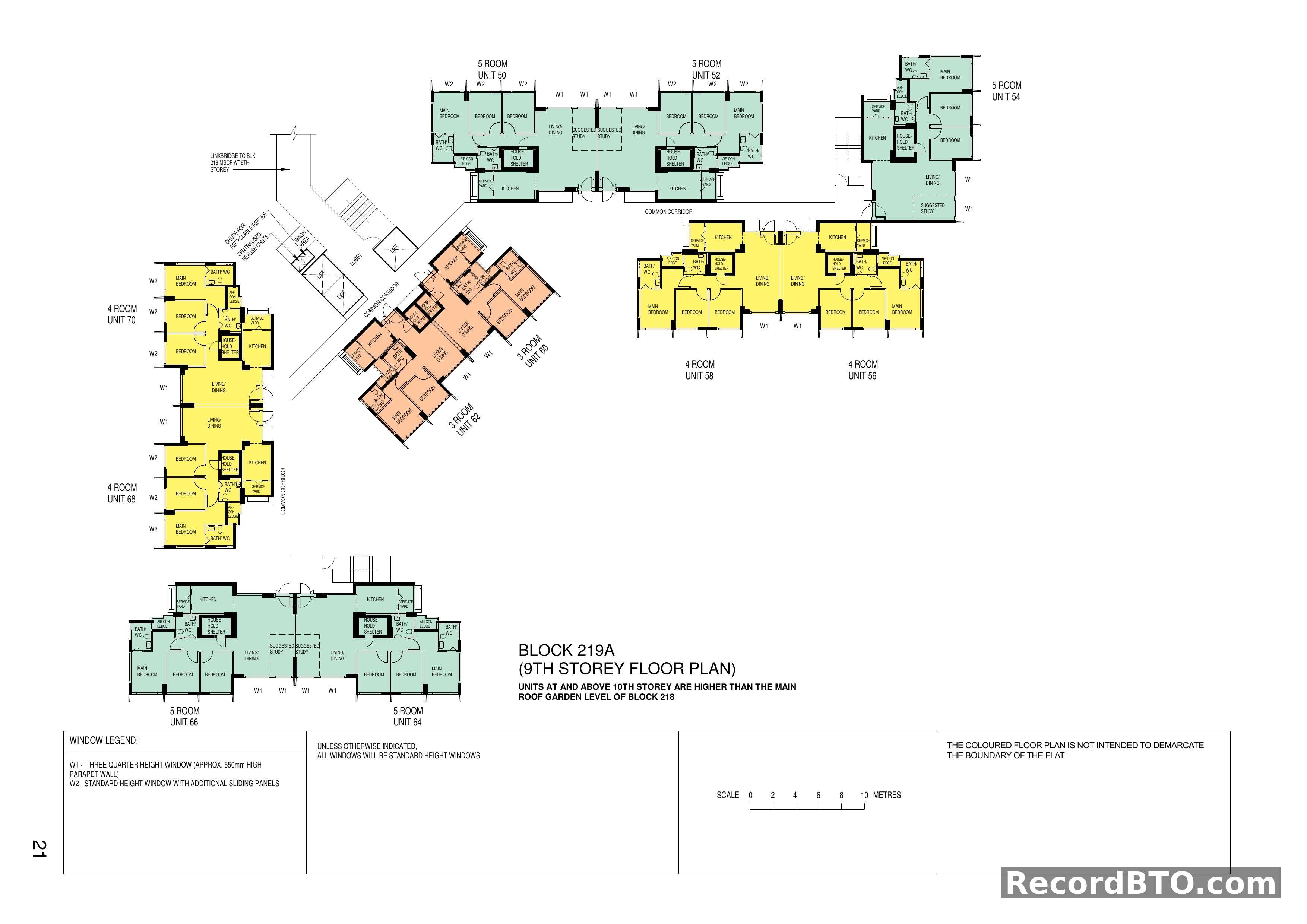
Block 219A: 9th Storey Floor Plan with 3, 4, and 5-Room Units

Floor plan for Block 219A, specifically detailing the 9th storey layout. Unit types available on this floor include: - 3-Room flats: Units 60, 62 - 4-Room flats: Units 56, 58, 68, 70 - 5-Room flats: Units 50, 52, 54, 64, 66 Each unit features a living/dining area, kitchen, service yard, household shelter, and at least one bathroom. 5-Room units (50, 52, 64, 66) include a 'Suggested Study' area. Common facilities on the floor include a lobby, lifts, common corridor, centralised refuse chute, recyclable refuse chute, and a wash area. A link bridge to Block 218 MSCP is located at the 9th storey. Units at and above the 10th storey are noted to be higher than the main roof garden level of Block 218. Window types are specified as W1 (three-quarter height) and W2 (standard height with sliding panels).

17

Block 219A: 10th Storey Floor Plan with 3-, 4-, and 5-Room Units

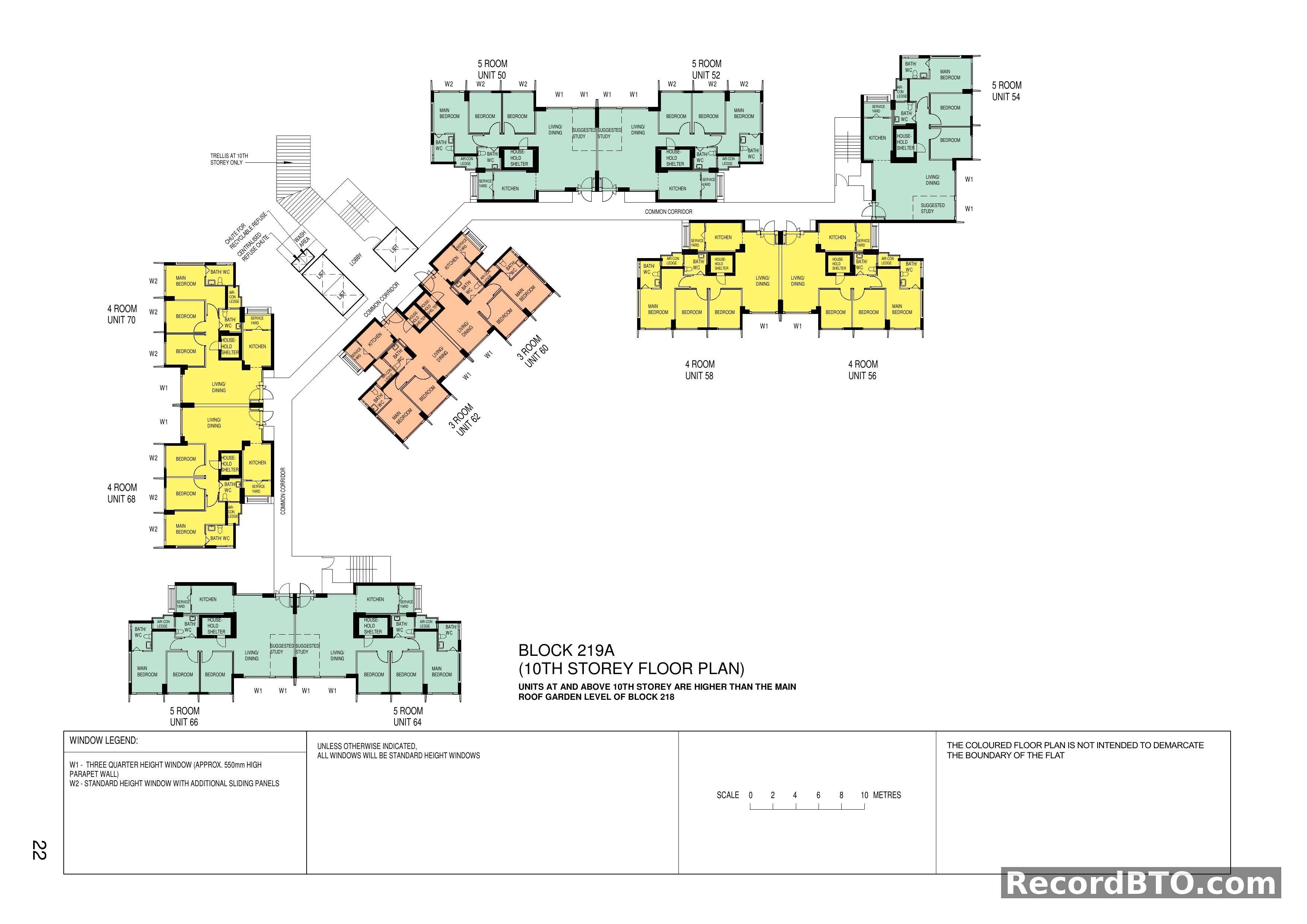
10th storey floor plan for Block 219A. This level features a mix of 3-Room, 4-Room, and 5-Room flat types. Specific units shown are: - 3-Room: Units 60, 62 - 4-Room: Units 56, 58, 68, 70 - 5-Room: Units 50, 52, 54, 64, 66 Each unit generally includes a main bedroom, additional bedrooms, living/dining area, kitchen, household shelter, service yard, and two bathrooms. 5-Room units 50, 52, 54, 64, and 66 also feature a suggested study area. Common facilities on this floor include a common corridor, lift lobby with multiple lifts, stairwells, and centralized refuse chutes. A trellis is indicated at the 10th storey only. Window types are defined as W1 (three quarter height, approx. 550mm high parapet wall) and W2 (standard height with additional sliding panels). Units at and above the 10th storey are higher than the main roof garden level of Block 218. A metric scale bar from 0 to 10 metres is provided.

18

Block 219A: 11th Storey Floor Plan

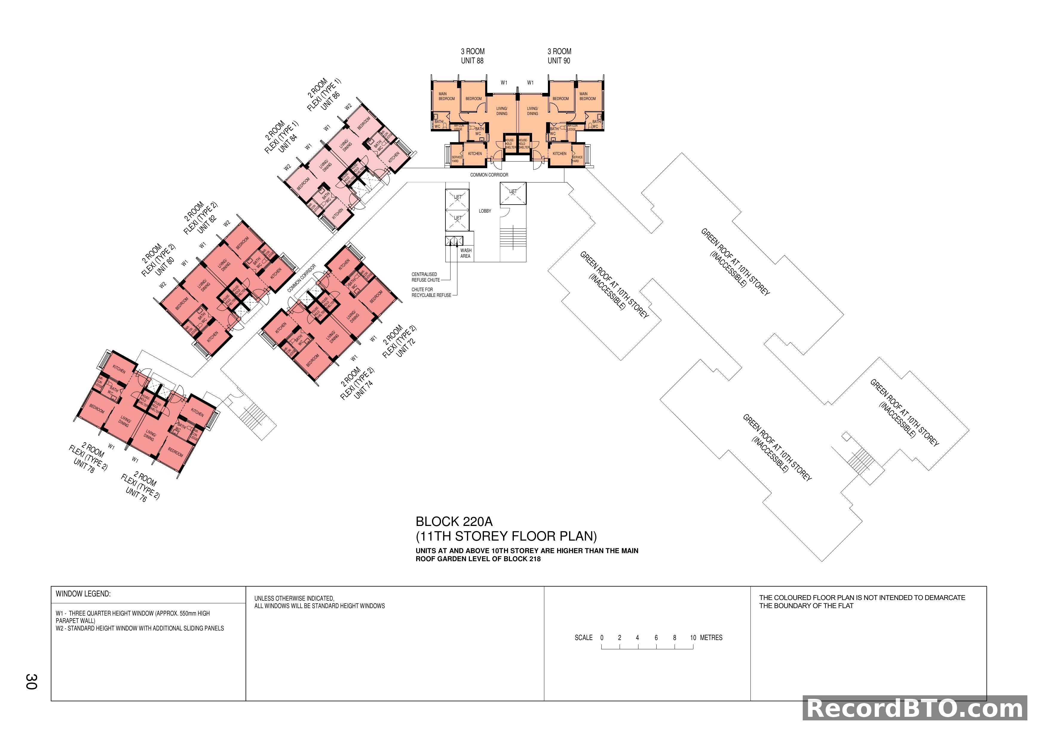
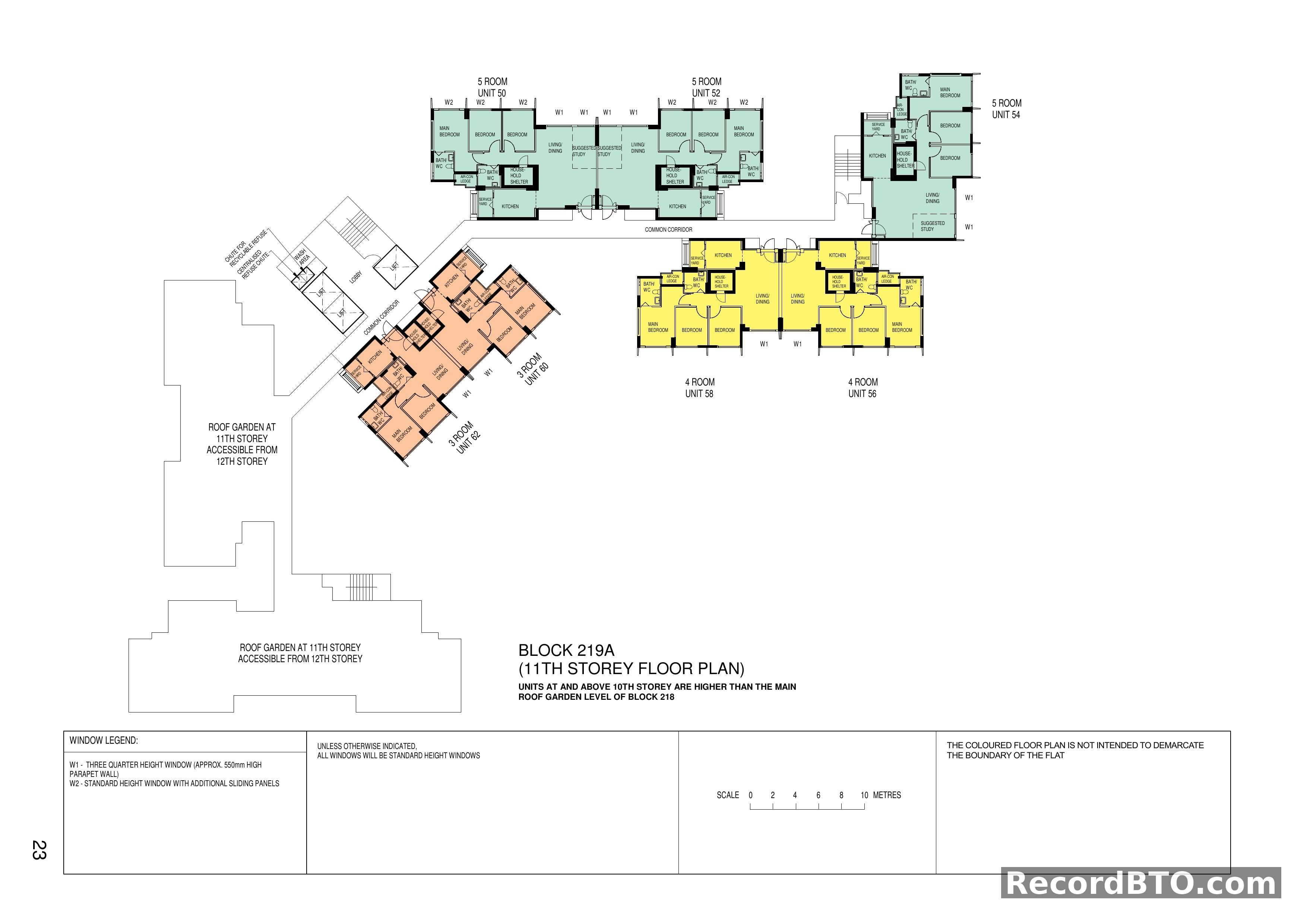
Floor plan for Block 219A, specifically for the 11th storey. Units at and above the 10th storey are noted to be higher than the main roof garden level of Block 218. Unit types and their configurations: - 5-Room (Units 50, 52, 54): Features three bedrooms (including main bedroom), living/dining area, kitchen, two bathrooms (one attached to main bedroom), household shelter, service yard, and air-con ledge. Units 50, 52, and 54 also include a suggested study area. - 4-Room (Units 56, 58): Comprises two bedrooms (including main bedroom), living/dining area, kitchen, two bathrooms (one attached to main bedroom), household shelter, service yard, and air-con ledge. - 3-Room (Units 60, 62): Includes two bedrooms (including main bedroom), living/dining area, kitchen, two bathrooms (one attached to main bedroom), household shelter, service yard, and air-con ledge. Common facilities shown are a lift lobby with three lifts, a common corridor, wash area, and chutes for recyclable and centralised refuse. A roof garden is located at the 11th storey, accessible from the 12th storey. Window types are specified: W1 (three quarter height, approx. 550mm high parapet wall) and W2 (standard height with additional sliding panels). All other windows are standard height. A scale bar indicates measurements in metres, from 0 to 10.

19

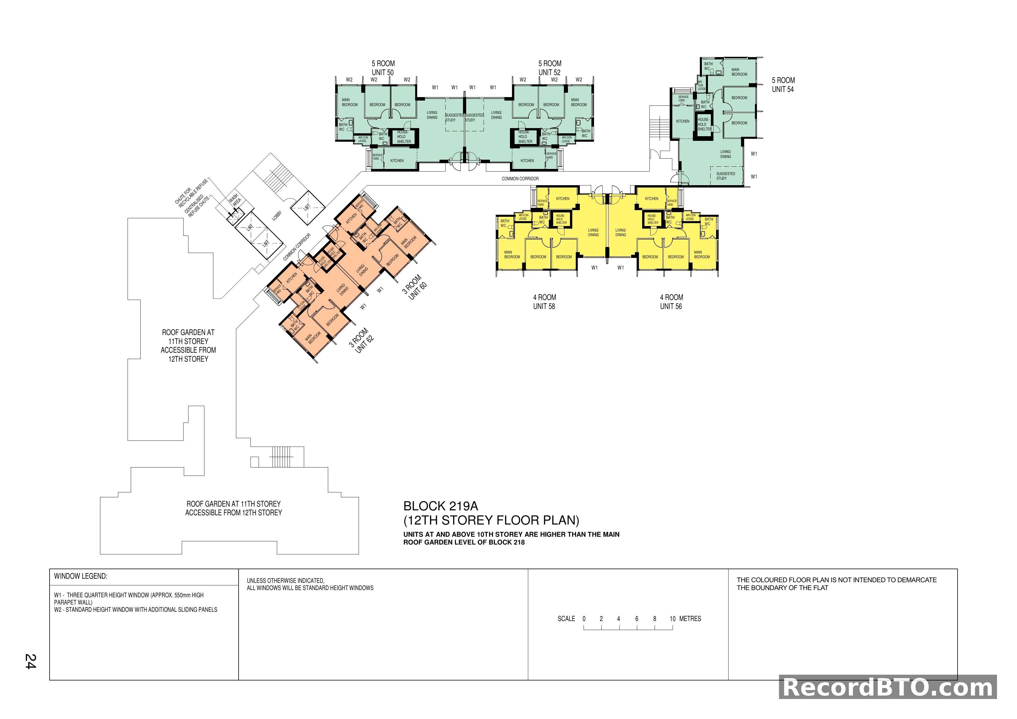
Block 219A: 12th Storey Floor Plans

12th storey floor plan for Block 219A, featuring a mix of 3-Room, 4-Room, and 5-Room flat types. Unit types and numbers: - 3-Room: Units 60, 62 (each with 2 bedrooms, living/dining, kitchen, household shelter, 2 baths, service yard). - 4-Room: Units 56, 58 (each with 3 bedrooms, living/dining, kitchen, household shelter, 2 baths, service yard). - 5-Room: Units 50, 52, 54 (each with 3 bedrooms, living/dining, kitchen, household shelter, 2 baths, service yard, and a suggested study area). The floor features a central lift lobby with three lifts, a common corridor, and a centralised refuse chute. A roof garden is located on the 11th storey, accessible from the 12th storey. Units at and above the 10th storey are noted to be higher than the main roof garden level of Block 218. Window types W1 (three-quarter height) and W2 (standard height with sliding panels) are indicated.

20

Block 219A: 13th Storey Floor Plan

Block 219A, 13th storey floor plan. Units at and above the 10th storey are noted to be higher than the main roof garden level of Block 218. The floor features: - 3-Room units: Units 60 and 62, each with a main bedroom, one additional bedroom, living/dining area, kitchen, household shelter, service yard, and two bathrooms. - 4-Room units: Units 56 and 58, each with a main bedroom, two additional bedrooms, living/dining area, kitchen, household shelter, service yard, and two bathrooms. - 5-Room units: Units 50, 52, and 54, each with a main bedroom, two additional bedrooms, living/dining area, kitchen, household shelter, service yard, two bathrooms, and a suggested study area. Common facilities include a lobby, lifts, stairs, and a centralised refuse chute. A trellis feature is present at the 13th storey only near Unit 62. Window types W1 (three-quarter height) and W2 (standard height with sliding panels) are indicated.

21

Block 219A: 14th and 15th Storey Floor Plans

Floor plan layout for Block 219A covering the 14th and 15th storeys. Unit types available on these floors: - 5-Room flats: Units 50, 52, 54. Each includes a main bedroom, two additional bedrooms, living/dining area, kitchen, household shelter, two bathrooms, service yard, and air-con ledge. Units 50 and 52 feature a suggested study area. - 4-Room flats: Units 56, 58. Each includes a main bedroom, two additional bedrooms, living/dining area, kitchen, household shelter, two bathrooms, service yard, and air-con ledge. - 3-Room flats: Units 60, 62. Each includes a main bedroom, one additional bedroom, living/dining area, kitchen, household shelter, two bathrooms, service yard, and air-con ledge. The floor features a common corridor, lift lobby, and a centralized refuse chute with a wash area. Units at and above the 10th storey are noted to be higher than the main roof garden level of Block 218. Window types include W1 (three-quarter height) and W2 (standard height with sliding panels).

22

Block 220A: 2nd Storey Floor Plan

2nd storey floor plan for Block 220A, detailing various unit types and common facilities. Unit types available on this floor: - 2-Room Flexi (Type 1): Units 84, 86 - 2-Room Flexi (Type 2): Units 72, 74, 76, 78, 80, 82 - 3-Room: Units 88, 90 - 4-Room: Units 92, 94, 96, 98, 100, 102 Each unit includes a living/dining area, kitchen, household shelter, and bath/WC. 2-Room Flexi units have one bedroom, while 3-Room units have two bedrooms (including a main bedroom) and a service yard. 4-Room units feature three bedrooms (including a main bedroom), a service yard, and an air-con ledge. Common amenities include a central lift lobby, staircases, common corridors, a wash area, and centralized refuse chutes. Units at and above the 10th storey are noted to be higher than the main roof garden level of Block 218. Window types are specified: W1 for three-quarter height windows and W2 for standard height windows with additional sliding panels.

23

Block 220A: 3rd to 9th Storey Floor Plan

Floor plan for Block 220A, covering the 3rd to 9th storey levels. The floor features 16 residential units per floor, comprising: - Eight 2-Room Flexi units (Units 72, 74, 76, 78, 80, 82 are Type 2; Units 84, 86 are Type 1). These units are colored red. - Two 3-Room units (Units 88, 90). These units are colored beige/brown. - Six 4-Room units (Units 92, 94, 96, 98, 100, 102). These units are colored yellow. All units include a living/dining area, kitchen, bedroom(s), bath/WC, and a household shelter. Some units also feature a service yard. The central core provides access to lifts, staircases, a wash area, and centralized refuse and recyclable refuse chutes. Window types are indicated by W1 (three-quarter height, approx. 550mm high parapet wall) and W2 (standard height with additional sliding panels). A note indicates that units at and above the 10th storey are higher than the main roof garden level of Block 218.

24

Block 220A: 10th Storey Floor Plan

10th storey floor plan for Block 220A. This level features a total of 10 residential units: - 2-Room Flexi (Type 2): Units 72, 74, 76, 78, 80, 82 (6 units) - 2-Room Flexi (Type 1): Units 84, 86 (2 units) - 3-Room: Units 88, 90 (2 units) All units include a household shelter, kitchen, living/dining area, bedroom(s), and bath/WC. The 3-Room units also feature a service yard. Common facilities on this floor include a central lift lobby, staircase, wash area, and centralised refuse chute with a separate chute for recyclable refuse. The floor plan also indicates inaccessible green roof areas at the 10th storey. Units on this floor and above are noted to be higher than the main roof garden level of Block 218. Window types are specified as W1 (three quarter height, approx. 550mm high parapet wall) and W2 (standard height with additional sliding panels), with a general note that all windows are standard height unless otherwise indicated.

25

Block 220A: 11th Storey Floor Plan

Floor plan for Block 220A, specifically for the 11th storey. This floor features 10 residential units: - 2-Room Flexi (Type 2): Units 72, 74, 76, 78, 80, 82 (6 units) - 2-Room Flexi (Type 1): Units 84, 86 (2 units) - 3-Room: Units 88, 90 (2 units) All units include a living/dining area, kitchen, bedroom(s), bath/WC, and household shelter. 3-Room units also have a service yard. Common facilities on this level include a central lift lobby, staircase, wash area, and a centralised refuse chute for general and recyclable refuse. The plan notes that units at and above the 10th storey are higher than the main roof garden level of Block 218. Inaccessible green roofs are present at the 10th storey surrounding the block. Window types are specified: W1 (three-quarter height) and W2 (standard height with sliding panels), with all other windows being standard height.

26

Block 220A: 12th-15th Storey Floor Plan

Floor plan for Block 220A covering levels 12 through 15. Unit types available: - 2-Room Flexi (Type 1): Units 84, 86 - 2-Room Flexi (Type 2): Units 72, 74, 76, 78, 80, 82 - 3-Room: Units 88, 90 Each 2-Room Flexi unit includes one bedroom, living/dining area, kitchen, bath/WC, and household shelter. Each 3-Room unit includes two bedrooms (one main), living/dining area, kitchen, bath/WC, household shelter, and service yard. Common facilities on this floor include a common corridor, lift lobby with three lifts, staircase, wash area, centralised refuse chute, and a chute for recyclable refuse. Units at and above the 10th storey are noted to be higher than the main roof garden level of Block 218. Window types are specified as W1 (three-quarter height, approx. 550mm high parapet wall) and W2 (standard height with additional sliding panels).

27

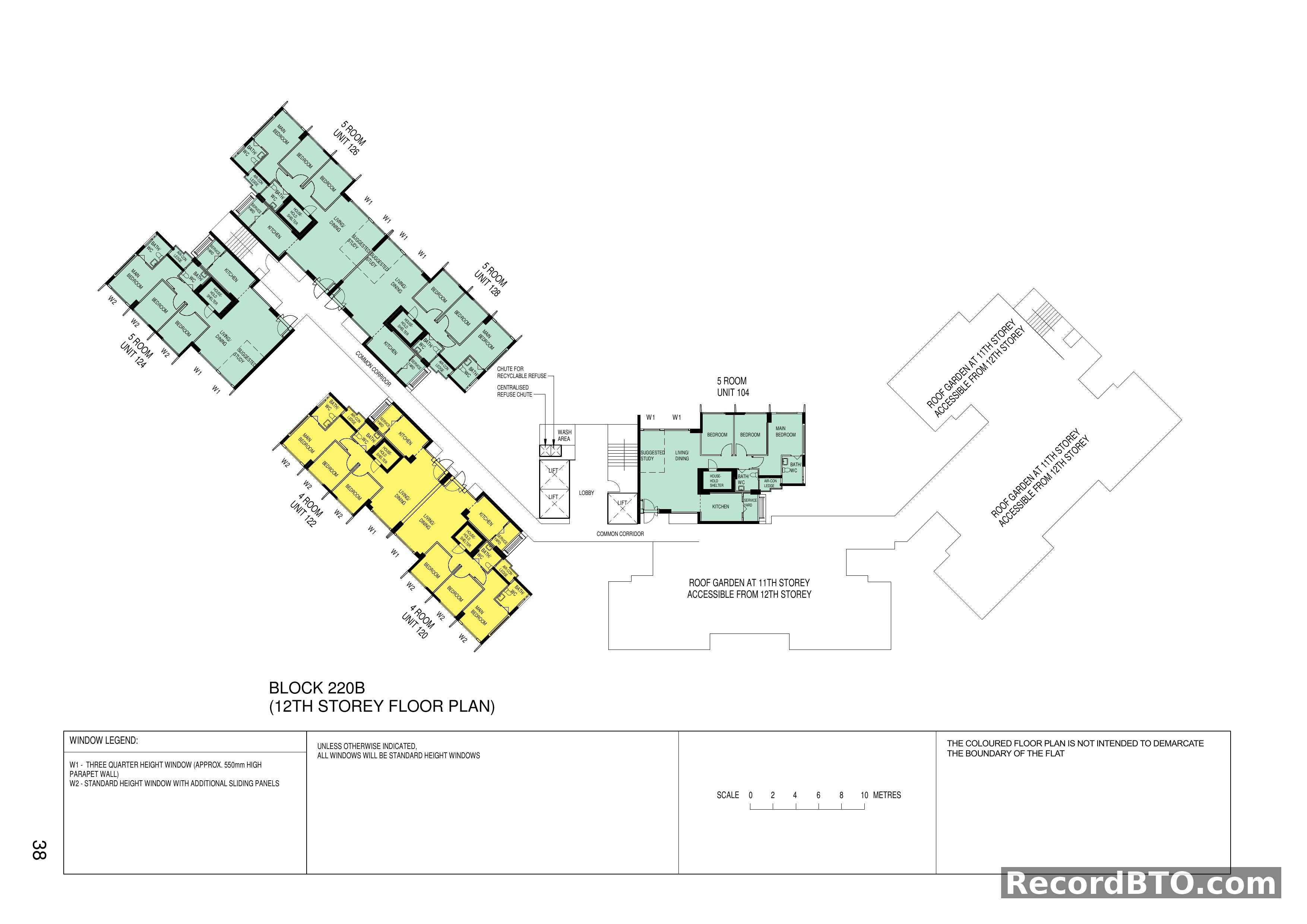
Block 220B: 2nd Storey Floor Plan

2nd storey floor plan for Block 220B, featuring a mix of 3-room, 4-room, and 5-room units. Unit types and numbers: - 5-Room: Units 104, 124, 126, 128. These units include a main bedroom, two to three additional bedrooms, a living/dining area, kitchen, household shelter, two bathrooms, and a service yard. Some 5-room units (e.g., 124, 126, 128) feature a 'suggested study' area. - 4-Room: Units 106, 112, 114, 116, 118, 120, 122. These units typically comprise a main bedroom, two additional bedrooms, a living/dining area, kitchen, household shelter, two bathrooms, and a service yard. - 3-Room: Units 108, 110. These units contain a main bedroom, one additional bedroom, a living/dining area, kitchen, household shelter, two bathrooms, and a service yard. Common facilities include a central lobby with lifts, a wash area, and a centralised refuse chute. Some areas and units are marked with 'ROOF AT 2ND STOREY ONLY' or 'TRELLIS AT 2ND STOREY ONLY'. The window legend specifies W1 as a three-quarter height window and W2 as a standard height window with sliding panels.

28

Block 220B: 3rd-7th Storey Floor Plan

Floor plan for Block 220B, covering the 3rd to 7th storeys. Each floor contains 13 units. Unit types available: - 3-Room flats: Units 108, 110 (2 units) - 4-Room flats: Units 106, 112, 114, 116, 118, 120, 122 (7 units) - 5-Room flats: Units 104, 124, 126, 128 (4 units) All units include a Living/Dining area, Kitchen, Household Shelter, Service Yard, Air-con Ledge, and at least one Bath/WC. - 3-Room flats feature one Main Bedroom and one additional Bedroom. - 4-Room flats feature one Main Bedroom and two additional Bedrooms. - 5-Room flats feature one Main Bedroom, two additional Bedrooms, and a 'Suggested Study' area. The central common area provides access to all units via a common corridor, a lobby with three lifts, a wash area, a centralized refuse chute, and a chute for recyclable refuse. Window types are indicated by W1 (three quarter height, approx. 550mm high parapet wall) and W2 (standard height with additional sliding panels).

29

Block 220B: 8th Storey Floor Plan with Unit Layouts

8th storey floor plan for Block 220B, featuring a total of 11 residential units. Unit types available: - 5-Room flats: Units 104, 124, 126, 128 (4 units). These include a suggested study area. - 4-Room flats: Units 106, 112, 114, 116, 118, 120, 122 (7 units). All units are equipped with a kitchen, living/dining area, bedrooms, main bedroom, household shelter, and bath/WC. 4-Room units also feature a service yard. The central core of the block houses a lobby with three lifts, a wash area, a centralised refuse chute, and a chute for recyclable refuse. An inaccessible green roof is located at the 8th storey. Window types are specified: W1 for three-quarter height windows (approx. 550mm high parapet wall) and W2 for standard height windows with additional sliding panels.

30

Block 220B: 9th Storey Floor Plan with 4-Room and 5-Room Units

9th storey floor plan for Block 220B. Unit types include 4-Room and 5-Room flats. The floor comprises 4 units of 5-Room flats (Units 104, 124, 126, 128) and 7 units of 4-Room flats (Units 106, 112, 114, 116, 118, 120, 122). Each unit features a living/dining area, kitchen, household shelter, and at least two bathrooms. 5-Room units and Unit 106 (4-Room) include a suggested study area. The central core provides access to three lifts, a lobby, and a centralised refuse chute. An inaccessible green roof is situated on the 8th storey below this level. Window types are detailed: W1 (three-quarter height with 550mm high parapet wall) and W2 (standard height with additional sliding panels).

31

Block 220B: 10th Storey Floor Plan

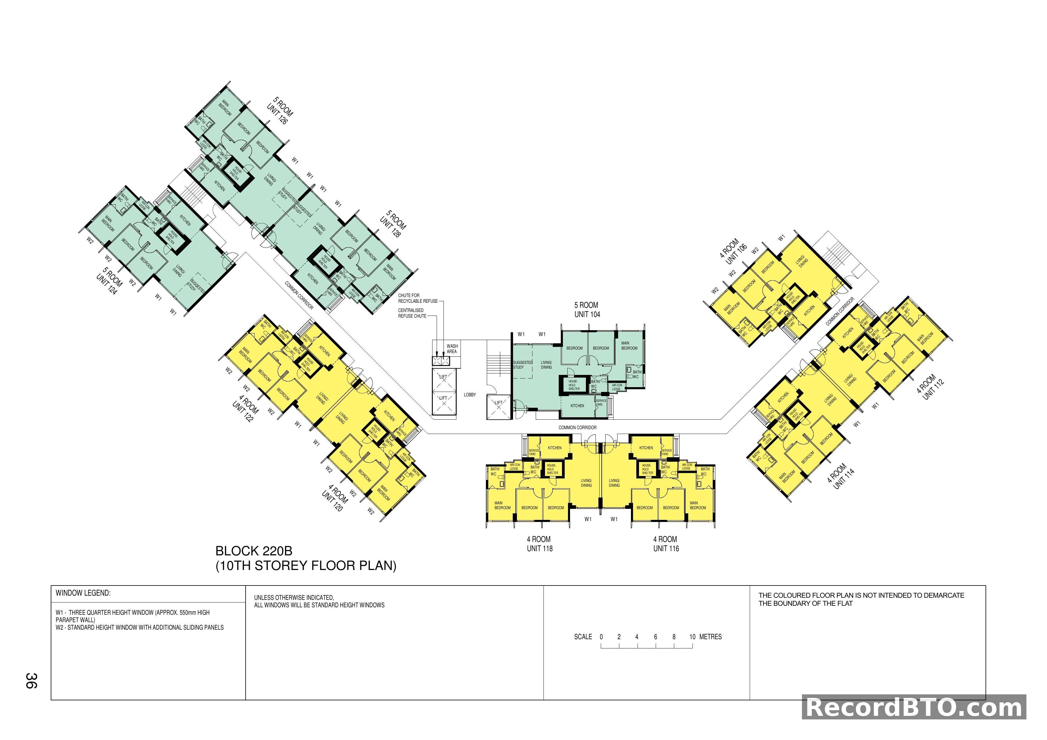
Floor plan for Block 220B, specifically for the 10th storey. The floor features 11 residential units: - 4-Room flats: Units 106, 112, 114, 116, 118, 120, 122 (7 units) - 5-Room flats: Units 104, 124, 126, 128 (4 units) All units include a Living/Dining area, Kitchen, Bedrooms, Main Bedroom, Bath/WC, Household Shelter, Service Yard, and Air-con Ledge. Units 104 (5-Room), 106 (4-Room), 124 (5-Room), 126 (5-Room), and 128 (5-Room) feature a 'Suggested Study' area. The central core provides access to lifts, a wash area, a centralized refuse chute, and a chute for recyclable refuse. Window types are specified: W1 indicates a three-quarter height window (approx. 550mm high parapet wall), and W2 indicates a standard height window with additional sliding panels. A scale bar indicates measurements up to 10 metres.

32

Block 220B: 11th Storey Floor Plan with Unit Layouts and Roof Gardens

Floor plan for Block 220B, 11th storey. Unit types shown include 5-Room and 4-Room flats. 5-Room units (104, 124, 126, 128) feature a living/dining area, kitchen, household shelter, service yard, three bedrooms (including a main bedroom), and two bath/WCs. Some 5-Room units also include a suggested study area. 4-Room units (120, 122) comprise a living/dining area, kitchen, household shelter, service yard, two bedrooms (including a main bedroom), and two bath/WCs. The floor includes a common corridor, lift lobby, wash area, and centralised refuse chute. Three distinct roof gardens are indicated on the 11th storey, accessible from the 12th storey. Window types are specified: W1 (three-quarter height, approx. 550mm high parapet wall) and W2 (standard height with additional sliding panels).

33

Block 220B: 12th Storey Floor Plan with Unit Layouts

Floor plan for Block 220B, specifically the 12th storey. Unit types and numbers include: - 5-Room flats: Units 124, 126, 128, and 104. These typically feature three bedrooms (including a main bedroom), two bathrooms, a living/dining area, kitchen, household shelter, service yard, and a suggested study area. - 4-Room flats: Units 120 and 122. These typically feature three bedrooms (including a main bedroom), two bathrooms, a living/dining area, kitchen, household shelter, and a service yard. Common facilities on this floor include a lobby with lifts, a wash area, and centralised refuse chutes (for both general and recyclable refuse). The floor plan also indicates roof gardens located on the 11th storey, which are accessible from the 12th storey. Window types are specified: W1 denotes a three-quarter height window (approx. 550mm high parapet wall), and W2 denotes a standard height window with additional sliding panels. All other windows are standard height unless indicated.

34

Block 220B: 13th Storey Floor Plan with 4-Room and 5-Room Units

Floor plan for Block 220B, specifically for the 13th storey. Unit types available on this floor include: - 4-Room flats: Units 120 and 122 (colored yellow). Each features a living/dining area, kitchen, household shelter, main bedroom, two additional bedrooms, two bathrooms, and a service yard. - 5-Room flats: Units 104, 124, 126, and 128 (colored light green). These units include a living/dining area, kitchen, household shelter, main bedroom, two additional bedrooms, two bathrooms, and a suggested study area. Unit 104 also has a service yard. The floor features a central lobby with two lifts, a common corridor, a wash area, and a centralised chute for recyclable refuse. A trellis is indicated at the 13th storey only, near Unit 104. Window types are specified: W1 (three-quarter height, approx. 550mm high parapet wall) and W2 (standard height with additional sliding panels).

35

Block 220B: 14th and 15th Storey Floor Plans

Floor plan for Block 220B, covering the 14th and 15th storeys. The floor features a total of six units: - Four 5-Room units (Units 104, 124, 126, 128), colored light green. Each 5-Room unit includes a main bedroom, two additional bedrooms, living/dining area (with a suggested study area in some layouts), kitchen, household shelter, two bathrooms (Bath/WC), and a service yard. - Two 4-Room units (Units 120, 122), colored yellow. Each 4-Room unit includes a main bedroom, two additional bedrooms, living/dining area, kitchen, household shelter, two bathrooms (Bath/WC), and a service yard. Common facilities include a lobby, lifts, common corridor, wash area, and a centralised chute for recyclable refuse. Window types are specified: W1 (approx. 550mm high parapet wall) and W2 (standard height with additional sliding panels). The colored floor plan is not intended to demarcate the exact boundary of the flat.

36

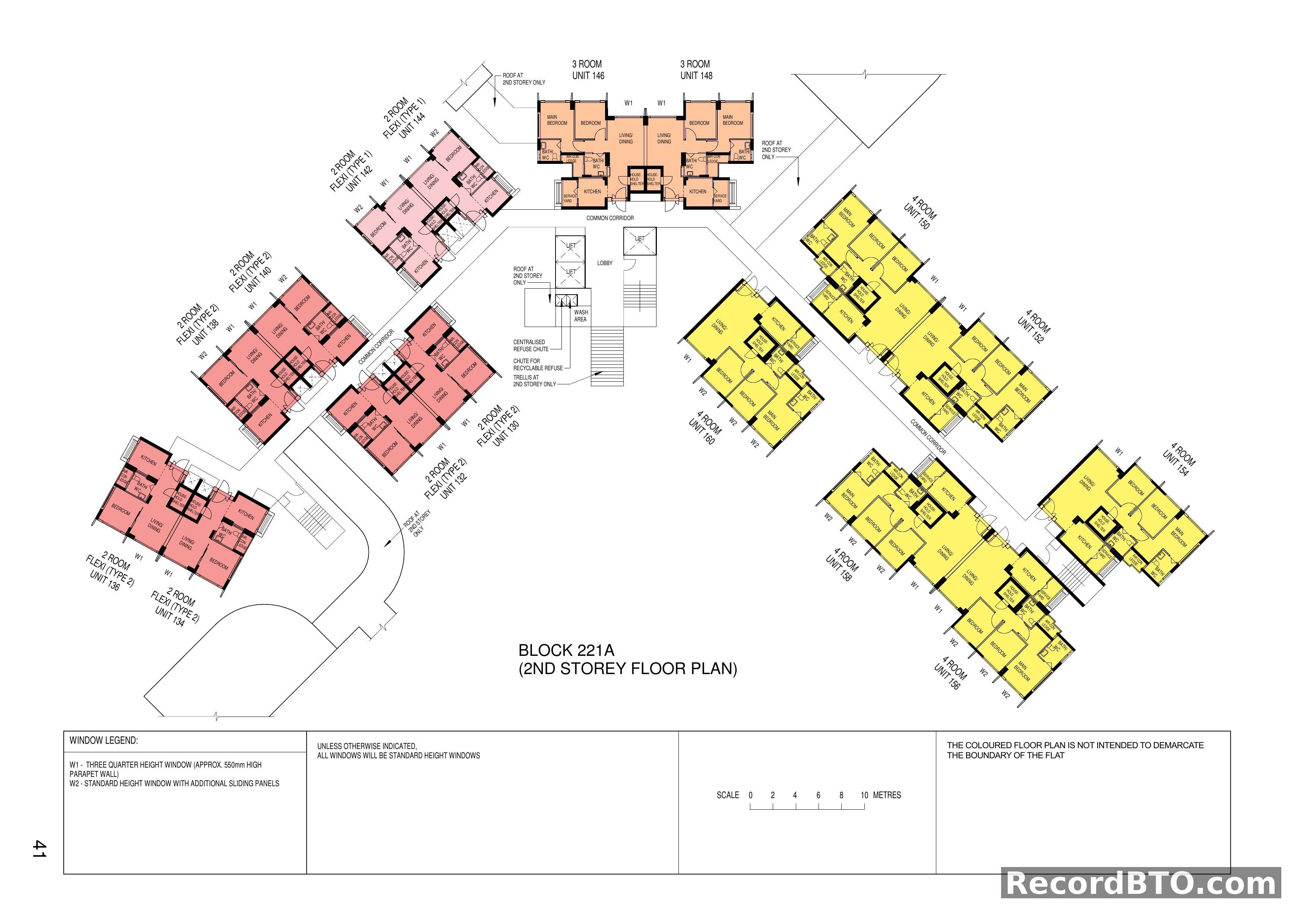
Block 221A: 2nd Storey Floor Plans

2nd storey floor plan for Block 221A. Unit types available: - 2-Room Flexi (Type 2): Units 130, 132, 134, 136, 138, 140 (1 bedroom, living/dining, kitchen, bath/WC, household shelter) - 2-Room Flexi (Type 1): Units 142, 144 (1 bedroom, living/dining, kitchen, bath/WC, household shelter) - 3-Room: Units 146, 148 (2 bedrooms, living/dining, kitchen, bath/WC, household shelter, service yard) - 4-Room: Units 150, 152, 154, 156, 158, 160 (3 bedrooms, living/dining, kitchen, bath/WC, household shelter, service yard) Common facilities include a lift lobby, stairs, wash area, centralised refuse chute, and chute for recyclable refuse. Some roof areas and a trellis are indicated as being at the 2nd storey only. Window legend specifies W1 as a three-quarter height window (approx. 550mm high parapet wall) and W2 as a standard height window with additional sliding panels.

37

Block 221A: 3rd to 9th Storey Floor Plans

Floor plan for Block 221A, covering levels 3 through 9. Unit types and numbers available on each floor: - 2-Room Flexi (Type 2): Units 130, 132, 134, 136, 138, 140 (6 units, colored red/pink) - 2-Room Flexi (Type 1): Units 142, 144 (2 units, colored red/pink) - 3-Room: Units 146, 148 (2 units, uncolored) - 4-Room: Units 150, 152, 154, 156, 158, 160 (6 units, colored yellow) Each unit includes a living/dining area, kitchen, household shelter, and at least one bathroom. 2-Room Flexi units feature one bedroom, 3-Room units have two bedrooms, and 4-Room units have three bedrooms. Common facilities include a central lift lobby with two lifts, a stairwell, a centralised refuse chute for recyclable refuse, and a wash area. Window specifications are detailed: W1 (three-quarter height with 550mm high parapet wall) and W2 (standard height with additional sliding panels).

38

Block 221A: 10th Storey Floor Plan

Floor plan for Block 221A, specifically for the 10th storey. Unit types and quantities on this floor: - 2-Room Flexi (Type 2): Units 130, 132, 134, 136, 138, 140 (6 units) - 2-Room Flexi (Type 1): Units 142, 144 (2 units) - 3-Room: Units 146, 148 (2 units) A total of 10 residential units are shown on this level. Common facilities include a central lift lobby with three lifts, a staircase, a wash area, and a centralized refuse chute for both general and recyclable refuse. Each residential unit features a bedroom, living/dining area, kitchen, bathroom/WC, and a household shelter. The 3-Room units additionally include a service yard. The floor plan also indicates inaccessible green roof areas located at the 10th storey level. Window types are defined: W1 is a three-quarter height window (approx. 550mm high parapet wall), and W2 is a standard height window with additional sliding panels. All other windows are standard height.

39

Block 221A: 11th Storey Floor Plan

Floor plan for Block 221A, specifically for the 11th storey. The floor features 10 residential units: - Two 3-Room units (Units 146, 148), each with a main bedroom, living/dining, kitchen, bath/WC, household shelter, and service yard. - Two 2-Room Flexi (Type 1) units (Units 142, 144), each with a bedroom, living/dining, kitchen, bath/WC, and household shelter. - Six 2-Room Flexi (Type 2) units (Units 130, 132, 134, 136, 138, 140), each with a bedroom, living/dining, kitchen, bath/WC, and household shelter. Common facilities include a central lift lobby with multiple lifts, stairs, a wash area, a centralised refuse chute, and a chute for recyclable refuse. Window types are specified: W1 is a three-quarter height window (approx. 550mm high parapet wall), and W2 is a standard height window with additional sliding panels. Inaccessible green roofs at the 10th storey are indicated around the building perimeter.

40

Block 221A: 12th to 15th Storey Floor Plan

Floor plan for Block 221A, covering the 12th to 15th storeys. Unit types available include: - 2-Room Flexi (Type 2): Units 130, 132, 134, 136, 138, 140 - 2-Room Flexi (Type 1): Units 142, 144 - 3-Room: Units 146, 148 Each unit features a living/dining area, kitchen, bedroom(s), bathroom(s), and a household shelter. Common facilities on this level include a central common corridor, a lift lobby with three lifts, a staircase, a wash area, a centralised refuse chute, and a chute for recyclable refuse. Window types are specified: W1 denotes a three-quarter height window (approx. 550mm high parapet wall), and W2 indicates a standard height window with additional sliding panels.

41

Block 221B: 2nd Storey Floor Plan

Floor plan for Block 221B, specifically for the 2nd storey. Unit types available on this floor: - 3-Room flats: Units 166, 168. Each includes 2 bedrooms (one main), 2 bathrooms, living/dining, kitchen, household shelter, service yard, and air-con ledge. Unit 166 has a roof at the 2nd storey only. - 4-Room flats: Units 164, 170, 172, 174, 176, 178, 180. Each features 3 bedrooms (one main), 2 bathrooms, living/dining, kitchen, household shelter, service yard, and air-con ledge. Unit 178 has a roof at the 2nd storey only. - 5-Room flats: Units 162, 182, 184, 186. Each contains 3 bedrooms (one main), 2 bathrooms, living/dining, kitchen, household shelter, service yard, air-con ledge, and a suggested study area. Units 162 and 186 feature a trellis at the 2nd storey only, while Unit 184 has a roof at the 2nd storey only. The common area includes a lobby with lifts, a wash area, and centralised refuse chutes (for recyclable and general waste). Window types are defined: W1 (three-quarter height, approx. 550mm high parapet wall) and W2 (standard height with additional sliding panels). All other windows are standard height. A scale bar indicates measurements from 0 to 10 metres. Note: The colored floor plan does not demarcate the actual boundary of the flat.

42

Block 221B: 3rd-7th Storey Floor Plans for 3, 4, and 5-Room Units

Floor plan for Block 221B, covering the 3rd to 7th storeys. The floor features 13 units per level, comprising: - Four 5-Room units (162, 182, 184, 186), each with 3 bedrooms, 2 baths, living/dining, kitchen, household shelter, service yard, and a suggested study area. - Seven 4-Room units (164, 170, 172, 174, 176, 178, 180), each with 3 bedrooms, 2 baths, living/dining, kitchen, household shelter, and service yard. - Two 3-Room units (166, 168), each with 2 bedrooms, 2 baths, living/dining, kitchen, household shelter, and service yard. Common facilities include a central lift lobby with three lifts, a common corridor, a centralized refuse chute, and a wash area. Window types are specified: W1 (three-quarter height, approx. 550mm high parapet wall) and W2 (standard height with sliding panels).

43

Block 221B: 8th Storey Floor Plan with 4-Room and 5-Room Units

Floor plan for Block 221B at the 8th storey, featuring a total of 11 units. Unit types include: - Four 5-Room units (Units 162, 182, 184, 186), each with three bedrooms (including a main bedroom), two bathrooms, a living/dining area with a suggested study, kitchen, household shelter, and service yard. - Seven 4-Room units (Units 164, 170, 172, 174, 176, 178, 180), each with three bedrooms (including a main bedroom), two bathrooms, living/dining area, kitchen, household shelter, and service yard. The floor features a central lift lobby with three lifts, a wash area, and common corridors connecting all units. Centralised and recyclable refuse chutes are available. An inaccessible green roof is present on this storey. Window types are specified: W1 for three-quarter height windows and W2 for standard height windows with sliding panels.

44

Block 221B: 9th Storey Floor Plan with Mixed Unit Types

9th storey floor plan for Block 221B, featuring a mix of 4-room and 5-room flat types. 5-Room units (162, 182, 184, 186) include a living/dining area, kitchen, household shelter, service yard, three bedrooms (one main), and two bathrooms. Units 162, 182, 184, 186 also show a 'suggested study' area. 4-Room units (164, 170, 172, 174, 176, 178, 180) comprise a living/dining area, kitchen, household shelter, service yard, three bedrooms (one main), and two bathrooms. The block features a central lift lobby with multiple lifts, a common corridor, and centralized refuse chutes (including one for recyclable refuse). An inaccessible green roof is located at the 8th storey. Window types are specified: W1 (three-quarter height, approx. 550mm high parapet wall) and W2 (standard height with additional sliding panels).

45

Block 221B: 10th Storey Floor Plan with 4- and 5-Room Units

Floor plan for Block 221B, 10th storey, featuring a total of 11 residential units. Unit types include: - Four 5-Room units (Unit 162, 182, 184, 186), highlighted in light green. These units typically include a main bedroom, two additional bedrooms, living/dining area, kitchen, household shelter, two bathrooms, and a service yard. Some 5-Room units also feature a 'suggested study' area. - Seven 4-Room units (Unit 164, 170, 172, 174, 176, 178, 180), highlighted in light yellow. These units typically include a main bedroom, two additional bedrooms, living/dining area, kitchen, household shelter, two bathrooms, and a service yard. The floor features a central lobby with three lifts, a wash area, and both centralized and recyclable refuse chutes. Window types are specified: W1 (three-quarter height, approx. 550mm high parapet wall) and W2 (standard height with additional sliding panels). A metric scale bar is provided for dimensions.

46

Block 221B: 11th Storey Floor Plans with 4-Room and 5-Room Units

Floor plan for Block 221B at the 11th storey. Unit types available: - 5-Room flats: Units 184, 186, 182, 162. Each unit includes a main bedroom, two additional bedrooms, living/dining area with a suggested study, kitchen, household shelter, service yard, two bathrooms, and an air-con ledge. - 4-Room flats: Units 180, 178. Each unit includes a main bedroom, two additional bedrooms, living/dining area, kitchen, household shelter, service yard, two bathrooms, and an air-con ledge. The floor features a common corridor, a lift lobby with two lifts, a wash area, and a centralised refuse chute for both general and recyclable refuse. Three distinct roof gardens are located on the 11th storey, with access points from the 12th storey. Window types are specified: W1 (three-quarter height, approx. 550mm high parapet wall) and W2 (standard height with additional sliding panels).

47

Block 221B: 12th Storey Floor Plan with 4-Room and 5-Room Units

12th storey floor plan for Block 221B, featuring both 4-Room and 5-Room flat types. Unit types and configurations: - 5-Room flats (Units 184, 186, 182, 162): Each includes a main bedroom, two additional bedrooms, a living/dining area, kitchen, household shelter, service yard, two bathrooms, and a suggested study area. - 4-Room flats (Units 180, 178): Each includes a main bedroom, two additional bedrooms, a living/dining area, kitchen, household shelter, service yard, and two bathrooms. Common facilities on this level include a lift lobby with two lifts, a wash area, a centralized refuse chute, and a chute for recyclable refuse. Multiple roof gardens located on the 11th storey are indicated as accessible from this 12th storey. Window types are specified: W1 denotes a three-quarter height window (approx. 550mm high parapet wall), and W2 denotes a standard height window with additional sliding panels.

48

Block 221B: 13th Storey Floor Plan

Floor plan for Block 221B, specifically the 13th storey. The floor features six residential units: - Two 4-Room units (Unit 178, Unit 180) - Four 5-Room units (Unit 162, Unit 182, Unit 184, Unit 186) All units include a kitchen, living/dining area, bedrooms (including a main bedroom), bath/WC, and a household shelter. The 5-Room units also feature a 'Suggested Study' area. Unit 162 additionally includes a service yard and has a trellis feature specific to the 13th storey. Common facilities accessible from the corridor include a central lobby with lifts, a wash area, and both centralised and recyclable refuse chutes. Window types are specified: W1 (three-quarter height, approx. 550mm high parapet wall) and W2 (standard height with additional sliding panels). All other windows are standard height.

49

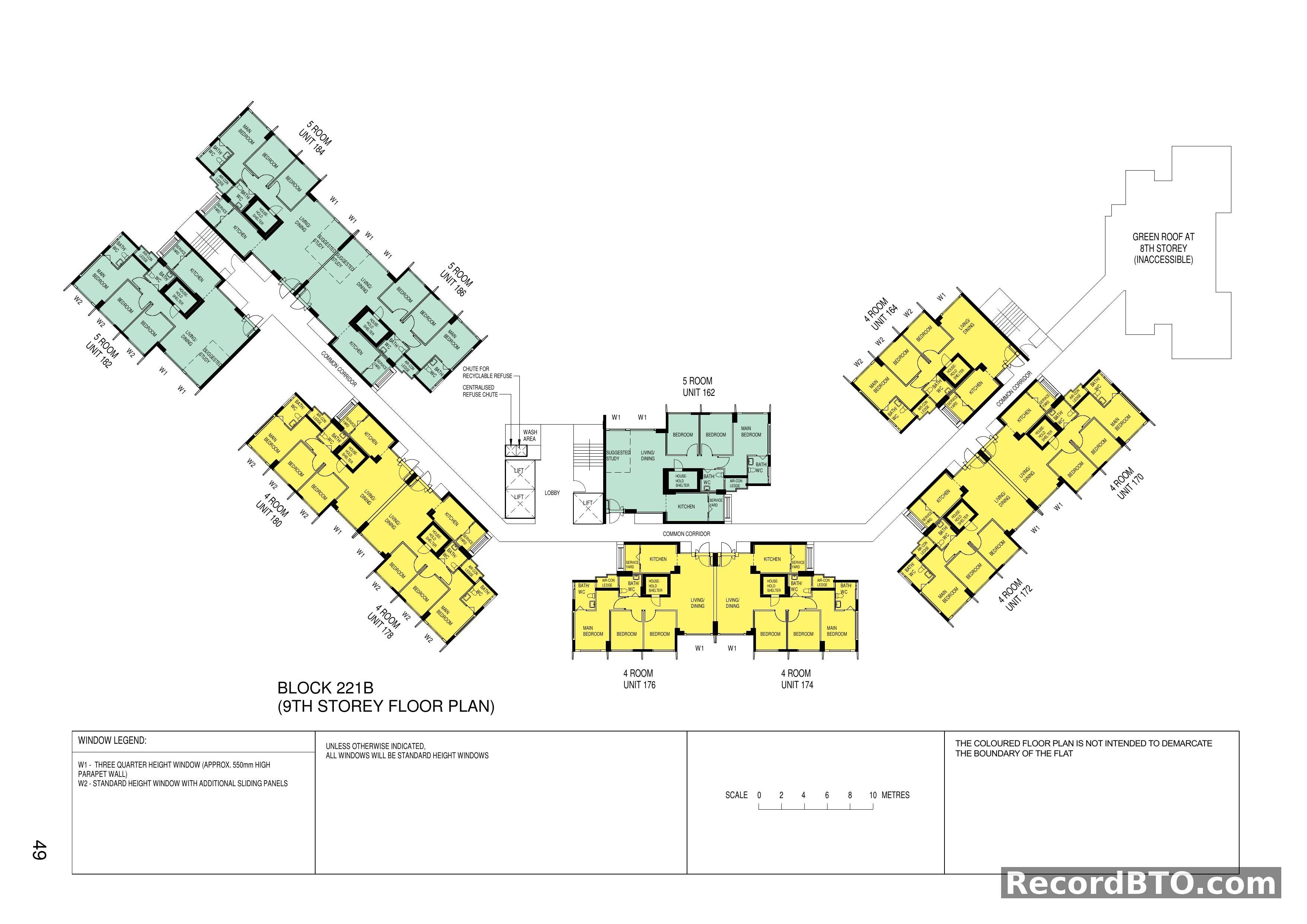
Block 221B: 14th and 15th Storey Floor Plans

Floor plans for Block 221B, covering the 14th and 15th storeys. The floor features six residential units: - Four 5-Room units (Units 162, 182, 184, 186), each with a main bedroom, two additional bedrooms, living/dining area, kitchen, two bathrooms, household shelter, and a suggested study area. Unit 162 also includes a service yard. - Two 4-Room units (Units 178, 180), each with a main bedroom, two additional bedrooms, living/dining area, kitchen, two bathrooms, and a household shelter. Common facilities include a central lobby with two lifts, a staircase, a wash area, and centralized refuse chutes (including one for recyclable refuse). Window types are specified: W1 (three quarter height, approx. 550mm high parapet wall) and W2 (standard height with additional sliding panels). All other windows are standard height. The plan includes a metric scale up to 10 metres.

50

General Specifications for 2-Room Flexi (Short Lease) Flats

General specifications for 2-room Flexi (short lease) flats at Garden Court @ Tengah. **Building Components:** Piled foundations; reinforced concrete structural framework and roof slab with precast secondary roofing. Walls are reinforced concrete/precast panels/drywall/lightweight concrete partitions. Windows are aluminium framed with tinted glass. **Doors:** Entrance features laminated timber door and metal gate. Bedroom doors are laminated UPVC sliding/folding (where applicable), Bathroom/WC doors are laminated UPVC folding, and Household Shelter has a metal door. **Finishes:** Living/Dining/Bedroom floors have vinyl strip flooring. Kitchen/Bathroom/WC/Household Shelter floors and Kitchen/Bathroom/WC walls are glazed porcelain tiles. Ceilings and other walls are skim coated or plastered and painted. **Fittings & Services:** Standard fittings include quality locksets, water closet suite, clothes drying rack, grab bars, wash basin with tap mixer, and bath/shower mixer. Optional fittings are built-in kitchen cabinets, wardrobe, window grilles, water heater, and lighting. Services include gas, concealed water supply, exposed sanitary stacks, concealed electrical wiring (lighting, power, water heater, air-con), television, and data points. **Important Notes:** The Household Shelter is for civil defence and cannot be altered. Laminated UPVC door frames are provided for Bedroom and Bathroom/WC openings. Adjacent unused open spaces are not for purchase/enclosure. Service details are not indicated on floor plans. Page 55.

51

General Specifications for 2- to 5-Room HDB Flats

General specifications for 2-room Flexi, 3-room, 4-room, and 5-room HDB flats are detailed. Foundation: Piled foundations. Structure: Reinforced concrete framework with reinforced concrete slabs. Roof: Reinforced concrete roof slab with precast concrete secondary roofing. Walls: Reinforced concrete, precast panels, drywall partition system, or precast lightweight concrete partitions. Windows: Aluminium framed with tinted glass. Doors: Laminated timber and metal gate for entrance; laminated UPVC for bedrooms (including sliding/folding for 2-room Flexi); metal for household shelter; aluminium framed with glass for service yard. Finishes: Flooring: Polished porcelain tiles with laminated UPVC skirting for living/dining; vinyl strip flooring with laminated UPVC skirting for bedrooms (and living/dining/bedroom for 2-room Flexi); glazed porcelain tiles for kitchen/bathroom/WC, household shelter, and service yard. Walls: Glazed porcelain tiles for kitchen/bathroom/WC walls; skim coated or plastered and painted for ceilings/other walls. Fittings: Quality locksets, water closet suite, clothes drying rack, wash basin with tap mixer, bath/shower mixer with shower set. Services: Gas, concealed water supply, exposed sanitary stacks, concealed electrical wiring (lighting, power, water heater, air-conditioning), television, and data points. Important Notes: Household Shelter is for civil defence and cannot be altered. Laminated UPVC door frames are provided for bedroom/bathroom/WC openings. Unused open spaces are not for purchase/enclosure. Specific service details are not shown on plans.

52

General Disclaimer and Terms of Use

This page outlines the general disclaimer and terms of use for the property brochure. Key points include: - HDB owns the copyright for all brochure content. - Information provided is for general knowledge only and does not constitute an offer or contract. - Visual representations are artistic impressions, not factual representations. - Project information, including dimensions, areas, plans, and specifications, is subject to change or review by HDB or relevant authorities. - HDB reserves the right to change project aspects, including amenities, facilities, color schemes, and design features. - No alterations to flat layout or specifications will be entertained for individual needs. - The accuracy of the information is not warranted, and HDB is not responsible for any loss due to reliance on it. - Floor areas are scaled strata areas and subject to final survey. - Surrounding land use and proposed facilities are indicative and subject to change, potentially including ancillary uses under URA guidelines. - HDB reserves the right to use void decks, car parks, common property (e.g., precinct pavilions), and standalone community buildings for future amenities (e.g., childcare, elderly facilities, education centers, RC centers, day activity centers), commercial facilities (e.g., shops, eating houses), mechanical/electrical rooms, and other deemed fit facilities. - The brochure does not provide complete information; readers are advised to contact relevant authorities for full details. The document is page 57 and was copyrighted by Housing & Development Board in November 2020.

53

Optional Component Scheme Details for 2-Room Flexi Flats

This page outlines the Optional Component Scheme (OCS) for 2-Room Flexi flats, available for both 99-year and short-lease options. The OCS is offered on an opt-in basis, with costs added to the flat's selling price. All 2-Room Flexi flats include: - Floor finishes in living/dining room, bedroom, kitchen, household shelter, and bathroom. - Wall tiles in kitchen and bathroom. - Sliding partition/door for the bedroom; folding bathroom door. - Sanitary fittings: wash basin with tap mixer, shower set with bath/shower mixer, and water closet suite. For short-lease 2-Room Flexi flats, grab bars will be installed to assist elderly buyers. The page includes images of typical sanitary fittings and grab bars.

54

Elderly-Friendly Fittings for 2-Room Flexi Flats

This page details the Optional Component Scheme (OCS) for short-lease 2-Room Flexi flats, available to elderly buyers at Garden Court @ Tengah and Garden Terrace @ Tengah. Elderly Friendly Fittings include: - Built-in kitchen cabinets with induction hob, cooker hood, sink, tap, and dish drying rack. - Induction hob features: no open flame, faster cooling, easier to clean, flat surface. - Mobile kitchen cabinets providing knee space for wheelchair users. - Built-in bedroom wardrobe with a lower clothes hanging rod. - Kitchen counter height options: Default (bottom 850mm, top 1500mm) and Lowered (bottom 800mm, top 1200mm) for wheelchair users. Other Fittings provided are: - Window grilles for safety and security. - Mirror. - Toilet roll holder. - Lighting. - Water heater. The cost of this OCS package is added to the selling price of the selected flat. All displays are for reference and subject to change. Dated November 2020.

Tip: Click on any page to jump directly to that brochure page

Photo Gallery

54 photos

HDB BTO Sales Launch Cover Page

HDB BTO Sales Launch Cover Page

HDB BTO Project Overview: Artist's Impression and Key Details

HDB BTO Project Overview: Artist's Impression and Key Details

Community & Green Features: Tengah Garden District

Community & Green Features: Tengah Garden District

Tengah Town: Environmental Features and Master Plan Overview

Tengah Town: Environmental Features and Master Plan Overview

Tengah Town Centre & Smart Town Features Overview

Tengah Town Centre & Smart Town Features Overview