Skip to main content
Parc Clover @ Tengah
Completed
Parc Clover @ Tengah HDB Sales Launch November 2021
Artist impression
Parc Clover @ Tengah Site Plan
Site plan
2-Room Flexi (Type 1) Floor Plan & Layout Ideas
Floor plan
Parc Clover @ Tengah Location Map
Location map
Parc Clover @ Tengah HDB Sales Launch November 2021
Artist impression

Parc Clover @ Tengah

Tengah

Project Details

No of Blocks
7
Highest Floor
14
Tenure
99-year
Developer
Launch Date
Nov 2021
Expected TOP
To be announced
Total Units
680
BTO Type
standard

About This Project

BTO project in Tengah as part of the new town development.

Site Plan

Detailed layout and block arrangement

Parc Clover @ Tengah Site Plan
Click to zoom

Floor Plans

Browse floor plans by unit type and block

2-Room Flexi (Type 1) Floor Plan & Layout Ideas

2-Room Flexi (Type 1) Floor Plan & Layout Ideas

2-room Flexi (type 1)
Layout Ideas for 2-Room Flexi (Type 2) Floor Plan

Layout Ideas for 2-Room Flexi (Type 2) Floor Plan

2-room Flexi (type 2)
3-ROOM FLOOR PLAN Layout Ideas

3-ROOM FLOOR PLAN Layout Ideas

3-room
4-Room Floor Plan with Layout Ideas for Bedrooms

4-Room Floor Plan with Layout Ideas for Bedrooms

4-room
5-Room Floor Plan & Layout Ideas for Parc Clover @ Tengah

5-Room Floor Plan & Layout Ideas for Parc Clover @ Tengah

5-room
Unit Distribution by Block and Type

Unit Distribution by Block and Type

2-room (rental) 2-room Flexi (type 1) 2-room Flexi (type 2) 3-room 4-room 5-room

Blocks: 306A, 306B, 306C, 307A

Unit Distribution Chart for Parc Clover @ Tengah

Unit Distribution Chart for Parc Clover @ Tengah

2-room (rental) 2-room Flexi (type 1) 2-room Flexi (type 2) 3-room 4-room 5-room

Blocks: 307B, 308A, 307C, 308B

Unit Distribution by Block and Stack

Unit Distribution by Block and Stack

2-room (rental) 2-room Flexi (type 1) 2-room Flexi (type 2) 3-room 4-room 5-room

Blocks: 308C, 309A, 309B, 309C

Parc Clover @ Tengah - Block 306A 2nd Storey Floor Plan

Parc Clover @ Tengah - Block 306A 2nd Storey Floor Plan

4-room 5-room

Blocks: 306A

Parc Clover @ Tengah Block 306A Floor Plan

Parc Clover @ Tengah Block 306A Floor Plan

3-room 4-room 5-room

Blocks: 306A

Block 306A Floor Plan - Parc Clover @ Tengah

Block 306A Floor Plan - Parc Clover @ Tengah

3-room 4-room 5-room

Blocks: 306A

Block 306B 2nd Storey Floor Plan

Block 306B 2nd Storey Floor Plan

3-room 4-room 5-room

Blocks: 306B

Block 306B Floor Plan - 3, 4, 5-Room Units (3rd, 5th, 6th Storey)

Block 306B Floor Plan - 3, 4, 5-Room Units (3rd, 5th, 6th Storey)

3-room 4-room 5-room

Blocks: 306B

Block 306B 4th, 7th & 8th Storey Floor Plan

Block 306B 4th, 7th & 8th Storey Floor Plan

3-room 4-room 5-room

Blocks: 306B

Block 306B 9th Storey Floor Plan - Parc Clover @ Tengah

Block 306B 9th Storey Floor Plan - Parc Clover @ Tengah

3-room 4-room 5-room

Blocks: 306B

Block 306B Floor Plan - 10th, 13th & 14th Storey

Block 306B Floor Plan - 10th, 13th & 14th Storey

3-room 4-room 5-room

Blocks: 306B

Block 306B (11th & 12th Storey) Floor Plan, Parc Clover

Block 306B (11th & 12th Storey) Floor Plan, Parc Clover

3-room 4-room 5-room

Blocks: 306B

Block 306C 2nd Storey Floor Plan

Block 306C 2nd Storey Floor Plan

2-room Flexi 3-room 4-room

Blocks: 306C

Block 306C 3rd to 8th Storey Floor Plan

Block 306C 3rd to 8th Storey Floor Plan

2-room Flexi (type 1) 2-room Flexi (type 2) 3-room 4-room

Blocks: 306C

Block 306C | 9th Storey Floor Plan

Block 306C | 9th Storey Floor Plan

2-room Flexi 3-room 4-room

Blocks: 306C

Parc Clover @ Tengah - Block 306C Floor Plan (10-14 Storey)

Parc Clover @ Tengah - Block 306C Floor Plan (10-14 Storey)

2-room Flexi 3-room 4-room

Blocks: 306C

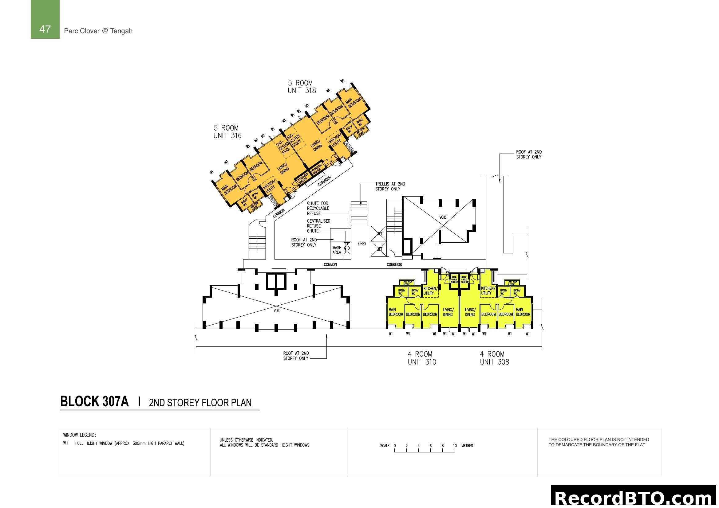
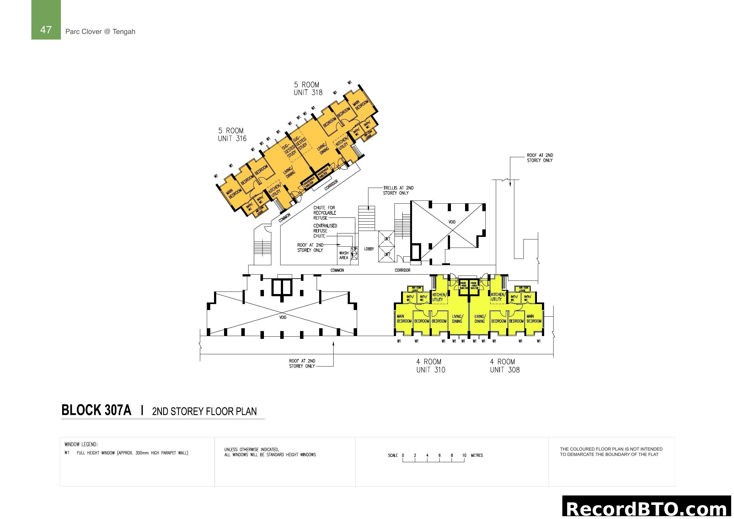
Block 307A 2nd Storey Floor Plan

Block 307A 2nd Storey Floor Plan

4-room 5-room

Blocks: 307A

Block 307A Floor Plan (3rd, 5th, 8th & 9th Storey)

Block 307A Floor Plan (3rd, 5th, 8th & 9th Storey)

4-room 5-room

Blocks: 307A

Block 307A Floor Plan (4th, 6th & 7th Storey)

Block 307A Floor Plan (4th, 6th & 7th Storey)

4-room 5-room

Blocks: 307A

Block 307A 10th Storey Floor Plan - Parc Clover @ Tengah

Block 307A 10th Storey Floor Plan - Parc Clover @ Tengah

4-room

Blocks: 307A

Block 307A 11th-14th Storey Floor Plan - 4-Room Units

Block 307A 11th-14th Storey Floor Plan - 4-Room Units

4-room

Blocks: 307A

Block 307B 2nd Storey Floor Plan

Block 307B 2nd Storey Floor Plan

5-room 4-room

Blocks: 307B

Parc Clover @ Tengah - Block 307B Floor Plan (Select Storeys)

Parc Clover @ Tengah - Block 307B Floor Plan (Select Storeys)

4-room 5-room

Blocks: 307B

Parc Clover @ Tengah - Block 307B Floor Plan

Parc Clover @ Tengah - Block 307B Floor Plan

4-room 5-room

Blocks: 307B

Block 307C 2nd Storey Floor Plan - Parc Clover @ Tengah

Block 307C 2nd Storey Floor Plan - Parc Clover @ Tengah

4-room 2-room Flexi 3-room

Blocks: 307C

Block 307C 3rd to 6th Storey Floor Plan

Block 307C 3rd to 6th Storey Floor Plan

2-room 2-room Flexi 3-room 4-room

Blocks: 307C

Block 307C, 7th & 8th Storey Floor Plan

Block 307C, 7th & 8th Storey Floor Plan

2-room Flexi (type 2) 3-room 4-room

Blocks: 307C

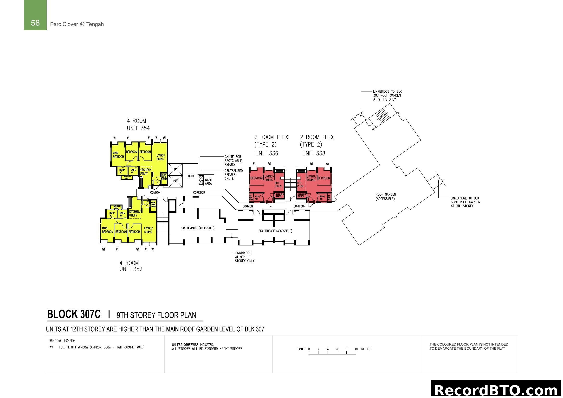
Blk 307C 9th Storey Floor Plan - Parc Clover @ Tengah

Blk 307C 9th Storey Floor Plan - Parc Clover @ Tengah

4-room 2-room (flexi)

Blocks: 307C

Block 307C 10th Storey Floor Plan

Block 307C 10th Storey Floor Plan

4-room 2-room Flexi (type 2)

Blocks: 307C

Block 307C 11th & 12th Storey Floor Plan

Block 307C 11th & 12th Storey Floor Plan

2-room Flexi 4-room

Blocks: 307C

Block 308A 2nd Storey Floor Plan - Parc Clover Tengah

Block 308A 2nd Storey Floor Plan - Parc Clover Tengah

4-room 5-room

Blocks: 308A

Block 308A, 3rd, 5th, 8th, 9th, 12th & 13th Storey Floor Plan

Block 308A, 3rd, 5th, 8th, 9th, 12th & 13th Storey Floor Plan

4-room 5-room

Blocks: 308A

Parc Clover @ Tengah Block 308A Floor Plan

Parc Clover @ Tengah Block 308A Floor Plan

4-room 5-room

Blocks: 308A

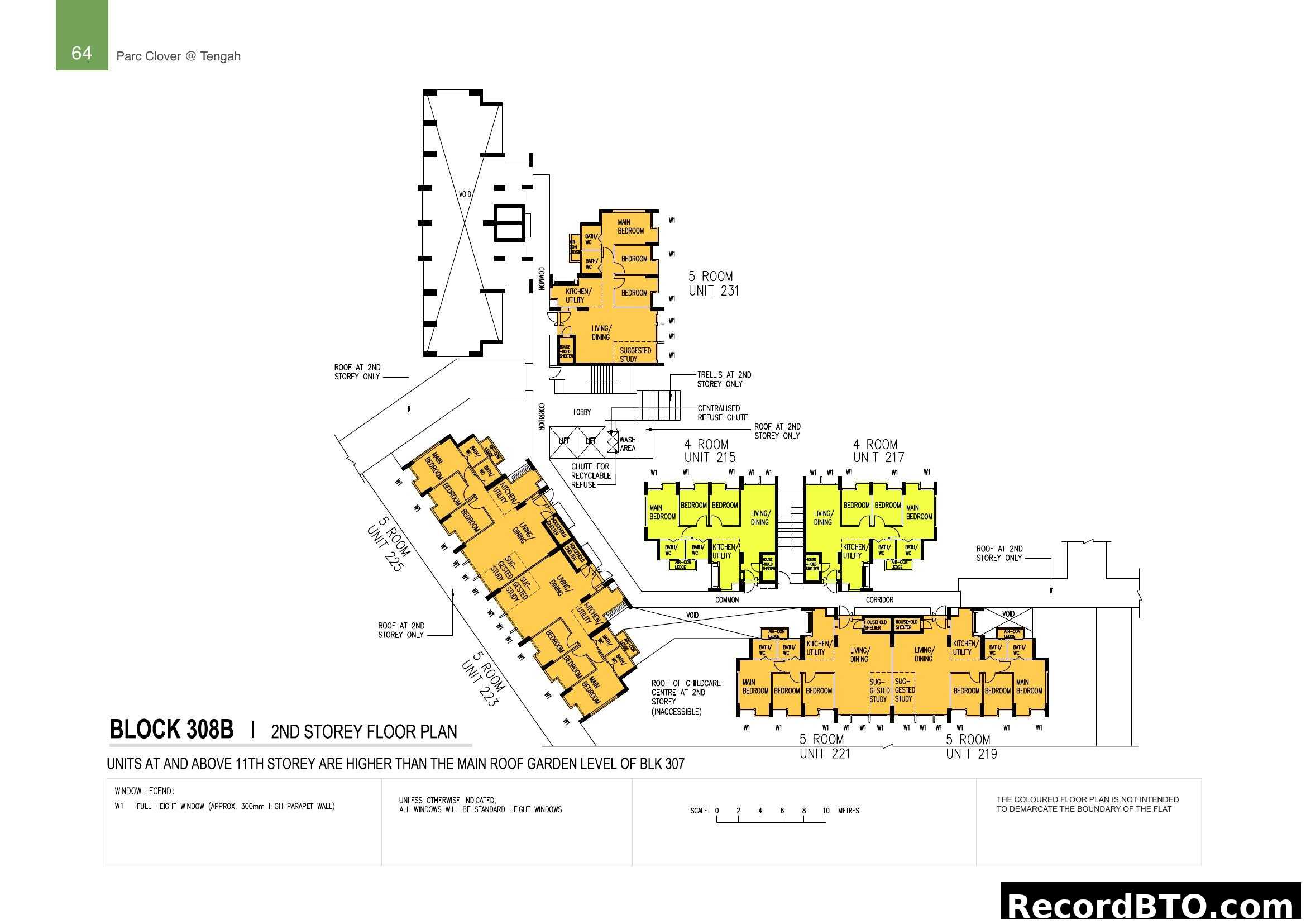
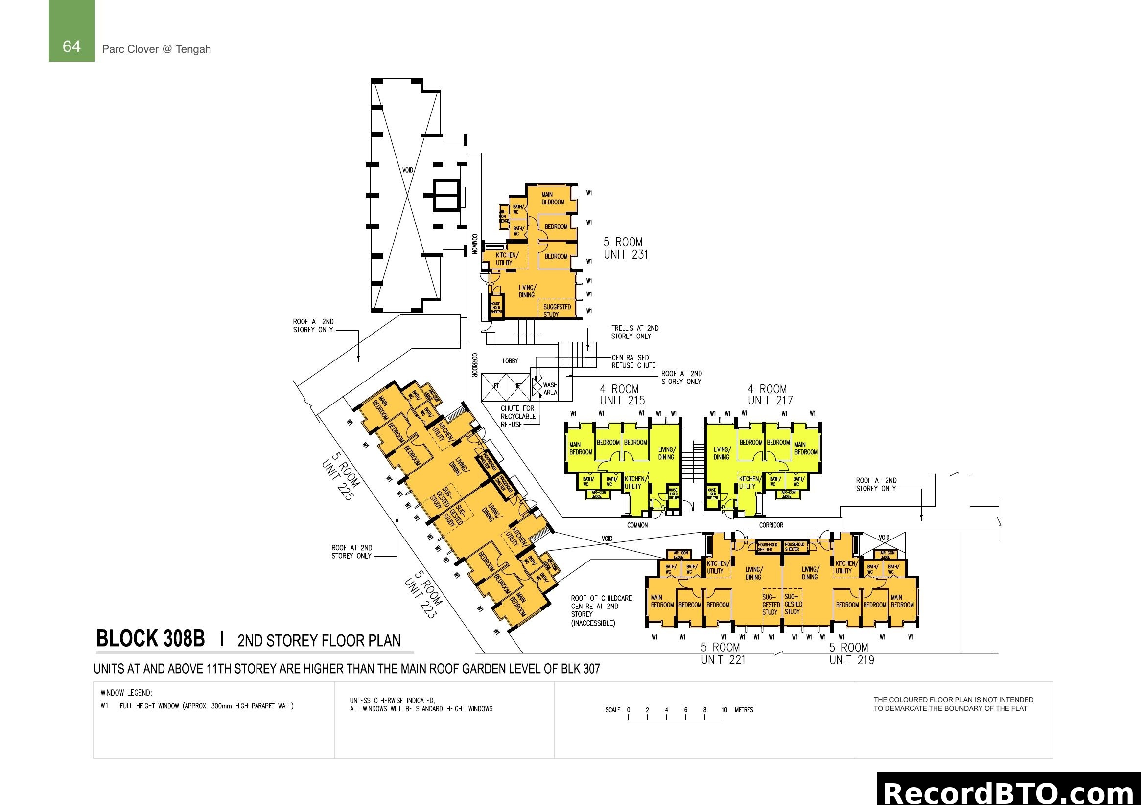
Block 308B 2nd Storey Floor Plan - Parc Clover @ Tengah

Block 308B 2nd Storey Floor Plan - Parc Clover @ Tengah

4-room 5-room

Blocks: 308B

Block 308B 3rd, 5th & 6th Storey Floor Plan, Parc Clover

Block 308B 3rd, 5th & 6th Storey Floor Plan, Parc Clover

4-room 5-room

Blocks: 308B

Block 308B Floor Plan (4th, 7th & 8th Storey)

Block 308B Floor Plan (4th, 7th & 8th Storey)

4-room 5-room

Blocks: 308B

Block 308B 9th Storey Floor Plan - Parc Clover @ Tengah

Block 308B 9th Storey Floor Plan - Parc Clover @ Tengah

4-room 5-room

Blocks: 308B

Parc Clover @ Tengah - Block 308B 10th Storey Floor Plan

Parc Clover @ Tengah - Block 308B 10th Storey Floor Plan

4-room 5-room

Blocks: 308B

Parc Clover @ Tengah - Block 308B, 11th Storey Floor Plan

Parc Clover @ Tengah - Block 308B, 11th Storey Floor Plan

4-room 5-room

Blocks: 308B

Parc Clover @ Tengah - Block 308B 12th Storey Floor Plan

Parc Clover @ Tengah - Block 308B 12th Storey Floor Plan

4-room 5-room

Blocks: 308B

Parc Clover @ Tengah Block 308C 2nd Storey Floor Plan

Parc Clover @ Tengah Block 308C 2nd Storey Floor Plan

2-room Flexi 3-room 4-room

Blocks: 308C

Block 308C Floor Plan (3rd to 6th Storey)

Block 308C Floor Plan (3rd to 6th Storey)

2-room Flexi 2-room 3-room 4-room

Blocks: 308C

Block 308C 7th & 8th Storey Floor Plan

Block 308C 7th & 8th Storey Floor Plan

2-room Flexi 3-room 4-room

Blocks: 308C

Parc Clover @ Tengah - Block 308C 9th Storey Floor Plan

Parc Clover @ Tengah - Block 308C 9th Storey Floor Plan

2-room Flexi 3-room 4-room

Blocks: 308C

Block 308C 10th-14th Storey Floor Plan

Block 308C 10th-14th Storey Floor Plan

2-room Flexi 3-room 4-room

Blocks: 308C

Parc Clover @ Tengah Block 309A, 2nd Storey Floor Plan

Parc Clover @ Tengah Block 309A, 2nd Storey Floor Plan

4-room

Blocks: 309A

Parc Clover @ Tengah Block 309A 3rd Storey Floor Plan

Parc Clover @ Tengah Block 309A 3rd Storey Floor Plan

4-room 5-room

Blocks: 309A

Parc Clover @ Tengah - Block 309A Floor Plan

Parc Clover @ Tengah - Block 309A Floor Plan

4-room 5-room

Blocks: 309A

Block 309A Floor Plan (5th, 8th, 9th, 12th & 13th Storey)

Block 309A Floor Plan (5th, 8th, 9th, 12th & 13th Storey)

4-room 5-room

Blocks: 309A

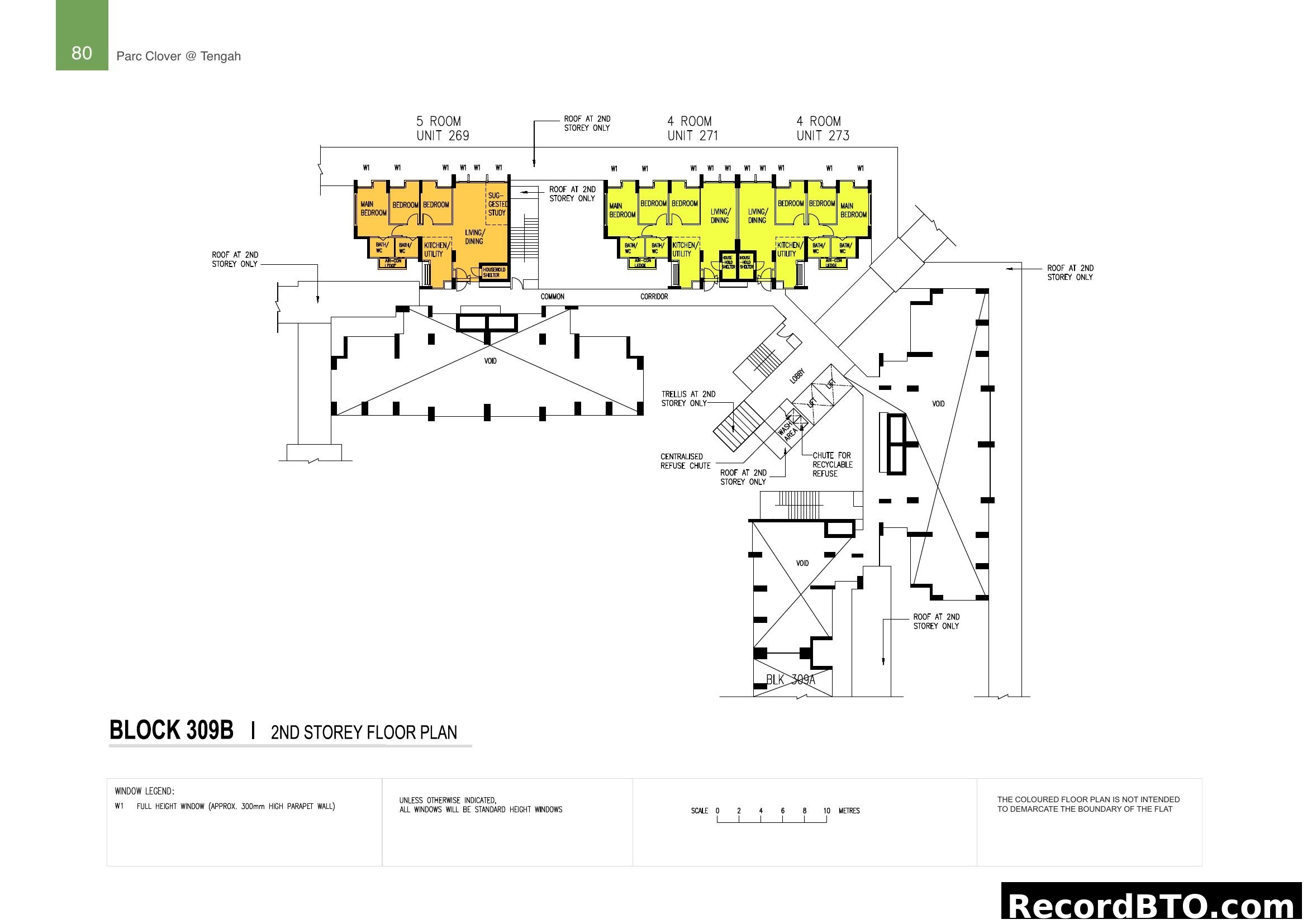
Block 309B, 2nd Storey Floor Plan - Parc Clover @ Tengah

Block 309B, 2nd Storey Floor Plan - Parc Clover @ Tengah

5-room 4-room

Blocks: 309B

Block 309B, 3rd Storey Floor Plan (Parc Clover)

Block 309B, 3rd Storey Floor Plan (Parc Clover)

4-room 5-room

Blocks: 309B

Block 309B (4th, 6th, 7th, 10th & 11th Storey) Floor Plan

Block 309B (4th, 6th, 7th, 10th & 11th Storey) Floor Plan

4-room 5-room

Blocks: 309B, 309A

Block 309B Floor Plan (5th, 8th, 9th, 12th & 13th Storey)

Block 309B Floor Plan (5th, 8th, 9th, 12th & 13th Storey)

4-room 5-room

Blocks: 309B

Block 309C 2nd Storey Floor Plan

Block 309C 2nd Storey Floor Plan

2-room Flexi 4-room

Blocks: 309C

Parc Clover @ Tengah Block 309C Floor Plan (3rd-6th Storey)

Parc Clover @ Tengah Block 309C Floor Plan (3rd-6th Storey)

2-room Flexi 3-room 4-room

Blocks: 309C

Block 309C 7th & 8th Storey Floor Plan

Block 309C 7th & 8th Storey Floor Plan

2-room Flexi 3-room 4-room

Blocks: 309C

Block 309C, 9th Storey Floor Plan with Unit Layouts

Block 309C, 9th Storey Floor Plan with Unit Layouts

2-room Flexi 3-room 4-room

Blocks: 309C

Block 309C Floor Plan - 10th to 14th Storey

Block 309C Floor Plan - 10th to 14th Storey

2-room Flexi 3-room 4-room

Blocks: 309C

Quick Info

Town
Tengah
Tenure
99-year

Project Brochure

78 pages

Page 1 / 78
Brochure Page 1

Table of Contents

1

Parc Clover @ Tengah HDB Sales Launch November 2021

This page serves as an introductory or cover page for the Parc Clover @ Tengah HDB sales launch in November 2021. It features the project logo, an artist's impression of modern residential buildings with green facades and a sky bridge, and a smiling couple. The image highlights a contemporary, green living environment for potential homeowners.

2

Parc Clover @ Tengah

This page introduces Parc Clover @ Tengah, a residential development bounded by Tengah Park Avenue, Tengah Boulevard, and Tengah Drive. Its name is inspired by the clover-like arrangement of its residential blocks, which are organized into four clusters with central courtyards. The development offers 1,124 units of 2-room Flexi, 3-, 4-, and 5-room flats across 12 blocks, ranging from 8 to 14 storeys, including some rental flats, with a promise of shorter waiting times. The images are artist's impressions of the development.

3

Parc Clover @ Tengah Green Spaces Artist Impression

This page features an artist's impression of Parc Clover @ Tengah, showcasing a vibrant green development with lush landscaping, walkways, and various recreational spaces. The accompanying text highlights the integration of green spaces like sky terraces and roof gardens, as well as facilities such as children's playgrounds, adult and elderly fitness stations, and a childcare centre, emphasizing public accessibility to these amenities.

4

Parc Clover @ Tengah - Tengah Town Centre & Overview

This page provides an overview of Tengah town, featuring two artist impressions of the Tengan Town Centre: one showing 'The Market Place' with an elevated train and green spaces, and another showing a 'Car-lite Town Centre' with multi-level commercial spaces and integrated transport. The accompanying text describes Tengah's nature-centric design, car-free town centre, smart technologies, and various green initiatives like the Forest Corridor and Forest Fringe, emphasizing sustainability and community well-being.

5

Parc Clover @ Tengah: Park District Vision

This page presents an artist's impression of the Park District in Tengah, highlighting a vibrant, green living environment. It showcases residential buildings nestled within a lush park featuring extensive green spaces, a tranquil water body, and various recreational amenities. The description emphasizes quality living amidst greenery, community connectivity, and a car-free HDB town centre designed for walking and cycling, promoting a greener and people-friendly lifestyle.

6

Important Notes on HDB Precincts and Amenities

This brochure page outlines important notes regarding HDB precincts. It details the inclusion of various amenities such as childcare, elder care, commercial facilities, and community spaces. It also informs residents about potential higher noise levels from nearby infrastructure and clarifies that all provided information is indicative and subject to change by the authorities.

7

Parc Clover @ Tengah Location Map

This map illustrates the proposed Parc Clover @ Tengah development and its surrounding amenities in the Tengah area. It highlights major roads, expressways, various proposed and existing community facilities such as parks, schools, places of worship, and healthcare. The map also shows the network of MRT and LRT lines, including those under construction, along with a legend for easy interpretation of icons and symbols used.

8

Parc Clover @ Tengah Eco-Friendly & Smart Features

This brochure page highlights the eco-friendly features and smart solutions available at Parc Clover @ Tengah. It details initiatives like separate chutes for recyclable waste, bicycle stands, and ABC Waters design. The page also introduces a first-of-its-kind centralised cooling system for public housing in Singapore and other smart solutions such as smart-enabled homes, smart lighting, and a Smart Pneumatic Waste Conveyance System, aiming to promote sustainable and energy-efficient living.

9

Parc Clover @ Tengah: Finishes and Fittings

This brochure page details the finishes and fittings for Parc Clover @ Tengah flats, built using the Prefabricated Prefinished Volumetric Construction (PPVC) method. It outlines the floor finishes, wall tiles, and sanitary fittings for 2-room Flexi and 3-, 4- and 5-room flats. Additionally, it introduces an Optional Component Scheme (OCS) for elderly buyers of short-lease 2-room Flexi flats, allowing them to opt for elderly-friendly fittings.

10

2-Room Flexi (Type 1) Floor Plan & Layout Ideas

This page displays the floor plan for a 2-Room Flexi (Type 1) unit, highlighting a total area of 40sqm. It showcases four different artist's impressions for the bedroom area, offering creative renovation ideas such as a full-height wardrobe, study desk, vanity desk, or a reading corner with storage, demonstrating the flexibility of the space.

11

Layout Ideas for 2-Room Flexi (Type 2) Floor Plan

This page showcases layout ideas for a 2-Room Flexi (Type 2) unit with an approximate floor area of 48sqm. It features a main floor plan diagram and four artist's impressions (Layout Options A-D) demonstrating flexible configurations for a space within the bedroom. These options include a full-height wardrobe, a study desk with shelves, a vanity desk with a wardrobe, and a reading corner with storage, illustrating how the flexible space can be customized.

12

3-ROOM FLOOR PLAN Layout Ideas

This page showcases layout ideas for a 3-room floor plan (71sqm) at Parc Clover @ Tengah. It includes a detailed unit layout with suggested furniture placement and highlights the flexibility of the combined kitchen/utility space. Four artist's impressions (Layout Option A, B, C, D) provide design inspiration for the bedrooms, showing configurations for wardrobes, study desks, vanity desks, and reading corners.

13

4-Room Floor Plan with Layout Ideas for Bedrooms

This page displays the 4-room floor plan for Parc Clover @ Tengah, featuring a suggested furniture layout and detailed floor area information. It highlights flexibility in the kitchen/utility space and provides four different layout options (A, B, C, D) for the bedroom area abutting the windows, including full-height wardrobe, study desk, vanity desk, and reading corner seat, accompanied by artist impressions for each option.

14

5-Room Floor Plan & Layout Ideas for Parc Clover @ Tengah

This page displays the 5-room floor plan for Parc Clover @ Tengah, featuring a suggested furniture layout and an approximate floor area of 113sqm. It highlights flexible design options for bedrooms, showcasing artist's impressions of configurations like full-height wardrobes, study desks, vanity desks, and reading corner seats with storage. Information on kitchen/utility space flexibility is also provided.

15

Parc Clover @ Tengah Site Plan

This image displays a detailed site plan for Parc Clover @ Tengah, showing the layout of residential blocks, surrounding roads, and various facilities. It includes a legend for flat types, play facilities, communal areas, social amenities, and other features. A table provides a breakdown of flat types and quantities per block, including rental and home ownership flats, along with the number of storeys for each block. General notes about the development and disclaimers are also present.

16

Unit Distribution by Block and Type

This page displays the unit distribution for Blocks 306A, 306B, 306C, and 307A at Parc Clover @ Tengah. It uses a color-coded legend to show the allocation of 2-room (rental), 2-room Flexi (Type 1 & 2), 3-room, 4-room, and 5-room units across various floor levels and stack numbers. Some floors indicate accessible roof gardens.

17

Unit Distribution Chart for Parc Clover @ Tengah

This page from the Parc Clover @ Tengah brochure illustrates the unit distribution across different residential blocks. It presents a stacking plan for blocks 307B, 308A, 307C, and 308B, detailing the types of units available on each floor level for various stack numbers. The unit types include 2-room (Rental), 2-room Flexi (Type 1), 2-room Flexi (Type 2), 3-room, 4-room, and 5-room. The charts also indicate the location of accessible roof gardens, sky terraces, and a childcare centre.

18

Unit Distribution by Block and Stack

This chart illustrates the distribution of different unit types across various blocks and their respective stacks and floors. It features a legend defining 2-room (rental), 2-room flexi (types 1 and 2), 3-room, 4-room, and 5-room units by color. The chart details specific blocks like 308C, 309A, 309B, and 309C, including locations for accessible roof gardens.

19

Parc Clover @ Tengah - Block 306A 2nd Storey Floor Plan

This image displays the 2nd storey floor plan for Block 306A at Parc Clover @ Tengah. It outlines the layout of several 4-room and 5-room residential units, along with common facilities such as corridors, a lobby, wash area, and refuse chutes. The plan details the arrangement of rooms within each unit, including bedrooms, living/dining areas, kitchens, and bathrooms. It also includes a window legend, indicating 'W1' as full height windows, and general notes about window types.

20

Parc Clover @ Tengah Block 306A Floor Plan

This image displays a detailed floor plan for Block 306A of Parc Clover @ Tengah, specifically for the 3rd, 5th, 6th, 9th, 10th, 13th, and 14th storeys. It illustrates the layout of various unit types, including 3-room, 4-room, and 5-room flats, along with common corridors, lobby, lifts, and refuse disposal areas. Each unit highlights rooms such as living/dining, bedrooms, kitchen/utility, and bathrooms.

21

Block 306A Floor Plan - Parc Clover @ Tengah

This image displays the storey floor plan for Block 306A at Parc Clover @ Tengah, specifically for the 4th, 7th, 8th, 11th & 12th floors. It features various unit types including 3-room, 4-room, and 5-room flats, arranged around common corridors, a lobby, and central refuse facilities.

22

Block 306B 2nd Storey Floor Plan

This floor plan details the layout of various 3-room, 4-room, and 5-room units on the 2nd storey of Block 306B in Parc Clover @ Tengah. It illustrates the arrangement of units 270, 274, 276, 278, 280, 282, 284, and 286, along with common corridors, lobby, and refuse chutes.

23

Block 306B Floor Plan - 3, 4, 5-Room Units (3rd, 5th, 6th Storey)

This detailed floor plan illustrates the layout of Block 306B for the 3rd, 5th, and 6th storeys. It showcases various unit types including 3-room (Units 274, 276), 4-room (Units 270, 272), and 5-room (Units 278, 280, 282, 284, 286) configurations. The plan also highlights common areas such as corridors, lift lobby, centralized refuse chutes, and provides a window legend and scale bar for reference.

24

Block 306B 4th, 7th & 8th Storey Floor Plan

This floor plan illustrates the layout of Block 306B at Parc Clover @ Tengah for the 4th, 7th, and 8th storeys. It details the arrangement of 3-room, 4-room, and 5-room units, including common areas such as the lobby, lift, wash area, and corridor. Window legends and a scale are also provided for reference.

25

Block 306B 9th Storey Floor Plan - Parc Clover @ Tengah

This image displays the 9th storey floor plan for Block 306B at Parc Clover @ Tengah. It illustrates the layout of 3-room, 4-room, and 5-room units, along with common corridors, lobby, lift access, and refuse chutes. The plan also highlights an accessible roof garden and a linkbridge connecting to Block 309C.

26

Block 306B Floor Plan - 10th, 13th & 14th Storey

This image displays a floor plan for Block 306B of Parc Clover @ Tengah, specifically for the 10th, 13th, and 14th storeys. It illustrates the layout of various unit types, including 3-room, 4-room, and 5-room flats, detailing rooms like bedrooms, living/dining areas, kitchens, and bathrooms. The plan also shows common areas, lobbies, refuse chutes, and provides a window legend.

27

Block 306B (11th & 12th Storey) Floor Plan, Parc Clover

This image displays the floor plan for Block 306B at Parc Clover @ Tengah, specifically for the 11th and 12th storeys. It illustrates the layout of multiple 3-room, 4-room, and 5-room units, showing their internal configuration of bedrooms, living/dining areas, kitchens, and bathrooms. The plan also details common corridors, a central lobby with lifts, and refuse chutes, along with a window legend and a scale.

28

Block 306C 2nd Storey Floor Plan

This image displays the 2nd storey floor plan for Block 306C, illustrating the layout of various residential units including 2-room Flexi, 3-room, and 4-room apartments. It details common areas such as corridors, lobby, and refuse chutes, and indicates specific roof levels at the 2nd storey for certain sections. Window legends and a scale bar are also provided.

29

Block 306C 3rd to 8th Storey Floor Plan

This page displays the floor plan for Block 306C at Parc Clover @ Tengah, specifically for the 3rd to 8th storeys. It illustrates the layout of various unit types, including 2-room Flexi (Type 1 and Type 2), 3-room, and 4-room units, along with common corridors, lobby, and wash areas. A window legend is also provided.

30

Block 306C | 9th Storey Floor Plan

This image displays the 9th storey floor plan for Block 306C of Parc Clover @ Tengah. It features various unit types including 2-room Flexi (Type 1 and Type 2), 3-room, and 4-room units (Units 292, 294, 296, 298, 300, 302, 304). The plan also shows common corridors, a lobby, refuse chutes, a wash area, and an accessible roof garden with a linkbridge to Block 307. A legend for windows is included.

31

Parc Clover @ Tengah - Block 306C Floor Plan (10-14 Storey)

This image displays the 10th to 14th storey floor plan for Block 306C at Parc Clover @ Tengah. It shows the layout of several units, including 2-room Flexi (Type 1 & 2), 3-room, and 4-room units, along with common corridors, lifts, and refuse chutes. A legend for windows and a scale are also provided.

32

Block 307A 2nd Storey Floor Plan

This image displays the second storey floor plan for Block 307A of Parc Clover @ Tengah. It illustrates the layout of multiple residential units, specifically 5-room units (316, 318) and 4-room units (308, 310), along with common corridors, lifts, a lobby, refuse chutes, and a wash area. The plan includes a legend for full height windows (W1).

33

Block 307A Floor Plan (3rd, 5th, 8th & 9th Storey)

This image displays the floor plan for Block 307A at Parc Clover @ Tengah, specifically for the 3rd, 5th, 8th, and 9th storeys. It details the layout of 4-room and 5-room units, including common areas like corridors, lift lobbies, and refuse chutes. A scale bar and window legend are also provided.

34

Block 307A Floor Plan (4th, 6th & 7th Storey)

This floor plan illustrates the layout of Block 307A on the 4th, 6th, and 7th storeys for Parc Clover @ Tengah. It features various 4-room and 5-room units, including units 306, 308, 310, 312, 314, 316, and 318, along with common areas such as corridors, lift lobbies, and refuse chutes. The plan details the arrangement of living spaces, bedrooms, kitchens, and utilities within each unit.

35

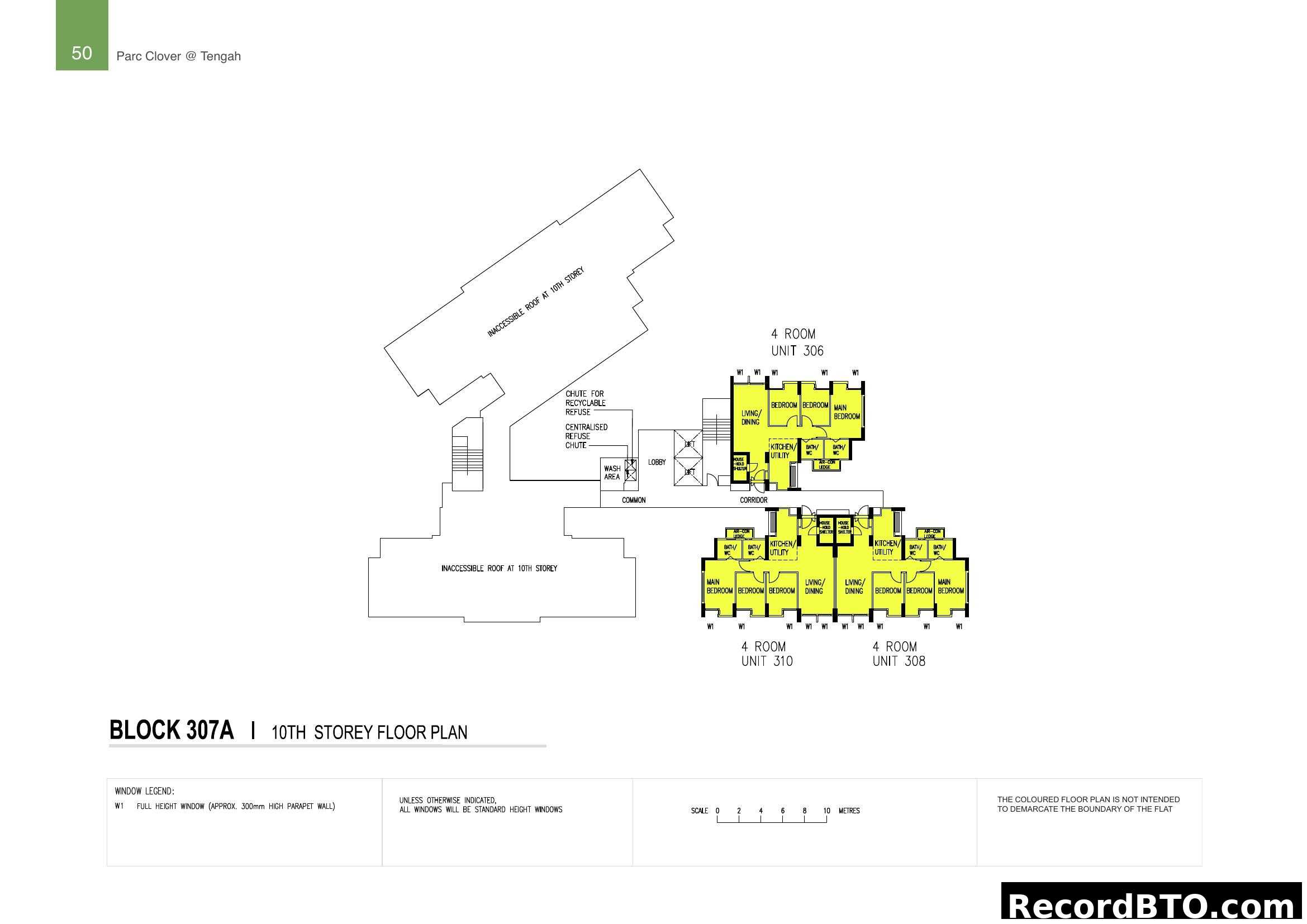
Block 307A 10th Storey Floor Plan - Parc Clover @ Tengah

This image displays the 10th storey floor plan for Block 307A at Parc Clover @ Tengah. It features the layout of three 4-room units (Unit 306, 308, 310) along with common areas such as the lobby, corridor, wash area, and refuse chutes. The plan also indicates inaccessible roof areas and includes a window legend and scale bar.

36

Block 307A 11th-14th Storey Floor Plan - 4-Room Units

This image displays the floor plan for Block 307A, specifically for the 11th to 14th storeys. It details the layout of three 4-room residential units (306, 308, 310) and shared amenities including the common corridor, lobby, wash area, and refuse chutes. The plan also includes a window legend and scale.

37

Block 307B 2nd Storey Floor Plan

This image displays the 2nd storey floor plan for Block 307B at Parc Clover @ Tengah. It features layouts for 5-Room units (330, 332, 324) and 4-Room units (326, 328), along with common areas such as corridors, refuse chutes, stairs, and a void.

38

Parc Clover @ Tengah - Block 307B Floor Plan (Select Storeys)

This image displays the floor plan for Block 307B at Parc Clover @ Tengah, specifically for the 3rd, 5th, 6th, 9th, 10th, 13th & 14th storeys. It illustrates the layout of multiple 4-room and 5-room units, including common corridors, central refuse chutes, and a lobby area. Each unit details its internal room arrangements like bedrooms, living/dining areas, kitchens, and bathrooms.

39

Parc Clover @ Tengah - Block 307B Floor Plan

This image displays the floor plan for Block 307B at Parc Clover @ Tengah, specifically for the 4th, 7th, 8th, 11th & 12th storeys. It illustrates the layout of multiple 4-room and 5-room units (Units 320, 322, 324, 326, 328, 330, 332, 334) on these levels, including common corridors, centralised refuse chutes, and a lobby area. A window legend and scale bar are also provided.

40

Block 307C 2nd Storey Floor Plan - Parc Clover @ Tengah

This image displays the 2nd storey floor plan for Block 307C of Parc Clover @ Tengah. It illustrates the layout of various unit types, including 4-room, 2-room Flexi (Type 2), and 3-room apartments, along with common corridors, lifts, and centralised refuse chutes. Details regarding window types and the elevation of 12th-storey units are also provided.

41

Block 307C 3rd to 6th Storey Floor Plan

This image presents the floor plan for Block 307C, specifically for the 3rd to 6th storeys. It details the layout of various apartment units, including 2-room rental flats, 2-room flexi (type 2), 3-room, and 4-room units. The plan shows their arrangement along common corridors, lift lobbies, and shared facilities like refuse chutes.

42

Block 307C, 7th & 8th Storey Floor Plan

This image displays the floor plan for Block 307C, specifically for the 7th and 8th storeys. It illustrates the layout of multiple residential units along a common corridor, including 2-room Flexi (Type 2), 3-room, and 4-room flats. Key areas like living/dining, bedrooms, kitchens, and bathrooms are indicated for each unit, alongside communal spaces such as the lobby, lift, and refuse chutes.

43

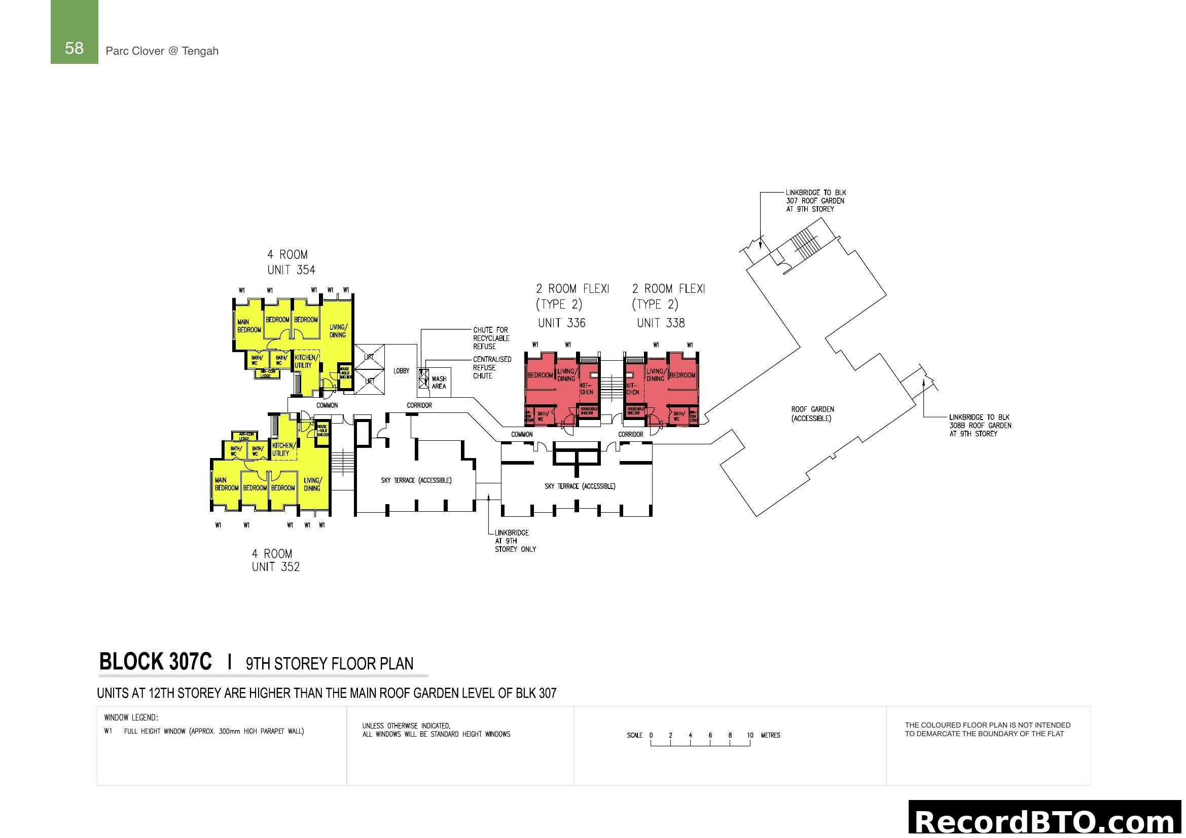
Blk 307C 9th Storey Floor Plan - Parc Clover @ Tengah

This floor plan for Block 307C at Parc Clover @ Tengah illustrates the layout of the 9th storey. It features two 4-room units (352, 354) and two 2-room flexible units (336, 338), along with common corridors, accessible sky terraces, and linkbridges to roof gardens of adjacent blocks. A scale bar is provided.

44

Block 307C 10th Storey Floor Plan

This image displays the 10th storey floor plan for Block 307C of Parc Clover @ Tengah. It shows the layout for two 4-room units (352 and 354) and two 2-room Flexi (Type 2) units (336 and 338). The plan also details common areas, lobby, corridors, and refuse chutes, indicating the placement of different apartment types on this specific floor level.

45

Block 307C 11th & 12th Storey Floor Plan

This image displays the floor plans for Block 307C at Parc Clover @ Tengah, specifically for the 11th and 12th storeys. It illustrates the layout of multiple unit types, including 4-room and 2-room Flexi (Type 2) units, along with common areas like the corridor, lobby, and refuse chutes. A window legend and scale are also provided.

46

Block 308A 2nd Storey Floor Plan - Parc Clover Tengah

This floor plan displays the layout of the 2nd storey of Block 308A at Parc Clover @ Tengah. It illustrates the arrangement of 4-room and 5-room units (201, 203, 205, 207, 209), including common corridors, lift lobbies, and waste disposal chutes. Individual unit layouts show living, dining, kitchen, bedrooms, and bathrooms, along with a window legend and scale.

47

Block 308A, 3rd, 5th, 8th, 9th, 12th & 13th Storey Floor Plan

This HDB BTO floor plan displays the layout for Block 308A on specific storey levels. It illustrates the arrangement of 4-room and 5-room units around a central common corridor, lift lobby, and refuse disposal area. Individual unit layouts include bedrooms, living/dining spaces, kitchens, bathrooms, and household shelters, highlighting the overall block structure and various apartment configurations available on these floors.

48

Parc Clover @ Tengah Block 308A Floor Plan

This image displays a detailed floor plan for Block 308A at Parc Clover @ Tengah, specifically for the 4th, 6th, 7th, 10th & 11th storeys. It showcases various 4-room and 5-room unit layouts (Units 211, 213, 209, 207, 205, 201, 203) arranged around central common areas, lifts, and a corridor. The plan also includes legends for windows and a scale in meters, indicating the overall layout of the floor within the block.

49

Block 308B 2nd Storey Floor Plan - Parc Clover @ Tengah

This floor plan displays the layout for the 2nd storey of Block 308B at Parc Clover @ Tengah. It details the arrangement of multiple 4-room and 5-room residential units, including their bedrooms, living/dining areas, kitchens, and bathrooms. The plan also shows common areas such as corridors, lobby, centralised refuse chute, and indicates roof areas at the 2nd storey.

50

Block 308B 3rd, 5th & 6th Storey Floor Plan, Parc Clover

This image presents the floor plan for Block 308B of Parc Clover @ Tengah, specifically detailing the layouts for the 3rd, 5th, and 6th storeys. It showcases various 4-room and 5-room unit types, including unit numbers 229, 227, 231, 225, 223, 215, 217, 221, and 219. The plan illustrates the arrangement of bedrooms, living/dining areas, kitchens, bathrooms, household shelters, and common areas like lobbies and corridors. It also includes a legend for window types.

51

Block 308B Floor Plan (4th, 7th & 8th Storey)

This image displays the floor plan for Block 308B, specifically for the 4th, 7th, and 8th storeys, as part of Parc Clover @ Tengah. It illustrates the layout of multiple residential units around common corridors, a lobby, and a refuse chute area. The plan features both 4-room and 5-room units, showcasing their internal arrangements including bedrooms, living/dining areas, kitchens, bathrooms, and household shelters, along with window types. A scale bar indicates dimensions in meters.

52

Block 308B 9th Storey Floor Plan - Parc Clover @ Tengah

This is a detailed floor plan for the 9th storey of Block 308B at Parc Clover @ Tengah. It illustrates the layout of multiple 4-room and 5-room units, including common areas like corridors, lobby, and an accessible roof garden. The plan highlights the arrangement of bedrooms, living/dining areas, kitchens, bathrooms, and household shelters within each unit. It also notes that units at and above the 11th storey are higher than the main roof garden level of Block 307.

53

Parc Clover @ Tengah - Block 308B 10th Storey Floor Plan

This image displays the 10th storey floor plan for Block 308B at Parc Clover @ Tengah. It shows the layout of various residential units, including 4-room and 5-room flats, along with common areas such as corridors, lobby, lifts, and refuse chutes. The plan also indicates specific features like trellises and window types.

54

Parc Clover @ Tengah - Block 308B, 11th Storey Floor Plan

This image displays the 11th-storey floor plan for Block 308B at Parc Clover @ Tengah. It illustrates the layouts of various 4-room and 5-room units (229, 227, 231, 215, 217), common corridors, a lobby, lift area, and refuse chutes. The legend indicates full height and standard height windows.

55

Parc Clover @ Tengah - Block 308B 12th Storey Floor Plan

This floor plan displays the layout for the 12th storey of Block 308B at Parc Clover @ Tengah. It features five residential units: two 4-room units (229, 227) on the left, one 5-room unit (231) in the middle, and two 4-room units (215, 217) on the right, accessible via common corridors and a central lobby with lifts.

56

Parc Clover @ Tengah Block 308C 2nd Storey Floor Plan

This image displays the 2nd storey floor plan for Block 308C at Parc Clover @ Tengah. It illustrates the layout of various residential units, including 2-room flexi, 3-room, and 4-room units, along with common areas such as the lobby, corridors, and refuse chutes. The plan also indicates specific features like full height windows and roof sections accessible only on the 2nd storey, and notes regarding units above the 9th storey being higher than the main roof garden.

57

Block 308C Floor Plan (3rd to 6th Storey)

This image presents the floor plan for Block 308C, specifically for the 3rd to 6th storeys. It details the layout of various unit types, including 2-room Flexi, 2-room, 3-room, and 4-room units. Common areas such as corridors, lobby, and a wash area are also shown, along with a window legend and a scale in metres.

58

Block 308C 7th & 8th Storey Floor Plan

This is a detailed floor plan for Block 308C, illustrating the layout for the 7th and 8th storeys. It shows a mix of 2-room Flexi (Type 1 and 2), 3-room, and 4-room units, along with common areas, corridors, and refuse chutes.

59

Parc Clover @ Tengah - Block 308C 9th Storey Floor Plan

This image displays the 9th storey floor plan for Block 308C at Parc Clover @ Tengah. It illustrates the layout of various unit types, including 2-room Flexi (Type 1 and 2), 3-room, and 4-room flats, along with common corridors, lift lobby, and access to an accessible roof garden and a link bridge to Block 307. The plan also includes a window legend and a scale.

60

Block 308C 10th-14th Storey Floor Plan

This floor plan displays the layouts for various unit types on the 10th to 14th storeys of Block 308C at Parc Clover @ Tengah. It illustrates the arrangement of 2-Room Flexi (Type 1 and Type 2), 3-Room, and 4-Room units, alongside common corridors, lift lobby, and household shelters, providing a detailed overview of the block's level layout.

61

Parc Clover @ Tengah Block 309A, 2nd Storey Floor Plan

This image displays the 2nd storey floor plan for Block 309A at Parc Clover @ Tengah. It details the common areas, lifts, refuse chutes, and the layout of three 4-room units: Unit 253, Unit 255, and Unit 257. Each unit includes a living/dining area, kitchen/utility, multiple bedrooms (including a main bedroom), and bathrooms. The plan also features a window legend and a scale bar for measurement reference.

62

Parc Clover @ Tengah Block 309A 3rd Storey Floor Plan

This image displays the 3rd storey floor plan for Block 309A at Parc Clover @ Tengah. It illustrates the layout of various 4-room and 5-room units (251, 253, 255, 257, 263), showing room configurations like bedrooms, living/dining areas, kitchens, bathrooms, and household shelters. The plan also includes common areas such as corridors, lobby, and centralised refuse chutes, along with a window legend and scale.

63

Parc Clover @ Tengah - Block 309A Floor Plan

This image displays the 4th, 6th, 7th, 10th & 11th storey floor plan for Block 309A at Parc Clover @ Tengah. It illustrates the layout of various 4-room and 5-room units, including detailed room arrangements, common corridors, lifts, lobbies, and centralised refuse chutes. Unit numbers like 251, 253, 255, 257, 259, 261, and 263 are visible.

64

Block 309A Floor Plan (5th, 8th, 9th, 12th & 13th Storey)

This floor plan displays the layout of Block 309A at Parc Clover @ Tengah for the 5th, 8th, 9th, 12th, and 13th storeys. It illustrates the arrangement of multiple 4-room and 5-room units, connected by common corridors and featuring a central lobby with lifts and refuse chutes. Details for each unit include bedrooms, living/dining areas, kitchens, and bathrooms, along with a window legend.

65

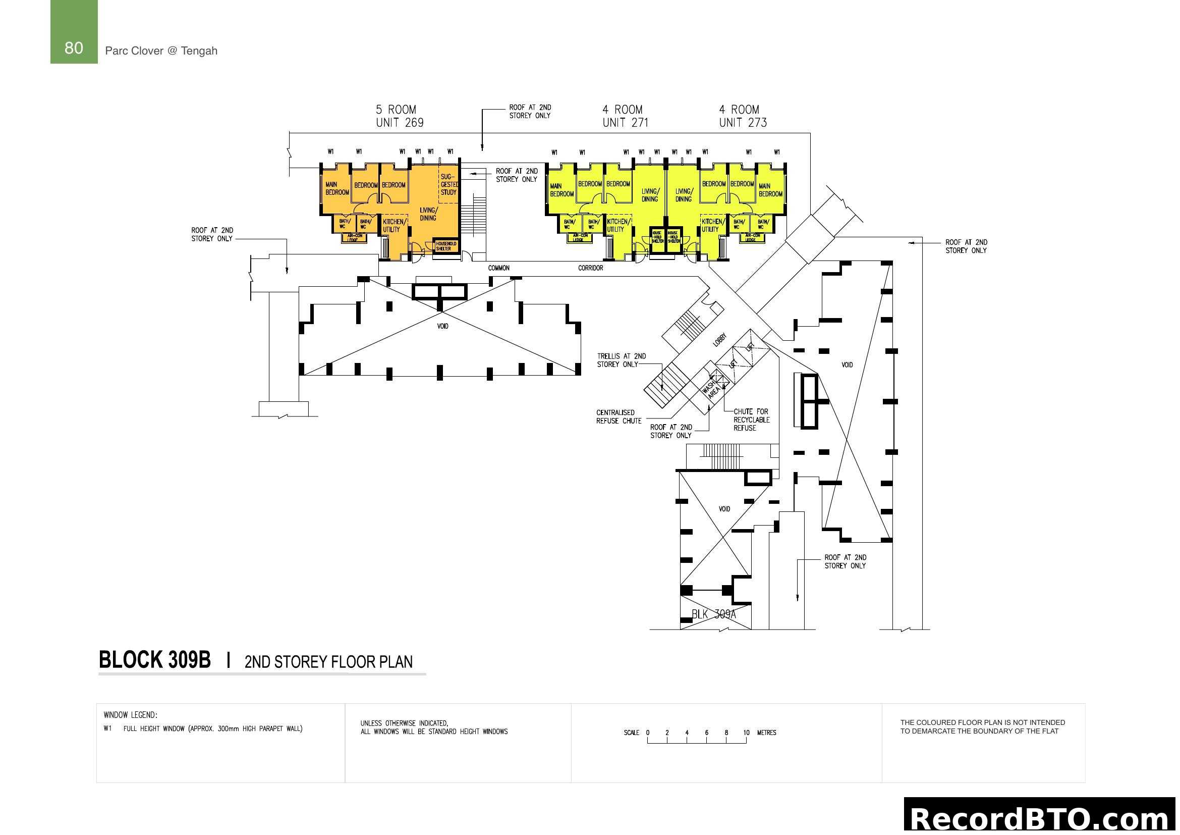
Block 309B, 2nd Storey Floor Plan - Parc Clover @ Tengah

This image displays the 2nd storey floor plan for Block 309B at Parc Clover @ Tengah, featuring the layouts of 5-room and 4-room units (269, 271, 273). It shows the arrangement of bedrooms, living/dining areas, kitchens, bathrooms, household shelters, and common corridors, along with utility spaces and refuse chutes.

66

Block 309B, 3rd Storey Floor Plan (Parc Clover)

This floor plan illustrates the layout of Block 309B at Parc Clover @ Tengah for the 3rd storey. It features a mix of 4-room and 5-room units, along with common areas such as the corridor, lobby, and refuse chutes. Key internal spaces like bedrooms, living/dining areas, kitchens, and bathrooms are clearly indicated for each unit.

67

Block 309B (4th, 6th, 7th, 10th & 11th Storey) Floor Plan

This image displays a detailed floor plan for Block 309B at Parc Clover @ Tengah, specifically for the 4th, 6th, 7th, 10th, and 11th storeys. It illustrates the layout of various 4-room and 5-room units, including unit numbers 269, 271, 273, 275, 277, 267, 265, and 279. The plan also shows common corridors, lift lobbies, wash areas, centralised refuse chutes, and household shelters, providing an overview of the residential units' arrangement within the block.

68

Block 309B Floor Plan (5th, 8th, 9th, 12th & 13th Storey)

This image displays the floor plan for Block 309B of Parc Clover @ Tengah, specifically for the 5th, 8th, 9th, 12th, and 13th storeys. It illustrates the layout of multiple 4-room and 5-room units, arranged around common corridors, a lobby, and a refuse chute area. Key features like bedrooms, living/dining areas, kitchens, bathrooms, and suggested study spaces are marked within each unit. A legend for window types is also provided.

69

Block 309C 2nd Storey Floor Plan

This image displays the 2nd storey floor plan for Block 309C of Parc Clover @ Tengah. It illustrates the layouts of 2-room flexi and 4-room units, including common areas, corridors, and utility spaces. The plan provides details for units 285, 287, 289, 291, 293, 295, 297, and 299, along with a window legend.

70

Parc Clover @ Tengah Block 309C Floor Plan (3rd-6th Storey)

This image displays the floor plan for Block 309C at Parc Clover @ Tengah, specifically for levels 3rd to 6th storey. It illustrates the layout of various unit types, including 2-room Flexi, 3-room, and 4-room apartments, along with common areas such as corridors, lift lobbies, wash areas, and rental flats. A window legend and scale bar are provided at the bottom.

71

Block 309C 7th & 8th Storey Floor Plan

This image displays the floor plan for Block 309C at Parc Clover @ Tengah, specifically for the 7th and 8th storey. It illustrates the layout of multiple units on a single floor, including 2-Room Flexi (Type 2), 3-Room, and 4-Room units, along with common corridors, wash areas, and refuse chutes.

72

Block 309C, 9th Storey Floor Plan with Unit Layouts

This image displays the 9th-storey floor plan for Block 309C of Parc Clover @ Tengah. It illustrates the layout of various residential units, including 2-room Flexi, 3-room, and 4-room flats, along with common corridors, a lift lobby, and an accessible roof garden. It also highlights linkbridges to adjacent blocks.

73

Block 309C Floor Plan - 10th to 14th Storey

This image displays the floor plan for Block 309C, specifically for levels 10th to 14th storey. It showcases the layout of various unit types including 2-room Flexi (Type 2), 3-room, and 4-room flats, detailing their internal arrangements like bedrooms, living/dining areas, kitchens, and bathrooms. The plan also indicates common corridors, household shelters, centralized refuse chutes, and window types for multiple units.

74

General Specifications for Parc Clover @ Tengah

This page outlines the general specifications for 2-room Flexi (short lease) units at Parc Clover @ Tengah. It details the building's foundation, structure, roof, and walls, along with specifications for windows, doors, and various finishes throughout the unit (flooring, walls, ceilings). The document also lists standard fittings, available services (gas, water, electrical), and important notes regarding the Household Shelter and renovation rules.

75

General Specifications for Parc Clover @ Tengah

This page provides detailed general specifications for HDB flats at Parc Clover @ Tengah, covering various room types (2-room Flexi to 5-room). It outlines specifics for foundation, structure, roof, walls, windows, doors, interior finishes, fittings, and services. Important notes regarding Household Shelters, UPVC door frames, and HDB policies on open spaces are also included.

76

Disclaimer for Parc Clover @ Tengah Brochure

This page presents a detailed disclaimer for the Parc Clover @ Tengah brochure. It outlines terms and conditions regarding copyright, accuracy of information, artistic impressions, potential changes to project features, and HDB's reserved rights concerning property usage and facilities. The text advises readers that the brochure information is for general guidance only and subject to change.

77

Optional Component Scheme (2-room Flexi Flats)

This brochure page introduces the Optional Component Scheme (OCS) for 2-room Flexi Flats in projects with shorter waiting times. It explains the scheme's opt-in nature and cost, highlights the use of Prefabricated Prefinished Volumetric Construction (PPVC), and lists standard fittings provided in all 2-room Flexi flats. It also mentions grab bar installation for short-lease flats and notes that further OCS details are on the next page.

78

Optional Component Scheme for 2-room Flexi Flats

This brochure page details the Optional Component Scheme (OCS) for elderly buyers of short-lease 2-room Flexi Flats. It outlines various elderly-friendly fittings such as built-in kitchen cabinets with induction hob, options for lower counter top heights, mobile kitchen cabinets for wheelchair users, and a built-in bedroom wardrobe with a lower hanging rod. It also lists other standard fittings like window grilles, mirror, lighting, and water heater, emphasizing the convenience of a move-in condition.

Tip: Click on any page to jump directly to that brochure page

Photo Gallery

78 photos

Parc Clover @ Tengah HDB Sales Launch November 2021

Parc Clover @ Tengah HDB Sales Launch November 2021

Parc Clover @ Tengah

Parc Clover @ Tengah

Parc Clover @ Tengah Green Spaces Artist Impression

Parc Clover @ Tengah Green Spaces Artist Impression

Parc Clover @ Tengah - Tengah Town Centre & Overview

Parc Clover @ Tengah - Tengah Town Centre & Overview

Parc Clover @ Tengah: Park District Vision

Parc Clover @ Tengah: Park District Vision